大阪ガスの実験集合住宅 NEXT21での成果を一般のマンションでも
本棚が両側に並んだ廊下を、風がすぅっと通り抜ける。ともすれば、マンションの一室ということを忘れてしまいそうな爽やかさだ。ここは、「中京・風の舎」と名づけられたリフォーム物件。
大阪ガスが行っている実験集合住宅 NEXT21での居住実験の成果をふまえ、有限会社エムズ建築設計事務所の三澤文子さんと、大阪ガス株式会社エネルギー・文化研究所主席研究員の加茂みどりさんが共同で設計し、株式会社夏見工務店が施工を担当した。
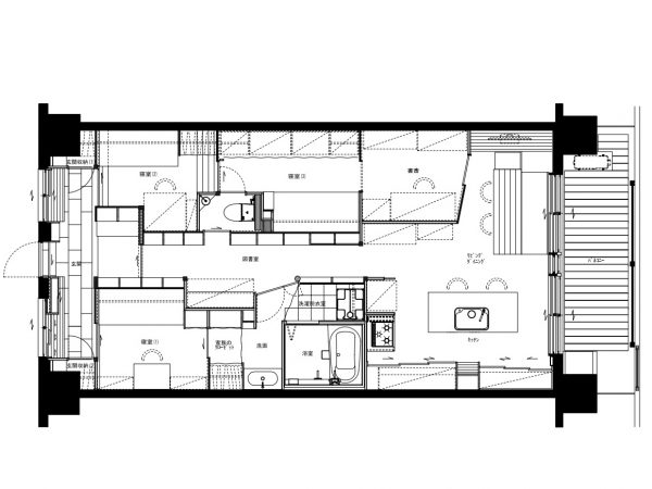
この空間は、母親と中学生、小学生の子どもが暮らす、3LDKの普通のマンションだった。マンション特有の風通しの悪さや、収納スペースの確保に不満を覚えつつ、なんとかやりくりしながら家族3人で暮らしていたそうだ。だがリフォーム後は、家の中央を通る廊下の両側に、家族3人それぞれの個室を配し、奥にDKを設けた間取りに。マンションでありながら、間取りを大幅に変更したのだ。また、80m2に満たない広さだが、収納空間をたくみに確保しながら、集合住宅特有の風通しの悪さを解消。さらには住戸の温熱環境の向上を目指した工夫がなされている。
このようにマンションであっても、リフォームをすることで利便性や快適性などが向上することが認められ、「中京・風の舎」、は2018年「住まいのリフォームコンクール」において、国土交通大臣賞(最優秀)を受賞した。
エネルギーと住まいを考える、20年以上の歴史を持つプロジェクト
大阪ガスのNEXT21は、1994年に始まった20年以上続く歴史ある居住実験プロジェクトだ。フェーズごとにテーマを持って取り組み、実際に大阪ガスの社員が実験集合住宅に住んで、体験して得た成果を事業に生かしている。
実験は、大阪ガスのメイン事業であるエネルギーシステムに関する実験と、住まい・住まい方の実験、2つの側面から実施されている。現在行われている第4フェーズでは、スマートマンションを具現化する次世代エネルギーシステムの実証実験をしながら、少子高齢社会に対応した住宅における居住実験がなされている。
NEXT21については、LIFULL HOME'S PRESSでも、その経過を2度にわたり紹介している(大阪ガス実験集合住宅「NEXT21設計パートナー・コンペティション」プロジェクト最優秀賞住戸を取材/大阪ガス実験集合住宅「NEXT21」中間報告会から考える「環境にやさしい心豊かな暮らし」)
こうしたNEXT21で実証実験をしてきた成果を一般住宅に取り入れることができるのか?というチャレンジが、「中京・風の舎」である。設計に参加した加茂さんは、住まい方の研究を行ってきた研究員だ。
「実験を行っている集合住宅は、スケルトンインフィル方式で建てられていて、構造部分であるスケルトンを傷つけずに、住まいを変えていくことができるようになっています。例えば、1軒の大きな三世代住宅を、外壁を移動させて2つの普通の大きさの住宅に分割したり、土間といった“中間領域”を設けたり。こうして実験集合住宅で積み上げた成果を、今回一般のマンションリフォームで活用したのです」(以下「」は加茂さん)
障子と続き間。日本の伝統的な知恵が風の通り道をつくる
「中京・風の舎」の大きな特徴は、冒頭に述べたように風通しがよいことだ。これを可能にしているのは、すり上げすり下げ障子。障子をずらすことで、上下に風や光が通る開口部を設けることができる。この障子が玄関ドア、部屋の入口などに取り付けられていて、気候が良ければ、これらを開けておくだけで風が家の中を通り抜ける。リフォーム前も、共用廊下側のドアや窓、部屋を仕切るドア、そしてベランダ側の窓を開ければ、風は通ったかもしれない。だが、多くの人が通る共用廊下側を開け放つことは、現実的にはなかなか難しいだろう。だが、この障子を使えば外部の視線を遮りながら、風の通り道を確保することができるのだ。
家の間取りを見ると、玄関から入った風は、廊下を通ってダイニングキッチン、そしてベランダへ抜けることができるほか、子ども部屋から洗面所、あるいは、もうひとつの子ども部屋から母の寝室や書斎を通ってベランダへと到達することもできる。部屋と部屋は続き間となっていて、扉や障子を開けておけば、さまざまなルートで空気が通り抜けるのだ。
複数のルートを用意して、アクセスコントロールを行い、セキュリティゾーンを確保する
中京・風の舎のユニークさは、この続き間であることにもあらわれている。
つまり、1つの部屋に扉は1つとは限らない。子ども部屋には玄関から直接行くこともできるし、脱衣所からも行くことができる。母の書斎にはダイニングからも、母の寝室からも入ることができる。さらに、母の寝室はトイレと子ども部屋に扉で接している。トイレには扉が2つあり、廊下からも、母の寝室からも行ける。どの空間もルートが複数ある、回遊性が非常に高いつくり。ダイニングに来客があれば、そこを通らずに外に出ることができるし、例えば母が高齢になったとき、トイレにスムーズに行くこともできる。アクセスコントロールがなされた設計がされているのだ。
このアクセスコントロールは、セキュリティゾーンをつくることにもつながっている。
「外部サービスへの対応も考えています。ベビーシッターやヘルパーなど、家族以外の人が家にいる時間帯もあるかもしれません。そんなとき、どこまで外部の人が入ることができるようにするのか、またどこへは入れないようにしておくのか考えておく必要もあります。この家の場合は、母親の個室には、ダイニング、トイレ、子ども部屋の3つのルートから入ることができますが、そのすべての扉にカギを付けています。例えば、母親が出張で不在時に、家事の代行サービスなどを頼む。そのときはここに貴重品をしまってロックをしておけば、安心してサービスが受けられます」。
こうして、いろいろなシーンが想定されていることも注目すべき点だ。
外のような内。空気や人を受けとめる中間領域としての土間
また、玄関には、家の間口とほぼ同じ幅の土間がある。ここは“中間領域”“環境調整空間”と位置付けられる部分。
「集合住宅の玄関は、そう広くありません。来客があったとき、そのまま用事を済ませたり、あるいは、リビングに招き入れたり。誰が来ても一旦受け止めることができる場所が土間なんです」。
家の内側でありながら、外でもあるような存在。京町家で受け継がれてきた土間が、現代のマンションにおいても機能している。
土間の果たす役割は、まだある。
「例えば、この地域に多い京町家では、一番外側に格子があって、障子やガラス戸などの建具で、重層化した空間が作られています。気候が良い時は、それらを開けておけば風が通りますし、寒ければすべてを閉めることで、空気の断熱層をつくることになります。そうすれば、真ん中にある部屋はあたたかく保つことができます。バッファーゾーン(緩衝地帯)を設けて、ゆるい断熱性能を持たせているんです。一番外側の壁1枚でしっかり断熱する魔法瓶型住宅も良いのですが、こういう環境を調整するような考え方も選択肢としてあってもいいんじゃないかという提案です」
木がふんだんに使われたナチュラルな室内を彩っているのは、母が父や祖父から受け継いだ家具や絵画、そして本。マンションの一室に詰まっているのは、心地よく暮らすための工夫と、家族のつながり、受け継いできた愛着のある品々だった。これらが上手に調和したリフォームが成し遂げられたのが「中京・風の舎」だと言えるだろう。
「大阪ガスは、あくまでも暮らしにかかわるエネルギーの会社。大阪ガスとしてリフォームの設計や施工を行うことはありませんが、こういった試みを研究し、みなさんに発信しています」。
風の通り方、アクセスコントロール、中間領域の考え方など。この「中京・風の舎」には、NEXT21で得られた、様々な要素が取り入れられている。また、ここで得られた体験が、今後のエネルギー事業やライフスタイルの在り方を変えていくのだろう。
公開日:






