昔の基準で建てられた家は、夏暑くて冬寒く、光熱費がかさむ
建て替えかリフォームかで悩んだら、これまでそれぞれに掛かる費用の試算や我が家の現状を知るための健康診断、そして安全な住まい作りには必須な耐震性能についてご紹介した。 今回は第3回目、快適性について押さえておきたいポイントをご紹介しよう。
住宅はその時代時代の法律や規制、指針に沿って建てられている。その代表的なものが耐震基準と省エネルギー基準だ。省エネルギー基準とは簡単に言えば断熱性能のレベルを示した指針のことで、おおよそ10年おきに刷新され、最新の基準は住宅設備のエネルギー消費量などについての基準も加えられている。
【省エネルギー基準の変遷】
~1979年に建てられた家:無断熱、旧省エネ基準以前
1980年~:旧省エネ基準
1992年~:新省エネ基準
1999年~:次世代省エネ基準
2013年~:平成25年省エネ基準
古い一戸建ては、冬になると1階が寒く夏は2階が暑い、エアコンの効きが悪く光熱費がかさむ、窓や壁に結露が発生するという悩みをよく聞くが、これは主に断熱性能が低いことが原因になっている。
断熱性能とは簡単に言えばポットの性能のようなもので、性能が高い家は外気の影響を受け難く、小さなエネルギーで家の中を快適に保つことができるので、エアコンがよく効き、安い光熱費で四季を通じて快適に暮らすことができる。
また断熱性能は、住む人の健康も左右するという報告が、2017年1月に国交省より発表され話題になった。お風呂場が寒いとヒートショック現象を起こしやすく死亡事故に繋がるという話は以前からあるが、今回は、寝室や居間の室温が健康に関係するというものである。
(住宅の断熱化と居住者の健康への影響に関する調査の中間報告より)
建て替えでもリフォームでも、表層ばかりに目を奪われないことが肝心
平成29年1月、全国約1,800軒の住宅および居住者約3,600人を対象として、断熱改修の前後における、居住者の血圧や生活習慣、身体活動量など健康への影響を検証した結果、下記のような知見が得られつつあるとの中間報告が、国交省住宅局より発表された。
1.冬季において起床時室温が低いほど、血圧が高くなる傾向がみられた。
2.高齢者ほど、室温と血圧との関連が強いことが認められた。
3.断熱改修によって室温が上昇し、それに伴い居住者の血圧も低下する傾向が確認された。
4.居間または脱衣所の室温が 18℃未満の住宅では、入浴事故リスクが高いとされる熱め入浴の確率が有意に高い。
つまり室温と血圧には大きな関係があり、断熱性能が低い家に住んでいると血圧が上がるという報告である。断熱性能が高い家なら室内を暖かく保ちやすいので、これらの健康被害を防いで、健康で長生きできる可能性が上がるというわけだ。
確かに古い家は寒い。しかし今のところ省エネルギー基準は義務ではないため、新しい家でも性能が低い家が存在する。今後、省エネルギー基準は、2020年には義務化される予定になっている。イマドキの車がエコカーであるのが当たり前のように、これからはエコハウスであることが当たり前の時代がやってくる。
また現在、政府の方針として、質の高い家は資産価値を保持できるという方向へ向かいつつあり、そうなると断熱性能が低い家は、今後、資産価値が極端に落ちる可能性がある。
このように家の性能は見えにくいものであるが、快適性や健康はもとより、光熱費などの維持費、家の資産価値にも大きな影響を与えている。建て替えでもリフォームでも、値段の安さや表層に目を奪われず、どんな性能なのかをしっかり確認し、比較検討することが大切だ。
リフォームで断熱性能を向上させる場合は、次世代省エネ基準レベルを目指すとかなり快適になるだろう。無断熱の家をリフォームで次世代省エネ基準を満たす家にしようとすると、延床面積30坪程度で300万円~の費用を見ておく必要がある。
この300万円をどう感じるかは、今の家への思い入れや、資産価値による。そう考えると、前回「耐震リフォームはどこまで必要?新しい家は地震に強い、古い家との違いは」でご紹介した耐震改修費用150万円~200万円に加えて、この300万円を掛ける価値がある家かどうかを見極めることは、建て替えかリフォームかを判断する大きなカギになるだろう。
延床面積が大きい場合は、家全体ではなく、日ごろ暮らしている空間だけを部分断熱して、費用を削減する方法もある。おおよその費用を部位別にご紹介すると、窓一ヶ所内窓の取り付け5万円程度~、床下断熱20万円~、屋根裏断熱30万円~で、壁の断熱は手法によって費用が大きく異なる。ただし断熱改修は、優れた技術を持つ業者を選んで行わないと、かえって壁内結露を発生させ、カビや腐食の原因となることがあるので注意が必要だ。
30年前の家は部屋数が多く和室が多い、間取り変更も視野に入れる
快適性には性能だけでなく、間取りもポイントとなる。古い時代の間取りはあくまでもその当時の生活スタイルに合わせて作られたものなので、現代の暮らしに合わない部分が多く存在する。
建て替えの大きなメリットのひとつに、この間取りの自由度がある。しかしリフォームの場合は、ただ水まわりや内装を交換するだけの表面的なものだと、昔の時代や世代にあわせた家がピカピカになるだけになる。
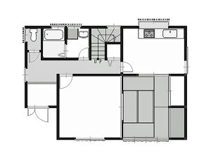
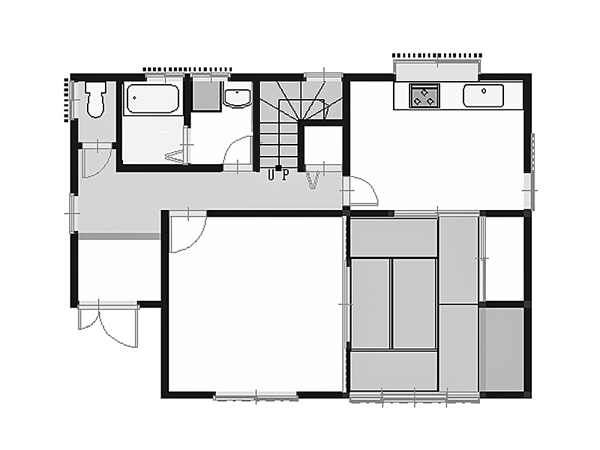
一例として、築30年の家の間取りを見てみよう。部屋が細かく区切られ、キッチンは北側に独立している。また和室が占める面積が大きく、収納が少ないのも特徴だ。浴室やトイレなど水まわりは面積が小さく、図面ではわからないが、和室の床が4cmほど上がっていたり、敷居がでっぱっていたりなど床に段差が多い。
築20年~30年前後の一戸建てリフォームで多い要望は、キッチンやダイニングをもっと広く明るくしたい、和室を洋室にしたい、収納を増やしたい、窓を大きくして明るくしたい、水まわりを広くとりたい、床の段差を無くしたいなどがある。どれも時代や世代の変化に伴って、求められる住まいの形が変化したことによるものである。
このあたりまでくると、リフォームでどこまで快適性や利便性を求めるかという問題になるが、いったんリフォームをしたら、またその家で20年以上は暮らし続けることを考えると、やはりこれらの間取り変更も視野にいれた計画で比較検討することが、満足のいく結果を導き出すためには必要となるだろう。
構造上制約が多く、不便を我慢して暮らし続けることになるのであれば、無理をしてリフォームをするより、建て替えて理想の間取りを手に入れることをお勧めする。
防犯、バリアフリー、先々の維持管理のしやすさも忘れずに確認を
これまで、健康診断、耐震性能、断熱性能、そして間取りと、建て替えかリフォームかを判断するための要素についてご紹介してきたが、他にも防犯性能やバリアフリー性能、そして今後の維持管理のしやすさについても忘れずに確認し、比較検討の材料とする必要がある。
例えば最近のハウスメーカーの新築物件の売り物のひとつに、30年間足場不要というものがある。これは足場が必要なメンテナンス工事が30年間不要ですよという意味で、これまでモルタルの外壁の場合は10年おきに塗装を行い、その都度足場を掛ける必要があったことを考えると、途中細かい点検やメンテナンスはあるにしても、かなりの維持費用の節約ができるようになる。
またリフォームでも、高耐久な材料や工法を採用することで、この先のメンテナンスの間隔を伸ばすことができるようになっている。
もちろん高性能な材料を使用すればその分イニシャルコストがかさむが、先々のことを考えれば、イニシャルコストに加えて、最低でも向こう20年のランニングコストを加えた、トータルコストで維持費の比較をするといいだろう。
リフォームでは費用がかさみ過ぎる工事、建て替えができないケース
さて、リフォームか建て替えかと言っても、リフォームでは費用が高額になり過ぎて建て替え費用を超えてしまうような場合や、逆に建て替えそのものができないケースもあるので、注意が必要だ。
まずはリフォームで費用がかさむケースを押さえておこう。「リフォーム費用をかけるか建て替えか?費用比較と最初にするべきこと」でご紹介したように、健康状態が極端に悪い場合の他に、構造が大きく絡む間取り変更を行う場合や、水まわりを大きく移動する場合などがある。
これらはプランによって費用が異なるので、まずは概算の見積もりをとってから検討するといいだろう。以前も書いたが、リフォームでできないことは基本的に無いと言っていいが、問題はやる価値があるかという点である。
実際、1階と2階をまるごと入れ替え、水まわりも大幅に移動したリフォームで、2,000万円ほど費用が掛かった現場があるが、トータルで見れば建て替え費用の三分の二程度ででき、また満足度の高い結果となったケースもある。
また中には、構造上、壁の移動ができない家、窓が大きくできない家などもある。勝手に移動したり大きくしたりすると構造上危険な場合もあるので、間取り変更を行う際には、これらの計画をしっかり行ってくれるリフォーム会社を選ぶことが肝心だ。
建て替えができないケースとしては、建築基準法や条例の改正で、建て替えが許可されない、前の家より小さな家しか建てられないなどがある。これは、各市町村の建築課に問合せると教えてくれるので、今の土地にどんな規制があるか、事前に確認しておくといいだろう。
さて建て替えかリフォームか、次回はそれぞれのメリット・デメリットまとめ、そして具体的な計画の立て方をご紹介しよう。
公開日:







