世相をいち早く反映する地元密着の住宅コンテスト作品群
ジオポンティのタイルを主役に地中海リゾート風のインテリアにリフォームをしたリゾートマンション。奥の大きな窓から海が見える(第7回トクラス選手権 マンションリフォーム部門審査員特別賞/設計・施工:有限会社ノイエピナコテーク)住宅リフォームの現場は世相をいち早く反映し、その時代の生活スタイルや社会情勢を素早く映し出す。
筆者は、リフォームを中心とした住宅コンテスト「トクラス選手権」で、2014年から8年間、審査を行っているが、応募作品にはその年ならではの特徴が見られ、その変化と進化の速さにはいつも驚かされている。
住人自身が日々の生活の中で実感している困り事や不満、もっと快適で便利な暮らしがしたいという思いから実施されるリフォームは、暮らしや世相の変化をダイレクトに反映する。また新築に比べると実施までのハードルが低くスピード感がある。
地域密着の工務店やリフォーム会社が手がけるこのコンテストの応募作品は、小工事から大型物件まで規模はさまざまだが、そこには日常の中で人々が求める等身大の暮らしがあり、今の時代だからこそ必要な住まいの形が見える。
今回は、コンテストの応募作品、入賞作品から見える、現在のリフォームのトレンドや新しい動向について、作品とともにご紹介しよう。
「トクラス選手権」は、システムキッチンやバス、人造大理石を製造している住宅設備メーカートクラス株式会社が主催する住宅コンテストである。同社が運営する組織「トクラスリフォームクラブ会員店」が、トクラス製品を採用した物件を対象としたコンテストで、日本全国の地域に密着した地元工務店やリフォーム会社が参加している。
コロナ禍だけではない、社会情勢の変化が生み出したリフォームのトレンド
LDKとベランダを楽しむ暮らしがコンセプト。廊下からベランダへのびるレッドシダーの天井が印象的な一戸建てリフォーム(第8回トクラス選手権 エリア賞/設計・施工:株式会社seek freeplanning)2021年は、今の時代を表すにふさわしい特徴的な応募作品が目立った。
たとえば手洗い動線、在宅ワーク、ベランダや庭を活用するアウトドアリビング、プライベートスペースの確保、在宅時間が長いことを前提にしたプランなど、コロナ禍をきっかけにした「ニューノーマルな暮らし」を快適に送るための間取り変更や、インテリアのリフォームが数多く見られた。
インテリアに関して言えば「癒やし」をテーマにしたものが増え、キッチンでは「黒色」を使ったデザインが多かったのが印象的だ。黒色といっても、クールなモダンデザインではなく、焼き物をイメージさせる黒色や濃い木目など、ナチュラルでぬくもりを感じさせるものが中心となっている。
このようなインテリアカラーの傾向は、家具の売れ筋の変化にも見られる。先日、北欧の大手家具メーカーに伺ったところ、これまでリビングのセンターテーブルの天板カラーはクリアな白色が人気だったそうだが、コロナ禍以降、優しさや癒やしを感じるアイボリーやベージュの人気が上昇し、自然素材を使った製品の売れ行きも伸びているという。
加えて、暮らし方や働き方の多様化が急速に進んだことにより、新しいコンセプトを持った作品も目立った。
おひとりさま、デュアルライフ、セカンドハウス、オフィスのキッチンなどをキーワードとしたものや、2050年カーボンニュートラルの実現の観点から急務となっている住宅の省エネ化を受け、サステイナブルをテーマにしたものなどである。
まさにこれらが今どきのリフォームのトレンドといえそうだが、とにかく2021年はこれまであまり見ることがなかった多彩な作品を数多く見ることができたのである。
普遍的にニーズが多い、終の棲家や中古リノベもさらに進化
このような新しいコンセプトの作品群に加え、普遍的にニーズが多いリフォームがいくつかある。シニア層による終の棲家づくり、家事を楽にする、収納を増やす、共働きと子育てを両立させる、省エネ化、温熱環境の改善、おうちカフェのような楽しくくつろげる家、新と旧の融合、住み継ぐ、三世代同居、ペットと暮らす、そして中古住宅購入リノベなどだ。
これらは普遍的なテーマともいえるが、内容は時代に合わせて年々進化を遂げていて、毎年新しいアイデアに出合うことができる。
それでは2021年の第8回トクラス選手権の入賞作品の中から、リフォームのトレンドと進化を感じさせる作品をいくつかご紹介しよう。
おひとりさまのためのリフォーム 自分のための住まいづくり
リフォーム後のプラン図ファミリー向けの間取りから、単身者用の終の棲家へ。これからを長く快適に暮らせる工夫が随所に凝らされている。クローゼット~寝室~キッチンの動線計画はおひとりさまならでは(第8回トクラス選手権 マンションリフォーム部門特別賞/設計・施工:株式会社スタイル工房 浜田山)
今回の応募で目立ったのが、おひとりさまのソロ活ニーズに応えるためのリフォームである。
日本の人口は減少傾向にあるが、単独世帯数(世帯人員が1人の世帯)は増加し続けている。つまり今後はファミリー層が暮らす家の需要は減り、単身者用の住まいが数多く必要になる。
これまで単身者用の分譲マンションの売れ行きは話題になることはあっても、リフォームはあまり目にすることがなかった。しかし今回の応募では、おひとりさまがより豊かに快適に暮らすためのリフォームが散見された。
こちらはファミリー向けの間取りのマンションを、単身者がこの先を長く快適に、そして豊かに暮らせる住まいにリフォームした事例である。
寝室を家のほぼ中心にレイアウト。水回りにすぐにアクセスできるようにしつつ、朝や就寝前の準備がしやすいよう、キッチン~寝室~ウォークスルークローゼットが直接つながった裏動線を確保している。本棚や収納、趣味のスペースもたっぷりと取られている。
加えて高齢になっても快適に暮らせるよう断熱性能を向上させるリフォームを実施し、温熱環境を改善。お父様から受け継いだ特注建具や収納棚はデザインに合わせて再利用するなど、古きよきものと最新性能を融合させた理想の住まいになっている。
このようなタイミングで、単身者向けのリフォームに数多く出合うことができたのは、コロナ禍をきっかけに「住まい」の重要性を改めて思い、自分自身のためのリフォームに踏み切った人が多かったからなのかもしれない。
オフィスのキッチンリフォーム 癒やしとコミュニケーションのための場づくり
リフォーム後のプラン図社員同士のコミュニケーションの場として、また息抜きやお客様を迎える場として、オフィスの1室をキッチン付きカフェコーナーにリフォーム。複数で使うキッチンならではの工夫がされている(第8回トクラス選手権 エリア賞/設計・施工:リフォーム工房 造研)
在宅ワークが増加し、オフィスの役割が変化しつつある。実務を自宅やコワーキングスペースで行うのであれば、オフィスはコミュニケーションの場としての役割がより強く求められるようになる。
こちらは、オフィスの1室に新たにキッチン付きのカフェコーナーを作った事例である。コロナ禍で外出、外食もままならず、せめて息抜きができればとリフォームを実施。
キッチンは複数でも使いやすい2列型をセレクト、会話が弾むよう対面式キッチンを配置している。インテリアは、休憩時間にのんびりとリフレッシュできるよう地中海リゾートをイメージ。会話が弾むようになり、新しいアイデアの話題で盛り上がることもあるそうだ。
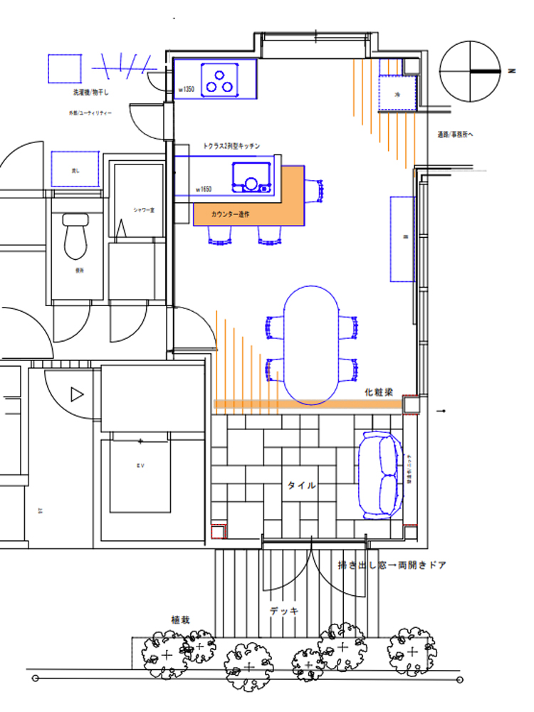
シニア世代の終の棲家をつくるリフォーム より豊かな空間に
リフォーム後のプラン図3LDKのファミリー向けの間取りを、シニア夫婦2人のための終の棲家にリフォーム。間取りを見直すことで、家の中のどこにいても気持ちのいい空間になるよう設計されている(第8回トクラス選手権 最優秀賞/設計・施工:LOHAS studio 越谷)
こちらは、子どもが独立し、シニア夫婦2人が終の棲家づくりをしたリフォームの事例である。
終の棲家というとバリアフリーを中心とした機能的な家というイメージがあるが、リフォームで終の棲家をつくる世代は主に50代~60代である。これから謳歌する時間は長く、また成熟した世代はその先に続く人生をより充実させるための豊かな空間を望む人も多い。
リフォーム前の間取りは、一般的な3LDKだったため、2人で暮らすには部屋数が多く、また古いマンションにありがちな、暗さ、風通しの悪さなどもあった。
そこで間取りを一から見直し、これまでにとらわれることなく、玄関や通路も拡張。大型の引き戸や室内窓の工夫で、家の中のどこにいても心地よくいられる住まいを実現している。夫婦2人のこれからの充実した毎日を垣間見ることができるような、理想的な終の棲家である。
リフォームの現場から時代が見える
リフォームの現場は時代を映す鏡である。
筆者がリフォーム業界に入ったのは、今から30余年前、少しずつ生活提案型リフォームが登場した頃ではあるが、まだまだ修繕の域を出ず、リフォームの目標は古くなったものを新しくすることにあった。
徐々にリフォームの存在価値そのものが変わり、今は改善や改修といった枠を超えて、新たな家づくりをするための手法として考えられるようになっている。リフォームの材料、技術、プランも急速に進化を遂げている。
そしてまたこの数年で、人々の家に対する意識が変わり、家づくりにも変化が起きている。変化は進化のきっかけになる。来年はどのような変化や進化があるのだろうか、楽しみである。
そんな住まいの進化やトレンド、新しいアイデア、プランを見ることができる住宅コンテストに注目してみてはいかがだろうか。きっとこれからの時代をより幸せに暮らす家づくりの参考になることだろう。
取材協力:トクラス株式会社











