戦火に焼けた和歌山市に残る「長屋門」
和歌山城は、天正13年(1585)に紀州を平定した豊臣秀吉が弟の秀長に築城させたのが始まりである。創建にかかわったのは、築城の名人と謳われた藤堂高虎。天守閣を目指し歩いてみると、素朴ながら壮大な「野面積み」の石垣に圧倒される。そう、以前本サイトでも紹介した穴太衆の技がここ和歌山城でも生きていた(「信長も重用した伝説の石工『穴太衆』―現代に奇蹟の技をつなぐ“超”技術集団とは?」)。創建期は不明だが、浅野期以降、穴太が和歌山城の普請に携わったことは資料上確認できる。
壮麗なその城は、その後関ヶ原の戦いで功をたてた浅野幸長の入城を経て、徳川家康の10男・頼宣(よりのぶ)が55万5千石を奉じて入城すると、徳川御三家として繁栄の歴史を刻んできた。
徳川御三家の名に相応しく、当時は城下町にも見事な武家屋敷が並んでいたという。現在和歌山市役所のビルが建つ城の北堀に面した通りには、大身の藩士屋敷が建ち並んでいた。これが現存していれば、どれだけ壮麗な景観を残していたことだろう。残念ながら戦時中に、城の天守閣をはじめ、城下町の風情を残す建物はほとんどが焼失してしまっている。
そんな中2017年に、和歌山市内で現存する、ほとんど唯一と言える武家屋敷が移築され和歌山市指定文化財となった。「旧大村家住宅長屋門」である。不勉強ながら初めて聞いた「長屋門」という名称。果たしてどのような建造物なのだろうか。内部を拝見しながら取材をさせてもらった。
屋敷の外壁と長屋が一体に?
「長屋門」とは、江戸時代に多く建てられた建造物。屋敷の周辺に家臣や使用人を住まわせるための長屋を用意し、この一部に門を開いて一続きの建物としたのが「長屋門」の始まりだ。
外側から見れば、単なる門と主屋を囲む壁にしか見えないのだが、この壁の部分が実は住戸になっている。門の横の部屋は当然門番の詰め所であり、その奥は使用人の住居としたのが一般的な形態のようだ。武士だけでなく、豪農の屋敷でもこのような長屋門がつくられた。
使用人の住居と聞くと粗末な建物を想像しそうだが、建造物としては重厚かつ意匠を凝らしたものが多い。「当時、長屋門の意匠などは、その家の格式や禄高によって取り決められていた」と説明するのは、移築された長屋門の管理を担当する和歌山市の工藤直士氏だ。
「旧大村家住宅長屋門の外壁は、格式が高くなければ使えなかった海鼠壁(なまこかべ)の美しい配列が特徴です。海鼠壁というのは、日本伝統の壁塗り様式の一つで、壁面に平らな瓦を敷き詰め、その瓦の継ぎ目に漆喰を半円型に盛り付けて塗ったもの。継ぎ目の目地の盛り上がりが「海鼠」に似ていることから、その名が付いたそうです。外壁の防火、防水に長けていますが、非常に手間のかかる工法でした。当時としては、この海鼠壁は一種のステータスの証だったのではないでしょうか」(工藤氏)
ステータスの証であった長屋門の海鼠壁
一種のステータスであったからこそ、この「旧大村家住宅長屋門」は、町の建造物のほとんどが戦火で焼失する中で、奇蹟的に現存することができたと言ってもいい。ここで、この建物が歩んできた歴史を振り返ってみよう。
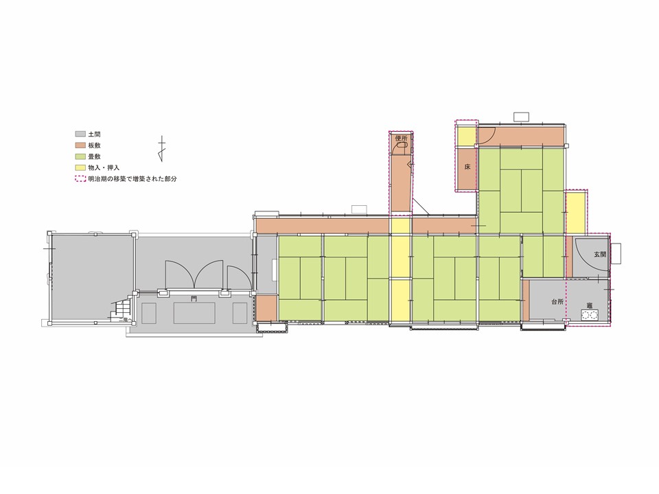
この長屋門を建造したのは、その名の通り「大村家」だ。もとは三河国(現愛知県)の武士で戦国大名今川家に仕えていたが、16世紀後半には徳川家康に仕えることになる。その後、徳川頼宣が紀伊に入国する際に付き従い紀州藩士となった家柄だ。石高300石から800石を賜っていた江戸後期にこの長屋門は建造されたと考えられている。建築当初は、和歌山城の西側に位置していたが、明治に入り和歌山城の南に少し離れた「堀止東」に移築された。
移築したのは、陸軍少佐であった白樫甚一氏。分家から独立する住まいとして主屋と長屋門を移し、主屋は白樫家の住まいとされ、長屋門は屋敷の表門や借家に使われた。
「なぜ、白樫氏が移築をしたかは分かっていませんが、ある種のステータスの証であった長屋門にはそれだけの価値があったのでしょう。ですがこの移築のおかげで大村家住宅長屋門は戦火を逃れたわけです。もともとの大村家があった城下の西側は空襲に遭っています。もし、移築が行われていなければ和歌山城の天守閣もろとも消えていたことになります」(工藤氏)
この移築時に、長屋門には改造が加えられている。西側には庇をつけて玄関や台所・土間が作られた。南側に突き出た便所も新設。南端の八畳間の床の間も移築にともなって造作されたが、なんにせよ、骨格となる長屋門の遺構がこの移築によって現代につながれることになった意義は大きい。
その後、白樫家からさらに所有者は替わっていったが、所有者の住居として活用されながら、つい最近まで住宅として残ったのだ。
意外にも開放的な空間
では、実際に、長屋門の中に入ってみよう。冒頭でも紹介したが、この長屋門、通りからみただけでは住居には見えない。重厚な門の高さは2.7mほど。それに連なる壁面(つまりこの場合、部屋のある長屋)の高さも同じだけある。にもかかわらず基本は平屋。そのため居室空間に入っても床下にもかなりのスペースがあり、畳敷きの部屋に上がり込む際には相当大きな歩幅で上がらなければならない。しかも、天井高が相当にある。長屋という言葉に惑わされていると想像できないほど解放感のある立派な空間だ。
門扉は厚みも丈もある重厚なもので、一人では扉を開くにも骨が折れそうなほど立派なものだ。近年までこの建物を所有していた家では、普段この扉を開くことはなく、結婚式など慶弔時にだけこの門を開けたという。確かに普段の生活でこの扉を開いて出入りをするには、気が咎めるだろう。それくらい、重みのある門構えだ。
移築時もそうだが、所有者が替わるごとに増改築が施されたというこの長屋門だが、創建当時の面影ももちろん残る。門の横にある部屋は門番が詰めていた場所と思われるのだが、門の通用口を通る人を見定める小窓なども残っている。時代の流れの中で用を失ったこの小窓は、最近までポストがおかれ新聞受けに使われていたそうだ。
2017年のこの地への移築時には、明治期に移築された当時の趣を残す努力がされたそうだ。例えば台所には竈がおかれているが、実は近年まで台所にはシステムキッチンが並び、現代の生活様式と混在していたというから不思議な気もする。
もちろん断熱性などは期待できない建物であるから、近代的な快適な居住空間としては確かに難もあったことだろう。しかし、先ほどから言及しているように、重厚な面構えに開放的な空間。廊下の雨戸をあけたときに畳の上に光が差し込みつくり出す陰影。魅力ある伝統的な武家屋敷をよくぞこの時代まで伝えてくれたと思う。所有者の方々のバトンのリレーに感謝したい。
終戦直前まで残っていた武家屋敷
現存する「大村家住宅長屋門」の横幅は約23.2m。それだけでも海鼠壁が続くフォルムは美しい。現在の和歌山市ではこうした城下町の趣を残すのは、再建された和歌山城とこの長屋門くらいしか見当たらない。
しかし、戦中に焼失する前には、こうした海鼠壁の長屋門や大名屋敷が数多く残っていたそうだ。「木下次郎四郎屋敷表門・長屋」などは圧巻の風景だ(写真は明治から大正の頃)。和歌山市の中心部が大空襲に見舞われたのは1945年7月9日、ひと月もすれば終戦だったことを考えると、なんとも歴史の残忍さを感じてしまう。
徳川御三家のおひざ元。紀州藩の当時の面影を残す「旧大村家住宅長屋門」の姿は、まぎれもなく貴重な歴史の遺構だ。和歌山城を訪れた際には、ぜひこの長屋門にも足を運んでみてはいかがだろうか。







