佐賀での西村浩氏の次の一手は空きビルの再生
前回お伝えした佐賀市の「わいわい!!コンテナ」プロジェクト。空き地や駐車場が無秩序に増加することで街そのものの活気がなくなりゆく現状に対し、"原っぱ"という意外な方法で街に賑わいを取り戻した事例として紹介した。
仕掛け人である西村浩氏(株式会社ワークヴィジョンズ代表)が、佐賀のまちの再生に関わり始めて約8年、新たな取り組みが始まっているという。次の舞台は4階建の一棟ビルだ。長期間空き店舗となっていた建物を、2017年8月にオフィスビルとしてリニューアルオープンさせたということで伺ってきた。
ビルがあるのは佐賀市呉服元町。「わいわい!!コンテナ2」と同じ歩行者専用道路に面し、隣にはワークヴィジョンズの佐賀事務所兼シェアオフィス「マチノシゴトバCOTOCO215(以下COTOCO)」が構えている。
「ここはもともと呉服店として愛されていたビルです。けれど、不況の煽りで店を閉め、ここ10年以上ずっとシャッターが閉じたままでした。」(西村氏)
2階の高さまであるシャッターの中には、外付けの螺旋階段とショーウィンドウがあり、竣工当時の煌びやかな様子を想像できた。しかしその大きさゆえに、閉じられたシャッターは通りを一層寂しくする。COTOCOをつくる時から、「ここをどうにかできないか」という話はあったそう。西村氏が提唱する都市再生の手法は、集中的に1つのエリアにコンテンツを集め、エリアの価値を向上させて他に波及させるというもの。つまり建物の立地としては好条件なのだが、すぐには手をつけられずにいたという。
「この規模の建物の再生を事業として成り立たせるのはそう簡単じゃないからね。でも、徐々にこのエリアにユニークな人が集まってきて、可能性が見えてきたんです。」(西村氏)
屋上が最高に気持ちいいから、ビルの名前は「ON THE ROOF(オンザルーフ)」
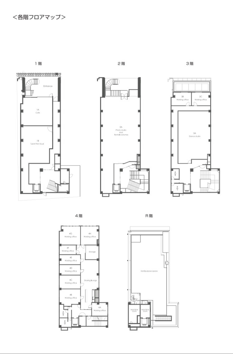
ビルは、昭和48年竣工の鉄筋コンクリート4階建で、延べ床面積は1500m2に及ぶ。ワークヴィジョンズの設計監理のもと、地元建設会社の株式会社大洋建設の施工によって、まず4階全室と3階の一部が小規模個室型シェアオフィス「WORKING ON THE ROOF」として8月1日にオープンした。
個室型シェアオフィスは約12〜30m2、賃料約4.5〜10.7万円程度と規模も様々な全10室。オープン前の時点ですでに6部屋が埋まっていた。入居者はITや映像制作、アパレル関連事業などの個人起業家らである。もともと佐賀で活動していた人もいれば、佐賀出身で東京で活動しながら佐賀にも拠点を構えて「デュアルワーク」を実践する人もいる。
4階には、人や情報が常に交錯する場になるようにと、個室2〜3部屋分ほどの広さを確保して、キッチン併設の共用ラウンジが設けられている。入居者はここでミーティングや来客との打合せをすることができ、ラウンジや屋上を占有してのイベント開催も特別料金で可能だそう。
1〜3階のテナントフロアは、段階的にオープン予定だ。今年10月のレンタル衣装&フォトスタジオの入居(2階)と、翌年2月のダンススタジオ(3階)とカフェ&Tシャツプリントショップ(1階)の入居が控えている。
ビルの名前は「ON THE ROOF(オンザルーフ)」。物件調査で屋上に上ったら、そこからの見晴らしが最高に気持ちよかったからだそう。実際に上ってみると、4階建のビルの上にいるとは思えないほどに周囲を見渡すことができた。
「近くに高い建物がほとんどないおかげで、北の背振山地から南の有明海まで、佐賀の素晴らしい風景を一望できるんです。夕日もとても綺麗だから、ビアガーデンなんかも気持ちよさそうですよね。まちの皆さんのアイディアで、ぜひこの屋上も楽しんでほしいです。」(西村氏)
パブリックマインドを持って、「大家さん」をやる
空きビルを一棟再生する場合、企画運営側が、オーナーから一定期間ビルを丸ごと借りて、それぞれの入居者に転貸する「サブリース」という手法が多く用いられる。運営側の初期投資が抑えられ、リスクが低いからだ。ON THE ROOFも当初はサブリースで行うつもりだったそう。しかし県外で事業を営む前オーナーと話を進めるにあたり、西村氏は懸念を抱いた。
「賃貸だと、ここが盛り上がってきた後に収益物件として転売されてしまう可能性があります。あくまで可能性の話ですが。オーナーにとってそれは当然の権利です。けれど、たとえば新しいオーナーが僕らの活動とは違うビルの活用を考えていて、運営が続けられなくなるかもしれないし、家賃が大幅に上がって全国チェーンのテナントしか入れないようになるかもしれない。そうなると、ここでこれまで作り上げてきたり、これから作られていく独自のまちの雰囲気が、僕らの手がけるこのビルによって、分断されることになってしまいます。」
諸々のリスクを想定した西村氏は、西村氏の良き理解者であり、長い間佐賀のまちづくりに尽力し続けている地元企業の会長に相談したところ「ビルを購入しよう」と協力を申し出て下さったのだそう。
そうして、ビルは西村氏の思いに賛同した地元企業がオーナーとなり、改修とその後の運営事業のために、オーナー・地元不動産会社・ワークヴィジョンズの3社共同出資により、特別目的会社「オン・ザ・ルーフ株式会社」(以下SPC)を設立し、西村氏はその代表に就任した。なお、ビルの改修費は、5~6年で回収する計画だという。
新規商業施設の誘致ならいざ知らず、空きビルの改修事業でオープン前にほとんどの入居が決まっていることに驚いていると、「入居してこのビルを一緒に盛り立ててくれる人が決まってないと怖くてできないですよ。」と西村氏。
わいわい!!コンテナのプロジェクトやCOTOCOの活動を通してまちに少しずつ変化を起こしたことで、西村氏らの元には地元の「こんなことをやりたい」という声や人が集まるようになり、さらにはSPCへの出資・設立など多くの人々の協力により、場を作る決心がついたのだそう。
「自らがやりたいことを、自ら作り上げていく」ための場をつくる
集まってきた若手事業者たちの「こんなことをやりたい」を実現するため、西村氏はふるさと財団(一般財団法人地域総合整備財団)のアドバイスを受けながら、佐賀市役所・佐賀商工会議所中小企業相談所・地元銀行との協議を重ね、佐賀市では新たに「佐賀市街なか遊休不動産活用促進事業制度」を設けるに至った。
まだ担保のない若手事業者が事業を始める、またはステップアップする際に必要な資金調達のハードルを越えるために、様々な分野の専門家が、事業収支計画や事業のビジョン、リノベーション、デザインなどに関するアドバイスを行い、ブラッシュアプを重ねることで事業の確実性・持続性をより高め、市からの認定を受けて金融機関の融資を受けられる、というスキームである。
一方で、やる気のある若手事業者が融資を受けて成長していくことは、将来的には地方銀行にとっても大きな意味を持つ。
同時に、そういった新たな支援制度と、若手事業者らが行政や商工会議所、金融機関とつながる窓口ができたことで、よりアイディアや情報が集まってくるようになったそう。
来年2月、テナントフロアに入居予定の菊池さんは、自身で映像制作事業を行うとともに、数種の店舗オーナーも務めている。1階のTシャツプリントスタジオ&カフェと、3階のダンススタジオは、それぞれ「これをやりたい」という仲間がいたからやるのだそう。また近隣に、今年7月半ばにBarもオープンさせた。
「おもしろそうな場所だなと思って、3年前にわいわい!!コンテナの斜め向かいにTシャツプリントショップをオープンしました。ON THE ROOFに移転して次は、カフェ併設型にします。1人でできることは少ないですが仲間達とならできることも増えるから、やりたいことのある人に場所を作ってあげるのが自分の仕事です。」(菊池さん)
また、菊池さんはON THE ROOFのプロモーション映像の制作を自らのプロモーションとして請け負っている。同様にWebを制作しているIT関連の入居者もいる。西村氏やCOTOCOのスタッフさんの人柄が成せる技かもしれないが、入居者が自ら「自分ごと」としてON THE ROOFのプロモーションに関わっている状況に驚いた。
地方のまちの暗い雰囲気を払拭したい。目指すは「ハレの街」
ON THE ROOFのコンセプトは「ハレの製造所」である。それぞれに個性のある入居者同士が協働してアイディアを出し合いながら、故郷の佐賀のまちをハレの街にしていけたらと西村氏は語る。
「入居してくれるみんなが『まちのために』と肩肘を張る必要はありません。それぞれがそれぞれの『なりわい』を一生懸命に頑張ればいい。彼らが楽しくやることが結果的にまちのためになる、そんな場を作っていくのが、僕らの役割です。」
「【ハレ】とか【ケ】とか言うけれど、そういうのはもっとグラデーションでいいんだと思います。人と情報とお金をシェアして、お金をその中で回せば、まちは活気付く。どんどんもたれ合っていい。日々の連続が人生で、人の暮らしと生業の集まりが街だから、その毎日を晴れやかにできたら素敵でしょう?そのためのアイディアや技術を持ったメンバーがこのビルにたくさん集まってくれています。とにかく、楽しくクリエイティブに佐賀の暮らしを編集する拠点にしていきたいですね。」
公共空間がよくなると、人が集まる。それをメディアを通して発信すると、さらに面白い人が集まり産業が生まれる。同時にリノベーションや新築で周囲の不動産が変わり、結果としてエリアの価値が上がる。西村氏はそれを、わいわい!!コンテナやON THE ROOF、さらにその先の活動を通して実証し続けていく。このまちに次は、どんな変化が起きるだろうか。これからも目が離せない。
ON THE ROOF http://www.ontheroof.jp






