中津で生まれ育った社会事業家の兄、画家の弟・佐伯祐三
大阪市北区中津は淀川沿いの、かつては工場労働者が多く住んでいたエリア。一部に戦災で焼失しなかった商店街など古い街並みが残り、そうした空き家を利用してこの10年ほどは個性的な店舗が増えてきた。一方で大阪駅まで徒歩圏という利便性の高さからタワーマンションが増加、風景が変わりつつある街でもある。
そんな中津に光徳寺という寺がある。現在の住職で17代目という歴史のある寺院で、その15代目である佐伯祐正(以下祐正)が現在に続く社会福祉法人光徳寺善隣館を始めた人である。祐正は男4人、女3人兄弟の長男で、2歳下の次男に画家として知られる佐伯祐三(以下祐三)がいる。
祐三は北野高校では野球部に所属、熱中していたものの、親戚の画家に絵の手ほどきを受けたことで美術の世界に開眼。大阪、東京の画塾に学び、1918(大正7)年には東京美術学校(現在の東京藝術大学)に入学している。が、その当時から結核に侵されていたようで、吐血もしばしば。本人も長くは生きられないと覚悟していたのだろう、学生時代に同じく画家である池田米子と結婚。卒業と同時にパリに旅立つ。1924(大正13)年1月、祐三23歳の時のことである。
兄である祐正は佛教大学(現龍谷大学)を経て、実家の光徳寺を継いで住職に。祐正は寺は地域の課題に積極的に対応すべきという考えの主で、1921(大正11)年に設立された日本初の公立セツルメント(※19世紀末のイギリスで始まった教育や医療、保育などを通じて地域の生活を向上させようという活動)北市民館(北区天神橋筋6丁目)で非常勤職員として勤務、活動を学んだ。境内の建物を利用、健康教室、料理教室、子ども教室などの開催もしていた。
当時の中津は東洋のマンチェスター(18世紀後半の産業革命の中心地)とも呼ばれた工場が林立、住宅が密集する地域で、人々は煤煙の中、あまり健康的とも、豊かともいいにくい暮らしを送っていた。祐正はそんな中津の暮らしをより良くするために奮闘していたのである。
戦後は女性たちが寺と事業を守ってきた
自らの病を知りながら渡欧した祐三はパリで多くの作品を描いているが、それは同時に身体を酷使、病状を悪化させることでもあった。その状況を知った兄弟の母は帰国を促すため、1925(大正14)年に祐正を渡欧させる。
祐三への説得とは別に祐正は欧米のセツルメント視察も目的としており、同年には世界初のセツルメント、ロンドンのトインビーホールで約2ケ月間の実習を行っている。その後、祐三の家族と会った祐正は彼らと別れた後、アメリカに足を延ばし、シカゴのハル・ハウス(近代社会福祉の母といわれるジェーン・アダムスが設立したセツルメント。ソーシャルワークの源流のひとつとされる)を見学している。社会に関わることに本気だった人なのだ。
祐三は1926(大正15)年に一時帰国するものの、1927(昭和2)年に再び渡欧。病気をおして描き続けるが、1928(昭和3)に8月に30歳という短い生涯を終えた。祐三の才能を信じて精神面はもちろん、金銭面でも支援を続けた祐正を始め、佐伯家の人たちには辛い出来事だっただろう。
同年、祐正は寺を開放して本格的にセツルメント活動を行う拠点として光徳寺善隣館を建設。1940(昭和15)年には母子ホームとなる新館が誕生するなど、祐正は私財を投じて日曜学校、裁縫塾などを敷地内に建設。同時に方面委員(現在の民生委員)を引き受けるなど地域の人たちのために時間を費やす日々を送った。
だが、そうした活動拠点は1945(昭和20)年の大阪大空襲ですべて灰燼に帰すことに。祐正も被災、49歳で世を去る。
「それ以降、戦後からこれまでの光徳寺善隣館は佐伯家の女性たちが担ってきました」と現在、社会福祉法人光徳寺善隣館・中津学園の園長を務める渡辺祐子さん。お名まえから推察される通り、祐正の孫である。寺も含め、一帯が焼け野原になってしまったため、母子ホームの子どもたちなどは豊中市にあって被災しなかったカントリーハウスに移転させ、祐正の妻だった千代子はそこから中津に通って復興のための活動を行ったという。
福祉の最前線で求められる場を作り続けてきた光徳寺善隣館
「その当時、寺そして善隣館にはボランティアを含め、40~50人の従事者(僧侶、保母など)がいたそうです。祖母は家族のみならず住み込みの役僧(中心となる僧を補助する僧侶)の人たちの衣食住の面倒をも見ており、それに加えてさまざまな社会活動も行っていました。それが焼け野原になってしまったわけです。寺を再興するだけでなく、活動も継続しなくてはいけない。やることは山のようにありました。祖母は得度し、御布施、寄付を集めに回るなど必死で働き、今の礎を築いてくれました」と渡辺さん。
1949(昭和24)年、千代子が最初に開所したのは宗教法人光徳寺保育園。なぜ、保育園だったかといえば、その頃はまだ戦争未亡人が多く、一方でベビーブームで子どもが増えてもいた時代。彼女たちが働くためには子どもの面倒をみてくれる場が必要だった。だから保育園をと大阪市に言われたそうだ。
その後、1951(昭和26)年には渡辺さんの父で、祐正の長男である祐元が知的障害児のための施設設立を検討し始める。そのきっかけとなったのは1946(昭和21)年に滋賀県に設立された知的障害児や戦災孤児の保護、教育を行う近江学園での実習。近江学園の創設者の一人、糸賀一雄は社会福祉の父とも呼ばれる人で、戦後の障がい者福祉の先駆者。祐元はそこでの学びに共鳴したのだ。
近江学園は当時、家族で施設敷地内に住み込み、子ども達の面倒を見るというやり方をしており、祐元は当初、親のいない子を3~4人引きとって一緒に暮らそうと考え、そうしたことをやってよいかと大阪市に相談した。
「大阪市からは、現状では知的障がい児のための施設は足りていないから、障がい児向けに事業を始めるなら、もう少し多くの子どもの面倒を見られる施設を作って欲しいと言われ、施設を作ることになったと聞いています。光徳寺は世の弱者のための活動に実績があり、取り組んでもらえると考えられたのでしょう」と渡辺さん。
光徳寺善隣館は1959(昭和34)年に社会福祉法人の認可を得て、1961(昭和36)年には中津学園を開設している。
それから3年後の1964(昭和39)年には保育園を閉所しているのだが、これは地域にも保育園ができてきたことから、あえて子どもを取り合うより、今後も要望されている社会福祉事業に進むという判断から。光徳寺善隣館はその時々に求められる福祉の最前線に立ち続けてきた場というわけである。
兄弟に共通するのは社会の見えなかったものに光をあてたこと
その後、代が替わり、中津学園を卒業した子どもたちの居場所、生活のためにグループホーム中津、同泉尾、ケア中津(移動支援)などが開設される中、浮上してきた問題が建物の老朽化。以前の建物は1961(昭和36)年に建てられたもので、円形のガラス張り。印象的な建物だったが、今後、震災が来るかもしれないことを考えると耐震補強が難しいことは致命的だった。また、淀川の河川敷に近い立地を考えると3階以上に逃げられるようにしておくことも必要だった。
そこで声がかかったのが近畿大学建築学部建築学科の寺川政司准教授。近畿大学は2025年に日本経済新聞社が行った「大学の地域貢献度調査」で私立大学で唯一トップ10に入ったほど地域貢献活動に力を入れており、寺川さんの主宰する地域マネジメント研究室もあちこちの地域に関わってきた。当サイトでも寺川さんが関わった「山王こどもセンター」を紹介したことがあるが、その広い繋がりからセツルメント建替えに力を貸して欲しいと声がかかったのだ。(参考:大阪市西成区で60年近く続く山王こどもセンターが建て替え。子どもの声が聞こえる街を目指す西成の今
https://www.homes.co.jp/cont/press/reform/reform_01293/)
「これまでセツルメントが関わる歴史的集合住宅の研究や貧困地域のまちづくりに関わったことはありましたが、仏教系セツルメントで実際の設計に関わるのは初めて。また、厚生労働省は近年になって障がい者施設をまちに開くという方針を出し、まちづくりでもいろんな地域資源を繋ぎ合わせるという活動が広がっています。しかし、中津学園の場合、障がい児の生活空間をそう簡単に地域に開くわけにはいかないはず。でも、難しいと思う反面、チャレンジできるかなと思いました」と寺川さん。
画家としての祐三の価値はそれまで多くの西洋画家が描いてこなかったものに目を向けたこと。祐正のセツルメントは陽の目を見ない人達に目を向けてきた。そう考えると兄弟のやってきたことには繋がるものがあり、それを踏まえればまちをキャンバスにするという考え方があり得るのではないかと考えたのだ。
戦前、戦後の千代子さん、その後を継いだ長男の妻の篤子さんの頃には町会、地域の福祉の中心にいた光徳寺善隣館だが、施設の運営に重点が移って以降は安易に開くわけにもいかないという状況があった。それを再度少しでも開くためにはどうすれば良いか、寺川さんは事業コンペでその考えを説明し、事業に関わることになった。実施設計はCASEまちづくり研究所が担当した。
開く、閉じるが自在にできる空間をデザイン
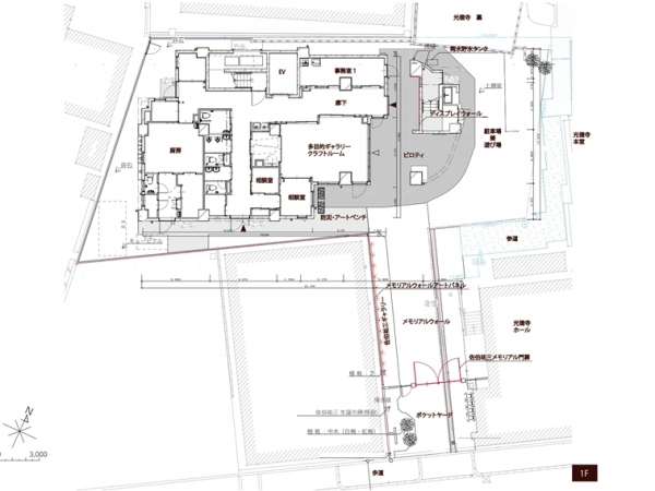
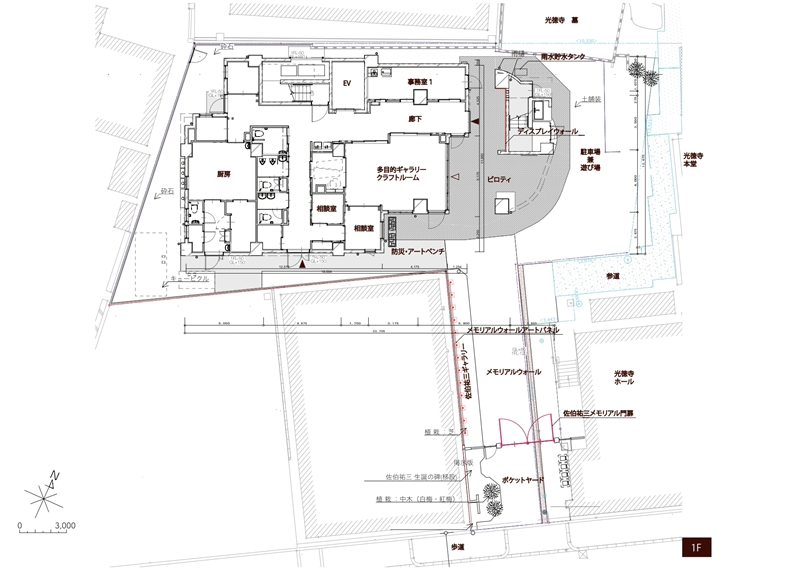
現状は中津学園に隣接して光徳寺があり、別棟に光徳寺ホールがある。これらは地域に開かれているが、中津学園の子ども達の生活はそうした施設同様の開き方をするわけにはいかない。子ども達のプライバシーがあり、秘匿すべき事案もある。また、子ども達は障害の違い、年齢などで振る舞いも違う。そうしたことを配慮すると、ある時は開いて、ある時は閉じられるようにデザインすることが必要と考えられた。
そこでまず、公道から中津学園の建物までのアプローチを少し凹ませ、そこにかつては光徳寺境内にあって人目に付かなかった祐三生誕の地であることを記した碑を移動。建物を見えなくしていた車両、ポンプ室を移動、公道から建物までが見えるようにした。また、アプローチに沿って祐三の絵を飾るギャラリーを設けた。
これによって光徳寺善隣館の存在、祐三との関係が見えるようになった。視覚的に開いたのである。絵画好きには祐三の出身がこの地であることは以前から知られていたが、逆に地元にはあまり知られていなかった。中津学園は建設されて今年で64年。昭和の時代からは入所施設として24時間、重度の障がい児を預かり、施設を運営してきたが、それは日々起こる出来事に苦慮し、子どもたちの生命を守ることに奔走した年月であった。祐三の絵画とはまた別の世界だったのだ。
一方で祐三の絵が有名になるにつれ、いろいろと取沙汰されることもあった。1990年代には贋作事件が起きた。検索していただければ解説が出てくると思うが、公立美術館も絡む祐三作品の真贋を巡る事件で、最終的には限りなく黒に近いグレイということになった。
それ以外にも戦後最大とも言われた経済事件、イトマン事件に絡んでも祐三の名が出た。同事件の主役だった人物は子どもの頃に中津に居住しており、祐三の絵をコレクション、それで美術館を作るという話があったのだ。バブル期は絵画ブームの時代でもあり、祐三の絵は人気が高く、利用されていたのだ。
だが、中津学園の建替えは良い機会と光徳寺善隣館は歴史を広く伝える方向に転換。碑、ギャラリーの設置に加え、建物エントランスには祐正、祐三以前からの歴史を伝える年表を掲示した。訪れる人達は自然にこの地、この建物が地域で果たしてきた役割を知ることになるのだ。
また、建物エントランス前にはピロティを設けた。ここは子ども達が遊ぶ場になり、イベント開催時には人が集まる場となり、建物を入ってすぐのクラフト室(会議室)を舞台に見立てた場合には観客席になる。多目的に使え、開くことも、閉じることもできる空間なのだ。
広報担当の役割も重要
建物3階以上の子ども達の空間については全体をひとつの家と見立て、その中に小さく開く、閉じるができる空間をユニット化して配した。具体的には5室の個室の真ん中に小さなリビングを作り、それを1フロアに2ユニット。ユニット間にはグループホールがあり、さらに2階にはもう少し広めの多目的ホールが配されている。子ども達は自分の部屋、自分の部屋の前のミニリビング、グループホール、多目的ホールと状況に応じて段階的に居場所を使い分けることができるようになっているのだ。
浸水災害に備え、子ども達の主な居室は3階以上になっているほか、ストックルームや緊急避難時に活用する屋上やバルコニーも適所に配されている。
歴史の検証のひとつとして大正時代から現在の光徳寺善隣館の建物の移り変わりを復元させるという取組みも行った。大正時代の光徳寺善隣館の建物の模型を作成するにあたっては、従前の建物の形を踏襲したが、それに当たって障壁になったのは写真はあったものの、当初の図面が残っていなかったこと。建設はあめりか屋(1909年に創業した日本のハウスメーカー)の大阪店が手掛けたがすでに閉業。現存する京都支店にも図面は残っていなかった。そこで祐正の2人の生存している2人の娘のうち、次女の薄れつつある記憶ヒアリングし、写真などを参考に寺川さんが間取りを起こし、再現を試みた。
もうひとつ、建替えにあたって大きかったのはクラウドファンディングを利用、それに合わせて中津学園の歴史を広く伝えるなどのPRを行ったこと。今となってはどういう経緯で中津学園ができ、何があるのか知られていない場をまちに開くためには建物のお披露目だけでは足りないからだ。
その役割を担ったのが一般社団法人大正・港エリア空き家活用協議会の川幡祐子さん。中津学園の関係者は日常の業務で忙しく、その合間を縫って施設をPR、情報を発信、場を開いていく作業は難しい。そうしたノウハウも蓄積されていない。川幡さんはそこをサポート、コーディネートしており、そのアプローチによって周辺住民、地域の商店街や祐三の出身高校、卒業生や関係者に広く情報を伝え、関心を集めることになった。
関わりたい、一緒に何かやりたいという声が多数
それが分かるのは2025年の建物竣工以降に開かれたなかつマルシェや区民交流プラザでの展示などによる反応から。大阪市北区障がい者基幹相談支援センターの水田雅子さんがまとめた区民交流プラザへの来場者の声は「今後、協力できることがあれば携わりたい」「中津学園の歴史は、福祉の歴史であると同時に、地域の人との関係性の歴史にもつながると思った」などといずれも前向き。これまで知られていなかったこの地と中津学園の歴史を知って驚きと感謝を述べている人が多いのが印象的だった。
また、水田さんの記録には1933(昭和8)年生まれの卒園生(その時点で91歳)が来場、当時の記憶を辿っていたとも。かつてこの地の暮らしをより良くと願った祐正の思いは過去のものではなく、今の人の中にも生きているわけである。
もうひとつ、このエリアには空き家を利用して若い人達が入ってきていると冒頭で説明したが、その人達からも中津学園は関心を集めている。商店街全体としては防災面での協業に関心があるようだが、若い店主たちはアート、まちづくりの文脈から中津学園という場で一緒に地域を面白くできるのではないかと考えているらしい。
「場を求めている人は多いのです」と寺川さん。レトロさのあるまちとしては知られている中津だが、歴史的な財産が知られるようになったことで新たな活動が生まれれば、まちの認知度、価値にも繋がるだろう。
もちろん、こうして存在が知られることは中津学園に暮らす子どもたちにもプラスになる。日頃から存在を知る顔見知りの存在は災害時など不測の事態の安心であることに加え、卒業後も近くに住むことが多い子ども達には近隣は生活の場。地域に見守ってもらえるようになれば暮らしやすくなるはずだ。
一気に開くことは難しい施設ではあるものの、少しずつ確実に場は開かれ始めている。「昔は散髪屋さんに来てもらっていましたが、今は子ども達がまちに出て散髪してもらっています」と渡辺さん。変化はそうした日常のささいなことから始まっていくのだろう。



















