埼玉県和光市に環境共生型賃貸住宅「鈴森village」が誕生
2023年2月、埼玉県和光市に環境共生型賃貸住宅「鈴森village」が完成した。
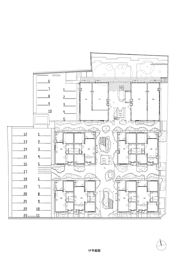
東武東上線、東京メトロ有楽町線、東京メトロ副都心線和光市駅から歩くこと約5分。広さ約2,600m2の敷地に立つ、住居26戸・テナント4戸の地上3階建ての賃貸住宅だ。一見、ほかの街でも目にする低層賃貸住宅のようだが、この鈴森villageは国内では非常に珍しい「LEED(リード)」認証を取得申請中ということで注目されている。
LEEDとは、Leadership in Energy and Environmental Designの略で、建物と敷地利用の環境性能を評価する国際認証制度である。日本ではまだ珍しいが、世界各地では広く普及している制度だ。LEED認証のカテゴリーはオフィスビル、インテリア、エリア開発など5つに分かれており、中でも住宅を評価する「LEED for Homes」の認証を取得した建物は日本では4例しかない(2023年2月時点)。
国内で4例目のLEED認証取得を目指す環境共生型賃貸住宅とはどのようなものか。完成後まもなく行われた現地見学会に参加した。
LEED認証とは何か ほかの環境評価システムとの違いは?
施設を紹介する前に、LEEDの概要についてみていこう。
LEEDは米国の非営利団体グリーンビルディング協会(USGBC)が開発した建築物の総合的な環境性能を評価するシステムだ。米国の基準をベースとしているが、グローバルに比較できる認証システムとして世界各国で利用されている。
日本では建物性能を評価する制度はほかにもある。建物のエネルギー性能を評価する「BELS(ベルス)」や、建築物や街区、都市などに係わる環境性能をさまざまな視点から総合的に評価する「CASBEE®(キャスビー)」などが一例だ。LEEDはこのCASBEE®の考え方に近く、CASBEE®は環境負荷と環境品質を明確に分けて評価しているのに対し、LEEDは環境負荷低減に主眼を置きつつ評価項目の一部として環境品質向上を扱っている点が異なっており、評価項目の違いなどに表れている。
LEEDではカテゴリーごとにクレジットと呼ばれる評価項目が決められており、エネルギー効率を高めること、室内の空気を改善すること、よりよい建築資材を選択すること、周囲とのコミュニティ形成をプロジェクトに盛り込むことなど、多岐にわたる総合的な環境性能が評価される。
現地見学会が開催されたのは、折しも埼玉県に雪が積もった日。最低気温は0度を記録し、LEEDの評価項目の一つである高断熱・高気密な「快適な室内環境」を肌で感じられる機会となった。
地域に開かれた公共性の高い賃貸住宅を オーナー鈴木早苗さんの想い
「あいにくの空模様ですが、この建物の快適さを感じていただくには絶好の機会かもしれません」
そう語ったのは、鈴森villageのオーナーである株式会社鈴森の代表取締役社長 鈴木早苗さん。確かに真っ白な窓の外とは対照的に、発表会の会場となった建屋内は十分に暖かい。窓周りにも結露は一切発生しておらず暖房は小さなヒーターのみという。集まった一同は室内環境の快適さを早速体感することができた。
計画地は代々鈴木家で受け継がれてきた土地で、早苗さんは16代目にあたるそうだ。13代目の鈴木左内さんは、1895年から44年間にわたり新倉村(現在の和光市)の村長を務め、無私の心で地域に尽力し、近隣住民から「道路村長さん」と親しまれた方だった。そんな愛あるまちづくりの精神も、早苗さんにしっかりと引き継がれている。
「今までもこの土地は公園として地域に提供してきましたが、30年先、100年先の未来を思い、住む人にも地域住民にも喜ばれる、公共性の高い環境配慮型住宅をこの土地に建てようと決めました」(早苗さん)
2017年に亡き夫・晴紀さんと共にこのプロジェクトをスタートさせ、設計事務所スターパイロッツ代表 三浦丈典さんに鈴森villageの設計を依頼した。
「施設コンセプトは、"豊かな緑に囲まれたワンランク上のゆとりある環境共生型次世代住宅"です。設計にあたり早苗さんと決めたポイントは、"安心安全に子育てできる環境であること"、"地域に開かれた空間であり、外から誰もが自由に通り抜けられる場所であること"、"地域のランドマークのような存在であること"、この3点でした」(三浦さん)
建物そのものだけでなく、そこで過ごす人々の豊かさを大切にした設計が三浦さんの強みでもある。今回の設計においても入居者や近隣住民との関係性、建物が地域で果たす役割などに重きを置いていることが窺える。鈴森villageが実現したいビジョンを第三者視点で評価したものが、前述したLEED認証と言い換えることもできそうだ。
入居者にとって環境共生型住宅の魅力とは
LEED認証を取得した建物は、近隣住民にとっても入居者にとっても快適な住環境となる。
「建物は高断熱・高気密で、省エネ効率の高いエアコンやトイレ、節水水栓、節水シャワーといった設備が備えられ、夏は涼しく冬は暖かく過ごすことができます。外皮平均熱還流率(UA値)は0.46W/m2・Kと、ZEH基準も余裕でクリアしています。エネルギーロスが少ないということですから、日々の光熱費も抑えられます」(三浦さん)
また、LEED認証では建物性能などの数値面だけでなく、建物に込められたフィロソフィーや近隣環境、設計プロセスも評価の対象となる。この物件でも住民同士が一緒になって施設コンセプトを学べるコンテンツを用意したり、テナントに地域のユニークな店舗を誘致したりと、ここでしか得られないコミュニティ価値を打ち出していくという。
また、持続可能な建築資材を使っていたり、建築・運用にかかる環境面の負荷が軽減されていたり、環境に配慮された住宅に暮らすこと自体、近年注目されるエシカル消費にも沿うユーザー体験といえるだろう。同じ家賃を払うならできるだけ持続可能な社会に貢献できる住まいを選びたいと考えるユーザーにとって、鈴森villageは希望に叶う選択であるといえる。
各部屋のプランには昨今のライフスタイルの変化も反映されており、あえて用途をはっきりと定めない空間が多く設計されていた。玄関や廊下、踊り場などもゆったりと空間がとられ、子ども部屋であったりワークスペースであったり、入居者の暮らしに合わせて多用途に使えるスペースがどの住居にも豊富に設けられている。
「環境共生型賃貸住宅」が当たり前の世の中になるには
オフィスビル等の分野ではLEED認証取得件数が年々増える一方で、住宅分野でのLEED認証取得は国内ではわずかに4例。特に賃貸住宅でのハードルは高いようだ。賃料を決める際、不動産会社やオーナーは近隣の取引事例・相場から賃料を算出する。いかに環境性能が高くとも近隣物件より何万円も高い家賃では空室の恐れがあると判断するのだろう。簡単には賃料を高く設定しにくい賃貸住宅市場では、コストも手間もかかる第三者評価を活用する動きはあまり活発ではないのが実情である。それでもこのプロジェクトではLEED認証取得にこだわり、結果的に物件競争力アップにつながっているようだ。
「CASBEE®は日本国内の建築物のみを評価対象としていますが、LEEDは世界中で採用されているグローバルな評価基準です。和光市から世界に向けて日本の取り組みを発信したいと、なんとしてもLEED認証を取得しようというのが、亡き夫の遺志でもありました。収益性を確保できるよう専門家の方を交えてシミュレーションしましたし、結果的に鈴森villageの差別化にもつながったと思います」(早苗さん)
賃貸募集開始から数日で、すでに20件超の問合せと数件の入居申し込みがあったそう。今回のような環境共生型住宅が適正な賃料でユーザーから選ばれるようになり、環境性能向上への投資と収益性が成り立つ事例が増えていけば、賃貸住宅の性能向上にコストをかける動きも広がるだろう。2025年4月には建築物省エネ法の改正により原則すべての新築住宅・非住宅に省エネ基準適合が義務付けられるようになる。建築物の省エネ性能表示の推進など、日本の新築市場は大きく変わることが予想される。鈴森villageは日本の賃貸住宅の環境性能向上という文脈において、けん引役の一事例となりそうだ。
【鈴森villageの概要】
所在地:埼玉県和光市本町4410-1ほか
交通:東武東上線・東京メトロ有楽町線・東京メトロ副都心線「和光市」駅徒歩5分
用途:集合住宅+テナント
戸数:住戸26+テナント4
延床面積:2,231.3m2
事業主体:株式会社鈴森
設計・監理:設計事務所スターパイロッツ
施工:株式会社相川スリーエフ
完成:2023年2月20日
賃料:17万円~21万8000円(いずれも共益費込)
■取材協力:株式会社 鈴森
■鈴森village LIFULL HOME`S掲載情報(掲載終了の可能性あり)
https://www.homes.co.jp/chintai/room/e97f770ee192086690248baf64b5624fe183e949/












