狭小住宅を「おひとりさま向け」に特化した住まいに
2020年の国勢調査によれば日本の総世帯に占める単身世帯の割合は38%。1980年時点では19.8%だったから、この40年で倍増した計算になる。かつて標準世帯と言われた夫婦と子どもの世帯は25%で、いまや標準とは言い難い。
もちろん、単身世帯のうちには高齢者世帯も少なからず含まれているが、それにしても住宅産業はファミリーばかりを対象にしていると妄想ホームズを手掛けるオルガワークス株式会社の細川裕之さん。
「"一人暮らしなら賃貸"とレッテルを貼り、しかも賃貸ならこのくらいでいいでしょとばかりに質の良くない物件も少なくありません。一人で暮らす人はいまやマイノリティではなく、マジョリティになりつつありますし、そのうちには腹をくくってずっと一人で暮らしていこうと考えている人もいます。それなのに現状では単身者向けの、高品質な一戸建ては市場ではほとんどありません。そこで、私たちの妄想を家にするMOSO HOMESでは、リノベーション住宅事業として、おひとり様向けの一戸建てを手掛けることにしました」
2022年に取得したのは大阪府八尾市の旧街道沿いの住宅街の中にある昭和47(1972)年に建てられた敷地面積57.50㎡の一戸建て。建築面積は31.92㎡。元々は夫婦と子どもの3人で暮らしていた家だが、母と息子が同時に施設と病院に入ることになり、生活保護受給のために競売にかけられた。
「その家の所有者の知り合いから競売にかかるという話を聞き、まさか買えるとは思わずに入札したところ、買えてしまいました。内覧には11社参加、そのうち、3社しか入札をしておらず、しかも、他社は建替え前提で土地値だけという感覚で入札したのでしょう、リノベーションを前提とした私たちに比べてかなり安めな金額だったので、落札できてしまったのです」
「これまでの売り方では、狭小一戸建ては売れない」
そこで細川さんは狭小一戸建ての可能性に気づく。
「リノベーション物件は人気がありますが、メインはマンション。そのため、物件が足りていない状態で中古マンションは取り合いになり、新規に参入するには難しいところがあります。また、リノベーションを手掛ける会社は在庫を抱えたがらないので購入者を決めてからリノベーションをします。なので、マンションのリノベーションでは提供する側の提案力はそれほど問われていません。
それに比べて狭小の中古一戸建ては空き家になっているものも多く、特に築40~50年といったものなら弁護士、司法書士経由などで情報は多く出てきます。しかも、価格的にも安く、仕入れやすい。手がけている事業者は少なく、競合はない。
ただ、問題はどう購入希望者を集めるか、です」
マンションならいざ知らず、狭小の古い一戸建てを見てそれがリノベーションした状況を想像できる人は少ない。さらにこれまで無かった市場でもあることから一般の会社なら集客が難しいと考え、リスクが高すぎると手を出さないだろう。
だが、細川さんはそれをチャンスと読んだ。なぜなら、オルガワークスという会社は客を呼ぶのが得意な会社だからだ。
「私たちの周りには常に変な人(もちろん、誉め言葉)がいます。そこで情報を拡散、共感を呼び、さらに変な人たちを見つけてくるのは得意とするところ。それに私たちが作ろうとしているのは奇をてらう家ではなく、潜在的な欲求を顕在させるための家。20年ほど前のデザイナーズと言われた住宅は作り手の欲から作られていましたが、私たちは住む人の欲を掘り起こそうと細かくペルソナを設定。突き詰めて考えてきました。仮に私たちが設定した人が1万人に1人いるとしたら、10万人に10人、この住宅にピンとくる人がいます。その人たちに情報を伝え、見てもらえれば売れるはずです」
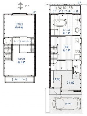
1階のほぼ半分はバスルームという大胆な間取り
妄想したペルソナは12項目ある。一人暮らしあるいは半同棲の35~45歳で大阪市内の企業に勤めているが、在宅勤務が基本。年収は600万~800万円でペットを飼っており、風呂、ドライブ、植物観賞が趣味。独身で結婚や子育ての予定や願望はなく、基本は自分だけの住まいとして購入を考えている。車はコンパクトカーあるいはコンパクトSUVを所有、収納は「隠す」より「見える化」派で、物は少なく必要なものだけを持っていたいという合理主義者であるなどなど。
妄想ホームズの企画資料にはそれ以外にも細かい人物設定、家の使い方、そこでの時間の過ごし方、置かれているものなどが書き込まれており、非常にリアル。実際、2024年3月に完成後、見学に来た一人は資料を読んで「これ、私じゃん」とつぶやいたという。細川さんが想定したペルソナは現実にいる誰かであり、あとは、そのうちの家を買いたいと切実に思っている人に巡り合えば良いということになる。
「建物竣工後、2日間、4回ほどほぼ知り合いの人達が見学に来たのですが、これが盛り上がったのなんの。普通の見学会では来てざっと見て、じゃあということでおしまいになるものですが、この家の場合は見に来た人同士が打ち解け合ってどう住むか、私ならこうするなどと意見を出し合い、まるで大喜利状態。また、住んだ後にどう住まわれているのかを見学したいという声も出ました」
では、実際のところ、どんな家なのか。
なんといっても特徴は1階の床面積の半分近くをバスルームが占めているという点。玄関を上がり、ダイニングを抜けた窓際の、サンルームに面した一番良い空間が風呂場なのである。しかも、サンルームとの間の引き戸を開け放てば半戸外のような感覚で入れる。
細川さんとしてはサンルームはもちろん、バスルームにも植物をたくさん置き、ジャングルの中で湯に浸かるような状況を妄想している。そのため、バスタブ脇に天井に向けてのアッパーライトが用意されている。ライトを点けると植物の影が天井に映り、幻想的な雰囲気になるからだ。
収納に扉はなし、物の多い人には住めない家
なんとも印象的なバスルームの手前、ダイニングはごくシンプルでコンパクトなキッチンが用意されており、収納はすべて見せるタイプになっている。
「この家は扉のある収納に物を入れてしまうと分からなくなってしまう人を対象にしているので、ダイニング以外も含め、収納部に扉はありません。扉がないとダメという人にはこの家は向いていません。
また、そもそも、収納は多くはなく、物を捨てたくない人はここには住めません。見学に来た人の中にはこの家に住むことを考えるのは物を捨てるきっかけになると言った人もいました。この家を見たことで自分が何に執着しているかが分かったともいえます。
私としてはこの家が人生の転機、覚悟を決めることに繋がる、人生をブラッシュアップしてくれるものになって欲しいと考えています」
もうひとつ、細川さんが望んでいるのは雷に打たれたような強い衝撃を受けてこの家を選んで欲しいということ。「なんとなく、これかな」ではなく、消去法で「これにするしかない」でもなく、「これだ!これしかない」という選択をして欲しいというのである。
これまで多くの人に家を買った経緯を取材してきた身としていうと、そこまでピンときて購入したという人はそれほど多くはない。だが、これしかないとまで思える住宅に巡り合えるとしたら、それは幸せ以外の何物でもないはずだ。
続いて玄関回りを見ていこう。外から見ると玄関ドアと引き戸が並んでおり、両方を開け放つと建物の前にある駐車スペースと一体に使える空間になっている。見学に来た人の中には小商いスペースとして、あるいはまちに開いた空間として使えるのではと言っていた人もいたそうだ。
開け放した内側には広い土間がある。両側には棚が用意されており、シンクもある。単純に靴などを置くのに使っても良いし、自転車やバイク、車好きなら工具を置いたり、作業スペースにするという手もある。なんなら仕事場でも良いかもしれない。
「家を売るのではなく、家と住む人をマッチングさせる」感覚
2階には紫色と緑色、2つの部屋がある。といってもどちらもそれほど濃い色ではなく、淡い落ち着いた色。奥側にある紫色の部屋は寝室を想定しており、道路側の緑色の部屋は仕事場の想定だが、もちろん、使い方はその人次第。部屋の広さ自体は紫が6畳、緑が9畳で居室としてはごく普通の広さだが、天井が高いので面積以上に広い印象がある。
面白いのは緑色の部屋にはかつての押入れ部分を思わせる木部が残されていること。柱の間にはポールが設置されているので、カーテンを掛けたり、洋服収納にしたりと使い方を考えるのも楽しい。ここをベッドにするという手もありではないかと思う。
玄関側の緑の部屋にはバルコニーがある。ここも小さなスペースなのだが、腰かけられるようになっていてちょっとしたアウトドアリビングのような雰囲気。天気の良い日ならここで読書やランチ、あるいは夜に一杯というのも良さそうだ。
現地では細川さんと部屋の使い方をあれこれ話しながら見学をさせていただいたのだが、実際に見学に訪れる人たちとも世間話をしながら案内をしていると細川さん。家を売る場合には普通、家のスペックを解説、長所をアピールするなどして気に入ってもらうようにするものだが、細川さんは時に「この家じゃないほうが良いですよ」ということすらあるという。
「家を売るというより、マッチングをしている感覚です。この家でなくてはという人が存在するはずなので、その人と出会えるようにいろいろ聞いてみていると言えば良いのかもしれません」
狭小一戸建ての空き家問題の解決策に
さて、気になるのは価格だろう。この辺りでの現在の土地価格は通り沿いで1坪(3.3m2)あたり60万円、少し入った場所で40~50万円というところ。ここは土地が17坪なのでそれだけでおおよそ1000万円ほど。
「建物に手を入れる予算を2700~2800万円ほどとして全体で3500~3600万円としたかったのですが、工事をしている間に材料その他の価格がどんどん上がってしまい、最終的には4000万円台前半になりました。もちろん、その分、断熱、耐震など古い物件の弱点にはすべて手を入れてあります」。
その金額があれば場所にもよるが大阪市内で70m2の新築マンションが買える。だが、一戸建てにはマンションにない魅力がある。この家の場合であれば車が置ける、大型の犬が買えるなどだ。
「元々は戸建てを買う想定をしていなかった人が買う想定をしています。そういう人のところにこんな戸建てがあるという情報が流れてきて、ある程度の期間住むなら郊外、戸建てもありかもと思って選択というケースです。
また、みんなのセカンドハウスとして使う、スペース貸しもできる自宅兼投資、宿としてなどといった使い方もありかもしれません」
個人的には単身用一戸建ては狭小住宅の空き家問題の解決に寄与するのではという期待を抱いている。
更地にしたところで使いようがないと放置されるコンパクトな住宅でも単身者向け一戸建てなら十分成り立ちうる。
断熱、耐震に手を入れる必要はあるが、それができれば単身者の住まいの選択肢は広がる。欲しいと思う人が増えれば市場は広がる。空き家も幸せな第二の人生を送れるはずだ。
公開日:






















