日本最古の道沿いにある、古墳の上でみかん狩り!?
「古墳の上に立つ家?! “Co-fun Laboratory 共に楽しむ!古墳上実験室”」という、なんとも惹かれるキャッチコピーがウェブサイトに踊る。奈良県天理市萱生町にある、西山塚古墳の上に建つ空き家を再活用しようとするプロジェクトだ。西山塚古墳とは、第26代継体天皇皇后の手白香皇女(推古天皇のおばあさん)のお墓と言われている前方後円墳だ。その歴史は、今から1900年ほど昔に遡るのだからすごい。
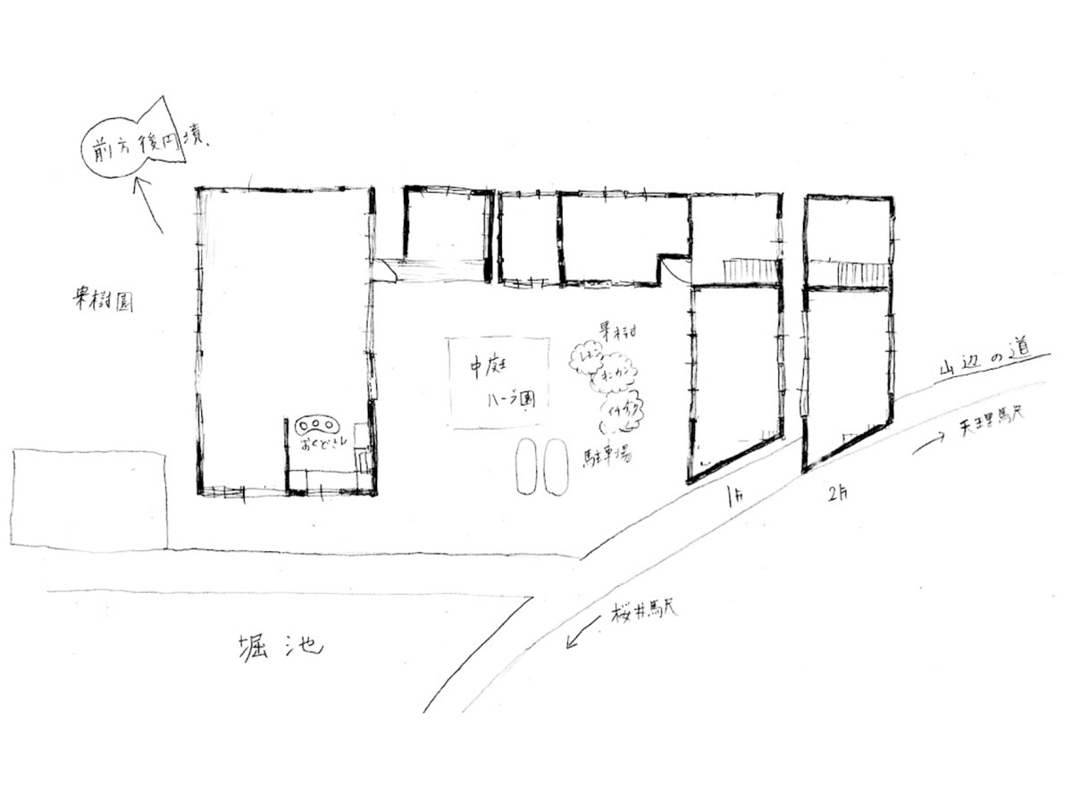
空き家は、推定築年数100年以上の茅葺古民家。母屋、離れ、倉庫3つ、蔵1つ、土蔵という7棟から成っており、庭には柿や梅、みょうがなども植わっている。古墳の頂上に登ると、名勝指定されている大和三山を見渡せる絶景の眺望が広がる。豊かに育った大きなみかんの木は、秋になると果実の収穫もできるのだそう。
また、古民家の目の前には、歴史に登場する最古の古道と呼ばれている「山の辺の道」が通っている。コロナ禍以前は、年間25万人が訪れていたという有名な観光名所だ。全長26kmのうち、なかでも桜井駅から天理駅までの約16kmがハイキングコース。奈良市内から東大寺、石神神宮を通り、三輪山の麓にある大神神社へと通じる散歩道は、歩きながら昔の面影と自然を感じることができる。
全国を旅案内する中で見つけた、この風景
空き家プロジェクトを進めているのは、今回の空き家現場から徒歩10分ほどの距離にある民泊「里山文庫」を運営しているまえだちさとさんだ。まえださんは、通訳ガイド、翻訳業も行うフリーのツアーコーディネーターという肩書きの持ち主。2015年に通訳案内士を取得し、外資系の訪日旅行会社に勤務、その際、実際に地方の農村をまわり、新規の観光プログラムを一緒に作ってきた。海外営業など旅のサプライチェーンに関わってきたのち、独立した。その他にも、オランダ農業大学に留学していた頃、農業を研究していたこともあり、植物の知識も深く、薬膳師としても活躍。そのため、里山文庫では、宿泊すると薬膳料理教室を体験できる。
まえださんが京都府から奈良県に移住したのは、2017年。同時に「里山文庫」もオープンした。(現在の場所には、2019年に引越した)。「移住の決め手は、『干し柿が作れる日当たりの良い場所、カビが生えない場所』だったこと。ツアーガイドとして、山の辺の道を案内することも多く、広葉樹が残るこの里山は理想の土地だと訪れるたびに感じていました。奈良は平地で、特にこの地域は高い建物もなく視界がひらけている。山の辺の道という、国内外の観光客にも人気のコンテンツも揃っています」とまえださんは話す。
立地を生かした、観光拠点をつくりたい
ツアーコーディネーターは、全国各地を飛び回る仕事。当初は、里山文庫も旅行事業のひとつの拠点で、まえださん自身がずっと滞在する予定ではなかった。しかし2020年のコロナ禍によって、事態が急変。民泊運営をスタートし、彼女自身もこの地に長く居住することになったのだそう。居住し始めたことで、地域の人との関係も深まるようになった。そんな中2021年秋頃、近所の人から「こんな物件があるんだけど、なんとかできないか」という相談がまえださんに転がり込んできた。それがこの西山塚古墳の上に立つ古民家だった。
最後に住まれていた方が亡くなってから、数十年空き家だったという。ひょんなことから無料で譲り受けた古民家を生かして、まえださんはこれから新しい観光拠点を作ろうと動き出している。ものがあふれていた空き家を、ボランティアを募って掃除を行い、ひとつの蔵を片付け、無人の物販ブースにしている。今後の展開についてはカフェ、サロンや店舗など、山の辺の道を歩きに来る人たちが利用できる拠点になればと考えている。共同運営メンバーを募集中だ(※2022年2月20日時点)
「山の辺の道を訪れる人たちが、立ち寄ったり、集ったり、休憩したりできる場所になればと考えています。使えるスペースが複数あるので、飲食店や物販などさまざまな業態も受け入れられます。それ以外にも、耕作放棄地になっている古墳の上を畑にしたり、グランピングにするなどの活用方法も可能かもしれません。まだまだ未知数なので、たくさんの方の協力やアイデアを募集しています」
日本の原風景を体験することの価値
まえださんは、日本の地方の風景に魅力を感じている。海外からの観光客にツアープランを企画する上でも、地方の風景が体験できるように意識して組み立てると話す。実際に、日本の地方の「普通の風景」を見たいという要望も多いのだそう。いわゆる、“なにもない”豊かな自然こそが、大切な観光資源だといえそうだ。
「この地域は、JR鉄道が近くまで通っていて交通の便もいい。暮らす上での不便はありません。その上京都のように観光地化されておらず、手付かずの自然が残っています。奈良は、自然が豊かな上に食べ物も美味しい。薬草の産地でもあり、お茶や葛、大和野菜、古くから続く日本酒や醤油蔵も多く、多様な発酵文化が根付いていることも魅力のひとつです。日本の食文化を体感してもらうフードツアーを行うにも、ぴったりの土地。今後、里山をめぐるツアーなども企画したいと考えています」
「空き家プロジェクトでは、地域に還元できるような仕組みを作りたい。地域の人にもオープンな場所にして、土地の魅力を発信していきたいです。例えば、地元の人と一緒にものづくりを体験する企画があったり、地域の農産物を使ったレストランがあったりなど、訪れる人と地域との接点になれるような場所になればうれしいです」
作られた特別な観光ではなく、地域がもともと持っている資源を体験することの豊かさが、これからの旅行に求められているのかもしれない。古墳の上で、どんなプロジェクトが進むのか楽しみだ。
▷Co-fun Laboratory
https://sites.google.com/view/co-fun-laboratory/?fbclid=IwAR3GfCBJazH_kUl0y4gIXrFMcsjlDOMAmUcHZMhnCiA3B4CDtnmyjvM-Zy8













