建築家の小松さん夫妻の自邸と友人の自邸。敷地は別々だが、境界がないように見える設計
株式会社 風景研究所を経営する建築家の小松大祐さん、大島碧さん夫妻が自宅を建てたのは北鎌倉の駅から少し歩いた路地の奥。
以前は1棟のアパートが建っていた土地が分筆されて3区画として販売されており、隣を購入したのは大島さんの同級生。妻同士が古くからの友人だったのである。たまたま、息子が同い年で仲良し、2家族とも子ども2人と共通項もあり、今では家族ぐるみで付き合いがある。
といっても最初から隣り合う土地で同時期に建てるという計画ではなかった。
「たまたま、家を建てたいと相談を受けた時点で自分たちも家を建てようと考えていました。そこで土地を探している時に出会ったのが現在の場所。両家ともに『ここはいいね』ということになり、だったら一緒に建てようかということになりました。
見た目ではひとつの敷地に2戸が建っているように見えますが、敷地自体は我が家が全体の3分の2、お隣が3分の1で分かれています。ですが、境界が意識できないように設計、中庭部分、隣家の庭に面したステージのようなバルコニー部分は共同で使い、両家を自由に行き来しています」と小松さん。
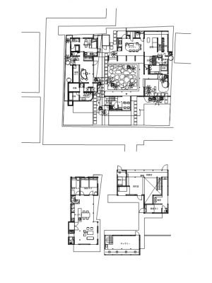
実際にお邪魔してみると小松さん宅が変形のコの字型に中庭を囲むように建っており、友人宅がコの字の空いた部分を塞ぐ形。結果、2棟の建物はところどころに通路のあるロの字型になっており、中央に広い中庭が配されている。
「ここの敷地は建ぺい率が60%で、土地の部分のうち40%という多くの部分が建物では使えない部分になります。そうした建ぺい率から外れた部分を共有し、ひとまとまりの大きな中庭として計画することで、1軒だけで建てた場合には使えなかった土地をうまく活かせたと考えています」
2つの家は付かず離れずの距離をデザイン、隣り合う暮らしで子育てが楽に
といっても距離感は互いに気になる。そこで両家のリビングは直角に配されており、外に目をやっても互いに目が合うことはないようになっている。加えて小松さんの家のリビングは1階に、お隣は2階にあるので、その点でも視線は交差しない。
もうひとつ、小松さんの家のバルコニーには奥行きの深い柱が4本配されており、リビングからお隣に目を向けても、あるいはお隣から小松さん宅に目を向けても見えないようになっている。光は漏れるので存在は分かるが、互いが気になることはない。付かず離れずの距離感をデザインで生み出しているというわけだ。
一方、2軒の家の共通のデザインはぐるりと回した庇。異なる外装ながら同じ空気感があるのはそのデザインに加え、どちらにもシンプルで端正な美しさがあるからだろう。
建物は距離感を意識して建てられているものの、日常の生活では両家はよく一緒にいる。
「週末にはどちらかの家で夕飯を共にすることも多く、子どももずっとどちらかの家にいて、ずっと遊んでいます。引っ越してきてまだ半年というのに、日曜日の朝起きてみたら、ヨソの家の子ども達やお隣のお客さんが、うちの子ども達と中庭で遊んでいたり。
ここに住んでみて家族って何だろうと考えるようになりました。夫婦ももともと他人同士ですが、一緒に暮らして家族になる。隣り合う家族も他人ですが、こうして一緒に暮らしていると血がつながっていることだけをよりどころとする、これまでとは違う新しい家族の在り方があるのではないかと考えます」
小松さんがそう感じるのは共働きで子育て真っただ中の時期にいることが大きい。
「東京に住んでいる時には次の休みに子どもたちをどこに連れて行ったらいいか、それを考えると平日より休日のほうが大変だなと思うことが多かったような気がします」
ところが、この家に引越してその苦痛がなくなった。
なんとなく顔見知り、ご近所コミュニティで子育て
違う仕事、生活をしている2家族が隣り合って住んでいるので、何かあった時に助け合えるのだ。どうしても子どもと過ごせないときは、お互いにフォローしあえる。
「都会で、横の繋がりが無い子育て世帯はどう暮らすかで悩んでいると思います。今の時代、私たちの親世代もみんな現役で働いていて、多くを頼ることはできません。いままでの家族の枠組みを超えて、みんなで子育てを共有、助け合うことが必要なのではないかと。そうでなければ共働きはやっていけません」。
現在の暮らしはまさにその実践。小松さんは建築家が子育て世帯の住宅づくりに関わることで子育ての大変さを軽減することができるのではないかと考えている。言ってみれば戸建てのコーポラティブのような暮らしだ。
コーポラティブハウスとは家を建てたい人が集まって土地を購入、そこに自分たちで家を建てるというもの(実際には事業者などによってやり方は異なる)だが、集合住宅だと建物の維持管理は全員で取り組むことになる。また、土地を定借にした場合などローンが借りにくかったり、売りにくかったりという問題があり得る。
それを戸建てにして、それぞれに土地を購入して建てることにすれば、実際に境界線はあったとしても生活の中には出てこず、豊かな共有スペースと助け合う人間関係を得られることになる。建物の管理はそれぞれが行うので、利害関係は生じにくい。小松さん宅の豊かな空間を見ていると隣り合う2人でこれなら何人かで集まってそれぞれの土地を少しずつ出し合って共有部を作ればより豊かな空間と人間関係が手に入るのではないかと思ってしまう。
「顔見知りでなんとなく助け合えるようなコミュニティ、村のようなものが作れたら、共働き、子育て世帯は生きやすくなるのではないかと思っています」
北鎌倉という土地を意識、借景を生かした住宅に
住宅そのものをご紹介していこう。意識したのは北鎌倉という土地。
「この地域には借地も多く、誰のものか分からない場所がたくさんあります。パブリックとプライベートが曖昧というか、山道を登っていくといきなり寺の境内に出るなど連続する空間なのに急に景色が変わる。その回遊性、変化が魅力のひとつ。この家でも周囲のそうした風景を取り込んでいます」。
たとえばと見せていただいたのは洗面所。リビングとの間の扉を開けると正面の窓の向こうに裏手にある住戸の敷地内の道がまっすぐ伸びていて、陳腐な言い方ながらまるで一幅の絵のよう。知らないで扉を開けたら息を呑むはずだ。
また、リビングの窓からはやはり裏手のお宅の梅の木がちょうどいいバランスで望める。そして望めながらも窓の高さは裏のお宅との間で視線が交差しないような絶妙な位置。住戸内のその他の窓も緑や空は望め、日光は取り込むものの、周囲とは目が合わない場所に作られており、隅々まで配慮が行き届いていることが感じられる。
LDKではシンクが組み込まれた大きなダイニングテーブルに目が釘付けになった。テーブルの下は収納になっており、実に使いやすそうなのである。私だけでなく、訪れる人たちのうちにはこのテーブルがいい、欲しいという人が多いのだとか。
「調理スペースとダイニングが一体になったキッチンなので、料理をしながら話に加われます。テーブルを使ってみんなで作業することもでき、年末にここで蕎麦打ちをしたら、これが美味しくて。食や料理をきっかけにまちの人と関わりながら、こういう住み方もあるよということを伝えられたらとも考えています」
世の中にはさまざまな暮らし方があり、家があり、自由に選べる時代になっているはずだが、住宅に関しては固定概念が強い気がすると小松さん。「住宅によって住む人の人生が変わる、もっと自由な選択肢があるということを伝えたい。そのためには雑誌やWebで見ることよりリアルに体験することが大事だと思うので、ここがその体験の場になればと考えています」
回遊できる、無駄のない動線、可変性のある行きどまりのない空間
使い勝手でもうひとつ、「これは!」と声を上げてしまったのは洗面所、風呂、シャワーブースと洗濯室が一続きになっていて回遊できるという点。動線に無駄がなく、入浴、シャワーを浴びることと洗濯物を洗濯機に放り込むことが一度にできるのである。しかも、洗濯室から出てくると廊下を挟んでクロゼットが続いている。身支度までが一ケ所でできるのである。
お風呂は檜。施工に当たった大工さんに勧められたもので、水垢が付着しないので手入れが楽なのだとか。ただし、浴室乾燥機を入れると木が乾燥して割れてしまうのでシャワーブースは別に作った。浴槽の向こうには庭があり、こちらもかなり羨ましい空間だった。
リビングの階段を上がると正面には壁際の書棚が並び、右手に向かうと夫婦の寝室、ワークスペースがあり、左手には子ども空間。現時点では仕切られておらず、必要になったら部屋にする予定。書棚は仕事スペースとしても使えるようになっている。
子ども空間からは空中廊下を渡って敷地入口にある別棟に行くこともできる。住戸全体として行き止まりがない構成になっており、それが住戸を実際以上に広く見せていると小松さん。
もうひとつ、広く感じる要因に部屋、空間が完全に仕切られていないという点もある。子ども空間とリビングの間には床に、壁にすき間があり、誰がどこにいるのかがなんとなく見える、感じられるようになっているのである。
ここで壁に穿たれている窓は鎌倉のあちこちで見られるやぐらをイメージしたもの。やぐらとは切り立った岩肌に掘られた洞穴のことで、平地が少なかった鎌倉で作られた中世の墓所である。土地へのリスペクトが散りばめられた家というわけだ。
路地と家の間にはギャラリー的な空間
壁で仕切られていない家と考えると不思議なのは家全体が暖かったこと。取材でお邪魔したのは2月の雨の日で、びしょ濡れで凍えて辿り着いた。
「断熱材を一番良いものにしてあります。断熱材を良いものにしても1軒で10万円ほど高くなるくらい。大工の手間代などは変わりません。そう考えるとエアコンを増やすより、断熱材を良くするほうが経済的にも環境的にもエコなことだと思います」。
仕切られていないという点で心配になったのは2階の廊下部分に手すりや柵のようなものがないこと。子どもの落下を懸念するのが一般的だが、大丈夫なのだろうか。
「自分の家なので、まずは建築としてきれいな空間をつくろうと。もし危険だったら手すりと後付けしようと考えていました。いざ生活してみると子どもはちゃんと危険を察知していて、案外落ちないし、危険なことに近づかないというのは大事な感覚だと感じています。それよりも酔っぱらった大人が落ちるほうが先かもしれません」
最後に住宅と少し離れ、現在はギャラリーとして使われている空間をご紹介しよう。この部分は路地の正面に向かいあうように建てられており、取材時は1階に受付があり、2階では地元在住のカメラマン升本尚希さんの写真と地元の生花店とのコラボレーションによる展示が行われていた。
「社名を風景研究所としているように建築だけではなく、建築やアート、植物も含めて場づくりを通して風景をつくることを目指しています」。
ギャラリーとなっている建物は路地と住戸との間にあり、2階からは路地の入口が見渡せる。逆に路地に入ってくる人にはギャラリーが正面に見え、引き戸が開いている時には中庭の先、小松さん宅のリビングまで見えることになる。一方で引き戸を閉めてしまうと路地からの視線はそこに留まる。ギャラリーの扉の開閉で家の開く、閉じるができるようになっているのである。
「キッチンを開くという話をしていましたが、いつも開いていたいわけではなく、閉めたい時にはここで調節できるようになっています」。
ギャラリーという外に開く空間があるからだろうか、周囲から一緒に何かイベントをやりませんかと声をかけられることもあるという。
「この地域にはスキルを持って活動している方も多く、また、最近は文化的に関心を持って引っ越してきている人も増えています。実験的なことが受け入れられやすい素地があると感じており、地域の人といろいろやっていければと思っています」。
路地の奥の一軒からさまざまな活動が始まる楽しい未来を期待したい。
公開日:



















