上野毛リッツハウスB館 1階

この物件を何度も見ています
中古マンション上野毛リッツハウスB館 1階1LDK / 4,580万円
かんたん1分
クイック問合せ(無料)
お問合せ先
株式会社ツクルバ
- 営業時間
- 10:00 〜 19:00
- 定休日
- 毎週火曜日・水曜日【年末年始休暇:12月28日ー1月4日】
物件を保存・共有する
LINEで共有
URLをコピー
物件情報ページのQRコード
QRコードを読み取ると、物件情報ページが開きます
お問合せの注意事項
- ※お客様の電話番号は不動産会社に通知されません
- ※光IP電話、及びIP電話からはご利用になれません
- ※お電話によるお問合せは、店舗営業時間内にお願いします
- ※不動産会社がお電話に出られなかった場合、お問合せいただいた後に不動産会社より折り返しのお電話がある場合がございます(電話会社が提供するサービスを介して折り返しお電話をするため、この場合においてもお客様の電話番号は不動産会社に通知されません。)
- ※携帯電話からお問合せいただいた方には、電話会社が提供するメッセージサービスを介してショートメッセージ(SMS)またはLINE通知メッセージによるお問合せ内容に関する通知をお届けする場合があります
- ※お客様が通話中に不動産会社にお伝えになったお客様の個人情報及び、電話会社が発番する折り返し専用の電話番号は、お問合せ先不動産会社が資料送付・電子メール送信・電話連絡などの目的で保管する可能性があります。お問合せ先不動産会社が保管する個人情報の取扱いについては、各不動産会社に直接お問合せください
- ※株式会社LIFULLでは本サービスを円滑に運用するために、お客様の発信者番号をサービスご利用の控えとして一定期間保管いたします
- ※上記および株式会社LIFULLの個人情報の取扱い方針に同意のうえ、お問合せください
- ※不動産会社の方からの上記電話番号によるお問合せはお断りしております
- ※各種情報と現状に差異がある場合は、現状優先となります
- ※不動産会社が入力した情報を基に物件付近の地図を表示しており、物件の所在地を示したものではありません。詳しくは不動産会社までお問合せください
- ※QRコードは株式会社デンソーウェーブの登録商標です
ご意見をお寄せください
サイトへのリクエスト・ご意見
みなさまからのリクエストやご意見を参考に、サイト改善に取り組んでいます。
物件情報に誤りがある場合
LIFULL HOME'Sは物件鮮度No.1を目指していきます。お気づきの点がございましたら、ご連絡ください。
画像一覧
全19枚
全19枚
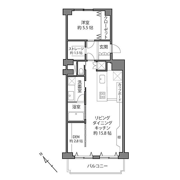
間取り

1/1
- 間取り
内観

1/6
- リビング/ダイニング
- リビング/LDKの広さは約15.8帖。半個室のDENとゆるやかにつながっており、開放的な印象です。

2/6
- リビング/ダイニング
- リビング/正面の壁には、ズラリと造作棚を完備。テレビボードとして使用可能です。

3/6
- リビング/ダイニング
- リビング/窓にはシェードとして使える、ルーバーの引き戸付き。視線と共に光をカットできるので、また違った表情を楽しめます。

4/6
- リビング/ダイニング
- リビング

5/6
- リビング/ダイニング
- リビング

6/6
- 玄関
- 玄関/クールなモルタルと、温かみのある木材や塗装壁。扉はブラック塗装でキリッと。
外観

1/2
- 外観
- 1977年竣工、全4棟からなる総戸数86戸の低層マンションです。共用部は清潔に保たれており、丁寧にお手入れされている様子がうかがえます。

2/2
- バルコニー
- バルコニー
設備

1/5
- キッチン
- キッチン/作業スペースが広々とした、料理が捗りそうなキッチン。4口コンロやカップボードが備わっているなど、設備も充実しています。

2/5
- キッチン
- キッチン/内側にもしっかりと収納を完備。キッチンスペースにはわずかな段があり、ゆるやかにゾーニングされています。

3/5
- 浴室
- 浴室・洗面所/広々としているだけでなく、ガラス張り&ガラスブロックのおかげでとっても開放的です。

4/5
- トイレ
- トイレ/タンクレスで端正に。壁には消臭性能に優れたエコカラットが用いられています。

5/5
- 収納
- 収納/アーチ開口の先には、コの字型の下足棚があります。
その他

1/5
- その他
- DEN/二人並んでデスクとして使える、ワイドカウンター付き。下部にコンセント、天板にはケーブル用の穴が空いている、隙のない設えです。

2/5
- その他
- 約5.5畳洋室/折れ戸4枚分の大容量クローゼット付き。北東向きの腰高窓は、プライバシーの観点から磨りガラスになっています。

3/5
- その他
- 眺望/住戸は1階に所在。数段の階段を上るぶん、道路よりは少しだけ目線が高めです。

4/5
- その他
- 約5.5畳洋室

5/5
- その他
- バルコニー


