デ・リード今出川通 6階

この物件を何度も見ています
中古マンションデ・リード今出川通 6階3LDK / 2,880万円
リビング
和室6畳
建物外観
エントランス
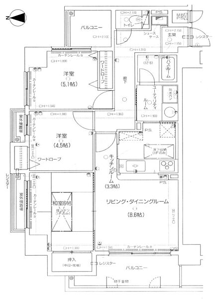
間取図
和室6畳
キッチン
浴室
洗面

この物件が気になりましたか?
電話でお問合せ【通話無料】
2,880万円
試算の内訳
6.9万円/月
1万円/月
13,100円/月
10,070円/月
- ※支払い目安/月は、都市銀行変動金利下限金利の平均値を金利に設定し試算したものです
- ※都市銀行:りそな銀行、三井住友銀行、三菱UFJ銀行、みずほ銀行とする
3LDK/63.72㎡(壁心)
京都市営烏丸線 今出川駅 バス5分 徒歩1分
- 京福電気鉄道北野線 北野白梅町駅 徒歩17分
- 市バス 千本今出川停 徒歩1分
電話でお問合せ【通話無料】
0037-633-81518 無料
お問合せ番号(6桁):896857
QRコードを読み込むとすぐに電話できます
問合せ先:京都相互住宅株式会社
ポイント
三方空き、採光は良好、オートロック、対面式キッチン
Pick up
間取り
3LDK
3LDK
3D間取り

生活動線や広さを体感し、暮らしのイメージが広がりやすくなります。
電話でお問合せ【通話無料】
0037-633-81518 無料
お問合せ番号(6桁):896857
QRコードを読み込むとすぐに電話できます
内観外観
内観・外観画像
- リビング/ダイニング
- 室内
- 外観
- 外観
- 和室
この物件が気になったら
お問合せ方法
不動産会社へのお問合せは、下記の3種類からお選びいただけます。
※不動産会社へのお問合せには料金は発生しません
物件に関して気になっていることを相談できます
不動産会社からメールで連絡がありますので、内見の相談をメール上で行うことも可能です。
内見したい日時が決まっている方
不動産会社から折り返し連絡がありますので、日程調整を行ってください。
物件の空き状況など今すぐ確認できます
直接お話しを聞きたい場合は電話でのお問合せも可能です。営業時間を確認の上、電話をおかけください。
電話でお問合せ【通話無料】
0037-633-81518 無料
お問合せ番号(6桁):896857
QRコードを読み込むとすぐに電話できます
設備
設備画像
設備情報
キッチン
- システムキッチン
- カウンターキッチン
収納
- 全居室収納
室内
- バルコニー
建物
- エレベーター
セキュリティ
- オートロック
インフラ
- 公営水道
- 都市ガス
- 下水
設備について、不動産会社に質問
お問合せ方法
不動産会社へのお問合せは、下記の3種類からお選びいただけます。
※不動産会社へのお問合せには料金は発生しません
物件に関して気になっていることを相談できます
不動産会社からメールで連絡がありますので、内見の相談をメール上で行うことも可能です。
内見したい日時が決まっている方
不動産会社から折り返し連絡がありますので、日程調整を行ってください。
物件の空き状況など今すぐ確認できます
直接お話しを聞きたい場合は電話でのお問合せも可能です。営業時間を確認の上、電話をおかけください。
電話でお問合せ【通話無料】
0037-633-81518 無料
お問合せ番号(6桁):896857
QRコードを読み込むとすぐに電話できます
周辺環境
周辺情報
学校
- 京都市立乾隆小学校(592m)
- 京都市立嘉楽中学校(352m)
買い物
- コンビニ(136m)
- スーパー(410m)
- ドラッグストア(279m)
その他施設
- 総合病院(820m)
- 銀行(164m)
周辺地図
京都府京都市上京区般舟院前町151-2
ハザード情報
周辺駅の口コミ
今出川
いいね度:
医院、病院、スーパー、コンビニ、レストランなど、生活に必要な物が充実し、地下鉄やバスなどの交通機関も網羅され、散歩に適した自然もある。老後の生活において、車を使わずに過ごせる生活スタイルが整っている。 (60代女性)
いいね度:
スーパーが徒歩範囲に何件かあるので、チラシを見ながら特売品を買えるのが便利なこと。バスで繁華街まで一本で行けること。治安面で特に不安な思いをしたことがない(現時点では)など。 (30代女性)
いいね度:
買い物や病院が近所にあり、生活に便利。地下鉄やバスセンターもあり、交通の便が良い。美容院やジムも近所にある。 (50代女性)
北野白梅町
いいね度:
これまで犯罪が起こったことを聞いたことがなく、国宝や重要文化財も豊富にあり、四季折々の美しい景色を“見ようと思えば”すぐに見に行ける。町のイベント、寺社の法要・祭事も多い。何代も続く老舗も多い。 (40代女性)
いいね度:
マンションの真ん前にさくらで有名な平野神社があり、すぐそばに北野天満宮がある、とても素敵な立地に住めている。 (50代女性)
いいね度:
長年住んでいるので慣れている所もあるとは思うが、環境的に街中よりは自然が多いので落ち着く。 (50代女性)
口コミ情報は、LIFULL HOME’Sが18歳〜69歳の男女を対象にWEBアンケートを実施し、独自に集計しています。内容には回答者の主観的な表現が含まれる場合があるほか、事実と異なる場合もございます。ご了承ください
物件概要
| 価格 | 2,880万円 支払い目安:10.2万円/月 ※LIFULL HOME’S試算 |
|---|---|
| 管理費等 | 13,100円 |
| 修繕積立金 | 10,070円 |
| 間取り | 3LDK |
| 専有面積 | 63.72㎡(壁心) |
| バルコニー面積 | 9.79㎡ |
| 駐車場 | 無 |
| 築年月 | 1995年11月(築31年) |
| 所在地 | 京都府京都市上京区般舟院前町151-2 |
| 交通 |
|
| 所在階 / 階数 | 6階 / 11階建 |
| 建物構造 | RC(鉄筋コンクリート) |
| 土地権利 | 所有権 |
| 管理 | 管理員:日勤、管理形態:全部委託 |
| 現況 | 居住中 ご希望のお日にちなど、お気軽にお問合せください |
| 引渡し | 相談 |
| 取引態様 | 専属専任媒介 |
| 備考 | 土地権利は所有権・一部賃借権 |
| LIFULL HOME'S 物件番号 | 0126425-0000098 |
情報公開日:2025/10/27
最新情報提供日:2025/12/25
情報有効期限:2026/01/08
この物件について問合せませんか?
会社情報

京都相互住宅株式会社
| 交通 |
|
|---|---|
| 営業時間 | 09:00 〜 18:00 |
| 定休日 | 毎週水曜日 第3木曜日 |
| 免許番号 | 京都府知事(12)第5247号 |
優良店認定について
より安心で快適な住まい探しをしていただけるように、LIFULL HOME'S加盟店に対して独自調査を実施。一定の基準をクリアしている店舗を「優良店」に認定する制度です。
この会社に相談しませんか?
プロの意見がもらえる
資金計画や条件整理のアドバイスがもらえます
最新情報が手に入る
物件や周辺エリアの最新の詳細情報を知ることができます
具体的な検討ができる
購入シミュレーションや住宅ローンの仮審査などの相談も可能です
電話でお問合せ【通話無料】
0037-633-81518 無料
お問合せ番号(6桁):896857
QRコードを読み込むとすぐに電話できます
支払い目安
月々支払額
-
万円/月
支払いの内訳
元金(住宅ローン)
- -万円/月
金利(住宅ローン)
- -万円/月
管理費等・修繕積立金
- -万円/月
算出の内訳
- 価格
- 2,880万円
- 管理費等
- 13,100円/月
- 修繕積立金
- 10,070円/月
金利について
金利は借入額に応じて支払う利息の割合で、低いほど返済額が少なくなります。
変動金利は固定金利より金利が低い傾向にありますが、金利見直しのタイミングで上昇する可能性もあります。
都市銀行の参考値
- 変動
- 0.640%~0.925%
- 10年固定
- 2.260%~3.100%
- 全期間固定
- 1.380%~2.890%
- ※5.0%以内で設定してください
- ※月々支払額算出用の初期値は都市銀行変動金利下限金利の平均値を設定しています
- ※参考値に記載の金利は「融資利率の下限金利」のレンジを表示しています
- ※都市銀行:りそな銀行、三井住友銀行、三菱UFJ銀行、みずほ銀行とする
- ※金利タイプについてはこちら
返済期間について
返済期間を短く設定すると利息の支払いを少なく抑えられますが、毎月の返済額は多くなります。返済可能な額を念頭に、収入が得られる期間までに完済できるように検討するといいでしょう。
一般的には35年以内で完済する人が多いようです。
- ※50年以内で設定してください
- ※初期値は35年を設定しています
頭金について
住宅購入金額のうち、現金で支払う金額が頭金です。一般的には物件価格の20%程度価格が必要といわれていますが、頭金なしで融資可能な金融機関もあります。頭金を多く用意することで借入額を減らすことができますが、将来のライフイベントも考慮して手元に資金をいくら残すかを検討してみましょう。
- ※価格の50%以内で設定してください
ボーナス返済について
毎月の返済額に加えて、ボーナス月には指定した金額を返済します。金融機関によって異なりますが、契約額の40~50%をボーナス返済にすることが可能です。 住宅ローンの返済は長期にわたるため、今後、ボーナスの減額や転職の予定がある場合は、ボーナス返済を設定しない、もしくは金額を少なくするほうがいいでしょう。
- ※年間返済額の50%以内で設定してください
- ※年2回(お客様が入力した金額×2回)として計算しています
予算条件を入力
このシミュレーションは、LIFULL HOME'Sで試算した概算です。参考情報としてご活用ください。
- ご利用にあたって
- ※このシミュレーションは、LIFULL HOME'Sで試算した概算であるため、月々支払額の目安の正確性・妥当性や借り入れを保証するものではありません。参考情報としてお客様にご活用いただくものです。また、お借り入れを保証するものではありません。 実際の購入・借入にあたっては、金融機関でご確認ください
- ※初期値として入力されている金利は、2025年12月01日時点での都市銀行変動金利下限金利の平均値です
- ※変動金利は一般的に年2回金利が見直され、返済額の変更は5年ごとに行われます
- ※物件によっては、借地料(地代)や設備利用料、セキュリティー費用などが別途かかる場合がございます。詳細は不動産会社にご確認ください
- ※金利は住宅ローン申込時ではなく、金融機関からの資金受取時点における金利が適用されます
- ※住宅ローン契約の際には、諸費用が別途かかります(手数料や印紙税、保証料など)。適正予算チェックの購入希望予算・購入上限予算では一律7%を諸費用として算出しています
- ※月々支払額の目安は「万円」単位で、(管理費等・修繕積立金は合算後)100円台を切り上げた上で小数点第一位までを表示しています
- ※実際の金利などの詳細は、金融機関にご確認ください
- ※当社は、お客様のLIFULL HOME'Sの閲覧履歴(閲覧物件・お気に入り物件・検索条件・問合せ件数・訪問時間帯等をいい、以下閲覧履歴情報といいます)を取得保有しております。今回ご入力いただいた内容とお客様の閲覧履歴情報を紐づけて、以下の目的で利用いたします。・お客様に有益と思われるご提案・情報のご提供をするための分析・情報配信・その他当社の個人情報の取扱い方針に記載する利用目的
- ※また、ご入力いただいた内容は以下の利用目的のため、お客様がLIFULL HOME'Sを通じて過去および将来お問合せされる不動産会社に提供させて頂くことがあります。・お問合せ先不動産会社から、お客様に有益と思われるご提案または情報をご提供するため
- ※当社における個人情報の取扱い詳細については、当社の個人情報の取扱い方針をご参照ください
ローン・購入について、不動産会社に相談
お問合せ方法
不動産会社へのお問合せは、下記の3種類からお選びいただけます。
※不動産会社へのお問合せには料金は発生しません
物件に関して気になっていることを相談できます
不動産会社からメールで連絡がありますので、内見の相談をメール上で行うことも可能です。
内見したい日時が決まっている方
不動産会社から折り返し連絡がありますので、日程調整を行ってください。
物件の空き状況など今すぐ確認できます
直接お話しを聞きたい場合は電話でのお問合せも可能です。営業時間を確認の上、電話をおかけください。
電話でお問合せ【通話無料】
0037-633-81518 無料
お問合せ番号(6桁):896857
QRコードを読み込むとすぐに電話できます
お問合せ(無料)
0037-633-81518 無料
お問合せ番号(6桁):896857
QRコードを読み込むとすぐに電話できます
お問合せの前に確認!
問合せ先:京都相互住宅株式会社
かんたん1分
クイック問合せ(無料)
お問合せ先
京都相互住宅株式会社
- 営業時間
- 09:00 〜 18:00
- 定休日
- 毎週水曜日 第3木曜日
物件を保存・共有する
LINEで共有
URLをコピー
物件情報ページのQRコード
QRコードを読み取ると、物件情報ページが開きます
お問合せの注意事項
- ※お客様の電話番号は不動産会社に通知されません
- ※光IP電話、及びIP電話からはご利用になれません
- ※お電話によるお問合せは、店舗営業時間内にお願いします
- ※不動産会社がお電話に出られなかった場合、お問合せいただいた後に不動産会社より折り返しのお電話がある場合がございます(電話会社が提供するサービスを介して折り返しお電話をするため、この場合においてもお客様の電話番号は不動産会社に通知されません。)
- ※携帯電話からお問合せいただいた方には、電話会社が提供するメッセージサービスを介してショートメッセージ(SMS)またはLINE通知メッセージによるお問合せ内容に関する通知をお届けする場合があります
- ※お客様が通話中に不動産会社にお伝えになったお客様の個人情報及び、電話会社が発番する折り返し専用の電話番号は、お問合せ先不動産会社が資料送付・電子メール送信・電話連絡などの目的で保管する可能性があります。お問合せ先不動産会社が保管する個人情報の取扱いについては、各不動産会社に直接お問合せください
- ※株式会社LIFULLでは本サービスを円滑に運用するために、お客様の発信者番号をサービスご利用の控えとして一定期間保管いたします
- ※上記および株式会社LIFULLの個人情報の取扱い方針に同意のうえ、お問合せください
- ※不動産会社の方からの上記電話番号によるお問合せはお断りしております
- ※各種情報と現状に差異がある場合は、現状優先となります
- ※不動産会社が入力した情報を基に物件付近の地図を表示しており、物件の所在地を示したものではありません。詳しくは不動産会社までお問合せください
- ※QRコードは株式会社デンソーウェーブの登録商標です
ご意見をお寄せください
サイトへのリクエスト・ご意見
みなさまからのリクエストやご意見を参考に、サイト改善に取り組んでいます。
物件情報に誤りがある場合
LIFULL HOME'Sは物件鮮度No.1を目指していきます。お気づきの点がございましたら、ご連絡ください。
LIFULL HOME'S 地図・周辺情報
「周辺施設・災害リスク」を表示するには縮尺を変える必要があります。
この物件周辺の施設一覧
買い物:日用品
- セブンイレブン 京都西陣郵便局店
- ドラッグユタカ西陣店
- シルク千本寺之内店
- コレモ千本中立売店
- 業務スーパー 西陣店
買い物:大型店
- ホームセンターコーナン 西陣上七軒店
- ジョーシン 北野白梅町イズミヤ店
- ユニクロ 西陣店
- ディオハウス 西ノ京店
- エディオン 円町店
グルメ
- 無添くら寿司 西陣店
- 餃子の王将 中立売店
- すき家 千本中立売店
- マクドナルド 千本中立売店
- 天下一品白梅町店
娯楽施設
- TOHOシネマズ二条
- 京都ちりんちりん
- 船岡山公園
- サープラ京都あそびタウン
- 島津アリーナ京都
公園
- 大宮交通公園
文化施設
- 西陣織国際美術館
- 京都市考古資料館
- 茶道資料館
- 樂美術館
- 京菓子資料館
役所・公共施設
- 京都市上京区役所
- 京都府上京警察署
- 西陣郵便局
- 京都市北図書館
- 京都市北区役所
医療
- 社会福祉法人京都社会事業財団西陣病院
- 医療法人相馬病院
- 社会医療法人西陣健康会堀川病院
- 社会福祉法人聖ヨゼフ会聖ヨゼフ医療福祉センター
- 医療法人愛寿会同仁病院
保育施設
- 浄福寺幼稚園
- 北野保育園
- 京都市立乾隆幼稚園
- 第二せいしん幼児園
- 京都市立翔鸞幼稚園
学校
- 京都市立西陣中央小学校
- 京都市立嘉楽中学校
- 私立京都美山高校
- 私立同志社大学新町キャンパス
- 京都市立乾隆小学校
- 周辺施設について
- 周辺施設は、参考情報としてのみご利用ください(周辺施設は、株式会社LIFULLが地図情報の提供事業者から提供を受けた情報とLIFULL HOME’Sの物件情報に基づき、独自の方法で抽出し提供しているものです。周辺施設は、移転や閉鎖等により情報が最新ではない、または正しくない場合がありますが、地図情報の提供事業者から提供された情報をそのまま周辺施設として表示しているため、正確かつ最新の情報へ修正することができないことがあります。)
- 周辺施設は、株式会社LIFULLが掲載するものであり、不動産物件情報を掲載している不動産会社が掲載するものではありません
- 避難所以外の周辺情報は2023年7月21日時点のものになります
- 避難所について
- データ出典:国土交通省 国土政策局 国土数値情報 「国土数値情報 避難施設データ」(平成24年度)をもとに株式会社LIFULLが編集・加工
- 開設が必要な施設もあります。避難の際や、最新の情報は自治体へご確認ください。
- 本データは、原則として地方公共団体の地域防災計画に記載された避難所リストを参考にしています。ただし、地方公共団体によっては、他の情報源から整備しているものもあり、地方公共団体ごとの避難施設データの整備基準が異なりますので、注意ください。
- 本データの利用により、ご利用者様又は第三者に生じた損害については、ご利用者様がその責任を負うものとし、当社および出典元である国土交通省国土情報課、各データの原典作成者は一切責任を負いません。
- 学区について
- 学区情報は参考情報としてお客様にご活用いただくものです。
- 学区情報の正確性、完全性、最新性などについて、保証いたしかねます。
- ご判断については、各自治体の教育委員会にもご確認されるなどされたうえで、お客様自身のご責任で行ってください。
- お客様は、自己の責任に基づき本サービスを利用するものとし、事由の如何を問わず、株式会社LIFULL、物件を掲載している不動産会社、データ提供元は一切責任を負いません。
- 本サービスは予告なく終了する場合があります。
- 本データは、合同会社ジオ・ケイが提供する学校区データベース小学校・中学校【2020年度版】を株式会社LIFULLが加工のうえ、表示したものです。
- 学区は随時見直しの対象となり、最新のデータは各自治体の教育委員会が保有しています。
この物件は、最大浸水深が指定されていないエリアにあります。
この物件は、最大浸水深が50cm未満のエリアにあります。
この物件は、最大浸水深が1m未満のエリアにあります。
この物件は、最大浸水深が2m未満のエリアにあります。
この物件は、最大浸水深が5m未満のエリアにあります。
この物件は、最大浸水深が5m以上のエリアにあります。
指定されていないエリアです。しかし、この災害リスクは76mメッシュで評価したものでピンポイントで安全性を見るものではありません。必ず現地では物件周辺をチェックし周囲との高低差を確認しましょう。
浸水深が50cm未満の場合には1階の床下浸水の可能性があります。2階以上の場合自宅が浸水しなかったとしても半地下、地下に配された駐車場や電気設備、受水槽、エレベーターピット、消火設備などに影響することもあり得るので建物、管理体制にどのような対策があるのかなどを確認してみましょう。
浸水深が50cm以上、一戸建てでいえば床上浸水レベルの浸水が予測され、マンションでも1階が床上浸水する恐れがあり、2mとなると1階軒下まで水がくると考えられます。2階以上の場合自宅が浸水しなかったとしても地下にある電気設備や受水槽、エレベーターピット等が浸水してしまうとエレベーターが使えない、水が出ない、トイレが流せないなど、生活に不便が生じることが想像できます。建物、管理でそれぞれに保険なども含め、どのような対策が講じられているかを確認することが大事です。
浸水深が2mとなると一般的な一戸建ての場合で1階部分まで、5mとなると2階部分まで水がくると考えられます。マンションの2階以上でも浸水深が深く、水が引くのに時間を要することも想定されるため長期間生活に不便が生じることが考えられます。建物、管理管理体制にどのような対策がされているか確認するだけではなく、事前に避難できる場所をあらかじめ確保しておくことも大事です。
この物件は、土砂災害警戒区域に指定されていないエリアにあります。
この物件は、土砂災害警戒区域に指定されているエリアにある可能性があります。
この物件は、土砂災害特別警戒区域に指定されているエリアにある可能性があります。
指定されていないエリアです。しかし、この災害リスクは250mメッシュで評価したものでピンポイントで安全性を見るものではありません。土砂災害警戒区域・土砂災害特別警戒区域内に立地する建物については、不動産取引での説明が義務付けられています。物件が該当するかは、不動産会社にお問い合わせください。
各都道府県が調査・区域指定をしている土砂災害が発生した場合に、住民に危害が生ずるおそれがあると認められる区域です。この災害リスクは250mメッシュで評価したもので、実際とは異なる可能性があります。土砂災害警戒区域・土砂災害特別警戒区域内に立地する建物については、不動産取引での説明が義務付けられています。物件が該当するかは、不動産会社にお問い合わせください。
この物件は、液状化リスクが不明なエリアにあります。
この物件は、液状化リスクが低いエリアにあります。
この物件は、液状化リスクがやや低いエリアにあります。
この物件は、液状化リスクがやや高いエリアにあります。
この物件は、液状化リスクが高いエリアにあります。
この物件は、液状化リスクが非常に高いエリアにあります。
液状化リスクは表層地盤の地形から評価したもので、地盤改良工事でリスクを軽減することができます。液状化は震度5以上の地震で起こりやすく、地盤沈下や路面の亀裂、地中の下水道管が隆起・破損が発生することがあるため、周辺施設のチェックも必要です。購入前には必ず物件の地盤調査、地盤改良の有無を不動産会社に確認しましょう。
この物件は、最大震度が不明なエリアにあります。
この物件は、最大震度5弱以下が予測されるエリアにあります。
この物件は、最大震度5強が予測されるエリアにあります。
この物件は、最大震度6弱が予測されるエリアにあります。
この物件は、最大震度6強が予測されるエリアにあります。
この物件は、最大震度7が予測されるエリアにあります。
震度5強以下の地震が起きた場合でも、新耐震基準の物件は軽微なひび割れ程度に留まる設計がされています。予測データでは比較的に地震の揺れが大きくないエリアですが、耐震性能は工法やメーカーによって異なります。長く安心して住むために耐震性能に加え、耐久性、メンテナンスのしやすいかを不動産会社に確認しましょう。
震度6弱以上の地震が起きた場合、壁、柱などの部材にひび割れ等の被害が想定されます。予測データでは比較的に地震の揺れが大きなエリアなので、住宅の耐震性能に加え、耐久性、メンテナンスについて不動産会社に確認しましょう。また、メンテナンスの必要性があるか判断がつきにくい場合には専門家の手を借りることを検討しておくことも大事です。
災害リスク情報は、株式会社LIFULLが掲載するものであり、不動産物件情報を掲載している不動産会社が掲載するものではありません
災害リスク情報は、参考情報として提供するものです。災害リスク情報の正確性・完全性・最新性について保証するものではありません。本サービス利用により生じた損害等について、株式会社LIFULLおよび各データの出典元は一切責任を負いません
地図の拡大レベルによっては、エリアに表示される災害レベルが変わることがあります
ハザード情報のご利用について
詳細なハザード情報は
提供元データをご確認ください
本情報は、株式会社LIFULLが地図情報の提供事業者から提供を受けた情報とLIFULL HOME'Sの物件情報に基づき、独自の方法で抽出・加工し提供しているものです。ハザード情報を詳しくお調べになりたい場合は、提供元の情報または自治体の公表データをご確認ください
※本情報は、株式会社LIFULLが掲載するものであり、不動産会社が掲載するものではありません
間取り

1/1
- 間取り
- 間取図
内観

1/3
- リビング/ダイニング
- リビング

2/3
- 室内
- 和室6畳

3/3
- 和室
- 和室6畳
外観

1/2
- 外観
- 建物外観

2/2
- 外観
- エントランス
設備

1/3
- キッチン
- キッチン

2/3
- 浴室
- 浴室

3/3
- 洗面
- 洗面




