このページは物件の広告情報ではありません。
過去にLIFULL HOME'Sへ掲載された不動産情報と提携先の地図情報を元に生成した参考情報です。また、一般から投稿された情報など主観的な情報も含みます。
情報更新日: 2026/04/04
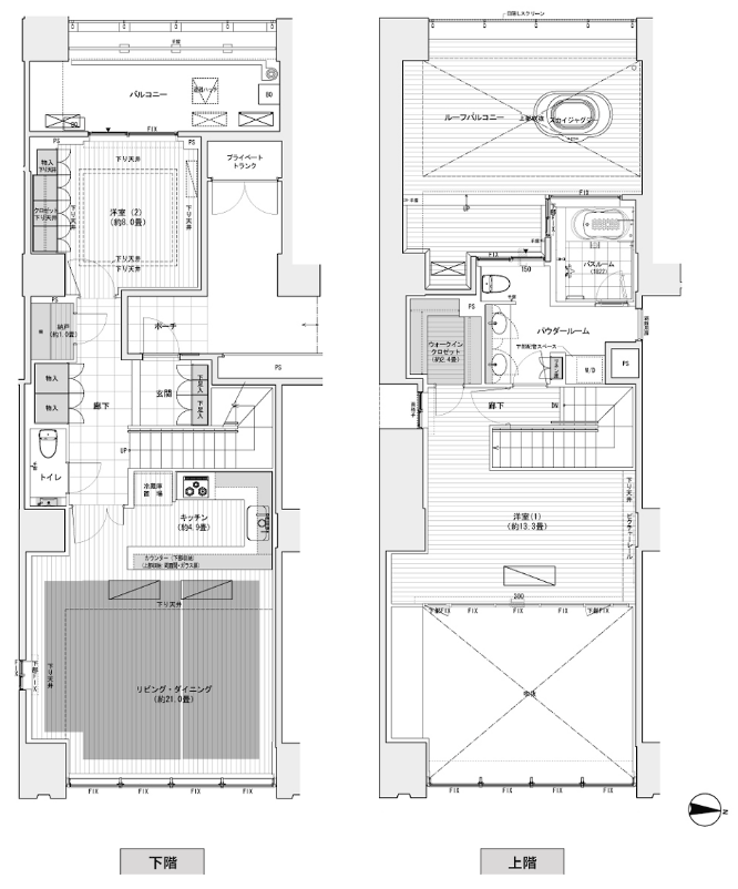
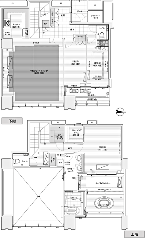
ワールド シティ タワーズ
スポンサーリンク
ワールド シティ タワーズの建物情報
物件概要
| 物件種別 | マンション |
|---|---|
| 築年月(築年数) | 2006年11月 (築20年) |
| 建物構造 | 鉄筋コンクリート造・地下2階地上42階建 |
| 総戸数/総区画数 | 2090戸 |
| 敷地全体面積 | 25,060.38平米(5,595.55平米(ブリーズタワー)) |
| 管理人 | 常駐 |
| 用途地域 | 第二種住居 |
| 地目 | 宅地 |
| 土地権利 | 所有権 |
| 売主 | 住友不動産株式会社 |
| 販売会社 | 売主/住友不動産株式会社販売代理/住友不動産販売株式会社 |
設備・条件
- 追い焚き
- システムキッチン
- ブロードバンド
- バリアフリー
- オートロック
- 防犯カメラ
- 管理人常駐
- 住宅性能評価書
- 100m2以上
- コンビニ400m以内
※最新の状態と異なる場合があります
売りたい不動産をお持ちの方へ
このエリアの所有不動産を査定する
売却査定手続きの流れ、費用相場や注意点など不動産売却について詳しく知りたい方はLIFULL HOME'S 不動産査定へ
ワールド シティ タワーズの周辺施設
-
買い物
日用品 -
- マルエツ 港南ワールドシティ店
- 湘南薬品港南薬局
- ファミリーマート 港南四丁目店
- セブンイレブン 天王洲シーフォートスクエア店
- 買い物
大型店 -
- 天王洲シーフォートスクエア
- 天王洲郵船ビルNAGI
- 品川インターシティ
- 品川イーストワンタワー
- グルメ
-
- プロント天王洲シーフォートスクエア店
- スターバックスコーヒー天王洲店
- サイゼリヤ 港南中学校前店
- すき家 港南四丁目店
- 娯楽施設
-
- 港南小学校屋内プール
- セントラルフィットネスクラブ天王洲
- 品川南ふ頭公園野球場
- 天王洲公園
- 文化施設
-
- 東京海洋大学海洋科学部附属水産資料館
- ヤマトグループ歴史館クロネコヤマトミュージアム
- 建築倉庫ARCHI-DEPOT
- 役所
公共施設 -
- 品川天王洲郵便局
- 港港南郵便局
- 港区立港南図書館
- 品川インターシティ郵便局
- 保育施設
-
- ベネッセ港南保育園
- ゆらりん港南緑水保育園
- 港区立港南幼稚園
- こうなん保育園
- 学校
-
- 港区立港南小学校
- 国立東京海洋大学品川キャンパス
- 港区立港南中学校
- 品川区立台場小学校
※学区外の学校が含まれる場合があります。実際の学区は必ず各自治体へご確認ください。
ワールド シティ タワーズ周辺の物件情報
周辺の問合せ可能な物件
東京都港区の問合せ可能な物件のうち、この物件の周辺にあるものから表示しています
賃貸
-
募集中
- ワールドシティタワーズ ブリーズタワー
- 27.5万円
- JR山手線 品川駅 徒歩14分
- 東京都港区港南4丁目6番
- 47.2m² / 1LDK
-
募集中
- ワールドシティタワーズアクアタワー
- 40万円
- JR山手線 品川駅 徒歩14分
- 東京都港区港南4丁目6-4
- 75.27m² / 1LDK
-
募集中
- 東京モノレール 天王洲アイル駅 徒歩9分
- 40万円
- 東京モノレール 天王洲アイル駅 徒歩9分
- 東京都港区港南4丁目6-4
- 75.27m² / 1LDK
-
募集中
- 東京モノレール 天王洲アイル駅 徒歩7分
- 45万円
- 東京モノレール 天王洲アイル駅 徒歩7分
- 東京都港区港南4丁目6-1
- 93.56m² / 3LDK
-
募集中
- ワールドシティタワーズアクアタワー
- 45万円
- 東京モノレール 天王洲アイル駅 徒歩7分
- 東京都港区港南4丁目
- 93.56m² / 3LDK
-
募集中
- ワールドシティタワーズアクアタワー
- 40万円
- JR山手線 品川駅 徒歩13分
- 東京都港区港南4丁目
- 80.92m² / 2LDK
-
募集中
- デルックス品川
- 89.5万円
- 東京臨海高速鉄道りんかい線 天王洲アイル駅 徒歩13分
- 東京都港区港南4丁目2-27
- 123.0m² / 3SLDK
-
募集中
- JR山手線 品川駅 徒歩11分
- 16.5万円
- JR山手線 品川駅 徒歩11分
- 東京都港区港南4丁目2-27
- 27.07m² / 1K
-
募集中
- DeLCCS Shinagawa
- 16.5万円
- JR山手線 品川駅 徒歩11分
- 東京都港区港南4丁目2-27
- 27.07m² / 1K
新築マンション
※完成後1年以上経過した未入居の物件が含まれている場合があります
-
売出し中
- ザ・パークハウス芝御成門
- 2億2480万円
- 都営三田線 御成門駅 徒歩4分
- 東京都港区新橋6丁目12-4
- 55.22m² / 3LDK
-
売出し中
- ブランズ芝浦
- 1億3400万円
- JR京浜東北・根岸線 田町駅 徒歩14分
- 東京都港区芝浦4丁目18
- 43.65m² / 1LDK
-
売出し中
- 東京メトロ南北線「麻布十番」駅 徒歩6分
- 未定
- 東京メトロ南北線「麻布十番」駅 徒歩6分
- 東京都港区南麻布二丁目4-51(地名地番)
- 60.17m² / 1LDK・2LDK
-
売出し中
- 東京メトロ南北線「白金高輪」駅 徒歩7分
- 9,610万円~22,270万円
- 東京メトロ南北線「白金高輪」駅 徒歩7分
- 東京都港区三田五丁目11番3
- 62.08m² / 1LDK~2LDK
-
売出し中
- JR山手線「品川」駅 徒歩13分 (港南口)
- 未定
- JR山手線「品川」駅 徒歩13分 (港南口)
- 東京都港区港南3丁目7-2(地番)
- 103.39m² / 1LDK~3LDK
-
売出し中
- 都営三田線「三田」駅 徒歩5分 (A8出入口)
- 未定
- 都営三田線「三田」駅 徒歩5分 (A8出入口)
- 東京都港区芝5丁目2番93(地番)
- 73.18m² / 1LDK~3LDK
-
売出し中
- JR山手線「田町」駅 徒歩10分
- 11,800万円~28,900万円
- JR山手線「田町」駅 徒歩10分
- 東京都港区芝浦2丁目1番75(地番)
- 77.34m² / 1LD・K~3LD・K
-
売出し中
- 東京メトロ南北線「白金高輪」駅 徒歩9分
- 未定
- 東京メトロ南北線「白金高輪」駅 徒歩9分
- 東京都港区南麻布三丁目145番3(地番)
- 174.24m² / 2LDK ~ 3LDK
-
売出し中
- 東京メトロ日比谷線「神谷町」駅 徒歩2分
- 19,500万円~39,000万円
- 東京メトロ日比谷線「神谷町」駅 徒歩2分
- 東京都港区虎ノ門三丁目209-1他(地番)
- 75.13m² / 1LD・K、2LD・K
-
売出し中
- 東京メトロ銀座線「表参道」駅 徒歩12分
- 29,500万円~47,000万円
- 東京メトロ銀座線「表参道」駅 徒歩12分
- 東京都港区南青山七丁目162番地
- 80.02m² / 2LD・K
中古マンション
-
売出し中
- ワールドシティタワーズ キャピタルタワー
- 2億9800万円
- 東京モノレール 天王洲アイル駅 徒歩4分
- 東京都港区港南4丁目
- 105.09m² / 3SLDK
-
売出し中
- ワールドシティタワーズキャピタルタワー
- 1億6000万円
- JR山手線 品川駅 徒歩13分
- 東京都港区港南4丁目6-8
- 67.17m² / 1SLDK
-
売出し中
- ワールドシティタワーズアクアタワー
- 2億780万円
- JR山手線 品川駅 徒歩15分
- 東京都港区港南4丁目6-4
- 76.67m² / 2LDK
-
売出し中
- ワールドシティタワーズブリーズタワー
- 2億5980万円
- JR山手線 品川駅 徒歩15分
- 東京都港区港南4丁目6-5
- 86.53m² / 2LDK
-
売出し中
- ワールドシティタワーズアクアタワー
- 1億1400万円
- 東京モノレール 天王洲アイル駅 徒歩6分
- 東京都港区港南4丁目6
- 56.79m² / 2LDK
-
売出し中
- ワールドシティタワーズ ブリーズタワー
- 1億1500万円
- JR山手線 品川駅 徒歩19分
- 東京都港区港南4丁目6番
- 59.83m² / 2LDK
-
売出し中
- TOKYO SEA SOUTH ブランファーレ
- 1億4280万円
- 東京臨海高速鉄道りんかい線 天王洲アイル駅 徒歩9分
- 東京都港区港南4丁目7番55号
- 63.5m² / 1LDK
-
売出し中
- TOKYO SEA SOUTH ブランファーレ
- 1億3500万円
- JR山手線 品川駅 徒歩12分
- 東京都港区港南4丁目7-55
- 60.89m² / 1LDK
-
売出し中
- 東京シーサウスブランファーレ
- 1億3500万円
- JR山手線 品川駅 徒歩14分
- 東京都港区港南4丁目7
- 60.89m² / 1LDK
一戸建て
-
売出し中
- 港区高輪3丁目 新築戸建 全2-A
- 2億1790万円
- JR山手線 品川駅 徒歩12分
- 東京都港区高輪3丁目
- 130.35m² / 2SLDK
-
売出し中
- 港区高輪3丁目 新築戸建
- 2億1790万円
- JR山手線 品川駅 徒歩12分
- 東京都港区高輪3丁目
- 130.35m² / 3SLDK
-
売出し中
- 都営浅草線 高輪台駅 徒歩5分
- 3億4980万円
- 都営浅草線 高輪台駅 徒歩5分
- 東京都港区白金台2丁目
- 127.71m² / 3SLDK
-
売出し中
- 都営三田線 白金高輪駅 徒歩8分
- 1億800万円
- 都営三田線 白金高輪駅 徒歩8分
- 東京都港区三田4丁目
- 60.55m² / 2SLDK
-
売出し中
- 港区白金台2丁目
- 3億4980万円
- 都営浅草線 高輪台駅 徒歩4分
- 東京都港区白金台2丁目
- 124.71m² / 4LDK
-
売出し中
- 都営浅草線 高輪台駅 徒歩5分
- 3億4980万円
- 都営浅草線 高輪台駅 徒歩5分
- 東京都港区白金台2丁目
- 124.71m² / 3SLDK
-
売出し中
- 港区三田5丁目 新築戸建
- 3億3800万円
- 東京メトロ南北線 白金高輪駅 徒歩7分
- 東京都港区三田5丁目
- 127.72m² / 3SLDK
-
売出し中
- 白金の戸建て
- 2億9800万円
- 都営三田線 白金台駅 徒歩11分
- 東京都港区白金6丁目
- 97.69m² / 2SLDK
-
売出し中
- 港区白金6丁目新築戸建
- 2億9800万円
- 東京メトロ南北線 白金台駅 徒歩10分
- 東京都港区白金6丁目
- 63.45m² / 2SLDK
-
売出し中
- 東麻布2丁目 戸建
- 6億円
- 都営大江戸線 赤羽橋駅 徒歩4分
- 東京都港区東麻布2丁目31-3
- 148.32m² / 2LDK
注文住宅
※表示価格は延べ床面積約132m²の場合の建物価格の参考値です
-
資料請求受付中
- 3000万円〜
- セキスイハイム
- 【セキスイハイム】総合カタログ(heimism)
-
資料請求受付中
- 2000万円〜
- 一条工務店
- 【一条工務店】 建築実例集3冊セット(HOME’S限定)
-
資料請求受付中
- 3400万円〜
- へーベルハウス
- 【ヘーベルハウス】:ヘーベルハウス総合カタログ
-
資料請求受付中
- 2600万円〜
- 株式会社アイ工務店 東京支店
- 【東京 展示場ご来場者歓迎!】憧れのスキップフロアが叶える大収納【アイ工務店】
-
資料請求受付中
- 1868万円〜
- タマホーム株式会社
- 大安心の家シリーズ
-
資料請求受付中
- -
- 積水ハウス
- BRAND BOOK
-
資料請求受付中
- -
- アキュラホーム(AQ Group)
- 「超空間の家」
エリア・駅で絞り込んで探す
東京都のシティタワーが含まれるマンション
物件の種類から探す
港区で募集中の物件のみを検索できます
掲載情報に誤りや問題がある場合
LIFULL HOME'Sは「不動産会社」ではなく「情報掲載サイト」です
- ※管理会社の情報はLIFULL HOME'Sでは保持していないためお答えできません。お問合せはお控えください
- ※最新の募集状況は掲載中の不動産会社があれば、不動産会社へ直接お問合せください
掲載情報の訂正依頼 専用ダイヤル
0120-987-243
- 専用ダイヤル受付時間:10:00〜18:00
- ※土日・祝日、臨時休業日は除く
不動産データのご利用について
不動産事業におけるDX、サービスの改善、新規事業開発等をご検討中の方へ不動産データの活用をご提案します。LIFULL HOME'Sで集約した不動産情報や外部データは、不動産事業DX、不正決済防止、ローン審査、事業開発、研究等さまざまな事業でご活用いただいています。詳しくは以下よりご確認ください。
不動産アーカイブご利用アンケートにご協力ください
不動産アーカイブの掲載情報は、LIFULL HOME'S掲載の不動産情報および提携先の不動産情報を統計情報として集積したものであり、その存在や信憑性を保証するものではありません。