このページは物件の広告情報ではありません。
過去にLIFULL HOME'Sへ掲載された不動産情報と提携先の地図情報を元に生成した参考情報です。また、一般から投稿された情報など主観的な情報も含みます。
情報更新日: 2025/12/28
サンアリーナ市谷仲之町
スポンサーリンク
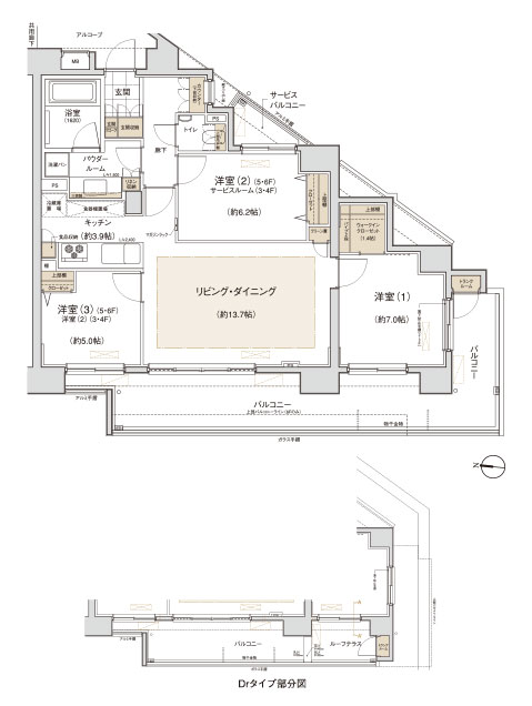
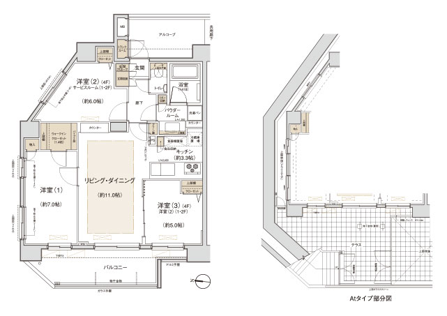
サンアリーナ市谷仲之町の建物情報
物件概要
| 物件種別 | マンション |
|---|---|
| 築年月(築年数) | 2014年10月 (築12年) |
| 建物構造 | 鉄筋コンクリート造地下1階地上6階建 |
| 総戸数/総区画数 | 21戸 |
| 敷地全体面積 | 840.37m2(建築確認対象面積) |
| 用途地域 | 第二種中高層住居専用 |
| 地目 | 宅地 |
| 土地権利 | 所有権 |
| 建築確認番号 | 第FBC建確済13-138号(平成25年4月) |
| 施工会社 | 斎藤工業株式会社 |
| 売主 | 株式会社サンピア |
| 販売会社 | 株式会社サンピア(売主) |
設備・条件
- 追い焚き
- 浴室乾燥機
- システムキッチン
- 高効率給湯器
- 床暖房
- ブロードバンド
- 複層ガラス採用(二重サッシ・防犯サッシ等)
- オートロック
- 防犯カメラ
- セキュリティ充実
- エレベーター
- 宅配ボックス
- 環境にやさしい
- 子育てに優しい環境
- スーパー800m以内
- コンビニ400m以内
- 小学校800m以内
- 総合病院800m以内
- 公園400m以内
- フィットネス施設(プール含む)800m以内
- 複数路線
※最新の状態と異なる場合があります
売りたい不動産をお持ちの方へ
このエリアの所有不動産を査定する
売却査定手続きの流れ、費用相場や注意点など不動産売却について詳しく知りたい方はLIFULL HOME'S 不動産査定へ
サンアリーナ市谷仲之町の周辺施設
-
買い物
日用品 -
- ココカラファイン曙橋店
- ローソンストア100 新宿住吉町店
- まいばすけっと曙橋駅前店
- セブンイレブン 新宿曙橋通り店
- グルメ
-
- すき家 曙橋店
- ファーストキッチン・ウェンディーズ 曙橋店
- いきなりステーキあけぼのばし店
- 天丼てんや 曙橋店
- 娯楽施設
-
- ネットルームマンボー原町店
- 新宿区立富久さくら公園
- 文化施設
-
- 釣り文化資料館
- 東京女子医科大学史料室・吉岡彌生記念室
- 東京おもちゃ美術館
- 新宿歴史博物館
- 役所
公共施設 -
- 新宿住吉郵便局
- 警視庁第四方面本部
- 四谷通二郵便局
- 牛込若松町郵便局
- 医療
-
- 東京女子医科大学病院
- 医療法人社団鉄友会柳町病院
- 独立行政法人国立国際医療研究センター病院
- 保育施設
-
- ニチイキッズ曙橋保育園
- 新宿区立牛込仲之幼稚園
- フロンティアキッズ曙橋本園
- フロンティアキッズ曙橋分園
- 学校
-
- 新宿区立牛込仲之小学校
- 私立成女高校
- 私立成女学園中学校
- 東京都立総合芸術高校
サンアリーナ市谷仲之町周辺の物件情報
周辺の問合せ可能な物件
東京都新宿区の問合せ可能な物件のうち、この物件の周辺にあるものから表示しています
賃貸
-
募集中
- レジデンス市谷仲之町
- 12.5万円
- 都営新宿線 曙橋駅 徒歩4分
- 東京都新宿区市谷仲之町2-21
- 25.19m² / ワンルーム
-
募集中
- 都営新宿線 曙橋駅 徒歩4分
- 12.5万円
- 都営新宿線 曙橋駅 徒歩4分
- 東京都新宿区市谷仲之町
- 25.19m² / ワンルーム
-
募集中
- 河田町ガーデン4号棟
- 23.97万円
- 都営新宿線 曙橋駅 徒歩6分
- 東京都新宿区河田町3-54
- 56.64m² / 1LDK
-
募集中
- 都営新宿線 曙橋駅 徒歩6分
- 23.97万円
- 都営新宿線 曙橋駅 徒歩6分
- 東京都新宿区河田町3-54
- 56.64m² / 1LDK
-
募集中
- 仲之町ヒルズ
- 19万円
- 都営新宿線 曙橋駅 徒歩5分
- 東京都新宿区市谷仲之町2-32
- 48.47m² / 1LDK
-
募集中
- 東京メトロ丸ノ内線 四谷三丁目駅 徒歩12分
- 19万円
- 東京メトロ丸ノ内線 四谷三丁目駅 徒歩12分
- 東京都新宿区市谷仲之町2-32
- 48.47m² / 1LDK
-
募集中
- 都営新宿線 曙橋駅 徒歩5分
- 11.8万円
- 都営新宿線 曙橋駅 徒歩5分
- 東京都新宿区住吉町9-10
- 32.72m² / ワンルーム
-
募集中
- フロレスタアヤメ
- 11.8万円
- 都営新宿線 曙橋駅 徒歩5分
- 東京都新宿区住吉町9-10
- 32.72m² / 1K
-
募集中
- 都営新宿線 曙橋駅 徒歩3分
- 28.7万円
- 都営新宿線 曙橋駅 徒歩3分
- 東京都新宿区市谷仲之町2-7
- 76.58m² / 3LDK
-
募集中
- Maison de K
- 13.5万円
- 都営新宿線 曙橋駅 徒歩1分
- 東京都新宿区住吉町8番地14号
- 29.23m² / 1K
新築マンション
※完成後1年以上経過した未入居の物件が含まれている場合があります
-
売出し中
- パークシティ高田馬場
- 1億5980万円
- JR山手線 高田馬場駅 徒歩7分
- 東京都新宿区高田馬場4丁目
- 68.15m² / 3LDK
-
売出し中
- パークシティ高田馬場
- 1億9980万円
- JR山手線 高田馬場駅 徒歩7分
- 東京都新宿区高田馬場4丁目29-27
- 85.52m² / 3SLDK
-
売出し中
- 都営新宿線「曙橋」駅 徒歩5分
- 17,500万円
- 都営新宿線「曙橋」駅 徒歩5分
- 東京都新宿区市谷仲之町37番1 他11筆(地番)
- 63.24m² / 2LDK
-
売出し中
- JR山手線「高田馬場」駅 徒歩9分
- 8,590万円~13,090万円
- JR山手線「高田馬場」駅 徒歩9分
- 東京都新宿区下落合一丁目937番1
- 64.45m² / 2LDK・3LDK
-
売出し中
- 都営大江戸線「牛込神楽坂」駅 徒歩2分
- 未定
- 都営大江戸線「牛込神楽坂」駅 徒歩2分
- 東京都新宿区横寺町37番5
- 80.14m² / 1LDK・2LDK・3LDK
-
売出し中
- JR中央線「四ツ谷」駅 徒歩3分
- 未定
- JR中央線「四ツ谷」駅 徒歩3分
- 東京都新宿区四谷一丁目9番7(地番)
- - / 2LDK・3LDK
-
売出し中
- JR山手線 高田馬場駅 徒歩8分
- 1億5280万円
- JR山手線 高田馬場駅 徒歩8分
- 東京都新宿区高田馬場4丁目29-27
- 64.84m² / 2LDK
-
売出し中
- サンウッドフラッツ新宿四谷三丁目
- 1億3600万円
- 東京メトロ丸ノ内線 四谷三丁目駅 徒歩6分
- 東京都新宿区信濃町
- 56.63m² / 2LDK
-
売出し中
- JR山手線「高田馬場」駅 徒歩7分
- 1億4980万円(2戸)
- JR山手線「高田馬場」駅 徒歩7分
- 東京都新宿区高田馬場4丁目844番4他
- 68.13m² / 2LDK(1戸)・3LDK(1戸)
中古マンション
-
売出し中
- サンクタス四谷・曙橋ルーセンシティ
- 9980万円
- 都営新宿線 曙橋駅 徒歩1分
- 東京都新宿区住吉町
- 56.88m² / 2LDK
-
売出し中
- ウイン四ツ谷
- 5990万円
- 都営新宿線 曙橋駅 徒歩1分
- 東京都新宿区住吉町2-18
- 42.35m² / 1LDK
-
売出し中
- 都営新宿線 曙橋駅 徒歩1分
- 5990万円
- 都営新宿線 曙橋駅 徒歩1分
- 東京都新宿区住吉町
- 42.35m² / 1LDK
-
売出し中
- グランドメゾン新宿曙橋
- 1億4990万円
- 都営新宿線 曙橋駅 徒歩1分
- 東京都新宿区住吉町
- 58.71m² / 2SLDK
-
売出し中
- 菊ビル
- 7980万円
- 都営新宿線 曙橋駅 徒歩2分
- 東京都新宿区舟町
- 56.58m² / 2LDK
-
売出し中
- 愛住ハイツ
- 3280万円
- 都営新宿線 曙橋駅 徒歩5分
- 東京都新宿区愛住町20
- 48.95m² / 2LDK
-
売出し中
- THE CENTER TOKYO
- 1億3400万円
- 都営新宿線 曙橋駅 徒歩5分
- 東京都新宿区市谷本村町
- 61.16m² / 2LDK
-
売出し中
- フリーディオ四谷三丁目
- 7980万円
- 都営新宿線 曙橋駅 徒歩3分
- 東京都新宿区荒木町20-4
- 43.51m² / 1LDK
-
売出し中
- ピアース四谷
- 1億5200万円
- 都営新宿線 曙橋駅 徒歩4分
- 東京都新宿区富久町
- 72.23m² / 2LDK
-
売出し中
- キャッスルマンション荒木町
- 4580万円
- 東京メトロ丸ノ内線 四谷三丁目駅 徒歩6分
- 東京都新宿区荒木町
- 44.22m² / 1LDK
一戸建て
-
売出し中
- 新宿区住吉町戸建
- 8780万円
- 都営大江戸線 若松河田駅 徒歩7分
- 東京都新宿区住吉町15-17
- 70.71m² / 3LDK
-
売出し中
- 新宿区住吉町 一戸建て
- 8780万円
- 都営大江戸線 若松河田駅 徒歩7分
- 東京都新宿区住吉町15
- 69.87m² / 3LDK
-
売出し中
- 新宿区住吉町 中古戸建
- 8780万円
- 都営大江戸線 若松河田駅 徒歩7分
- 東京都新宿区住吉町15-17
- 69.87m² / 1SLDK
-
売出し中
- 新宿区荒木町 中古戸建
- 1億1980万円
- 都営新宿線 曙橋駅 徒歩3分
- 東京都新宿区荒木町
- 87.84m² / 2SLDK
-
売出し中
- 新宿区富久町 借地権付戸建
- 6980万円
- 都営新宿線 曙橋駅 徒歩8分
- 東京都新宿区富久町
- 75.11m² / 3LDK
-
売出し中
- 牛込柳町駅5分「新宿区原町」Selection
- 9280万円
- 都営大江戸線 牛込柳町駅 徒歩5分
- 東京都新宿区原町3丁目
- 75.59m² / 3LDK
-
売出し中
- 市谷加賀町2丁目 全2棟
- 1億9180万円
- 都営大江戸線 牛込柳町駅 徒歩9分
- 東京都新宿区市谷加賀町2丁目
- 120.25m² / 3LDK
-
売出し中
- 若松河田・再建不戸建
- 3850万円
- 都営大江戸線 若松河田駅 徒歩2分
- 東京都新宿区若松町22-12
- 61.82m² / 4DK
-
売出し中
- 都営大江戸線 牛込柳町駅 徒歩6分
- 2億7580万円
- 都営大江戸線 牛込柳町駅 徒歩6分
- 東京都新宿区市谷加賀町1丁目
- 143.85m² / 4LDK
注文住宅
※表示価格は延べ床面積約132m²の場合の建物価格の参考値です
エリア・駅で絞り込んで探す
東京都のサンアリーナが含まれるマンション
周辺の建物情報
物件の種類から探す
新宿区で募集中の物件のみを検索できます
掲載情報に誤りや問題がある場合
LIFULL HOME'Sは「不動産会社」ではなく「情報掲載サイト」です
- ※管理会社の情報はLIFULL HOME'Sでは保持していないためお答えできません。お問合せはお控えください
- ※最新の募集状況は掲載中の不動産会社があれば、不動産会社へ直接お問合せください
掲載情報の訂正依頼 専用ダイヤル
0120-987-243
- 専用ダイヤル受付時間:10:00〜18:00
- ※土日・祝日、臨時休業日は除く
不動産データのご利用について
不動産事業におけるDX、サービスの改善、新規事業開発等をご検討中の方へ不動産データの活用をご提案します。LIFULL HOME'Sで集約した不動産情報や外部データは、不動産事業DX、不正決済防止、ローン審査、事業開発、研究等さまざまな事業でご活用いただいています。詳しくは以下よりご確認ください。
不動産アーカイブご利用アンケートにご協力ください
不動産アーカイブの掲載情報は、LIFULL HOME'S掲載の不動産情報および提携先の不動産情報を統計情報として集積したものであり、その存在や信憑性を保証するものではありません。