1. 不動産・住宅情報サイトLIFULL HOME'S
  2. マンション
  3. 新築マンション
  4. 近畿
  5. 京都府
  6. 向日市
  7. 向日町駅
  8. J.GRAN TOWER 京都向日町
新築マンション 分譲予定

J.GRAN TOWER 京都向日町

  • 更新日:2026/01/16
  • 次回更新予定日:随時

物件の特徴

  • 予告広告 予告広告
  • 未定
  • 所在地
    京都府向日市森本町野田202番地 地図を見る
    • ※不動産会社が入力した情報を基に物件の位置を表示しています
    • ※詳しくは不動産会社までお問合せください

    閉じる

  • 交通
    JR東海道・山陽本線「向日町」駅 徒歩1分
    阪急京都本線「東向日」駅 徒歩9分
  • 引き渡し
    2028年9月下旬(予定)
  • タワーマンション
  • 大規模マンション
  • 100㎡以上

販売概要

  • 予告広告 予告広告

    未定

    間取り
    2LDK ~ 4LDK
    専有面積
    55.07㎡ ~ 101.62㎡
    販売スケジュール
    販売開始時期/2026年6月下旬

    詳細を見る

予告広告
この広告は予告広告を含みます。販売を開始するまでは、契約または予約(仮予約を含む)の申込および申込順位の確保には一切応じられませんのでご了承ください。価格または販売方法が未定の場合は、本広告にて確定情報をお知らせします。

お問合せ(無料)

資料請求する
J.GRAN TOWER 京都向日町 J.GRAN TOWER 京都向日町

詳しいパンフレットや図面集、リーフレット等がお手元に届きます。
質問・相談もできます


かんたん1分で
資料をもらう
無料

電話する

0037-618-53775 無料

QRコードを読み込むとすぐに電話できます。

お問合せ先
「J.GRAN TOWER 京都向日町」マンションサロン
登録する
LINEで更新情報を受取る(無料)
価格・間取りなどの更新情報がLIFULL HOME'S公式のLINEから届きます

QRコードを読み込むと登録画面が表示されます
プライバシーポリシー
に同意の上ご登録ください

間取り

公開中:9

間取り表記例:
Rルーフバルコニー
TRトランクルーム
Sサービスルーム(納戸)
DEN書斎(納戸)
WTCウォークスルークロゼット(クローク)
N納戸
MCマルチクロゼット(クローク)
Wウォークインクロゼット(クローク)
SCシューズクロゼット(クローク)
WICウォークインクロゼット(クローク)
SICシューズインクロゼット(クローク)

LINEで更新情報を受け取る(無料)

価格・間取りなどの更新情報がLIFULL HOME'S公式のLINEから届きます
プライバシーポリシーに同意の上ご登録ください

QRコードを読み込むと登録画面が表示されます

周辺環境・アクセス

現地案内図

J.GRAN TOWER 京都向日町:案内図

※掲載の地図は略図のため、省略されている道路等があります。
※地図内の各事業は今後変更になる場合があり、完成は遅れる場合があります。
※掲載の情報は2026年1月時点のもので変更となる場合があります。

所在地
京都府向日市森本町野田202番地
お問合せ先
「J.GRAN TOWER 京都向日町」マンションサロン
0037-618-53775

交通アクセス図

J.GRAN TOWER 京都向日町:交通図

※所要時間は通勤時間帯(午前7:00~9:00)に到着する所要時間を表記しております。
※掲載の所要時間は乗り換え時間・待ち時間を含みます。(※2026年1月現在)
※電車の所要時間はダイヤ改正により変更となる場合がございます。
※掲載の情報は2026年1月時点のもので変更となる場合があります。

周辺スポット

  • イオンモール桂川
    約1,050m(徒歩14分)

  • 竹の怪
    約2,160m(徒歩27分)

  • 大極殿公園 ※向日市観光協会提供
    約1,660m(徒歩21分)

※掲載の環境写真は、2025年10月に撮影したものです。
※掲載の各施設は2026年1月現在のもので変更になる場合があります。また距離は現地からの道のりを地図上で計測しています。

周辺地図

周辺情報

※半径4kmを超えると、周辺情報のアイコンは表示されません。

  • ※地図上に表示される各種アイコンなどの情報は、おおよその所在地を表すものであり、物件・施設などの地点を保証するものではありません
  • ※地図の表示領域が広域になると周辺のお店・施設は表示できなくなります
  • ※地図、航空写真情報および地形ならびに周辺のお店・施設は、必ずしも現況を表すものではありません
  • ※物件から周辺のお店・施設までの距離は、利用が想定される道路を通行した場合の距離です。なお、必ずしも最短距離を保証するものではありません

LINEで更新情報を受け取る(無料)

価格・間取りなどの更新情報がLIFULL HOME'S公式のLINEから届きます
プライバシーポリシーに同意の上ご登録ください

QRコードを読み込むと登録画面が表示されます

建物・部屋

建物・共用部

  • J.GRAN TOWER 京都向日町 完成予想図

    完成予想図

※掲載の再開発完成予想図は計画段階の図面を基に描いた外観・再開発完成予想図と周辺の環境写真(2025年7月撮影)を合成・CG加工したもので実際とは異なります。また、外観形状の細部、設備機器等は表現しておらず、今後変更になる場合があります。

LINEで更新情報を受け取る(無料)

価格・間取りなどの更新情報がLIFULL HOME'S公式のLINEから届きます
プライバシーポリシーに同意の上ご登録ください

QRコードを読み込むと登録画面が表示されます

物件概要

販売概要

予告広告 予告広告

販売スケジュール 販売開始時期/2026年6月下旬
販売価格 未定 価格をお問合せ(無料)
予定最多価格帯 未定
販売戸数 未定
本販売期以降の総販売戸数 274戸
間取り 2LDK ~ 4LDK
専有面積 55.07㎡ ~ 101.62㎡
バルコニー面積 8.85㎡ ~ 25.48㎡
管理費 -
修繕積立金 -
修繕積立基金 -
販売概要備考 ※この広告は予告広告です。本広告を行い取引を開始するまでは、契約又は予約の申込みに一切応じられません。また申込みの順位の確保に関する措置は講じられません。予めご了承下さい。※表示の間取り・専有面積・バルコニー面積等は、販売戸数が未定のため、全販売予定住戸(274戸)を基にしております。販売対象住戸を一括して販売するか、数期に分けて販売するかは確定しておりません。販売戸数、価格等は本広告にて掲載いたします。
取引条件有効期限 -

※販売戸数は未定です。物件の取引内容及び取引条件は、本販売期以降の総販売戸数を基に表示しています。確定情報については本広告時に明示します

LINEで更新情報を受け取る(無料)

価格・間取りなどの更新情報がLIFULL HOME'S公式のLINEから届きます
プライバシーポリシーに同意の上ご登録ください

QRコードを読み込むと登録画面が表示されます

全体概要

所在地 京都府向日市森本町野田202番地
交通
JR東海道・山陽本線「向日町」駅 徒歩1分
阪急京都本線「東向日」駅 徒歩9分
総戸数 343戸(一般販売対象274戸)
構造および階数 鉄筋コンクリート造・一部鉄骨造、地上38階
駐車場 -
その他、共有施設等 ●駐車場/181台(平面1台、機械式タワー180台)
●駐輪場/648台(平面52台、2段式ラック596台〔月額使用料:未定〕)
●バイク置場/24台(ミニバイク:15台〔月額使用料/未定〕、バイク:9台〔月額使用料/未定〕)
完成時期 2028年7月下旬(予定)
引き渡し可能年月 2028年9月下旬(予定)
分譲後の権利形態 建物専有部分は区分所有権、敷地及び建物共用部分は専有面積割合による所有権の共有
管理形態 区分所有者全員で管理組合を結成して、管理会社との間で管理委託契約を締結
管理員の勤務形態 -
敷地面積 1,659.63㎡
用途地域 商業地域、準防火地域
建築確認番号 第R07確認建築GBRC00021号(令和7年7月15日)
売主 JR西日本不動産開発株式会社、三井不動産レジデンシャル株式会社(国土交通大臣(4)第7259号)
販売会社 JR西日本不動産開発株式会社(売主・代理)
施工会社 株式会社大林組
管理会社 JR西日本住宅サービス株式会社
備考 バルコニー面積: 8.85㎡~25.48㎡
建築確認番号: 第R07確認建築GBRC00021号(令和7年7月15日)
加盟団体: (公社)首都圏不動産公正取引協議会、(一社)不動産協会、(一社)不動産流通経営協会
情報更新日 2026/01/16
次回更新予定日 随時

LINEで更新情報を受け取る(無料)

価格・間取りなどの更新情報がLIFULL HOME'S公式のLINEから届きます
プライバシーポリシーに同意の上ご登録ください

QRコードを読み込むと登録画面が表示されます

会社・ブランド

情報提供元

JR西日本不動産開発株式会社

免許番号
[国土交通大臣(3)第8441号]
所在地
〒530-0005 大阪府大阪市北区中之島2丁目2番7号
加盟団体
(公社)首都圏不動産公正取引協議会、(一社)不動産協会、(一社)不動産流通経営協会

お問合せ(無料)

資料請求する
J.GRAN TOWER 京都向日町 J.GRAN TOWER 京都向日町

詳しいパンフレットや図面集、リーフレット等がお手元に届きます。
質問・相談もできます


かんたん1分で
資料をもらう
無料

電話する

0037-618-53775無料

QRコードを読み込むとすぐに電話できます。

お問合せ先

「J.GRAN TOWER 京都向日町」マンションサロン

電話:0037-618-53775【通話無料】

受付時間:10:30~17:30 定休日/水・木・第2火曜日(祝日除く)

  • ※お問合せの際は、「ライフルホームズを見て」とお伝えいただくとスムーズです
  • ※営業時間外は下記の「資料をもらう(無料)」よりお問合せください
【お電話の際の注意事項】
※お客様の電話番号は不動産会社に通知されません
※携帯電話はご利用いただけます
※光IP電話、及びIP電話をご利用のお客様は以下へご連絡ください
TEL:「J.GRAN TOWER 京都向日町」マンションサロン0120-317-343
※携帯電話からお問合せいただいた方には、ショートメッセージ(SMS)またはLINE通知メッセージによるお問合せ内容に関する通知をお届けする場合があり、お客様の電話番号は株式会社LIFULLで一定期間保管されます
登録する
お気に入り一覧を見る

LINEで更新情報を受け取る(無料)

価格・間取りなどの更新情報がLIFULL HOME'S公式のLINEから届きます
プライバシーポリシーに同意の上ご登録ください

QRコードを読み込むと登録画面が表示されます

シェアする

【物件番号】 1600836-0000017

  • ※完成予想図やCG合成画像は、門塀・植栽・庭・外観等、実際とは多少異なる場合があります。 また、掲載の図面は、多少変更になる場合があります
  • ※掲載の写真や動画には、一部オプション(有償)が含まれる場合があります。また、家具・調度品等は販売価格に含まれておりません
  • ※完成後1年未満で未入居の物件を「新築」と表示しております

その他の新築分譲マンションを探す

向日市の詳細町域から新築分譲マンションを探す

画像一覧
  • J.GRAN TOWER 京都向日町 外観

    完成予想図 ※掲載の完成予想図は計画段階の図面を基に描いた外観完成予想図と周辺環境写真(2025年7月撮影)を合成・CG加工したもので実際とは異なります。また今後変更になる場合がございます。

  • J.GRAN TOWER 京都向日町 その他

    完成予想図※掲載の完成予想図は計画段階の図面を基に描いた外観・再開発完成予想図と周辺の環境写真(2025年7月撮影)を合成・CG加工したもので実際とは異なります。

  • J.GRAN TOWER 京都向日町 共用部

  • 周辺環境

    イオンモール桂川 約1,050m(徒歩14分)

  • 周辺環境

    竹の怪 約2,160m(徒歩27分)

  • 周辺環境

    大極殿公園 ※向日市観光協会提供 約1,660m(徒歩21分)

  • J.GRAN TOWER 京都向日町 現地案内図

  • J.GRAN TOWER 京都向日町 アクセス図

  • J.GRAN TOWER 京都向日町 外観

    完成予想図 ※掲載の完成予想図は計画段階の図面を基に描いた外観完成予想図と周辺環境写真(2025年7月撮影)を合成・CG加工したもので実際とは異なります。また今後変更になる場合がございます。

  • J.GRAN TOWER 京都向日町 その他

    完成予想図※掲載の完成予想図は計画段階の図面を基に描いた外観・再開発完成予想図と周辺の環境写真(2025年7月撮影)を合成・CG加工したもので実際とは異なります。

  • J.GRAN TOWER 京都向日町 共用部

  • 周辺環境

    イオンモール桂川 約1,050m(徒歩14分)

  • 周辺環境

    竹の怪 約2,160m(徒歩27分)

  • 周辺環境

    大極殿公園 ※向日市観光協会提供 約1,660m(徒歩21分)

  • J.GRAN TOWER 京都向日町 現地案内図

  • J.GRAN TOWER 京都向日町 アクセス図

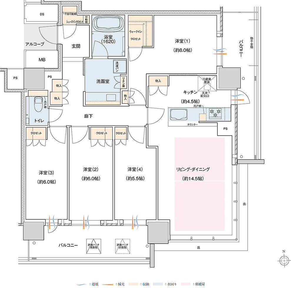
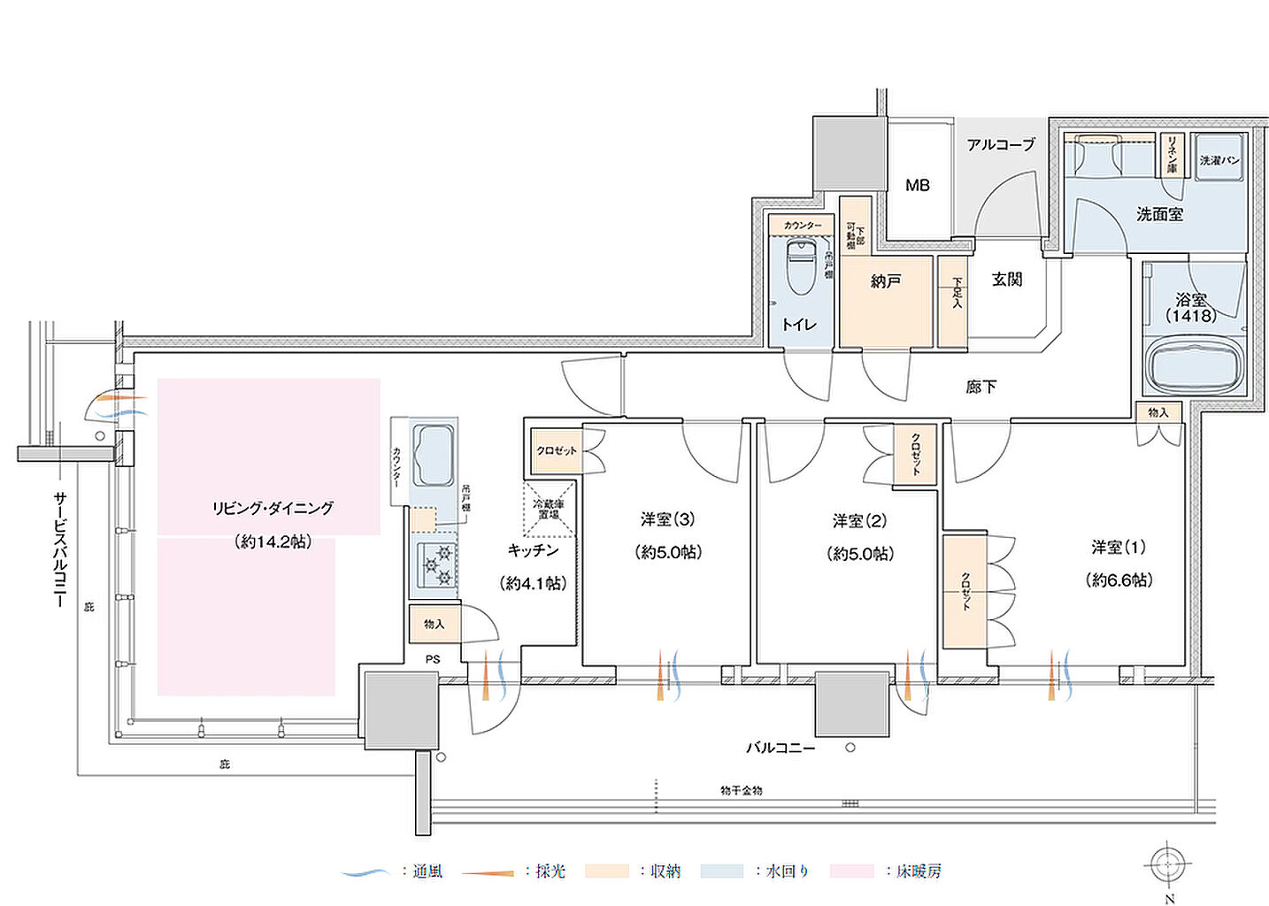
間取り一覧
  • J.GRAN TOWER 京都向日町 間取り AH

    AH

    間取り
    2LDK+2WIC
    専有面積
    58.44㎡
    バルコニー
    面積
    15.48㎡
    その他面積
    -
    所在階
    5~15階
    向き
    -
    備考
    -
  • J.GRAN TOWER 京都向日町 間取り AI

    AI

    間取り
    2LDK
    専有面積
    60.74㎡
    バルコニー
    面積
    15.52㎡
    その他面積
    -
    所在階
    -
    向き
    -
    備考
    -
  • J.GRAN TOWER 京都向日町 間取り BB

    BB

    間取り
    3LDK+WIC+SIC
    専有面積
    78.75㎡
    バルコニー
    面積
    20.80㎡
    その他面積
    -
    所在階
    -
    向き
    -
    備考
    -
  • J.GRAN TOWER 京都向日町 間取り BC

    BC

    間取り
    3LDK+WIC+SIC
    専有面積
    74.15㎡
    バルコニー
    面積
    20.11㎡
    その他面積
    -
    所在階
    16~30階
    向き
    -
    備考
    -
  • J.GRAN TOWER 京都向日町 間取り BG

    BG

    間取り
    3LDK+N
    専有面積
    83.34㎡
    バルコニー
    面積
    18.81㎡
    その他面積
    サービスバルコニー面積/1.64m
    所在階
    -
    向き
    -
    備考
    -
  • J.GRAN TOWER 京都向日町 間取り CC

    CC

    間取り
    3LDK+WIC
    専有面積
    77.55㎡
    バルコニー
    面積
    20.80㎡
    その他面積
    -
    所在階
    31~35階
    向き
    -
    備考
    -
  • J.GRAN TOWER 京都向日町 間取り DB

    DB

    間取り
    3LDK+WIC+SIC
    専有面積
    100.83㎡
    バルコニー
    面積
    25.68㎡
    その他面積
    -
    所在階
    -
    向き
    -
    備考
    -
  • J.GRAN TOWER 京都向日町 間取り DF

    DF

    間取り
    3LDK+N+SIC
    専有面積
    91.05㎡
    バルコニー
    面積
    22.48㎡
    その他面積
    -
    所在階
    36~38階
    向き
    -
    備考
    -
  • J.GRAN TOWER 京都向日町 間取り CD

    CD

    間取り
    4LDK+WIC+SIC
    専有面積
    101.62㎡
    バルコニー
    面積
    21.10㎡
    その他面積
    -
    所在階
    31~35階
    向き
    -
    備考
    -
  • J.GRAN TOWER 京都向日町 間取り AH

    AH

    間取り
    2LDK+2WIC
    専有面積
    58.44㎡
    バルコニー
    面積
    15.48㎡
    その他面積
    -
    所在階
    5~15階
    向き
    -
    備考
    -
  • J.GRAN TOWER 京都向日町 間取り AI

    AI

    間取り
    2LDK
    専有面積
    60.74㎡
    バルコニー
    面積
    15.52㎡
    その他面積
    -
    所在階
    -
    向き
    -
    備考
    -
  • J.GRAN TOWER 京都向日町 間取り BB

    BB

    間取り
    3LDK+WIC+SIC
    専有面積
    78.75㎡
    バルコニー
    面積
    20.80㎡
    その他面積
    -
    所在階
    -
    向き
    -
    備考
    -
  • J.GRAN TOWER 京都向日町 間取り BC

    BC

    間取り
    3LDK+WIC+SIC
    専有面積
    74.15㎡
    バルコニー
    面積
    20.11㎡
    その他面積
    -
    所在階
    16~30階
    向き
    -
    備考
    -
  • J.GRAN TOWER 京都向日町 間取り BG

    BG

    間取り
    3LDK+N
    専有面積
    83.34㎡
    バルコニー
    面積
    18.81㎡
    その他面積
    サービスバルコニー面積/1.64m
    所在階
    -
    向き
    -
    備考
    -
  • J.GRAN TOWER 京都向日町 間取り CC

    CC

    間取り
    3LDK+WIC
    専有面積
    77.55㎡
    バルコニー
    面積
    20.80㎡
    その他面積
    -
    所在階
    31~35階
    向き
    -
    備考
    -
  • J.GRAN TOWER 京都向日町 間取り DB

    DB

    間取り
    3LDK+WIC+SIC
    専有面積
    100.83㎡
    バルコニー
    面積
    25.68㎡
    その他面積
    -
    所在階
    -
    向き
    -
    備考
    -
  • J.GRAN TOWER 京都向日町 間取り DF

    DF

    間取り
    3LDK+N+SIC
    専有面積
    91.05㎡
    バルコニー
    面積
    22.48㎡
    その他面積
    -
    所在階
    36~38階
    向き
    -
    備考
    -
  • J.GRAN TOWER 京都向日町 間取り CD

    CD

    間取り
    4LDK+WIC+SIC
    専有面積
    101.62㎡
    バルコニー
    面積
    21.10㎡
    その他面積
    -
    所在階
    31~35階
    向き
    -
    備考
    -

オンライン相談とは

モデルルームや現地に行くことなく、自宅からビデオ通話で不動産会社スタッフと物件の相談をすることができます。
  1. 不動産会社へ問合せ

    「オンライン相談」ボタンまたは「見学予約」ボタンを押してフォーム内の「オンライン相談」を選択し送信します。

  2. 不動産会社と日程・接続方法を調整

    不動産会社から連絡が来たらオンライン相談の日時を調整して、予約完了。

  3. 相談方法がメールで届く

    メールにてオンライン相談の利用方法が届きますので、ご確認ください。

  4. 指定場所にアクセス

    当日、予約時刻になったら指定のビデオ通話につなぎ、ご相談ください。

利用時の注意事項
  • ビデオ通話については各不動産会社指定のものとなります。
  • ビデオ通話利用時には通信が発生します。従量課金制通信サービスや通信料に上限があるネット回線・プランを利用する場合は、通信量に注意してください。
  • 通信速度やアプリの設定によってはビデオ通話の画質が低下することがあります。安定した画質で利用するためにも、Wi-Fi環境下での利用を推奨します。
  • ご利用のビデオ通話アプリによっては、対象のOSやブラウザに制限がある場合があります。詳しくはお問合せ先不動産会社にご確認ください。

閉じる

条件を削除すると新着お知らせメールの
配信が停止されますがよろしいですか?