

喜多方市W様邸 モノクロ外壁のデザイナーズハウス 3LDK
施工事例データ
モノクロのシンプルデザインの外観がカッコイイお家です。 外観はモノクロでかっこよくまとめ、内装はホワイトとウッドを中心にナチュラルで温かみのある雰囲気に。 特にこだわったのは収納で、玄関ホール・リビング・キッチン・2階の廊下に充実した収納をつくり、 寝室には部屋の主に合わせた収納をつくりました。 また、2階のランドリールーム、照明がつくミラーがある洗面台がポイントです。
モノクロのシンプルデザインの外観がカッコイイお家です。 外観はモノクロでかっこよくまとめ、内装はホワイトとウッドを中心にナチュラルで温かみのある雰囲気に。 特にこだわったのは収納で、玄関ホール・リビング・キッチン・2階の廊下に充実した収納をつくり、 寝室には部屋の主に合わせた収納をつくりました。 また、2階のランドリールーム、照明がつくミラーがある洗面台がポイントです。
本体価格
坪単価
床面積
土地面積
間取り
工法
所在地
竣工年
家族構成
ペット
商品名
建築対応エリア
家づくりのヒントとは

- 家づくりのアイディア
- イメージふくらむ写真
- 工法や技術
- 間取り・プラン実例
内観・外観画像(10件)

正面から出入りが見えない玄関。 モノクロデザインで、カッコイイ色合いの玄関の外観です。 雨の日も雪の日も奥行きがあるので、濡れる心配はありません。 また、来客時も正面から見えないので、視線を気にする必要がありません。

玄関ホールの収納は、ハンガーポールも棚もあります。 上の棚には、Wi-fiなどのインターネット機器を置く場所も。 配電盤もここにあるので、見た目がかなりスッキリします。 棚は好きな高さに変えられる可動棚なので、自分だけの使い勝手がよい収納になります。

無垢材のフローリングと、真っ白いクロスで明るくシンプルな寝室です。 収納たっぷりのクローゼットがあるので、部屋をキレイにキープできます。

明るくナチュラルで温かみのあるLDK。 キッチンはオリジナルの背面収納と、食事もできるフラットな作業スペースにこだわりました。 背面収納は、半透明の扉で仕切るので、見た目がスッキリとしたキッチンに。 パントリーも兼ねた背面収納には、ゴミ箱も収納できるところがポイントです。 フラットな作業スペースの反対側は、椅子が置けるので食事もできる仕様です。 キッチン脇には階段、サニタリースペースと続き、間にちょっとした収納を設置。 限られた空間で最大限の収納ができ、とりやすいようにL字型の棚にしました。 もちろん好きな高さに変えられるので、便利です。 小さいながらウッドデッキ&中庭もあるので、視線をさえぎりつつ明るさを確保できます。

スッキリシンプルデザインでまとめた明るい洗面&トイレです。 コロンとした丸い洗面ボウルに合わせたのは、手作りの洗面台と棚です。 飾り棚は下にタオルハンガーが付いているので、一石二鳥のデザインになっています。 特に照明がついたミラーにこだわり、タッチパネルで電源を入れるので便利です。 トイレは、できるだけシンプルなリモコンを選びました。

お手入れがしやすい色とつくりにしたお風呂。 シンプルなお風呂は、お掃除しやすく使いやすくをテーマに選びました。

真っ白なクロスと無垢材のフローリングがまぶしい二階の寝室。 こちらは引き出し・棚・ハンガーポールがあるクローゼットに。 ハイドアなので広い空間に感じられます。

ナチュラルウッドな2階の寝室。 こちらは引き出しと棚を広めにとったクローゼットに。

明るくシンプルなランドリールーム。 天気が悪い日でも室内干しができる部屋には、上に物干し竿があって、 洗濯物をたたんだり、アイロンをかけたりできる折りたたみ式の作業台もあります。

2階の寝室の間にある空間を利用した収納。 限りあるスペースを有効活用するためにL字型の棚にしました。 L字にすることで、取り出ししやすい奥行き、カタチになっています。 上には大物が収納できるので、意外とたくさん入ります。
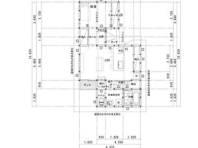
間取り図(2件)

コンパクトな3LDKの1階の間取り図です。 十分な収納をとり、散らかりにくい家を目指しました。

2階の間取り図です。 収納が効率よく並んでいるのがよく分かります。 2階にもトイレがあるので便利です。
家づくりのヒントとは

- 家づくりのアイディア
- イメージふくらむ写真
- 工法や技術
- 間取り・プラン実例
この会社の他の施工事例(10件)

施工事例
会津若松市O様邸 中庭のある平屋2LDK エッジの効いた木目&ガルバ中庭のある家
- 床面積
- 29.40坪(97.30㎡)
- 土地面積
- 98.80坪(326.60㎡)
- 竣工年
- 2026年
- 工法
- 木造軸組(在来)工法





この会社の他の情報
- カタログ(0件)
- 画像(138件)
- 住宅イベント(0件)
- 評判(0件)
- こだわり・特長(20件)
- 店舗・展示場・モデルハウス(1件)
- スタッフへのインタビュー(0件)
お問合せ
電話でお問合せ
音声案内に従い、
店舗番号8370を入力してください
※上記番号で通話できない場合は、0241-23-6247におかけ直しください
※住み替えを検討されているお客様以外からのお問合わせはお断りしております
メールでお問合せ
家づくりのヒントとは

- 家づくりのアイディア
- イメージふくらむ写真
- 工法や技術
- 間取り・プラン実例
共有する
建築対応エリア
| 福島県 | 会津若松市、喜多方市、耶麻郡北塩原村、耶麻郡西会津町、耶麻郡磐梯町、耶麻郡猪苗代町、河沼郡会津坂下町、河沼郡湯川村、河沼郡柳津町、大沼郡会津美里町 |
|---|
建てたいエリアを教えてください
選択していただくとお客様情報の入力に進みます。
※会社の建築対応エリアによって、選択できないエリアがあります。
オンライン相談とは
- 1
住宅メーカーへ問合せ
「この会社へお問合せ」ボタンを押して、フォーム上で「オンライン相談を希望する」旨をご記入し送信します。
- 2
住宅メーカーと日程を調整
住宅メーカーから連絡が来たらオンライン相談の日程を調整して、予約完了。
- 3
相談方法のご確認
メールやSMS等にてオンライン相談の利用方法が届きますので、ご確認ください。
- 4
指定場所にアクセス
当日、予約時刻になったらご指定のビデオ通話につなぎ、ご相談ください。
利用時の注意事項
- ビデオ通話については各住宅メーカー指定のものとなります。
- ビデオ通話利用時には通信が発生します。従量課金制通信サービスや通信料に上限があるネット回線・プランを利用する場合は、通信量に注意してください。
- 通信速度やアプリの設定によってはビデオ通話の画質が低下することがあります。安定した画質で利用するためにも、Wi-Fi環境下での利用を推奨します。
- ご利用のビデオ通話アプリによっては、対象のOSやブラウザに制限がある場合があります。詳しくはお問合せ先住宅メーカーにご確認ください。

