

磐梯町Y様邸 広々としたウッドデッキが贅沢な3LDK ロフトのある家
施工事例データ
コンセプトは「贅沢なおうち時間を過ごせる家」 広々としたウッドデッキの中庭、 秘密基地のようなロフト、 収納が多く、IH+ガスのハイブリッドコンロのあるキッチン、 スロップシンクや天井まである収納がある洗面脱衣スペース…など、 家族それぞれが贅沢な時間を過ごせるような空間ができました。 また、太陽光発電や蓄電池で省エネ・創エネになる住宅に。 どんなことをするか、ワクワクする家です。
コンセプトは「贅沢なおうち時間を過ごせる家」 広々としたウッドデッキの中庭、 秘密基地のようなロフト、 収納が多く、IH+ガスのハイブリッドコンロのあるキッチン、 スロップシンクや天井まである収納がある洗面脱衣スペース…など、 家族それぞれが贅沢な時間を過ごせるような空間ができました。 また、太陽光発電や蓄電池で省エネ・創エネになる住宅に。 どんなことをするか、ワクワクする家です。
本体価格
坪単価
床面積
土地面積
間取り
工法
所在地
竣工年
家族構成
ペット
商品名
建築対応エリア
家づくりのヒントとは

- 家づくりのアイディア
- イメージふくらむ写真
- 工法や技術
- 間取り・プラン実例
内観・外観画像(10件)

省エネ&創エネになる太陽光発電
太陽光発電があれば、発電した電気を自宅で使えることはもちろん、 余ったら売電できて省エネ&創エネになります。

広いウッドデッキの中庭
広々とした中庭には、ウッドデッキを設置しました。 目隠しや日よけになる屋根、外壁もあるので、視線を気にすることなく過ごせます。 水栓・コンセントもあるので、何をしようか楽しみになる空間です。

スロップシンクと収納にこだわった洗面脱衣所
蛇口がシャワーヘッドになっているスロップシンク、 ニッチ収納・収納たっぷりの洗面台、 タオルの収納に便利な造作収納など、使い勝手がいい空間を目指しました。 天井からは、部屋干しができるように物干しポールが下がっています。

天井が高くて開放感のある明るいLDK
天井は勾配天井なので、高くて開放感があります。 シーリングファンが別荘のような豪華な雰囲気を出しています。 キッチンからは中庭が見えて、子ども達が遊んでいる様子を見ながら料理が作れます。 大きな窓の上にも窓があるので、とても明るい光が差し込みます。

便利な機能がたくさんのこだわりのキッチン
IHとガスの両方を備えたハイブリッドコンロは、 どっちでも料理したい料理好きで欲張りな方にオススメ。 蛇口は、両手がふさがっていても使える、タッチレス水栓。 食洗機はドイツのミーレ社のもので、フロントオープンで出し入れしやすいです。 さらに嬉しいのは予洗いがいらないところ。 キッチンの床はタイルのようなクッションフロアで、おそうじしやすい材質です。

階段下の空間を有効活用した収納
階段下には扉付きの収納と オープン収納棚を作りました。 オープン収納棚は、L字に棚板を配置して、ムダがなく、使いやすいように工夫しました。

中庭に面した寝室
中庭へすぐ出られる寝室は、落ち着いて眠れるように クロスはグレーにしました。 細長い窓で光が入りすぎないように工夫しました。

クローゼットのある子ども部屋
天井まであるオシャレなグレーのドアを開けると クローゼット付きのシンプルな子ども部屋が広がります。 クロスが真っ白なので、広く明るく感じます。

秘密基地のようなロフト
階段を登ると、そこには秘密基地のようなロフトが広がります。 子どもが小さい頃は、遊び場として。 大きくなったら趣味の空間や、収納として。 多機能に使える空間にしました。 LDKの上にあるので、声が聞こえて安心です。

ロフトから見たLDK
おーい!と手を振って言いたくなるロフトからの眺めです。
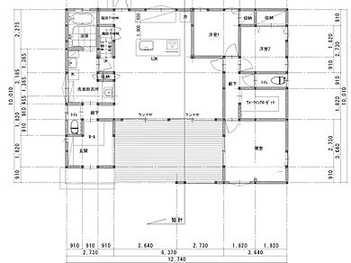
間取り図(2件)

トイレは玄関近くと、寝室近くに配置しました。 子供部屋は4.5畳、寝室は6畳とコンパクトでムダのない大きさに。 ウッドデッキとLDKの広さにもこだわりました。

手前だけロフトとして活用。 窓と腰壁だけなので、様々な用途に使える空間にしました。
家づくりのヒントとは

- 家づくりのアイディア
- イメージふくらむ写真
- 工法や技術
- 間取り・プラン実例
この会社の他の施工事例(10件)

施工事例
会津若松市O様邸 中庭のある平屋2LDK エッジの効いた木目&ガルバ中庭のある家
- 床面積
- 29.40坪(97.30㎡)
- 土地面積
- 98.80坪(326.60㎡)
- 竣工年
- 2026年
- 工法
- 木造軸組(在来)工法





この会社の他の情報
- カタログ(0件)
- 画像(138件)
- 住宅イベント(0件)
- 評判(0件)
- こだわり・特長(20件)
- 店舗・展示場・モデルハウス(1件)
- スタッフへのインタビュー(0件)
お問合せ
電話でお問合せ
音声案内に従い、
店舗番号8370を入力してください
※上記番号で通話できない場合は、0241-23-6247におかけ直しください
※住み替えを検討されているお客様以外からのお問合わせはお断りしております
メールでお問合せ
家づくりのヒントとは

- 家づくりのアイディア
- イメージふくらむ写真
- 工法や技術
- 間取り・プラン実例
共有する
建築対応エリア
| 福島県 | 会津若松市、喜多方市、耶麻郡北塩原村、耶麻郡西会津町、耶麻郡磐梯町、耶麻郡猪苗代町、河沼郡会津坂下町、河沼郡湯川村、河沼郡柳津町、大沼郡会津美里町 |
|---|
建てたいエリアを教えてください
選択していただくとお客様情報の入力に進みます。
※会社の建築対応エリアによって、選択できないエリアがあります。
オンライン相談とは
- 1
住宅メーカーへ問合せ
「この会社へお問合せ」ボタンを押して、フォーム上で「オンライン相談を希望する」旨をご記入し送信します。
- 2
住宅メーカーと日程を調整
住宅メーカーから連絡が来たらオンライン相談の日程を調整して、予約完了。
- 3
相談方法のご確認
メールやSMS等にてオンライン相談の利用方法が届きますので、ご確認ください。
- 4
指定場所にアクセス
当日、予約時刻になったらご指定のビデオ通話につなぎ、ご相談ください。
利用時の注意事項
- ビデオ通話については各住宅メーカー指定のものとなります。
- ビデオ通話利用時には通信が発生します。従量課金制通信サービスや通信料に上限があるネット回線・プランを利用する場合は、通信量に注意してください。
- 通信速度やアプリの設定によってはビデオ通話の画質が低下することがあります。安定した画質で利用するためにも、Wi-Fi環境下での利用を推奨します。
- ご利用のビデオ通話アプリによっては、対象のOSやブラウザに制限がある場合があります。詳しくはお問合せ先住宅メーカーにご確認ください。

