

会津若松市N様邸 デザインと機能性にこだわった3LDK 中庭のある平屋
施工事例データ
家全体のコンセプトは「高いデザイン性とシンプルさ」 外観や照明、建具やキッチンなど一貫したスタイルが特徴です。 また、玄関外収納、シューズボックス、 パントリー、LDK収納、寝室収納など 収納が多いのでスッキリ暮らせます。 さらに省エネで快適に過ごせるジョイ・コスシステムや、 太陽光発電も導入。 中庭や脱衣所のサウナ、独立テレビアンテナにも こだわったオトナの遊びのある家です。
家全体のコンセプトは「高いデザイン性とシンプルさ」 外観や照明、建具やキッチンなど一貫したスタイルが特徴です。 また、玄関外収納、シューズボックス、 パントリー、LDK収納、寝室収納など 収納が多いのでスッキリ暮らせます。 さらに省エネで快適に過ごせるジョイ・コスシステムや、 太陽光発電も導入。 中庭や脱衣所のサウナ、独立テレビアンテナにも こだわったオトナの遊びのある家です。
本体価格
坪単価
床面積
土地面積
間取り
工法
所在地
竣工年
家族構成
ペット
商品名
建築対応エリア
家づくりのヒントとは

- 家づくりのアイディア
- イメージふくらむ写真
- 工法や技術
- 間取り・プラン実例
内観・外観画像(10件)

やわらかな間接照明がステキな玄関。 シューズボックスも上下にあるので、たくさん収納できます。 反対側には絵のためのニッチがあり、 アートがお客様をお出迎えしてくれます。

クロスがポイントの客間。 中庭に面した窓には、クロスと同じロールスクリーンを。 玄関とトイレが近くなので、お客様も気兼ねなく過ごせます。

ウッドデッキのある中庭。 フェンスがあるので全く視線が気になりません。 LDKや廊下、書斎や玄関ホールから中庭が見えて、 景色がとても良いです。 中庭から明るい光が、部屋全体を包み込んでくれます。

キッチンにアクセス抜群な書斎。 ドアを開け放せば中庭も見えます。 天井のクロスはLDKと同じグレージュで。 照明は施主様こだわりのオシャレなものを。 シンプルなので、どんなインテリアにするか 楽しみになる部屋です。

収納たっぷりな広々とした明るいLDK。 中庭から明るい光が差し込むので、とても明るいです。 もちろんカーテンなしで快適に暮らせます。 壁面に収納が2つあるので、細々としたものを収納して スッキリ暮らせます。 Wi-Fi機器などは、こちらの収納上部に隠せます。 天井はシックなグレージュで、とてもオシャレな仕上がり。 照明は施主様こだわりの 扇風機が真ん中にある照明です。

グレーの大理石調のシステムキッチン。 蛇口が2つあり、片方は浄水となっています。 IHのグリルは深いタイプのもので、色々な料理が作れそうです。 カウンターの上の照明も施主様こだわりのもの。 また、施主様こだわりの食洗機が設置されています。

収納たっぷりの明るい洗面台。 ミラーの後ろ、洗面ボウルの下にも収納があります。 コンセントもあるので、電気製品の充電もおまかせです。 右下にはお掃除ロボットの充電スポットを。 洗面、ランドリールーム、脱衣所と全て分かれているので、 気兼ねなく使えます。

収納とウォークインクローゼットのある寝室。 収納には大型のものも収納できて便利。 ウォークインクローゼットは、衣類と分けて収納できます。 寝室の天井は白でシンプルにして、よく眠れる部屋に。

サウナのある脱衣所。 サウナで汗をかいたら、レインシャワーで汗を流す… サウナ好きには、たまらない家です。

家全体に敷き詰められたジョイ・コス住宅システムの 炭化コルクのパネル。 ジョイ・コス住宅システムは、 高性能なサッシ窓・炭化コルク・24時間換気システム この3つで快適な生活を支えるものです。 省エネに優れた高気密・高断熱住宅を考えるなら、 おすすめのシステムです。
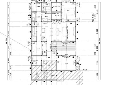
間取り図(1件)

中庭のある3LDK平屋の間取り。 広めの玄関、独立した洗面所・ランドリールーム・脱衣所がポイントです。 ムダのない間取りを意識しているため、 廊下の面積もできるだけ少なくしています。
家づくりのヒントとは

- 家づくりのアイディア
- イメージふくらむ写真
- 工法や技術
- 間取り・プラン実例
この会社の他の施工事例(11件)


施工事例
会津若松市O様邸 中庭のある平屋2LDK エッジの効いた木目&ガルバ中庭のある家
- 床面積
- 29.40坪(97.30㎡)
- 土地面積
- 98.80坪(326.60㎡)
- 竣工年
- 2026年
- 工法
- 木造軸組(在来)工法




この会社の他の情報
- モデルハウス・住宅展示場(0件)
- カタログ(0件)
- 画像(150件)
- 評判(0件)
- 住宅イベント(0件)
- こだわり・特長(21件)
- 店舗・営業所・支店(1件)
- スタッフへのインタビュー(0件)
お問合せ
電話でお問合せ
音声案内に従い、
店舗番号8370を入力してください
※上記番号で通話できない場合は、0241-23-6247におかけ直しください
※住み替えを検討されているお客様以外からのお問合わせはお断りしております
メールでお問合せ
家づくりのヒントとは

- 家づくりのアイディア
- イメージふくらむ写真
- 工法や技術
- 間取り・プラン実例
共有する
他の「平屋住宅」の施工事例





施工事例
22坪でも開放感に溢れ、導線もバッチリ♪ インテリアモロの平屋住宅【ヒノッキオ】
- 床面積
- 22.00坪(72.72㎡)
- 土地面積
- 120.00坪(396.69㎡)
- 竣工年
- 2012年
- 工法
- 木造軸組(在来)工法







建築対応エリア
| 福島県 | 会津若松市、喜多方市、耶麻郡北塩原村、耶麻郡西会津町、耶麻郡磐梯町、耶麻郡猪苗代町、河沼郡会津坂下町、河沼郡湯川村、河沼郡柳津町、大沼郡会津美里町 |
|---|
建てたいエリアを教えてください
選択していただくとお客様情報の入力に進みます。
※会社の建築対応エリアによって、選択できないエリアがあります。
オンライン相談とは
- 1
住宅メーカーへ問合せ
「この会社へお問合せ」ボタンを押して、フォーム上で「オンライン相談を希望する」旨をご記入し送信します。
- 2
住宅メーカーと日程を調整
住宅メーカーから連絡が来たらオンライン相談の日程を調整して、予約完了。
- 3
相談方法のご確認
メールやSMS等にてオンライン相談の利用方法が届きますので、ご確認ください。
- 4
指定場所にアクセス
当日、予約時刻になったらご指定のビデオ通話につなぎ、ご相談ください。
利用時の注意事項
- ビデオ通話については各住宅メーカー指定のものとなります。
- ビデオ通話利用時には通信が発生します。従量課金制通信サービスや通信料に上限があるネット回線・プランを利用する場合は、通信量に注意してください。
- 通信速度やアプリの設定によってはビデオ通話の画質が低下することがあります。安定した画質で利用するためにも、Wi-Fi環境下での利用を推奨します。
- ご利用のビデオ通話アプリによっては、対象のOSやブラウザに制限がある場合があります。詳しくはお問合せ先住宅メーカーにご確認ください。

