

会津若松市O様邸 中庭のある平屋2LDK エッジの効いた木目&ガルバ中庭のある家
施工事例データ
コンセプトは「シンプルに暮らせる家&生活感ゼロの外観」 ●シューズクローゼットやパントリー、ファミクロなど 収納を各所に設け、キレイをキープ。 ●断熱性能を高くして、エアコン1つで快適に過ごせる。 ●正面に窓をなくし生活感ゼロに、防犯性もアップ。 ●中庭、北側に大きな窓を設置し、光を取り込める。 ●ガルバリウムの外壁は、かっこよさはもちろん、 メンテナンスのしやすさもポイント。
コンセプトは「シンプルに暮らせる家&生活感ゼロの外観」 ●シューズクローゼットやパントリー、ファミクロなど 収納を各所に設け、キレイをキープ。 ●断熱性能を高くして、エアコン1つで快適に過ごせる。 ●正面に窓をなくし生活感ゼロに、防犯性もアップ。 ●中庭、北側に大きな窓を設置し、光を取り込める。 ●ガルバリウムの外壁は、かっこよさはもちろん、 メンテナンスのしやすさもポイント。
本体価格
坪単価
床面積
土地面積
間取り
工法
所在地
竣工年
家族構成
ペット
商品名
建築対応エリア
家づくりのヒントとは

- 家づくりのアイディア
- イメージふくらむ写真
- 工法や技術
- 間取り・プラン実例
内観・外観画像(10件)

シューズクローゼット
コートや外遊びの道具 アウトドアギアなどが収納できます

子供部屋
将来2つの部屋にセパレートできる子供部屋 2つのドアがあり、エアコンや照明など設置できるように 準備してあります。

LDK
グレーのクロスと無垢材で暖かみがある空間に。 照明はシンプルにダウンライトを。 広々とした空間で思い思いの過ごし方ができます

キッチン
収納は高さのないものでそろえ、上に飾り棚を付けました。 収納の壁面にコンセントがいくつかあるので、様々な家電を並べて使えます。 食洗機付きのシステムキッチンで、IHとレンジフードは標準的なシンプルなものにしました。

ファミリークローゼット
ハンガーパイプには長さのある服を掛けておけて、 可動できる棚は、Tシャツなどの畳む服や小物を置けます。 上の棚には仕切りがあるので、キレイに並べて使えます。 ロボット掃除機の充電場所や、ネット環境の設置場所としても使います。

主寝室
寝心地が良さそうなシンプルな寝室。 グレーのクロスと無垢材の暖かみが落ち着きます。 ドアは、この家全て天井まであるハイドアとなっています。 身長が高い方に喜ばれているだけでなく、 ドア枠がないので掃除の必要がなく、 空気の出入りもしやすいため、LDKにあるエアコンだけで過ごせます。

和室
琉球畳と真ん丸の照明がホッと和む和室。 ゴロンと寝転がれる畳の和室は、い草の香りでとても癒やされます。 来客時の寝室としても使えます。

中庭
中庭の外壁だけ白にして、反射光を取り入れる工夫をしています。 雪対策でフェンスの下は、排雪できるようにしてあります。 フェンスのおかげで、視線を気にすることなく過ごせるのでカーテンなしでOKです。

洗面所
幅の広い大きなミラーと洗面台、ちょっとした棚がポイント。 造作なのでオリジナリティーあふれる洗面台になりました。 木材部分にはクリア塗料を塗って、水分対策をしています。 可動できる棚もあるので、オシャレに収納できます。

脱衣所
折りたたみ式の作業デスクで、アイロンがけや洗濯物たたみができます。 脱衣所には洗濯機があり、洗濯物干しは天井に付けてあるので、 洗濯動線が近くて便利です。
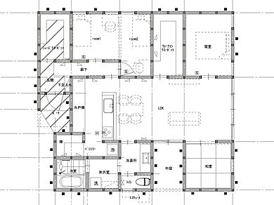
間取り図(1件)

水回りを南に集めて、各所に収納を配置しました。 ムダのないつくりをコンセプトにしているので、廊下は極力作らないように 心がけました。 LDKは広くして開放感のある空間にしました。
家づくりのヒントとは

- 家づくりのアイディア
- イメージふくらむ写真
- 工法や技術
- 間取り・プラン実例
この会社の他の施工事例(10件)
この会社の他の情報
- カタログ(0件)
- 画像(138件)
- 住宅イベント(0件)
- 評判(0件)
- こだわり・特長(20件)
- 店舗・展示場・モデルハウス(1件)
- スタッフへのインタビュー(0件)
お問合せ
電話でお問合せ
音声案内に従い、
店舗番号8370を入力してください
※上記番号で通話できない場合は、0241-23-6247におかけ直しください
※住み替えを検討されているお客様以外からのお問合わせはお断りしております
メールでお問合せ
家づくりのヒントとは

- 家づくりのアイディア
- イメージふくらむ写真
- 工法や技術
- 間取り・プラン実例
共有する
他の「平屋住宅」の施工事例



施工事例
A refreshing beach house based on white!
- 床面積
- 30.41坪(100.52㎡)
- 土地面積
- 51.38坪(169.85㎡)
- 竣工年
- 2014年
- 工法
- ツーバイフォー・ツーバイシックス工法









建築対応エリア
| 福島県 | 会津若松市、喜多方市、耶麻郡北塩原村、耶麻郡西会津町、耶麻郡磐梯町、耶麻郡猪苗代町、河沼郡会津坂下町、河沼郡湯川村、河沼郡柳津町、大沼郡会津美里町 |
|---|
建てたいエリアを教えてください
選択していただくとお客様情報の入力に進みます。
※会社の建築対応エリアによって、選択できないエリアがあります。
オンライン相談とは
- 1
住宅メーカーへ問合せ
「この会社へお問合せ」ボタンを押して、フォーム上で「オンライン相談を希望する」旨をご記入し送信します。
- 2
住宅メーカーと日程を調整
住宅メーカーから連絡が来たらオンライン相談の日程を調整して、予約完了。
- 3
相談方法のご確認
メールやSMS等にてオンライン相談の利用方法が届きますので、ご確認ください。
- 4
指定場所にアクセス
当日、予約時刻になったらご指定のビデオ通話につなぎ、ご相談ください。
利用時の注意事項
- ビデオ通話については各住宅メーカー指定のものとなります。
- ビデオ通話利用時には通信が発生します。従量課金制通信サービスや通信料に上限があるネット回線・プランを利用する場合は、通信量に注意してください。
- 通信速度やアプリの設定によってはビデオ通話の画質が低下することがあります。安定した画質で利用するためにも、Wi-Fi環境下での利用を推奨します。
- ご利用のビデオ通話アプリによっては、対象のOSやブラウザに制限がある場合があります。詳しくはお問合せ先住宅メーカーにご確認ください。







