メインコンテンツにスキップ

日本最大級の不動産・住宅情報サイト ライフルホームズ

株式会社ウッドコンストラクションの施工事例「【自然素材×2階リビング】自然素材にこだわった木の優しさあふれる住まい」の画像

【自然素材×2階リビング】自然素材にこだわった木の優しさあふれる住まい

資料・カタログをもらう無料

施工事例データ

まるで別荘の様に薪ストーブの炎を見ながらペットと眠れる寝室。景色を見る為にあえて2階リビングとした空間は最上階である事を利用した勾配天井により、開放的な空間となっている。アウトリビングとして活用できるインナーバルコニーには、バスルームの窓が設置され、周りの自然を存分に堪能できるプランニングが見事だ。外壁に貼られた木製の羽目板も周りの景色にとても良く映え、自然と家が響き合う素敵な景観が実現している。

本体価格

-

坪単価

-

床面積

115.12㎡(34.80坪)

土地面積

1.00㎡(1.00坪)

間取り

-

工法

木造軸組(在来)工法

所在地

-

竣工年

-年

家族構成

-

ペット

-

商品名

-

建築対応エリア

住宅メーカーの資料・カタログをもらって家づくりのヒントを見てみませんか?

家づくりのヒントとは

家づくりのノウハウ本
  • 家づくりのアイディア
  • イメージふくらむ写真
  • 工法や技術
  • 間取り・プラン実例
お問合せいただいた方全員に家づくりのノウハウ本をプレゼント!

内観・外観画像10件)

株式会社ウッドコンストラクションの施工事例「【自然素材×2階リビング】自然素材にこだわった木の優しさあふれる住まい」の画像1
外観

青い空と緑の木々に木製の外壁材がとても合っていて、美しい景色となっている。

株式会社ウッドコンストラクションの施工事例「【自然素材×2階リビング】自然素材にこだわった木の優しさあふれる住まい」の画像2
外観

高低差のある全面道路から見上げる外観も、大きな軒の出に木製羽目板を貼る事で自然と調和した感じがある。

株式会社ウッドコンストラクションの施工事例「【自然素材×2階リビング】自然素材にこだわった木の優しさあふれる住まい」の画像3
玄関

玄関を開けると木が貼られた壁が出迎える。向かって左は薪ストーブのあるスペース、右は玄関クローク。

株式会社ウッドコンストラクションの施工事例「【自然素材×2階リビング】自然素材にこだわった木の優しさあふれる住まい」の画像4
玄関

玄関クロークの片隅には手洗い用のボウルを設置。カウンターに置かれた花瓶が素敵な雰囲気を醸し出している。

株式会社ウッドコンストラクションの施工事例「【自然素材×2階リビング】自然素材にこだわった木の優しさあふれる住まい」の画像5
玄関

玄関から見える位置にある、薪ストーブを囲むファイヤースペース。寝室とも繋がっている事で、ペットとゆったり夜を楽しむ空間となる。

株式会社ウッドコンストラクションの施工事例「【自然素材×2階リビング】自然素材にこだわった木の優しさあふれる住まい」の画像6
リビング

勾配天井の開放的な2階LDK。周りの景色が見渡せる最高級の場所。

株式会社ウッドコンストラクションの施工事例「【自然素材×2階リビング】自然素材にこだわった木の優しさあふれる住まい」の画像7
キッチン

ダイニングの近くにはキッチンと繋がる家事コーナーが設置されている。

株式会社ウッドコンストラクションの施工事例「【自然素材×2階リビング】自然素材にこだわった木の優しさあふれる住まい」の画像8
リビング

リビングに繋がる場所にはインナーバルコニーがあり、アウトリビングとして活用できる。

株式会社ウッドコンストラクションの施工事例「【自然素材×2階リビング】自然素材にこだわった木の優しさあふれる住まい」の画像9

家事コーナーのカウンターを挟んで上下に窓が設置されており、借景の緑が家の中に取り込まれた気持ちの良い空間となっている。

株式会社ウッドコンストラクションの施工事例「【自然素材×2階リビング】自然素材にこだわった木の優しさあふれる住まい」の画像10
風呂

右側に見えるのはバスルームの窓。この場所から景色を最大限に見渡せる様、手摺はスケルトンが採用されている。

間取り図2件)

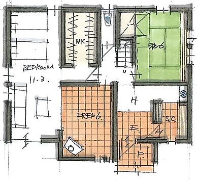
株式会社ウッドコンストラクションの施工事例「【自然素材×2階リビング】自然素材にこだわった木の優しさあふれる住まい」の1階間取り図の画像1
1階

「自然の景色を楽しみながらゆったりと暮らしたい」との要望から、眺望のいい2階にリビングを配置し、1階の主寝室にはセカンドリビングとしても活用できるファイヤースペースを緩やかに繋げ、ペットとゆったり薪ストーブの炎を見ながら、夜を楽しむ空間としました。また、和の雰囲気を楽しめる空間として独立した和室を設け、来客時の客室としても活用できる空間としています。

株式会社ウッドコンストラクションの施工事例「【自然素材×2階リビング】自然素材にこだわった木の優しさあふれる住まい」の2階間取り図の画像2
2階

見晴らしのいいリビングダイニングは2階の利点である勾配天井にする事で、更なる開放感をもたらし、家中で一番居心地の良い場所としました。また、リビングに繋がる場所にはインナーバルコニーがあり、アウトリビングとして活用する事で、LDKの広がりを最大限に感じられます。さらに、このインナーバルコニーにはバスルームの窓が配置されていて、景色を最大限に見渡せる様、スケルトンの手摺が採用されている為、まるでリゾートホテルの様な生活が、毎日楽しめるプランニングとなっています。

住宅メーカーの資料・カタログをもらって家づくりのヒントを見てみませんか?

家づくりのヒントとは

家づくりのノウハウ本
  • 家づくりのアイディア
  • イメージふくらむ写真
  • 工法や技術
  • 間取り・プラン実例
お問合せいただいた方全員に家づくりのノウハウ本をプレゼント!

この会社の他の施工事例5件)

施工事例をもっと見る

会社概要

株式会社ウッドコンストラクション

株式会社ウッドコンストラクション

ハウスメーカー

会社情報を詳しく見る

この会社の他の情報

お問合せ

電話でお問合せ

0120-937-734通話無料

音声案内に従い、
店舗番号4201を入力してください

上記番号で通話できない場合は、0120-911-866におかけ直しください

住み替えを検討されているお客様以外からのお問合わせはお断りしております

メールでお問合せ

住宅メーカーの資料・カタログをもらって家づくりのヒントを見てみませんか?

家づくりのヒントとは

家づくりのノウハウ本
  • 家づくりのアイディア
  • イメージふくらむ写真
  • 工法や技術
  • 間取り・プラン実例
お問合せいただいた方全員に家づくりのノウハウ本をプレゼント!

共有する

LINE で送る

建築会社様へ

  • 住宅情報を掲載する
    住宅情報を掲載する
    LIFULL HOME'Sなら、住宅カタログや施工事例が載せ放題!貴社の魅力をアピールして顧客リストを獲得できます。
  • 業務課題を発見・解決する
    業務課題を発見・解決する
    工務店・ビルダーの方へ、集客数UP、業務支援、販促企画、受注率向上など業務課題解決に役立つ情報をお届けします。