

性能も暮らしやすさも追求した、省エネ&家事ラクハウス
施工事例データ
Nさんが重視したスペックの高さ。 同社が奈良県内で全棟気密検査を実施していることが決め手に。 取得した計画地は南側に建物があるため、採光面が不安だったことから日照シミュレーションを行い、一年を通しての採光や通風を踏まえて計画されるパッシブデザインも魅力だったそう。 Nさんの暮らし方に合わせて設計される無駄のない動線や好みのデザインが実現する対応力の高さもあり、大満足の家づくりが実現した。
Nさんが重視したスペックの高さ。 同社が奈良県内で全棟気密検査を実施していることが決め手に。 取得した計画地は南側に建物があるため、採光面が不安だったことから日照シミュレーションを行い、一年を通しての採光や通風を踏まえて計画されるパッシブデザインも魅力だったそう。 Nさんの暮らし方に合わせて設計される無駄のない動線や好みのデザインが実現する対応力の高さもあり、大満足の家づくりが実現した。
本体価格
坪単価
床面積
土地面積
間取り
工法
所在地
竣工年
家族構成
ペット
商品名
建築対応エリア
施工事例の特長
家づくりのヒントとは

- 家づくりのアイディア
- イメージふくらむ写真
- 工法や技術
- 間取り・プラン実例
内観・外観画像(10件)

キッチン、ダイニング、リビングとつながりながらも緩やかにゾーニング。 2階の個室には必ずリビング階段を通る動線も、子どもたちの様子や交友関係がわかるので良かった。

Nさんの希望は、住むほどに快適さが深まる性能のいい住まい。 高気密・高断熱をかなえる前昌建設(マエショウ)ならそれが実現。 大きな吹き抜けを設けても家中が一定温度を保つ、快適に過ごせる家。 きちんと気密検査を行った根拠のある性能のおかげだ。

キッチンは空間と調和するデザイン性の高さと使い勝手の良さ、メンテナンスのしやすさで選んだ。 標準仕様でも食器洗い乾燥機が搭載されているため、食後のあと片付けがスムーズ。

壁付けにカップボードや収納棚をレイアウト。 ナチュラルなデザインの作業棚を設置し、その上をオープンシェルフに。 お気に入りの食器や洒落た調理家電、調味料を並べる「魅せる収納」にも挑戦。

カフェのような雰囲気の洒落たペニンシュラキッチンを採用。 天井は木のデザインを施し、シンプルでお洒落なソケットライトで演出。 キッチンを中心に楽しく過ごせる場所になった。

キッチン前のコーナーには、お子さんたちのスタディコーナーを計画。 お絵描きをしたり宿題をしたりと便利。ご夫妻のワークスペースとしても活用できる。

ランドリールームはゆったりとした広さを確保し、時間や天候を問わずに室内干しができるように。 家族分の着替えやタオルなどを収納するケースの高さに合わせて使いやすい作業台も造作。機能的なスペースだ。

家の中をのびのびとつなげる大きな吹き抜けがあり、開放感いっぱい。 天井にはお洒落なブラックのシーリングファンを設置。 エアコン一台でも快適に過ごせるようにした。

玄関の横にはウォークインタイプのシューズクローゼットを計画。 ゴルフバッグやベビーカーなどの嵩張るものも余裕で収納可能。 壁面いっぱいに棚を設置し、掛けて収納できるハンガーパイプも取り付けた。

南側に建物が迫る立地のため、東側と北側から採光を確保。 軒の大きさや角度を丁寧に調整するパッシブデザインを採用し、日照シミュレーションを実施しながら、十分な明るさを確保できるようにした。
間取り図(2件)

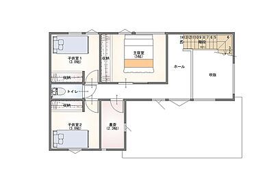
1階は広々LDKをメインとした配置。水回りは集中設計にしたことで家事ラク動線を意識。 隣にWICを配置したため準備などもスムーズに行えます。 LDKの隣には和室があり、お子様のプレイルームやお昼寝の他に来客の宿泊スペースとしても活用可能です。

リビングイン階段からあがってきた2階にはプライベートルームを配置。 各居室に収納を設けたことで室内をスッキリ保つことが可能です。 またLDKが吹抜けとなっているため室内全体が明るく、2階にいてもコミュニケーションも取りやすいため素敵な家族団らんのひと時をお過ごしいただけます。
家づくりのヒントとは

- 家づくりのアイディア
- イメージふくらむ写真
- 工法や技術
- 間取り・プラン実例
この会社の他の施工事例(36件)
この会社の他の情報
- モデルハウス・住宅展示場(0件)
- カタログ(0件)
- 画像(403件)
- 評判(0件)
- 住宅イベント(0件)
- こだわり・特長(21件)
- 店舗・営業所・支店(1件)
- スタッフへのインタビュー(0件)
お問合せ
電話でお問合せ
音声案内に従い、
店舗番号5154を入力してください
※上記番号で通話できない場合は、0745-55-7656におかけ直しください
※住み替えを検討されているお客様以外からのお問合わせはお断りしております
メールでお問合せ
家づくりのヒントとは

- 家づくりのアイディア
- イメージふくらむ写真
- 工法や技術
- 間取り・プラン実例
共有する
建築対応エリア
建てたいエリアを教えてください
選択していただくとお客様情報の入力に進みます。
※会社の建築対応エリアによって、選択できないエリアがあります。
オンライン相談とは
- 1
住宅メーカーへ問合せ
「この会社へお問合せ」ボタンを押して、フォーム上で「オンライン相談を希望する」旨をご記入し送信します。
- 2
住宅メーカーと日程を調整
住宅メーカーから連絡が来たらオンライン相談の日程を調整して、予約完了。
- 3
相談方法のご確認
メールやSMS等にてオンライン相談の利用方法が届きますので、ご確認ください。
- 4
指定場所にアクセス
当日、予約時刻になったらご指定のビデオ通話につなぎ、ご相談ください。
利用時の注意事項
- ビデオ通話については各住宅メーカー指定のものとなります。
- ビデオ通話利用時には通信が発生します。従量課金制通信サービスや通信料に上限があるネット回線・プランを利用する場合は、通信量に注意してください。
- 通信速度やアプリの設定によってはビデオ通話の画質が低下することがあります。安定した画質で利用するためにも、Wi-Fi環境下での利用を推奨します。
- ご利用のビデオ通話アプリによっては、対象のOSやブラウザに制限がある場合があります。詳しくはお問合せ先住宅メーカーにご確認ください。







