このページは物件の広告情報ではありません。
過去にLIFULL HOME'Sへ掲載された不動産情報と提携先の地図情報を元に生成した参考情報です。また、一般から投稿された情報など主観的な情報も含みます。
情報更新日: 2026/04/02
ザ・パークハウス 川越フロント
スポンサーリンク
ザ・パークハウス 川越フロントの建物情報
物件概要
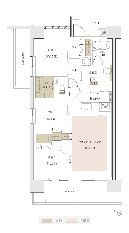
| 物件種別 | マンション |
|---|---|
| 築年月(築年数) | 2027年1月 (完成予定) |
| 建物構造 | 鉄筋コンクリート造地上19階建 |
| 総戸数/総区画数 | 192戸 |
| 敷地全体面積 | 2,258.28m2(売買対象面積)、2,258.15m2 (建築確認対象面積) |
| 用途地域 | 商業 |
| 地目 | 宅地 |
| 土地権利 | 所有権 |
| 建築確認番号 | 第UHEC建確R060339号(令和6年8月30日) |
| 施工会社 | 株式会社長谷工コーポレーション |
| 売主 | 三菱地所レジデンス株式会社 |
| 販売会社 | (売主)三菱地所レジデンス株式会社 国土交通大臣(16)第408号 東京都千代田区大手町1-9-2大手町フィナンシャルシティ グランキューブ (一社)不動産協会会員、(公社)首都圏不動産公正取引協議会加盟 |
設備・条件
- 追い焚き
- システムキッチン
- シングル&DINKS向け
- オートロック
※最新の状態と異なる場合があります
売りたい不動産をお持ちの方へ
このエリアの所有不動産を査定する
売却査定手続きの流れ、費用相場や注意点など不動産売却について詳しく知りたい方はLIFULL HOME'S 不動産査定へ
ザ・パークハウス 川越フロントの周辺施設
-
買い物
日用品 -
- セブンイレブン 川越駅西口ユープレイス店
- トモズU_PLACE川越店
- ローソン 川越脇田本町店
- ローソン 川越西ロータリー前店
- 買い物
大型店 -
- ルミネ 川越店
- エキア川越
- ノジマ ウニクス川越店
- 丸広百貨店 アトレマルヒロ
- グルメ
-
- マクドナルド 川越U_PLACE店
- リンガーハット 川越U_PLACE店
- タリーズコーヒーセレクトU_PLACE川越駅西口店
- 中華食堂日高屋川越西口店
- 娯楽施設
-
- 快活CLUB川越クレアモール店
- セントラルスイムクラブ川越
- 自遊空間SELF川越店
- タイトー Fステーションクレアモール川越店
- 役所
公共施設 -
- 川越駅西口郵便局
- 川越市立川越駅東口図書館
- 川越脇田郵便局
- 川越新宿郵便局
- 医療
-
- 医療法人社団尚篤会赤心堂病院
- 医療法人山口病院
- 献心会川越胃腸病院
- 保育施設
-
- 増美保育園川越駅前分園
- 増美保育園川越
- レイモンド川越保育園
- 新宿町保育園
- 学校
-
- 私立わせがく夢育高校川越キャンパス
- 川越市立仙波小学校
- 川越市立富士見中学校
- 埼玉県立川越工業高校
※学区外の学校が含まれる場合があります。実際の学区は必ず各自治体へご確認ください。
ザ・パークハウス 川越フロント周辺の物件情報
周辺の問合せ可能な物件
埼玉県川越市の問合せ可能な物件のうち、この物件の周辺にあるものから表示しています
賃貸
-
募集中
- 伊勢原七番館
- 5.5万円
- 東武東上線 川越駅 徒歩4分
- 埼玉県川越市脇田本町10-17
- 20.14m² / ワンルーム
-
募集中
- 東武東上線 川越駅 徒歩3分
- 6.3万円
- 東武東上線 川越駅 徒歩3分
- 埼玉県川越市脇田本町10-17
- 18.9m² / ワンルーム
-
募集中
- アンファージュ川越ファースト
- 13万円
- JR川越線 川越駅 徒歩5分
- 埼玉県川越市脇田本町10-22
- 55.39m² / 1SLDK
-
募集中
- JR川越線 川越駅 徒歩3分
- 11.2万円
- JR川越線 川越駅 徒歩3分
- 埼玉県川越市脇田本町
- 38.74m² / 1LDK
-
募集中
- 東武東上線 川越駅 徒歩3分
- 9.5万円
- 東武東上線 川越駅 徒歩3分
- 埼玉県川越市新宿町1丁目12-20
- 56.61m² / 3DK
-
募集中
- サクシィード
- 9.5万円
- 東武東上線 川越駅 徒歩3分
- 埼玉県川越市新宿町1丁目
- 54.68m² / 3DK
-
募集中
- ファインレジデンス川越WEST
- 11万円
- 東武東上線 川越駅 徒歩5分
- 埼玉県川越市脇田本町
- 35.3m² / 1LDK
-
募集中
- 東武東上線 川越駅 徒歩5分
- 11万円
- 東武東上線 川越駅 徒歩5分
- 埼玉県川越市脇田本町17-1
- 35.3m² / 1LDK
-
募集中
- MAISON DE BONHEUR
- 15.2万円
- 東武東上線 川越駅 徒歩5分
- 埼玉県川越市脇田本町19
- 56.98m² / 2LDK
-
募集中
- 東武東上線 川越駅 徒歩5分
- 15.2万円
- 東武東上線 川越駅 徒歩5分
- 埼玉県川越市脇田本町19
- 56.98m² / 2LDK
新築マンション
※完成後1年以上経過した未入居の物件が含まれている場合があります
-
売出し中
- 西武新宿線「南大塚」駅 徒歩2分
- 4,398万円~6,578万円
- 西武新宿線「南大塚」駅 徒歩2分
- 埼玉県川越市南台三丁目3番2(地番)
- 82.14m² / 2LDK~4LDK
-
売出し中
- 西武新宿線「南大塚」駅 徒歩5分
- 2,499万円
- 西武新宿線「南大塚」駅 徒歩5分
- 埼玉県川越市南大塚4丁目12-9、31、32(地番)
- 54.84m² / 2LDK
-
売出し中
- JR川越線「川越」駅 徒歩6分
- 6,545万円~7,217万円
- JR川越線「川越」駅 徒歩6分
- 埼玉県川越市南通町1番1(地番)
- 70.76m² / 3LDK
-
売出し中
- 東武東上線「川越」駅 徒歩6分
- 未定
- 東武東上線「川越」駅 徒歩6分
- 埼玉県川越市新宿町2丁目3-4
- 74.02m² / 1LDK~3LDK
-
売出し中
- 西武新宿線「本川越」駅 徒歩2分 (サブエントランスより計測) 、徒歩3分(メインエントランスより計測)
- 4,578万円~5,128万円
- 西武新宿線「本川越」駅 徒歩2分 (サブエントランスより計測) 、徒歩3分(メインエントランスより計測)
- 埼玉県川越市新富町二丁目1番8(地番)
- 52.69m² / 1LDK~2LDK
-
売出し中
- 西武新宿線「本川越」駅 徒歩5分
- 5,290万円~5,590万円
- 西武新宿線「本川越」駅 徒歩5分
- 埼玉県川越市通町18番5(地番)
- 66.58m² / 2LDK~2LDK+S
-
売出し中
- 西武新宿線「本川越」駅 徒歩7分
- 3,498万円~4,448万円
- 西武新宿線「本川越」駅 徒歩7分
- 埼玉県川越市新富町一丁目8-5(地番)
- 44.73m² / 1LDK+S・2LDK
-
売出し中
- 西武新宿線「本川越」駅 徒歩9分
- 3,600万円台~6,800万円台(予定) ※100万円単位
- 西武新宿線「本川越」駅 徒歩9分
- 埼玉県川越市連雀町30番8,30番9,30番11,31番1(地番)
- 64.08m² / 2LDK~3LDK
-
売出し中
- 東武東上線「川越」駅 徒歩6分
- 未定
- 東武東上線「川越」駅 徒歩6分
- 埼玉県川越市脇田町13番7
- 71.76m² / 2LDK~3LDK
-
売出し中
- JR川越線「川越」駅 徒歩4分
- 2,998万円
- JR川越線「川越」駅 徒歩4分
- 埼玉県川越市菅原町7-38、7-39(地番)
- 32.56m² / 1LDK
中古マンション
-
売出し中
- プレシスヴィアラ川越
- 3850万円
- JR川越線 川越駅 徒歩4分
- 埼玉県川越市脇田本町
- 43.94m² / 2LDK
-
売出し中
- いづみハイツ川越
- 2390万円
- JR川越線 川越駅 徒歩5分
- 埼玉県川越市脇田本町
- 57.86m² / 2SLDK
-
売出し中
- ローヤルシティ川越
- 5180万円
- JR川越線 川越駅 徒歩5分
- 埼玉県川越市脇田本町
- 70.07m² / 3LDK
-
売出し中
- パテラ川越
- 4280万円
- 東武東上線 川越駅 徒歩5分
- 埼玉県川越市脇田本町
- 66.2m² / 2SLDK
-
売出し中
- ライオンズマンション川越駅東
- 4480万円
- 東武東上線 川越駅 徒歩6分
- 埼玉県川越市菅原町
- 64.17m² / 2SLDK
-
売出し中
- パークホームズ川越ザレジデンス (ふじみ野店)
- 5580万円
- JR川越線 川越駅 徒歩5分
- 埼玉県川越市菅原町
- 66.82m² / 3LDK
-
売出し中
- パールハイム川越 (ふじみ野店)
- 2380万円
- JR川越線 川越駅 徒歩5分
- 埼玉県川越市菅原町
- 56.84m² / 2LDK
-
売出し中
- シャトー利休
- 1680万円
- JR川越線 川越駅 徒歩5分
- 埼玉県川越市脇田町
- 43.74m² / 2DK
-
売出し中
- コスモ川越脇田町
- 4580万円
- JR川越線 川越駅 徒歩6分
- 埼玉県川越市脇田町
- 70.8m² / 3LDK
-
売出し中
- 川越新宿マンション
- 2480万円
- 東武東上線 川越駅 徒歩9分
- 埼玉県川越市新宿町3丁目
- 69.3m² / 3LDK
一戸建て
-
売出し中
- 川越市野田町中古戸建て(賃貸中)
- 1280万円
- 東武東上線 川越市駅 徒歩12分
- 埼玉県川越市野田町1丁目
- 93.18m² / 4DK
-
売出し中
- 川越市野田町一丁目 〜南向きの築浅注文住宅〜
- 6680万円
- JR埼京線 川越駅 徒歩13分
- 埼玉県川越市野田町1丁目
- 146.98m² / 5LDK
-
売出し中
- 東武東上線 川越駅 徒歩9分
- 5480万円
- 東武東上線 川越駅 徒歩9分
- 埼玉県川越市仙波町1丁目
- 120.07m² / 3SLDK
-
売出し中
- 川越市仙波町2丁目 新築戸建
- 5890万円
- 東武東上線 川越駅 徒歩13分
- 埼玉県川越市仙波町2丁目
- 95.58m² / 3LDK
-
売出し中
- Kon Kon Home 川越市旭町 中古戸建
- 6680万円
- JR川越線 川越駅 徒歩16分
- 埼玉県川越市旭町2丁目5-39
- 103.02m² / 3LDK
-
売出し中
- 川越市新宿町3丁目 1号棟 全2棟
- 5590万円
- 東武東上線 川越駅 徒歩14分
- 埼玉県川越市新宿町3丁目12-15
- 97.7m² / 3LDK
-
売出し中
- 川越市新宿町3丁目 2号棟 全2棟
- 5290万円
- 東武東上線 川越駅 徒歩14分
- 埼玉県川越市新宿町3丁目12-15
- 84.46m² / 3LDK
-
売出し中
- 東武東上線「川越」駅 徒歩16分
- 【街角住宅展示場】販売価格6,980万円
- 東武東上線「川越」駅 徒歩16分
- 埼玉県川越市旭町2-5-12
- 103.02m² / 3LDK(可変対応可能)
-
売出し中
- 広栄町 中古戸建
- 2500万円
- 東武東上線 川越駅 徒歩20分
- 埼玉県川越市広栄町
- 126.99m² / 6DK
-
売出し中
- 川越市野田町二丁目 土地73坪 建物30坪
- 1980万円
- JR川越線 川越駅 徒歩18分
- 埼玉県川越市野田町2丁目22-11
- 79.49m² / 5DK
注文住宅
※表示価格は延べ床面積約132m²の場合の建物価格の参考値です
-
資料請求受付中
- 2000万円〜
- 一条工務店
- 【一条工務店】 建築実例集3冊セット(HOME’S限定)
-
資料請求受付中
- 1868万円〜
- タマホーム株式会社
- 大安心の家シリーズ
-
資料請求受付中
- 3000万円〜
- セキスイハイム
- 【セキスイハイム】総合カタログ(heimism)
-
資料請求受付中
- 3000万円〜
- 株式会社スウェーデンハウス
- 【スウェーデンハウス】お客様満足度総合第1位の声「No.1 Sweden House News」
-
資料請求受付中
- 2800万円〜
- ミサワホーム株式会社
- 【MISAWA】ミサワホーム代表カタログ3冊セット(HOME'S限定)
-
資料請求受付中
- 3040万円〜
- 川木建設株式会社
- 子どもがすくすく育つ家
-
資料請求受付中
- 3000万円〜
- トヨタホーム
- FIRST CLASS LIVING
-
資料請求受付中
- -
- アキュラホーム(AQ Group)
- 「超空間の家」
-
資料請求受付中
- -
- 積水ハウス
- BRAND BOOK
-
資料請求受付中
- 3000万円〜
- wonder HAUS
- wonder HAUSのカタログ5冊プレゼント!
エリア・駅で絞り込んで探す
賃貸
埼玉県のザ・パークハウスが含まれるマンション
物件の種類から探す
川越市で募集中の物件のみを検索できます
掲載情報に誤りや問題がある場合
LIFULL HOME'Sは「不動産会社」ではなく「情報掲載サイト」です
- ※管理会社の情報はLIFULL HOME'Sでは保持していないためお答えできません。お問合せはお控えください
- ※最新の募集状況は掲載中の不動産会社があれば、不動産会社へ直接お問合せください
掲載情報の訂正依頼 専用ダイヤル
0120-987-243
- 専用ダイヤル受付時間:10:00〜18:00
- ※土日・祝日、臨時休業日は除く
不動産データのご利用について
不動産事業におけるDX、サービスの改善、新規事業開発等をご検討中の方へ不動産データの活用をご提案します。LIFULL HOME'Sで集約した不動産情報や外部データは、不動産事業DX、不正決済防止、ローン審査、事業開発、研究等さまざまな事業でご活用いただいています。詳しくは以下よりご確認ください。
不動産アーカイブご利用アンケートにご協力ください
不動産アーカイブの掲載情報は、LIFULL HOME'S掲載の不動産情報および提携先の不動産情報を統計情報として集積したものであり、その存在や信憑性を保証するものではありません。