このページは物件の広告情報ではありません。
過去にLIFULL HOME'Sへ掲載された不動産情報と提携先の地図情報を元に生成した参考情報です。また、一般から投稿された情報など主観的な情報も含みます。
情報更新日: 2026/01/04
リソシエ西洞院センシア
スポンサーリンク
リソシエ西洞院センシアの建物情報
物件概要
| 物件種別 | マンション |
|---|---|
| 築年月(築年数) | 2015年7月 (築11年) |
| 建物構造 | 鉄筋コンクリート造・地上11階建 |
| 総戸数/総区画数 | 40戸 |
| 敷地全体面積 | 475.91平米 |
| 用途地域 | 商業 |
| 土地権利 | 所有権 |
| 建築確認番号 | 第H25確認建築京機構市01452号 |
| 施工会社 | 株式会社かねわ工務店 |
| 売主 | 田丸産業株式会社 |
| 販売会社 | 株式会社日経不動産販売 販売提携(代理) |
設備・条件
- 太陽光発電
- 追い焚き
- 浴室乾燥機
- コンロ三口以上
- システムキッチン
- 食器洗い乾燥機
- 高効率給湯器
- 浄水器・活水器
- 床暖房
- トランクルーム
- ブロードバンド
- シングル&DINKS向け
- 4LDK以上
- バリアフリー
- 複層ガラス採用(二重サッシ・防犯サッシ等)
- オートロック
- 防犯カメラ
- セキュリティ充実
- エレベーター
- ごみ出し24時間OK
- 宅配ボックス
- 外断熱
- 住宅性能評価書
- 環境にやさしい
- 子育てに優しい環境
- スーパー800m以内
- コンビニ400m以内
- 小学校800m以内
- 公園400m以内
- 複数路線
※最新の状態と異なる場合があります
売りたい不動産をお持ちの方へ
リソシエ西洞院センシアの周辺施設
-
買い物
日用品 -
- ローソン 五条若宮店
- フレスコ 五条西洞院店
- ココカラファイン新町店
- ファミリーマート 五条新町店
- 買い物
大型店 -
- エフワン 烏丸店
- COCON KARASUMA
- Kotochika四条
- ハンズ京都店
- グルメ
-
- ロイヤルホスト 堀川五条店
- 吉野家 烏丸五条店
- CoCo壱番屋 烏丸五条店
- マクドナルド 烏丸五条店
- 娯楽施設
-
- PASSIONE
- 京都シネマ
- ハッピーサイクル京都
- 文化施設
-
- 風俗博物館
- 遠藤剛熈美術館
- 龍谷ミュージアム
- 西陣織あさぎ美術館
- 役所
公共施設 -
- 京都若宮松原郵便局
- 京都市下京図書館
- 京都六条郵便局
- 京都五条東洞院郵便局
- 医療
-
- 木津屋橋武田病院
- 医療法人令寿会しまばら病院
- 保育施設
-
- 京都市立楊梅幼稚園
- 大谷保育園
- たちばな保育園
- 本願寺中央幼稚園
- 学校
-
- 京都市立下京雅小学校
- 京都市立下京中学校
- 京都市立下京中学校成徳学舎
- 京都市立松原中学校
リソシエ西洞院センシア周辺の物件情報
周辺の問合せ可能な物件
京都府京都市下京区の問合せ可能な物件のうち、この物件の周辺にあるものから表示しています
賃貸
-
募集中
- リソシエ西洞院センシア
- 23万円
- 京都市営烏丸線 五条駅 徒歩7分
- 京都府京都市下京区平屋町
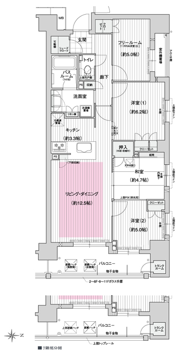
- 80.64m² / 4LDK
-
募集中
- ピュアコート五条
- 9.3万円
- 京都市営烏丸線 五条駅 徒歩8分
- 京都府京都市下京区平屋町44
- 36.18m² / 1DK
-
募集中
- リソシエ西洞院センシア
- 18万円
- 京都市営烏丸線 五条駅 徒歩5分
- 京都府京都市下京区西洞院通五条下る平屋町
- 64.46m² / 2SLDK
-
募集中
- 京都市営烏丸線 五条駅 徒歩5分
- 18万円
- 京都市営烏丸線 五条駅 徒歩5分
- 京都府京都市下京区平屋町
- 64.46m² / 2SLDK
-
募集中
- ピュアコート五条
- 9.3万円
- 京都市営烏丸線 五条駅 徒歩7分
- 京都府京都市下京区平屋町
- 36.18m² / 1DK
-
募集中
- ピュアコート五条
- 12.5万円
- 京都市営烏丸線 五条駅 徒歩8分
- 京都府京都市下京区西洞院通五条下る平屋町
- 45.79m² / 1DK
-
募集中
- 京都市営烏丸線 五条駅 徒歩8分
- 12.5万円
- 京都市営烏丸線 五条駅 徒歩8分
- 京都府京都市下京区平屋町
- 45.79m² / 1DK
-
募集中
- ピュアコート五条
- 9.3万円
- 京都市営烏丸線 五条駅 徒歩8分
- 京都府京都市下京区五条通西洞院西入平屋町
- 36.18m² / 1DK
-
募集中
- 京都市営烏丸線 五条駅 徒歩7分
- 18万円
- 京都市営烏丸線 五条駅 徒歩7分
- 京都府京都市下京区西洞院通五条上ル八幡町
- 65.62m² / 2LDK
-
募集中
- フォルム五条西洞院
- 18万円
- 京都市営烏丸線 五条駅 徒歩6分
- 京都府京都市下京区八幡町
- 65.62m² / 3LDK
新築マンション
※完成後1年以上経過した未入居の物件が含まれている場合があります
-
売出し中
- 阪急京都本線「大宮」駅 徒歩4分
- 未定
- 阪急京都本線「大宮」駅 徒歩4分
- 京都府京都市下京区四条堀川町267番(地番)
- 84.38m² / 1LDK~3LDK
-
売出し中
- 阪急京都本線「烏丸」駅 徒歩7分
- 7,000万円~8,200万円
- 阪急京都本線「烏丸」駅 徒歩7分
- 京都府京都市下京区油小路通四条下る石井筒町536番1(地番)
- 56.74m² / 1LD・K+S(納戸)、2LD・K
-
売出し中
- JR東海道・山陽本線「西大路」駅 徒歩5分
- 3,700万円~6,190万円
- JR東海道・山陽本線「西大路」駅 徒歩5分
- 京都府京都市下京区七条御所ノ内本町84番1
- 67.62m² / 1LDK~3LDK
-
売出し中
- 京都市営烏丸線「四条」駅 徒歩10分
- 4,348万円 ~ 6,138万円
- 京都市営烏丸線「四条」駅 徒歩10分
- 京都府京都市下京区堀川通仏光寺下る吉水町324、仏光寺通堀川西入晒屋町654-2(地番)
- 54.02m² / 1LDK、2DK、2LDK
-
売出し中
- パークホームズ四条河原町
- 1億2500万円
- 阪急京都本線 京都河原町駅 徒歩2分
- 京都府京都市下京区寺町通綾小路下る中之町
- 85.74m² / 2LDK
-
売出し中
- 阪急京都本線「京都河原町」駅 徒歩6分 (出口4)
- 7,598万円・8,198万円
- 阪急京都本線「京都河原町」駅 徒歩6分 (出口4)
- 京都府京都市下京区河原町通松原上る西入幸竹町373-2他(地番)
- 63.48m² / 2LDK
-
売出し中
- 京都市営烏丸線「五条」駅 徒歩4分 (出入口3)
- 5,100万円台~10,900万円台(予定)
- 京都市営烏丸線「五条」駅 徒歩4分 (出入口3)
- 京都府京都市下京区富小路通五条下る本塩竈町596番他(地番)
- 85.03m² / 1LDK~3LDK
-
売出し中
- 阪急京都本線「京都河原町」駅 徒歩9分
- 5,880万円(1戸)~9,400万円(1戸)
- 阪急京都本線「京都河原町」駅 徒歩9分
- 京都府京都市下京区寺町通五条上る西橋詰町747番1、御幸町通五条上る安土町634番1(地番)
- 71.58m² / 1LDK~3LDK+WIC
中古マンション
-
売出し中
- ライオンズマンション四条西洞院
- 1880万円
- 京都市営烏丸線 五条駅 徒歩9分
- 京都府京都市下京区永倉町564
- 37.8m² / 1DK
-
売出し中
- ヴィルヌーブ堀川松原
- 5480万円
- 阪急京都本線 大宮駅 徒歩11分
- 京都府京都市下京区篠屋町58
- 82.02m² / 3LDK
-
売出し中
- ヴィルヌーブ堀川松原
- 5480万円
- 京都市営烏丸線 五条駅 徒歩11分
- 京都府京都市下京区醒ケ井通松原下る篠屋町
- 82.02m² / 3LDK
-
売出し中
- ライオンズマンション堀川 中古マンション
- 2280万円
- 阪急京都本線 大宮駅 徒歩12分
- 京都府京都市下京区柿本町
- 44.28m² / 2DK
-
売出し中
- シーンズ京都四条烏丸彩ノ邸
- 1億1800万円
- 京都市営烏丸線 四条駅 徒歩8分
- 京都府京都市下京区藪下町
- 69.57m² / 2LDK
-
売出し中
- アルモード京都高辻 中古マンション
- 4480万円
- 阪急京都本線 大宮駅 徒歩10分
- 京都府京都市下京区麓町
- 66.29m² / 3LDK
-
売出し中
- アルモード京都高辻
- 4580万円
- 阪急京都本線 大宮駅 徒歩10分
- 京都府京都市下京区麓町
- 66.29m² / 3LDK
一戸建て
-
売出し中
- 京都市下京区若宮通五条上る布屋町 戸建
- 5300万円
- 京都市営烏丸線 五条駅 徒歩5分
- 京都府京都市下京区布屋町
- 83.43m² / 4DK
-
売出し中
- 舟屋町
- 850万円
- 京都市営烏丸線 四条駅 徒歩9分
- 京都府京都市下京区舟屋町
- 19.17m² / 3K
-
売出し中
- 下京区区油小路通花屋町下る仏具屋町中古戸建
- 1億9800万円
- 京都市営烏丸線 五条駅 徒歩10分
- 京都府京都市下京区仏具屋町
- 292.82m² / 9LDK
-
売出し中
- 下京区坊門町
- 4680万円
- 阪急京都本線 大宮駅 徒歩6分
- 京都府京都市下京区坊門町
- 75.62m² / 3LDK
-
売出し中
- 下京区小坂町
- 3880万円
- JR山陰本線 丹波口駅 徒歩10分
- 京都府京都市下京区小坂町
- 77.62m² / 2SLDK
-
売出し中
- 花畑町の元京町家
- 2480万円
- JR山陰本線 梅小路京都西駅 徒歩9分
- 京都府京都市下京区花畑町
- 88.04m² / 7SK
-
売出し中
- 下京区西酢屋町
- 1380万円
- JR山陰本線 梅小路京都西駅 徒歩8分
- 京都府京都市下京区西酢屋町
- 29.74m² / 1SDK
-
売出し中
- JR山陰本線 梅小路京都西駅 徒歩7分
- 1億2950万円
- JR山陰本線 梅小路京都西駅 徒歩7分
- 京都府京都市下京区西七条南東野町
- 307.32m² / 5LDK
注文住宅
※表示価格は延べ床面積約132m²の場合の建物価格の参考値です
-
資料請求受付中
- 2800万円〜
- ミサワホーム株式会社
- 【MISAWA】ミサワホーム代表カタログ3冊セット(HOME'S限定)
-
資料請求受付中
- 2432万円〜
- ヤマト住建株式会社
- 【LEGANTIA】邸宅の頂点がここにある。受け継がれる価値、未来へ続く邸宅
-
資料請求受付中
- -
- 積水ハウス
- BRAND BOOK
-
資料請求受付中
- 1868万円〜
- タマホーム株式会社
- 大安心の家シリーズ
-
資料請求受付中
- 2000万円〜
- 一条工務店
- 【一条工務店】 建築実例集3冊セット(HOME’S限定)
-
資料請求受付中
- 3200万円〜
- 三井ホーム株式会社
- 三井ホームのご紹介
-
資料請求受付中
- 3000万円〜
- セキスイハイム
- 【セキスイハイム|平屋】ザ・デザイナーズハイムD1
エリア・駅で絞り込んで探す
京都府のリソシエが含まれるマンション
物件の種類から探す
京都市下京区で募集中の物件のみを検索できます
掲載情報に誤りや問題がある場合
LIFULL HOME'Sは「不動産会社」ではなく「情報掲載サイト」です
- ※管理会社の情報はLIFULL HOME'Sでは保持していないためお答えできません。お問合せはお控えください
- ※最新の募集状況は掲載中の不動産会社があれば、不動産会社へ直接お問合せください
掲載情報の訂正依頼 専用ダイヤル
0120-987-243
- 専用ダイヤル受付時間:10:00〜18:00
- ※土日・祝日、臨時休業日は除く
不動産データのご利用について
不動産事業におけるDX、サービスの改善、新規事業開発等をご検討中の方へ不動産データの活用をご提案します。LIFULL HOME'Sで集約した不動産情報や外部データは、不動産事業DX、不正決済防止、ローン審査、事業開発、研究等さまざまな事業でご活用いただいています。詳しくは以下よりご確認ください。
不動産アーカイブご利用アンケートにご協力ください
不動産アーカイブの掲載情報は、LIFULL HOME'S掲載の不動産情報および提携先の不動産情報を統計情報として集積したものであり、その存在や信憑性を保証するものではありません。