このページは物件の広告情報ではありません。
過去にLIFULL HOME'Sへ掲載された不動産情報と提携先の地図情報を元に生成した参考情報です。また、一般から投稿された情報など主観的な情報も含みます。
情報更新日: 2026/04/15
【募集中あり】パレトール 2LDK 5階
部屋情報
| 所在地 | 京都府京都市伏見区大津町725 |
|---|---|
| 交通 |
|
| AI予測賃料 |
8.3万円 〜 9.3万円
AI予測賃料とは
※LIFULL HOME'Sが独自で計算した参考情報であり、実際の取引価格とは異なります。 (算出ロジックについて ) |
| 専有面積 | 52.8m² |
| 所在階/階数 | 5階/6階 |
| 主採光 | 南 |
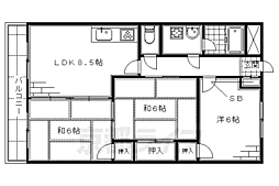
| 間取り | 2LDK (和室6.0畳 洋室6.0帖 リビングダイニングキッチン13.9帖) |
スポンサーリンク
LIFULL HOME'S 掲載履歴
パレトールの賃貸掲載履歴
全2件
| 年/月 | 賃料 |
|---|---|
| 2018年1月〜2018年3月 | 9万円 / 月 |
| 2012年7月〜2012年8月 | 9.2万円 / 月 |
売りたい不動産をお持ちの方へ
このエリアの所有不動産を査定する
売却査定手続きの流れ、費用相場や注意点など不動産売却について詳しく知りたい方はLIFULL HOME'S 不動産査定へ
パレトール周辺の物件情報
周辺の問合せ可能な物件
京都府京都市伏見区の問合せ可能な物件のうち、この物件の周辺にあるものから表示しています
賃貸
-
募集中
- 近鉄京都線 近鉄丹波橋駅 徒歩13分
- 9万円
- 近鉄京都線 近鉄丹波橋駅 徒歩13分
- 京都府京都市伏見区大津町
- 59.0m² / 2LDK
-
募集中
- パレトール
- 9万円
- 京阪本線 丹波橋駅 徒歩15分
- 京都府京都市伏見区大津町
- 52.8m² / 2LDK
-
募集中
- 京阪本線 中書島駅 徒歩2分
- 8.4万円
- 京阪本線 中書島駅 徒歩2分
- 京都府京都市伏見区東浜南町
- 54.45m² / 2LDK
-
募集中
- カーサ東浜
- 8.4万円
- 京阪本線 中書島駅 徒歩2分
- 京都府京都市伏見区東浜南町
- 54.45m² / 2LDK
-
募集中
- 近鉄京都線 伏見駅 徒歩2分
- 8.9万円
- 近鉄京都線 伏見駅 徒歩2分
- 京都府京都市伏見区奈良屋町
- 63.25m² / 2LDK
-
募集中
- 香珠マンション
- 8.9万円
- 近鉄京都線 伏見駅 徒歩2分
- 京都府京都市伏見区奈良屋町
- 63.25m² / 2LDK
-
募集中
- 京阪本線 丹波橋駅 徒歩29分
- 8.4万円
- 京阪本線 丹波橋駅 徒歩29分
- 京都府京都市伏見区下鳥羽長田町
- 54.14m² / 2LDK
-
募集中
- ディアコートつかせ
- 8万円
- 京阪本線 中書島駅 徒歩28分
- 京都府京都市伏見区下鳥羽北円面田町
- 59.28m² / 2LDK
-
募集中
- 京阪本線 中書島駅 徒歩28分
- 8万円
- 京阪本線 中書島駅 徒歩28分
- 京都府京都市伏見区下鳥羽北円面田町
- 59.28m² / 2LDK
中古マンション
-
売出し中
- 丹波橋日光ハイツ
- 2190万円
- 京阪本線 丹波橋駅 徒歩13分
- 京都府京都市伏見区川東町
- 58.8m² / 2LDK
-
売出し中
- ハイム伏見B棟
- 1850万円
- 京阪本線 中書島駅 徒歩14分
- 京都府京都市伏見区横大路下三栖山殿
- 64.51m² / 2LDK
-
売出し中
- ペルル伏見桃山2
- 1998万円
- 京阪本線 中書島駅 徒歩6分
- 京都府京都市伏見区東浜南町
- 60.39m² / 2LDK
-
売出し中
- エルシティ桃山 中古マンション
- 1990万円
- JR奈良線 桃山駅 徒歩2分
- 京都府京都市伏見区桃山町立売
- 57.92m² / 2LDK
-
売出し中
- ニューライフマンション藤の森
- 2180万円
- 京阪本線 藤森駅 徒歩10分
- 京都府京都市伏見区深草西浦町7丁目73-1
- 61.6m² / 2LDK
-
売出し中
- アドリーム伏見向島
- 1999万円
- 近鉄京都線 向島駅 徒歩4分
- 京都府京都市伏見区向島二ノ丸町
- 61.95m² / 2SLDK
-
売出し中
- ディオ・フェルティ淀桂川 中古マンション
- 1550万円
- 京阪本線 淀駅 徒歩4分
- 京都府京都市伏見区納所町
- 53.41m² / 2LDK
-
売出し中
- 朝日プラザ伏見東
- 1698万円
- 京都地下鉄東西線 石田駅 徒歩14分
- 京都府京都市伏見区日野西風呂町
- 59.78m² / 2LDK
一戸建て
-
売出し中
- 京阪本線 丹波橋駅 徒歩17分
- 3180万円
- 京阪本線 丹波橋駅 徒歩17分
- 京都府京都市伏見区川東町
- 89.48m² / 3SLDK
-
売出し中
- 伏見区西大文字町
- 1680万円
- 京阪本線 伏見桃山駅 徒歩16分
- 京都府京都市伏見区西大文字町
- 117.37m² / 4DK
-
売出し中
- 京都市伏見区革屋町 中古一戸建て
- 3599万円
- 京阪本線 伏見桃山駅 徒歩11分
- 京都府京都市伏見区革屋町
- 81.13m² / 3LDK
-
売出し中
- 京阪本線 中書島駅 徒歩10分
- 680万円
- 京阪本線 中書島駅 徒歩10分
- 京都府京都市伏見区村上町
- 43.63m² / 2DK
-
売出し中
- 京阪本線 丹波橋駅 徒歩9分
- 8780万円
- 京阪本線 丹波橋駅 徒歩9分
- 京都府京都市伏見区小豆屋町
- 121.06m² / 2LDK
-
売出し中
- 景勝町
- 1080万円
- 近鉄京都線 伏見駅 徒歩14分
- 京都府京都市伏見区景勝町3-13
- 46.64m² / 4SK
-
売出し中
- 伏見区西朱雀町 店舗付き中古戸建
- 3280万円
- 近鉄京都線 伏見駅 徒歩9分
- 京都府京都市伏見区西朱雀町
- 119.68m² / 1LDK
-
売出し中
- 近鉄京都線 伏見駅 徒歩10分
- 990万円
- 近鉄京都線 伏見駅 徒歩10分
- 京都府京都市伏見区景勝町
- 47.69m² / 4DK
-
売出し中
- 景勝町
- 1980万円
- 近鉄京都線 伏見駅 徒歩10分
- 京都府京都市伏見区景勝町
- 58.72m² / 3LDK
-
売出し中
- 伏見区両替町11丁目
- 4780万円
- 近鉄京都線 近鉄丹波橋駅 徒歩4分
- 京都府京都市伏見区両替町11丁目
- 89.9m² / 2SLDK
エリア・駅で絞り込んで探す
賃貸
物件の種類から探す
京都市伏見区で募集中の物件のみを検索できます
掲載情報に誤りや問題がある場合
LIFULL HOME'Sは「不動産会社」ではなく「情報掲載サイト」です
- ※管理会社の情報はLIFULL HOME'Sでは保持していないためお答えできません。お問合せはお控えください
- ※最新の募集状況は掲載中の不動産会社があれば、不動産会社へ直接お問合せください
掲載情報の訂正依頼 専用ダイヤル
0120-987-243
- 専用ダイヤル受付時間:10:00〜18:00
- ※土日・祝日、臨時休業日は除く
不動産データのご利用について
不動産事業におけるDX、サービスの改善、新規事業開発等をご検討中の方へ不動産データの活用をご提案します。LIFULL HOME'Sで集約した不動産情報や外部データは、不動産事業DX、不正決済防止、ローン審査、事業開発、研究等さまざまな事業でご活用いただいています。詳しくは以下よりご確認ください。
不動産アーカイブご利用アンケートにご協力ください
不動産アーカイブの掲載情報は、LIFULL HOME'S掲載の不動産情報および提携先の不動産情報を統計情報として集積したものであり、その存在や信憑性を保証するものではありません。