このページは物件の広告情報ではありません。
過去にLIFULL HOME'Sへ掲載された不動産情報と提携先の地図情報を元に生成した参考情報です。また、一般から投稿された情報など主観的な情報も含みます。
情報更新日: 2026/01/15
洋伸大宮マンション 3LDK 7階
部屋情報
| 所在地 | 埼玉県さいたま市大宮区三橋1丁目610-1 |
|---|---|
| 交通 |
|
| AI予測価格 |
1,633万円 〜 2,297万円
AI予測価格とは
※LIFULL HOME'Sが独自で計算した参考情報であり、実際の取引価格とは異なります。 (算出ロジックについて ) |
| 専有面積 | 71.3m² |
| バルコニー面積 | 25.46m² |
| 所在階/階数 | 7階/10階 |
| 主採光 | 南 |
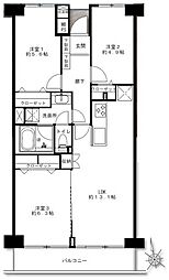
| 間取り | 3LDK (洋室6.0帖 洋室4.9帖 洋室6.0帖 リビングダイニングキッチン13.5帖) |
スポンサーリンク
リフォーム・リノベーション情報
| 水回り |
2024年11月 キッチン、浴室、トイレ、洗面所 |
|---|---|
| 内装 |
2024年11月 内装全面(床、壁、天井、建具すべて)、壁、天井(クロス、塗装等)、床(フローリング等)、建具(室内ドア等)、ハウスクリーニング |
LIFULL HOME'S 掲載履歴
洋伸大宮マンションの売買掲載履歴
全2件
| 年/月 | 価格 |
|---|---|
| 2025年1月 | 1990万円 |
| 2024年11月〜2024年12月 | 2090万円 |
売りたい不動産をお持ちの方へ
このエリアの所有不動産を査定する
売却査定手続きの流れ、費用相場や注意点など不動産売却について詳しく知りたい方はLIFULL HOME'S 不動産査定へ
洋伸大宮マンション周辺の物件情報
周辺の問合せ可能な物件
埼玉県さいたま市大宮区の問合せ可能な物件のうち、この物件の周辺にあるものから表示しています
賃貸
-
募集中
- JR京浜東北・根岸線 大宮駅 徒歩25分
- 8万円
- JR京浜東北・根岸線 大宮駅 徒歩25分
- 埼玉県さいたま市大宮区三橋1丁目583-1
- 67.3m² / 3LDK
-
募集中
- 大成第三ハイツ
- 8万円
- JR京浜東北・根岸線 大宮駅 徒歩25分
- 埼玉県さいたま市大宮区三橋1丁目583-1
- 67.3m² / 3LDK
-
募集中
- JR東北本線 大宮駅 バス8分 三橋1丁目下車 徒歩2分
- 9.2万円
- JR東北本線 大宮駅 バス8分 三橋1丁目下車 徒歩2分
- 埼玉県さいたま市大宮区三橋1丁目743
- 65.19m² / 3LDK
-
募集中
- 敬和レジデンス
- 9.7万円
- JR京浜東北・根岸線 大宮駅 バス10分 三橋1丁目下車 徒歩8分
- 埼玉県さいたま市大宮区三橋1丁目511
- 67.42m² / 3LDK
-
募集中
- エクセルなみき
- 9.4万円
- JR京浜東北・根岸線 大宮駅 徒歩22分
- 埼玉県さいたま市大宮区三橋1丁目722
- 65.2m² / 3LDK
-
募集中
- JR京浜東北・根岸線 大宮駅 徒歩24分
- 9.4万円
- JR京浜東北・根岸線 大宮駅 徒歩24分
- 埼玉県さいたま市大宮区三橋1丁目
- 65.2m² / 3LDK
-
募集中
- 埼玉新都市交通 鉄道博物館(大成)駅 徒歩23分
- 8.5万円
- 埼玉新都市交通 鉄道博物館(大成)駅 徒歩23分
- 埼玉県さいたま市大宮区櫛引町1丁目604
- 68.0m² / 3LDK
-
募集中
- プレステージロイヤルハウス
- 8.5万円
- JR京浜東北・根岸線 大宮駅 徒歩27分
- 埼玉県さいたま市大宮区櫛引町1丁目604
- 68.0m² / 3LDK
-
募集中
- エクセルなみき
- 9.4万円
- JR京浜東北・根岸線 大宮駅 徒歩25分
- 埼玉県さいたま市大宮区三橋1丁目1-722
- 65.2m² / 3LDK
-
募集中
- JR京浜東北・根岸線 大宮駅 バス11分 中並木下車 徒歩4分
- 8.9万円
- JR京浜東北・根岸線 大宮駅 バス11分 中並木下車 徒歩4分
- 埼玉県さいたま市大宮区三橋2丁目
- 64.0m² / 3LDK
新築マンション
※完成後1年以上経過した未入居の物件が含まれている場合があります
中古マンション
-
売出し中
- グリーンパーク大宮1
- 1670万円
- JR京浜東北・根岸線 大宮駅 バス15分 三橋一丁目下車 徒歩4分
- 埼玉県さいたま市大宮区三橋1丁目629-2
- 75.3m² / 3LDK
-
売出し中
- ワコーレ大宮
- 1999万円
- JR東北本線 大宮駅 バス4分 三橋一丁目下車 徒歩7分
- 埼玉県さいたま市大宮区三橋1丁目
- 65.57m² / 3LDK
-
売出し中
- グランドシティー大宮ノースタワー
- 2050万円
- JR京浜東北・根岸線 大宮駅 バス18分 堀の内橋下車 徒歩4分
- 埼玉県さいたま市大宮区堀の内町1丁目
- 68.83m² / 3LDK
-
売出し中
- グランドシティ大宮EASTTOWER
- 2290万円
- JR京浜東北・根岸線 大宮駅 バス18分 堀の内橋下車 徒歩6分
- 埼玉県さいたま市大宮区堀の内町1丁目606
- 63.0m² / 3LDK
-
売出し中
- グランドシティ大宮EASTTOWER
- 2111万円
- JR京浜東北・根岸線 大宮駅 バス5分 堀の内橋下車 徒歩2分
- 埼玉県さいたま市大宮区堀の内町1丁目
- 63.0m² / 3LDK
-
売出し中
- ドルミ大宮天沼
- 1760万円
- JR京浜東北・根岸線 大宮駅 徒歩24分
- 埼玉県さいたま市大宮区天沼町1丁目
- 60.05m² / 3LDK
一戸建て
-
売出し中
- さいたま市大宮区三橋
- 4580万円
- JR京浜東北・根岸線 大宮駅 バス24分 三橋1丁目下車 徒歩8分
- 埼玉県さいたま市大宮区三橋1丁目
- 97.4m² / 2SLDK
-
売出し中
- さいたま市大宮区三橋
- 4580万円
- JR京浜東北・根岸線 大宮駅 バス24分 三橋1丁目下車 徒歩8分
- 埼玉県さいたま市大宮区三橋1丁目
- 95.63m² / 4LDK
-
売出し中
- さいたま市大宮区三橋1丁目 中古一戸建て
- 2799万円
- JR東北本線 大宮駅 バス8分 県営三橋団地下車 徒歩6分
- 埼玉県さいたま市大宮区三橋1丁目
- 96.88m² / 4LDK
-
売出し中
- さいたま市大宮区三橋1丁目 中古戸建
- 2699万円
- JR京浜東北・根岸線 大宮駅 バス5分 櫛引南下車 徒歩9分
- 埼玉県さいたま市大宮区三橋1丁目
- 96.88m² / 3LDK
-
売出し中
- さいたま市大宮区三橋1丁目
- 2699万円
- JR京浜東北・根岸線 大宮駅 徒歩30分
- 埼玉県さいたま市大宮区三橋1丁目
- 96.88m² / 4LDK
-
売出し中
- 埼玉県さいたま市大宮区三橋1丁目
- 2799万円
- 埼玉新都市交通 鉄道博物館(大成)駅 徒歩28分
- 埼玉県さいたま市大宮区三橋1丁目
- 96.88m² / 3LDK
-
売出し中
- さいたま市大宮区三橋一丁目 中古戸建て
- 1990万円
- 埼玉新都市交通 鉄道博物館(大成)駅 徒歩27分
- 埼玉県さいたま市大宮区三橋1丁目409-3
- 92.73m² / 4LDK
-
売出し中
- さいたま市大宮区三橋1丁目(全1棟)
- 3680万円
- JR京浜東北・根岸線 大宮駅 バス16分 櫛引南下車 徒歩6分
- 埼玉県さいたま市大宮区三橋1丁目
- 89.01m² / 2SLDK
-
売出し中
- 大宮区三橋一丁目 中古戸建
- 3480万円
- JR京浜東北・根岸線 大宮駅 バス11分 三橋一丁目下車 徒歩5分
- 埼玉県さいたま市大宮区三橋1丁目
- 89.05m² / 5DK
-
売出し中
- さいたま市大宮区櫛引町1丁目
- 5880万円
- JR京浜東北・根岸線 大宮駅 徒歩20分
- 埼玉県さいたま市大宮区櫛引町1丁目
- 99.91m² / 3SLDK
注文住宅
※表示価格は延べ床面積約132m²の場合の建物価格の参考値です
-
資料請求受付中
- 3040万円〜
- 川木建設株式会社
- 子どもがすくすく育つ家
-
資料請求受付中
- -
- へーベルハウス
- 【ヘーベルハウス】:ヘーベルハウス総合カタログ
-
資料請求受付中
- 2660万円〜
- 白馬の家
- 【2000万円台|30坪台】吹き抜けを通して家族が繋がる。開放感いっぱいの空間で子育てを楽しむ住まい
-
資料請求受付中
- 2000万円〜
- 一条工務店
- 【一条工務店】 建築実例集3冊セット(HOME’S限定)
-
資料請求受付中
- -
- 積水ハウス
- BRAND BOOK
-
資料請求受付中
- 1868万円〜
- タマホーム株式会社
- 大安心の家シリーズ
-
資料請求受付中
- 3000万円〜
- 株式会社スウェーデンハウス
- 【スウェーデンハウス】お客様満足度総合第1位の声「No.1 Sweden House News」
-
資料請求受付中
- 3000万円〜
- セキスイハイム
- 【セキスイハイム|平屋】ザ・デザイナーズハイムD1
-
資料請求受付中
- 3000万円〜
- 株式会社アイ工務店 埼玉支店
- 家族に愛を、住まいにアイを
-
資料請求受付中
- -
- アキュラホーム(AQ Group)
- 「超空間の家」
物件の種類から探す
さいたま市大宮区で募集中の物件のみを検索できます
掲載情報に誤りや問題がある場合
LIFULL HOME'Sは「不動産会社」ではなく「情報掲載サイト」です
- ※管理会社の情報はLIFULL HOME'Sでは保持していないためお答えできません。お問合せはお控えください
- ※最新の募集状況は掲載中の不動産会社があれば、不動産会社へ直接お問合せください
掲載情報の訂正依頼 専用ダイヤル
0120-987-243
- 専用ダイヤル受付時間:10:00〜18:00
- ※土日・祝日、臨時休業日は除く
不動産データのご利用について
不動産事業におけるDX、サービスの改善、新規事業開発等をご検討中の方へ不動産データの活用をご提案します。LIFULL HOME'Sで集約した不動産情報や外部データは、不動産事業DX、不正決済防止、ローン審査、事業開発、研究等さまざまな事業でご活用いただいています。詳しくは以下よりご確認ください。
不動産アーカイブご利用アンケートにご協力ください
不動産アーカイブの掲載情報は、LIFULL HOME'S掲載の不動産情報および提携先の不動産情報を統計情報として集積したものであり、その存在や信憑性を保証するものではありません。