新築一戸建て 飯田グループホールディングス CRADLE GARDEN 船橋市栄町第1
- 価格
- 3488万円・3588万円
- 所在地
- 千葉県船橋市栄町1
- 交通
- 京成本線「京成船橋」駅 徒歩20分JR総武線「船橋」駅 バス14分「栄町」バス停 徒歩6分JR京葉線「二俣新町」駅 車1.9km
乗り換え案内
- 土地面積
- 81.56m2・81.57m2
- 建物面積
- 87.06m2
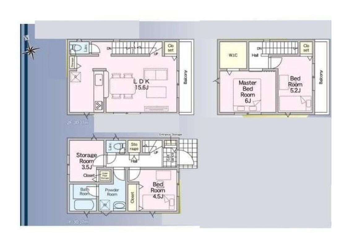
- 間取り
- 3LDK+S(納戸)
■□本日ご案内可能□■
WICを含む充実の収納スペースを備えた住まい!
■京成本線「京成船橋」&JR総武線「船橋」駅の2沿線利用可能
~通勤通学のアクセス幅が広がります~
○暮らしやすい周辺環境
・南本町小学校…徒歩6分 ・ららぽーとTOKYOBAY…車で4分
・ローソン船橋栄町一丁目店…徒歩6分
■充実の設備仕様
・防犯カメラ付きで安心安全のお住まい
・衣替えなど衣類の管理がラクになるWIC
0037-618-01533
無料
魅力1 ~家族みんなが笑顔で快適に暮らせる嬉しい設備仕様~
■浴室換気乾燥機
雨の日や冬場のお洗濯に嬉しい装備。洗濯物を乾かすだけでなく、入浴の度に換気機能で湿気を排出できるためカビの防止にもなります。
■ウォークインクローゼット
お子様との思い出もたっぷりしまえるウォークインクローゼット。衣類だけでなく、鞄などの小物からスーツケースやレジャー用品などの大きな物までたっぷり収納出来ます。
■人感センサー付きライト
人を感知するとパッと明るく点灯します。自動で点灯・消灯するので消し忘れの心配がなく、電気代の節約にもつながり便利です。
魅力2 ~耐震+制震の家、「QUIE(クワイエ)」で安心安全な暮らしを~
■耐震+制震の家、「QUIE(クワイエ)」
地震の揺れに耐える「耐震性能」と、揺れを抑えて住宅へのダメージを軽減する「制震性能」を兼ね備えた建売住宅ブランド「QUIE」 。ふたつの備えで、お客様の家を守ります。
■共同開発により完成した制震装置『SAFE365』
重要な役割を果たす制振装置『SAFE365』。高層ビルの制震装置にも使われている粘弾性素材を活用したもので、優れた地震エネルギーの吸収を実現します。
■制震性能比較実験
震度6強を最大67%低減できることが証明されました。最大震度6強クラスとなる120秒間続く地震を、約200回受けても制震性能は衰えないと実証実験で分かっています。
魅力3 【ホームトレードセンター】による一括サポート!お気軽にお問い合わせください!
☆ホームトレードセンターは日本一の分譲実績を誇る飯田グループホールディングス株式会社唯一の不動産販売専門会社です。
専門知識の高い販売専門のプロがアフターケアまでしっかりとサポート致します!
マイホーム探しや住宅購入、お住まいの住み替えご相談ください♪
当社買い取り保証サービスもご好評いただいております。もちろん住宅ローンのシミュレーション、資金計画等も承っております。
0037-618-01533
無料
間取り図
0037-618-01533
無料
内観・室内
間取り・内観のこだわりポイント
- LDK15帖以上
- バリアフリー
- 全室2面採光
- 全室フローリング
- 3階建て
0037-618-01533
無料
設備・仕様
-
【省エネ性能ラベル】
こちらの物件はZEH水準を満たした、省エ...
-
【防犯カメラ】
不審者の侵入や空き巣、駐車場における車上...
-
【浴室換気乾燥機】
雨の日や冬場のお洗濯に嬉しい装備。洗濯物...
-
【都市ガス】
プロパンガスよりも料金が低く急な値上がり...
-
【ウォークインクローゼット】
お子様との思い出もたっぷりしまえるウォー...
-
【人感センサー付きライト】
人を感知するとパッと明るく点灯します。自...
-
ベタ基礎へのこだわり
基礎の立ち上がり部分の幅を、建築基準法よ...
-
安全性と強度に配慮し、「通し柱」を見直し
各階それぞれに柱を用意して金物でつなぐ方...
-
マイスターが貼るグラスウール断熱材
現場管理者や職人さんに、ガラス繊維協会の...
設備・仕様のこだわりポイント
- キッチン
-
- カウンターキッチン
- 浄水器・活水器
- 収納
-
- 床下収納
- ウォークインクローゼット
- 全居室収納
- その他設備
-
- 都市ガス
- シャワー付洗面化粧台
- 温水洗浄便座
- 浴室乾燥機
- トイレ2ヶ所以上
- 節水型トイレ
- 複層ガラス採用(二重サッシ・防犯サッシ等)
- 省エネ給湯器
- TVモニタ付インターホン
省エネ性能
- エネルギー消費性能:★★★(削減率20%達成)
- 断熱性能:5段階/7段階 ※「省エネ性能ラベル」は特定の住戸の性能を示し、全ての住戸の性能を示していない場合があります。
0037-618-01533
無料
外観・分譲地
外観・分譲地のこだわりポイント
- 駐車場あり
- 地盤調査済
- 敷地延長・変形地
- 平坦地
0037-618-01533
無料
周辺環境・地図
周辺環境のこだわりポイント
- 小学校 800m以内
- 複数路線
0037-618-01533
無料
物件概要
| 所在地 | 千葉県船橋市栄町1 | ||
|---|---|---|---|
| 交通 |
京成本線「京成船橋」駅 徒歩20分 JR総武線「船橋」駅 バス14分「栄町」バス停 徒歩6分 JR京葉線「二俣新町」駅 車1.9km |
||
| 販売価格 | 3488万円・3588万円 | 最多価格帯 | - |
| 建物面積 | 87.06m2 | 土地面積 | 81.56m2・81.57m2 |
| 間取り | 3LDK+S(納戸) | 建物構造 | 木造在来工法2階建て |
| 販売スケジュール | 販売中 | ||
| 販売戸数 / 総戸数 | 2戸 / 3戸 | ||
| 完成予定日 | 2026年3月 | 引き渡し可能年月 | 即引渡可 |
| 駐車場 | 1台 | 道路の幅員 | 道路幅:4m、アスファルト舗装、南東側4m公道 |
| 用途地域 | 準工業地域 | 都市計画 | - |
| 地目 | 宅地 | 国土法 | - |
| 土地の権利 | 所有権 | 借地権の種類・期間 | - |
| 主たる設備の概要 | 電気、都市ガス、公営水道、公共下水(汚水・雑排水)・雨水(浸透式) | 建築確認番号 | 第KBI-SGM25-10-3972号他 |
| 施工会社 | - | 機構融資 | - |
| 売主 | 取引態様 | <仲介>飯田グループホールディングス ホームトレードセンター(株)津田沼営業所 | |
| 備考 |
■周辺環境 【学校】 船橋市立南本町小学校:徒歩6分(450m) 船橋市立湊中学校:徒歩14分(1100m) 【幼稚園・保育園】 船橋市立湊町保育園:徒歩16分(1267m) 【買い物】 ららぽーとTOKYOBAY:徒歩24分(1900m) アタック船橋湊町店:徒歩15分(1185m) マミーマート生鮮市場TOPコーナン京葉船橋インター店:徒歩17分(1351m) ロピアららぽーとTOKYOBAY店:徒歩28分(2163m) ローソン船橋栄町一丁目店:徒歩6分(441m) セブンイレブン船橋栄町店:徒歩7分(538m) マツモトキヨシ船橋日の出店:徒歩12分(950m) コーナンPRO京葉船橋インター店:徒歩17分(1352m) 【近隣施設】 医療法人弘仁会板倉病院:徒歩18分(1370m) 船橋郵便局:徒歩15分(1123m) ゆうちょ銀行船橋店:徒歩15分(1123m) ~~~~~◇◆ 現地見学ツアー開催!◆◇~~~~~ (事前に必ずお問い合わせください) ▽貴重なお時間の中でご希望の情報をご提供します▽ 【内容(所要時間)】 (1) さくっと見学コース (30分~) (2) じっくり見学コース (60分~) (3) 納得見学コース (90分~) (4) まずは住宅ローン相談 (30分~) ※ファイナンシャルプランナーによる無料相談も開催 【資料請求(無料)】【電話で問い合わせ】から、 お日にち・時間帯のご指定が可能です! 平日やお仕事前・後のご見学もお待ちしております♪ ◇◆◇◆◇◆◇◆◇◆◇◆◇◆◇◆◇◆◇◆◇◆◇◆ 飯田グループHDは下記の取り組みに努めております。 ◆従業員は、マスク着用の上ご接客致しますので ご了承願います。 ◆店舗に消毒用アルコールを設置し、 お客様にもご利用をお願いしております。 ◆各接客ブースが離れている為、ご来店の際は 他のお客様と距離を取ってご接客致します。 ◆接客ブースご利用後は随時消毒を行っております。 ◆営業所内にありますキッズスペースのおもちゃは 撤去させていただきます。 ◆物件のご見学の際には、 車にてご自宅への送迎も行っております。 ◆車には除菌シートを常備しており、 ご乗車前後に車内消毒を徹底しております。 ○●○● 『おうちで見学会♪』も実施中!●○●○ ・今の状況で子供を連れて外出するのが不安 ・転勤の都合で直接現地へ行くのが難しい という場合は、 担当者が現地からテレビ電話や写真でご対応します! 設備や細かい仕様など様々な角度からお伝えします♪ ご要望の際は、お気軽にお問い合わせください! |
||
| 情報更新日 | 2026/05/18 | 次回更新予定日 | 2026/06/01 |
| 取引条件有効期限 | 2026/11/10 | ||
住宅性能・販売概要・権利のこだわりポイント
- 所有権
- 瑕疵担保付き
- 設計住宅性能評価書
- フラット35・S適合証明書
- 即入居可
0037-618-01533
無料
取扱い不動産会社
スタッフからのコメント
- テレビCMでおなじみ【飯田グループHD販売専門スタッフ】
- 【お客様を笑顔に】をモットーに、親切で丁寧な接客を心掛けています。お客様に寄り添い身近な立場で購入のサポートが出来ればと思っています。お気軽にご相談ください。
【この物件について】
京成本線&JR総武線を利用可能♪通勤通学のアクセス幅が広がります◎大型SC、ららぽーとにもほど近くお買物も便利!陽当たり良く明るい2階リビング☆お気軽にお問い合わせください!お待ちしています♪
【得意エリア】
千葉県全域 出身地も千葉県になります!
村田 司
ホームトレードセンター株式会社 津田沼営業所の会社情報
お電話でのお問合せは「LIFULL HOME'S(ライフルホームズ)を見て」とお伝えください
飯田グループホールディングス ホームトレードセンター(株)津田沼営業所
0037-618-01533
無料
- ※携帯電話はご利用いただけます
- ※光IP電話、及びIP電話をご利用のお客様はTEL:047-774-8883へご連絡ください
- ※携帯電話からお問合せいただいた方には、ショートメッセージ(SMS)またはLINE通知メッセージによるお問合せ内容に関する通知をお届けする場合があり、お客様の電話番号は株式会社LIFULLで一定期間保管されます
- ※株式会社LIFULLの個人情報の取扱い方針に同意のうえ、お電話ください
| 会社名 |
ホームトレードセンター株式会社 津田沼営業所 |
|---|---|
| 免許番号 | 国土交通大臣 (2) 第 8044 号 |
| 所在地 | 千葉県船橋市前原西2-33-9 プライムコート1F |
| 所属団体 |
(公社)東京都宅地建物取引業協会 |
この物件にお問合せする
実際に物件・周辺環境を見て検討したい!
近隣建物や接道の状況など資料で分からない部分も一目瞭然。 まずはWEBで事前予約、スムーズに見学しましょう
ご予約無しに直接ご来場された場合、担当者不在であったり、
他のお客様のご案内の都合上、お待たせしてしまうことがございます。
不動産会社に電話で相談したい!
飯田グループホールディングス ホームトレードセンター(株)津田沼営業所
0037-618-01533
無料
電話でのお問合せは「LIFULL HOME'S(ライフルホームズ)を見て」とお伝えください
- ※携帯電話はご利用いただけます
- ※光IP電話、及びIP電話をご利用のお客様はTEL:047-774-8883へご連絡ください
- ※携帯電話からお問合せいただいた方には、ショートメッセージ(SMS)またはLINE通知メッセージによるお問合せ内容に関する通知をお届けする場合があり、お客様の電話番号は株式会社LIFULLで一定期間保管されます
- ※株式会社LIFULLの個人情報の取扱い方針に同意のうえ、お電話ください
LIFULL HOME'Sは物件鮮度No.1を目指していきます 物件情報に誤りがある場合はコチラからご連絡ください
- 【物件番号】
- 1706936-0001236
- ※完成後1年未満で未入居の物件を「新築」と表示しております。
- ※完成予想図やCG合成画像は、門塀・植栽・庭・外観等、実際とは多少異なる場合があります。
物件を再検索する
千葉県の人気エリアから新築一戸建てを探す














