新築一戸建て 柏市西原1丁目 第10 新築一戸建て 全1棟 対面キッチンなどコミュニケーション重視のお家(990987421)
■ご自宅から物件まで無料送迎OK■当日見学・ビデオ通話での内見、相談もお任せください
柏市西原1丁目の住まい探しなら、エムイーPLUSにお任せください!無料でご案内ご送迎しております!お客様のご条件をお聞かせいただければこちらの物件と一緒に他の物件もご案内致します。
■当店の特徴、住宅購入や売却で、どんな悩みや不安もまとめて相談できるお店です。税理士相談やご家族毎の「家計簿シュミレーション(FP相談)」や30行を超える銀行との連携による「住宅ローン相談」も実施中
0037-618-25760
無料
魅力1 お家探しや不動産売却はエムイーPLUS城東にお任せください
■初めてのマイホーム探しでもご安心ください
・自己資金無OK
・無理のない住宅ローンの組み方教えます
■住み替え、相続取引も弊社にお任せください
・大切なご資産の為に、ぜひ一度ご相談ください
魅力2 遊べるキッズスペースやアメニティ充実の授乳室も完備
魅力3 首都圏に広がるMEグループ!「くらしを楽しむ世の中を、もっと」を追求します。
住宅購入は様々な角度から考える必要があります。「家捜しはなにから始めたらいいの?」・「月々の支払いは?」など、どんな悩みや不安もまとめてご相談できるお店です。
30行を超える銀行との連携でお客様に合った「住宅ローン無料相談」も実施中です。
落ち着いてご相談できるようにおもちゃが豊富なキッズスペース、ベビーベット、授乳室も完備!紙おむつも常備しておりますので小さなお子様連れのお客様も安心してご利用くださいませ。
0037-618-25760
無料
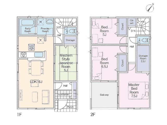
間取り図
0037-618-25760
無料
内観・室内
間取り・内観のこだわりポイント
- LDK15帖以上
- 4LDK以上
- 和室
- 屋上・ルーフバルコニー
- 南面バルコニー
0037-618-25760
無料
設備・仕様
設備・仕様のこだわりポイント
- キッチン
-
- カウンターキッチン
- 浄水器・活水器
- 収納
-
- 床下収納
- 全居室収納
- その他設備
-
- 都市ガス
- シャワー付洗面化粧台
- 温水洗浄便座
- 浴室乾燥機
- 浴室暖房
- トイレ2ヶ所以上
- 複層ガラス採用(二重サッシ・防犯サッシ等)
- TVモニタ付インターホン
0037-618-25760
無料
外観・分譲地
外観・分譲地のこだわりポイント
- 駐車場あり
- 低層住宅地
- 地盤調査済
- 前面道路6m以上
0037-618-25760
無料
周辺環境・地図
周辺情報
※半径4kmを超えると、周辺情報のアイコンは表示されません。
- ※不動産会社が入力した情報を基に物件の位置を表示しています。
- ※詳しくは不動産会社までお問合せください。
- ※地図上に表示される各種アイコンなどの情報は、おおよその所在地を表すものであり、物件・施設などの地点を保証するものではありません。
- ※地図の表示領域が広域になると周辺のお店・施設は表示できなくなります。
- ※地図、航空写真情報および地形ならびに周辺のお店・施設は、必ずしも現況を表すものではありません。
- ※物件から周辺のお店・施設までの距離は、利用が想定される道路を通行した場合の距離です。なお、必ずしも最短距離を保証するものではありません。
周辺環境のこだわりポイント
- スーパー 800m以内
- 小学校 800m以内
0037-618-25760
無料
物件概要
| 所在地 | 千葉県柏市西原1丁目 | ||
|---|---|---|---|
| 交通 |
東武野田線「江戸川台」駅 徒歩10分 東武野田線「初石」駅 徒歩18分 東武野田線「運河」駅 徒歩35分 |
||
| 販売価格 | 3288万円 | 最多価格帯 | 万円台 |
| 建物面積 | 95.98m2 | 土地面積 | 123.24m2 |
| 間取り | 4LDK | 建物構造 | 木造 2階建 |
| 販売スケジュール | 販売中 | ||
| 販売戸数 / 総戸数 | 1戸 / 1戸 | ||
| 完成予定日 | 2026年02月 | 引き渡し可能年月 | 即入居可 |
| 駐車場 | 2台 | 道路の幅員 | 南東6.4m 公道 |
| 用途地域 | 第一種低層住居専用地域 | 都市計画 | 市街化区域 |
| 地目 | 宅地 | 国土法 | 届出不要 |
| 土地の権利 | 所有権 | 借地権の種類・期間 | - |
| 主たる設備の概要 | 都市ガス/公営水道/公共下水 | 建築確認番号 | 第KBI-SGM25-10-4511号 |
| 施工会社 | - | 機構融資 | - |
| 売主 | - | 取引態様 | エムイーPLUS城東株式会社 (仲介) |
| イベント情報 |
|
||
| 備考 |
住まい探しをトータル的にサポート致します! 取引件数が多いエムイーPLUS城東にお任せください♪ (2025年グループ成約数2271件の実績) ■初めてのマイホーム探しでもご安心ください■ ◇不動産購入時にかかる諸費用のあれこれ ◇お家を買うと一部税金が戻ってくる手続きの方法 ◇プロが教える「買っていい家」の選び方 ◇住宅ローンで無理をしない組み方・返済の仕方 ◇住宅購入時が生命保険見直しのチャンス 同じ生命保険内容で保険料が安くなるご提案を致します。 専門の生命保険スタッフがお客様の保険加入を適正かどうか無料で診断致します。 ~~~~~選べるメニュー~~~~~ ・現地/物件見学(1件15分~)見学だけでもOK ・資金計画・住宅ローン相談(約30分~) ・ご希望条件の相談(約30分~) □■ご案内方法■□ ご来社できないお客様はご指定場所(自宅送迎・最寄り駅・目印がある場所など)での待ち合わせからのご案内も可能です(無料送迎)。お気軽にお申し付けください。 ■お子様がいるお客様へ■ お子様が退屈しないよう大型キッズスペースあり。赤ちゃんがいるご家庭にも安心な授乳室やベビーベットもご用意しております。 お菓子のプレゼントや、ぬりえ・DVD・おもちゃ・本・ヒーローグッズ・ピアノなど準備していますのでお気軽にご利用下さい。 |
||
| 情報更新日 | 2026/04/16 | 次回更新予定日 | 2026/04/30 |
| 取引条件有効期限 | 2026/04/19 | ||
住宅性能・販売概要・権利のこだわりポイント
- 所有権
- 設計住宅性能評価書
- 即入居可
0037-618-25760
無料
現地・イベント情報
ご来店イベント開催中
| 開催日時 |
2025年11月01日〜2026年04月30日
|
|---|---|
| 開催場所 | 東京都足立区南花畑2-7-8 |
| 交通 |
つくばエクスプレス「六町」駅 徒歩5分 |
☆テレビで紹介された【やどかリッチ】使えます! 東京MXテレビ「カンニング竹山のイチバン研究所」2023年7月1日放送 エアコン本体・取付工事やカーテン取付などのインテリア・エクステリアにかかる費用を住宅ローンやインテリアローンに組み込み、お支払いをまとめられます。 ※お客様の住宅ローンの内容により、使用できない場合がございます。
取扱い不動産会社
スタッフからのコメント
- エムイーPLUS城東 PR
- 大切なマイホーム購入にお客様の「笑顔」が見られますよう全力でサポートさせて頂きます!精一杯お手伝いいたしますのでどんな些細なことでもご相談下さい。よろしくお願い致します。
木村慶
エムイーPLUS城東 株式会社の会社情報
お電話でのお問合せは「LIFULL HOME'S(ライフルホームズ)を見て」とお伝えください
エムイーPLUS城東株式会社
0037-618-25760
無料
- ※携帯電話はご利用いただけます
- ※光IP電話、及びIP電話をご利用のお客様はTEL:0120-444-989へご連絡ください
- ※携帯電話からお問合せいただいた方には、ショートメッセージ(SMS)またはLINE通知メッセージによるお問合せ内容に関する通知をお届けする場合があり、お客様の電話番号は株式会社LIFULLで一定期間保管されます
- ※株式会社LIFULLの個人情報の取扱い方針に同意のうえ、お電話ください
| 会社名 |
エムイーPLUS城東 株式会社 |
|---|---|
| 免許番号 | 東京都知事 (3) 第 95782 号 |
| 所在地 | 東京都足立区南花畑2-7-8 |
| 所属団体 |
(公社)全日本不動産協会東京都本部 |
この物件にお問合せする
実際に物件・周辺環境を見て検討したい!
近隣建物や接道の状況など資料で分からない部分も一目瞭然。 まずはWEBで事前予約、スムーズに見学しましょう
ご予約無しに直接ご来場された場合、担当者不在であったり、
他のお客様のご案内の都合上、お待たせしてしまうことがございます。
不動産会社に電話で相談したい!
エムイーPLUS城東株式会社
0037-618-25760
無料
電話でのお問合せは「LIFULL HOME'S(ライフルホームズ)を見て」とお伝えください
- ※携帯電話はご利用いただけます
- ※光IP電話、及びIP電話をご利用のお客様はTEL:0120-444-989へご連絡ください
- ※携帯電話からお問合せいただいた方には、ショートメッセージ(SMS)またはLINE通知メッセージによるお問合せ内容に関する通知をお届けする場合があり、お客様の電話番号は株式会社LIFULLで一定期間保管されます
- ※株式会社LIFULLの個人情報の取扱い方針に同意のうえ、お電話ください
LIFULL HOME'Sは物件鮮度No.1を目指していきます 物件情報に誤りがある場合はコチラからご連絡ください
- 【物件番号】
- 1706017-0010547
- ※完成後1年未満で未入居の物件を「新築」と表示しております。
- ※完成予想図やCG合成画像は、門塀・植栽・庭・外観等、実際とは多少異なる場合があります。
物件を再検索する
千葉県の人気エリアから新築一戸建てを探す














