新築一戸建て 【リプラス限定】開放的な吹抜天井・スキップフロア付きLDK16.9帖×3部屋プラン ~渋谷区本町5~
【弊社限定公開】土日祝日現地販売会実施中!「幡ヶ谷」「西新宿五丁目」「中野新橋」駅が徒歩圏内で利用可能な利便性高い好立地に誕生。南東向きで陽当たり・通風良好!ビルトインガレージで敷地内に駐車可能!
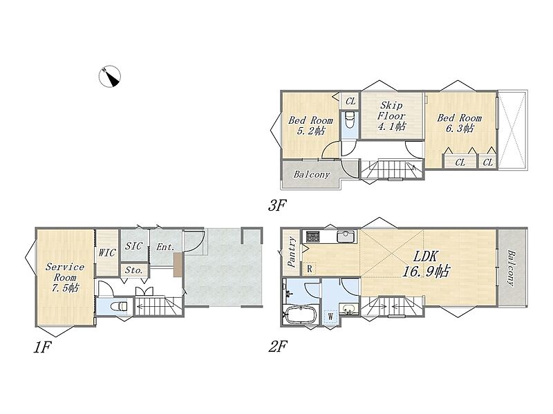
【即日ご案内可能】LDK16.9帖×3部屋の間取り。2階LDKは一部吹抜け天井設計となっており、開放的な空間を演出。WICやSIC、パントリー、スキップフロアなど収納豊富なプランニングで快適な暮らし!
【良住環境】「リコス渋谷本町5丁目店」まで徒歩3分、「まいばすけっと渋谷本町6丁目店」徒歩4分で利用可能!幼稚園や保育園、小中学校など教育施設も徒歩13分圏内で共働きの子育て世帯も安心して暮らせます!
0037-618-73320
無料
魅力1 【弊社限定公開】「幡ヶ谷」「西新宿五丁目」「中野新橋」駅が利用可能な希少立地!
◆ 京王線「幡ヶ谷」駅徒歩10分、都営大江戸線「西新宿五丁目」駅徒歩14分、東京メトロ丸の内線「中野新橋」駅徒歩17分の3駅3路線利用可能な利便性の高い好立地!
◆ 食器洗浄乾燥機や浄水器内臓シャワー水栓、1620サイズバスルーム、浴室暖房乾燥機など豊富な設備仕様で暮らしをサポートします!
魅力2 【見学予約受付中】2階LDKは一部吹抜け天井設計、開放的な空間での暮らし!
◆ LDK16.9帖×3部屋の間取り。2階LDKは一部吹抜け天井設計となっており、開放的な空間を演出。
◆ WICやSIC、パントリー、スキップフロアなど収納豊富なプランニング。スペースが確保されているため、アイテムごとに収納を分けて整理することができます。
魅力3 【良住環境】商業施設や教育施設が徒歩圏内に点在し快適に過ごせる住環境!
◆ 「リコス渋谷本町5丁目店」まで徒歩3分、「まいばすけっと渋谷本町6丁目店」徒歩4分、駅付近に「ライフ幡ケ谷店」があり、気軽に買い物へ出かけることができます。
◆ 「渋谷区立中幡小学校」まで徒歩5分、「渋谷区立笹塚中学校」徒歩13分、保育園・幼稚園が徒歩10圏内に点在しており、子育て世帯にも過ごせいやすい住環境となっています。
0037-618-73320
無料
間取り図
0037-618-73320
無料
内観・室内
間取り・内観のこだわりポイント
- LDK15帖以上
- バリアフリー
- 吹き抜け
- ワイドバルコニー
- 南面バルコニー
- 全室2面採光
- 全室フローリング
- 天井高2.5m以上
- 3階建て
0037-618-73320
無料
設備・仕様
-
【Kitchen】
あると便利な食洗器搭載キッチン。手洗いの...
-
【Wash Room】
機能美とデザイン性を両立させた3面鏡付の...
-
【Bath Room】
1620サイズのバスルーム。足を伸ばして...
-
【Toilet】
1階と3階にトイレがあるので、朝慌ただし...
-
【ウォークインクローゼット】
スペースが確保されているため、アイテムご...
-
【シューズインクローゼット】
靴だけでなく、ベビーカーや遊び道具なども...
-
【パントリー】
常温保存が可能な食料品や調味料、食器、消...
-
【南向きバルコニー】
日中の太陽光を取り入れやすいため、部屋が...
-
【ビルトインガレージ】
雨風や雪、強い日差しなどから大切なお車を...
設備・仕様のこだわりポイント
- キッチン
-
- カウンターキッチン
- 食器洗い乾燥機
- 浄水器・活水器
- ガスコンロ
- 収納
-
- 床下収納
- ウォークインクローゼット
- シューズクローク
- パントリー
- 全居室収納
- その他設備
-
- 都市ガス
- シャワー付洗面化粧台
- 温水洗浄便座
- 浴室乾燥機
- 浴室1.6×1.8m以上
- 浴室暖房
- トイレ2ヶ所以上
- 節水型トイレ
- 複層ガラス採用(二重サッシ・防犯サッシ等)
- 省エネ給湯器
- TVモニタ付インターホン
- ガレージ
0037-618-73320
無料
外観・分譲地
外観・分譲地のこだわりポイント
- 駐車場あり
- 地盤調査済
- 南道路
- 整形地
- 平坦地
0037-618-73320
無料
周辺環境・地図
周辺情報
※半径4kmを超えると、周辺情報のアイコンは表示されません。
- ※不動産会社が入力した情報を基に物件の位置を表示しています。
- ※詳しくは不動産会社までお問合せください。
- ※地図上に表示される各種アイコンなどの情報は、おおよその所在地を表すものであり、物件・施設などの地点を保証するものではありません。
- ※地図の表示領域が広域になると周辺のお店・施設は表示できなくなります。
- ※地図、航空写真情報および地形ならびに周辺のお店・施設は、必ずしも現況を表すものではありません。
- ※物件から周辺のお店・施設までの距離は、利用が想定される道路を通行した場合の距離です。なお、必ずしも最短距離を保証するものではありません。
周辺環境のこだわりポイント
- スーパー 800m以内
- コンビニ 400m以内
- 小学校 800m以内
- 公園 400m以内
- 中学校 800m以内
- 保育園・幼稚園 400m以内
- 複数路線
0037-618-73320
無料
物件概要
| 所在地 | 東京都渋谷区本町5丁目35-2付近 | ||
|---|---|---|---|
| 交通 |
京王線「幡ヶ谷」駅 徒歩10分 都営大江戸線「西新宿五丁目」駅 徒歩14分 東京メトロ丸ノ内線「中野新橋」駅 徒歩17分 |
||
| 販売価格 | 13,390万円 | 最多価格帯 | - |
| 建物面積 | 121.26m2(36.68坪) | 土地面積 | 68.02m2(20.57坪) |
| 間取り | 2SLDK+WIC+SIC+Pantry+スキップフロア+カースペース | 建物構造 | 木造3階建 |
| 販売スケジュール | 販売中 | ||
| 販売戸数 / 総戸数 | 1戸 / 1戸 | ||
| 完成予定日 | 2026年4月中旬 | 引き渡し可能年月 | 即引渡可 |
| 駐車場 | 1台 | 道路の幅員 | 南東側:約4m |
| 用途地域 | 第一種住居地域 | 都市計画 | 市街化区域 |
| 地目 | 宅地 | 国土法 | - |
| 土地の権利 | 所有権 | 借地権の種類・期間 | - |
| 主たる設備の概要 | 公営水道、都市ガス、電気、本下水 | 建築確認番号 | 第25UDI1T建03717号 |
| 施工会社 | - | 機構融資 | - |
| 売主 | 取引態様 | リプラス株式会社/仲介 | |
| イベント情報 |
|
||
| 備考 |
準防火地域、第三種高度地区、日影規制、本町二・四・五・六丁目地区防災街区整備地区 ~弊社会員「Replus Club」では東京都内の物件を多数掲載中!~ ・質と量にこだわった物件情報 ・新着・価格改定など随時更新 ・会員限定の約30,000件の未公開物件が見放題 ・気になる物件の写真をリクエスト可能 ・広告で公開する前の「未公開物件」や最新情報を会員様限定でお届け ・ご条件に沿った、大幅値下げ情報や最新情報のマッチングメール配信 ・PCとスマホで会員情報を共有 下記URLから会員登録が可能です! https://www.replus1.co.jp/first/club/ ▼Replus の7つの強み▼ ▼Replus×MFA株式会社 弊社ではお客様に、より公平な立場からファイナンシャルプランニングを受けて頂きたいという思いから、自社のファイナンシャルプランナーではなく、第三者機関のMFA株式会社よりお客様目線のご提案を差し上げております。 弊社営業とファイナンシャルプランナーがお客様に無理なご提案をすることがないよう、 お客様の立場となってご提案させて頂きます。 全て無料にてファイナンシャルプランニングを受けられます。※予約制 ▼買い替え時の売却力 弊社にお問合せ頂く3割のお客様は買い替えのお客様になります。 自宅を売却した後に購入される方や購入した後に自宅を売却される方といらっしゃいます。 Replusでは委任物件の3か月以内の売却委任成約率が2023年90%以上の実績がございます。 なぜ売却成約率が高いのか。そこには大きな理由がございます。 他社不動産会社ではできない弊社だからこそできることがございます。 ▼未公開物件や大幅値引き可能物件など情報満載 会員登録のメリット ポータルサイトには掲載できない物件や提示できない大幅値引き可能物件など様々な物件情報を弊社では取り揃えております。 表に出ている物件のほとんどが弊社でご紹介可能な物件ですが、他社にはできないプラスの価値を見出すのがReplusの使命です。 気になる物件や検討中の物件も一度弊社までご相談ください。 ▼オプション設備サービス ▼住宅設備保証サポート ▼物件情報のクオリティ、ポータルサイトでの情報収集力 ▼ローンシミュレーション、資金計画 その他、ご不明な点等ございましたらお気軽に弊社までお問合せ下さい。 |
||
| 情報更新日 | 2026/05/17 | 次回更新予定日 | 2026/05/31 |
| 取引条件有効期限 | 2026/06/30 | ||
住宅性能・販売概要・権利のこだわりポイント
- 所有権
- 瑕疵担保付き
- フラット35・S適合証明書
- 即入居可
0037-618-73320
無料
現地・イベント情報
■Replusのライフプランニング無料サポート!■
| 開催日時 |
2026年03月15日〜2026年09月30日
|
|---|---|
| 開催場所 | 東京都渋谷区本町3-13-12渋谷本町ビル7F |
| 交通 |
都営大江戸線「西新宿五丁目」駅 徒歩2分 |
ファイナンシャル・プランニングの「マニュライフ・ファイナンシャル・アドバイザーズ株式会社」と提携し、お客様のご希望により無料でライフプランニングをサポートします。資金計画や住宅ローンのご相談、税金関係などお気軽にご相談ください。 詳しくは弊社WEBページをご確認くださいませ。ご相談、随時受け付けております。 https://www.replus1.co.jp/first/lps/
■弊社限定未公開物件多数!大幅値引き可能物件も多数取り扱いございます。
| 開催日時 |
2026年03月16日〜2026年09月30日
|
|---|---|
| 開催場所 | 東京都渋谷区本町3-13-12 渋谷本町ビル7階 |
| 交通 |
都営大江戸線「西新宿五丁目」駅 徒歩2分 |
他社様では取り扱いご紹介できない物件や、弊社限定大幅値引き可能な物件も多数取り扱いがございます。ポータルサイトではご紹介できない物件が弊社HPに掲載中でございます。 お気軽にお問合せ下さい。いますぐ弊社HPを検索!「リプラス株式会社」へ!https://www.replus1.co.jp/
■Replusキャンペーン■お得な情報盛りだくさん■住宅ローン、資金計画等の相談会など開催中■
| 開催日時 |
2026年03月16日〜2026年09月30日
|
|---|---|
| 開催場所 | 東京都渋谷区本町3-13-12渋谷本町ビル7F |
| 交通 |
都営大江戸線「西新宿五丁目」駅 徒歩2分 |
住宅ローン、資金計画等の相談会、物件のご案内会を開催中! 未公開物件も多数取り扱っておりますので、ぜひ弊社HPをご活用ください。 https://www.replus1.co.jp/
取扱い不動産会社
スタッフからのコメント
- 【渋谷区の物件は弊社にお任せ下さい!】
- 【弊社限定公開】
土日祝現地販売会実施中!お気軽にお問い合わせください!
「幡ヶ谷」「西新宿五丁目」「中野新橋」駅が利用可能な利便性高い希少立地に誕生!
LDK16.9帖×3部屋の間取り。2階LDKは一部吹抜け天井設計となっており、開放的な空間を演出。WICやSIC、パントリー、スキップフロアなど収納豊富なプランニング!
「リコス渋谷本町5丁目店」まで徒歩3分、「まいばすけっと渋谷本町6丁目店」徒歩4分、駅付近に「ライフ幡ケ谷店」があり、気軽に買い物へ出かけることができます。
「渋谷区立中幡小学校」まで徒歩5分、「渋谷区立笹塚中学校」徒歩13分、保育園・幼稚園が徒歩10圏内に点在!
高橋 諒太
リプラス株式会社の会社情報
お電話でのお問合せは「LIFULL HOME'S(ライフルホームズ)を見て」とお伝えください
リプラス|カスタマーセンター:東京都渋谷区本町3-13-12渋谷本町ビル7F
0037-618-73320
無料
- ※携帯電話はご利用いただけます
- ※光IP電話、及びIP電話をご利用のお客様はTEL:0120-76-1177へご連絡ください
- ※携帯電話からお問合せいただいた方には、ショートメッセージ(SMS)またはLINE通知メッセージによるお問合せ内容に関する通知をお届けする場合があり、お客様の電話番号は株式会社LIFULLで一定期間保管されます
- ※株式会社LIFULLの個人情報の取扱い方針に同意のうえ、お電話ください
| 会社名 |
リプラス株式会社 |
|---|---|
| 免許番号 | 東京都知事 (1) 第 110445 号 |
| 所在地 | 東京都渋谷区本町3-13-12 渋谷本町ビル7階 |
| 所属団体 |
(公社)全日本不動産協会東京都本部 |
この物件にお問合せする
実際に物件・周辺環境を見て検討したい!
近隣建物や接道の状況など資料で分からない部分も一目瞭然。 まずはWEBで事前予約、スムーズに見学しましょう
ご予約無しに直接ご来場された場合、担当者不在であったり、
他のお客様のご案内の都合上、お待たせしてしまうことがございます。
不動産会社に電話で相談したい!
リプラス|カスタマーセンター:東京都渋谷区本町3-13-12渋谷本町ビル7F
0037-618-73320
無料
電話でのお問合せは「LIFULL HOME'S(ライフルホームズ)を見て」とお伝えください
- ※携帯電話はご利用いただけます
- ※光IP電話、及びIP電話をご利用のお客様はTEL:0120-76-1177へご連絡ください
- ※携帯電話からお問合せいただいた方には、ショートメッセージ(SMS)またはLINE通知メッセージによるお問合せ内容に関する通知をお届けする場合があり、お客様の電話番号は株式会社LIFULLで一定期間保管されます
- ※株式会社LIFULLの個人情報の取扱い方針に同意のうえ、お電話ください
LIFULL HOME'Sは物件鮮度No.1を目指していきます 物件情報に誤りがある場合はコチラからご連絡ください
- 【物件番号】
- 1705943-0002498
- ※完成後1年未満で未入居の物件を「新築」と表示しております。
- ※完成予想図やCG合成画像は、門塀・植栽・庭・外観等、実際とは多少異なる場合があります。














