新築一戸建て PrimeLifeTerrace西大寺東2号地 分譲住宅
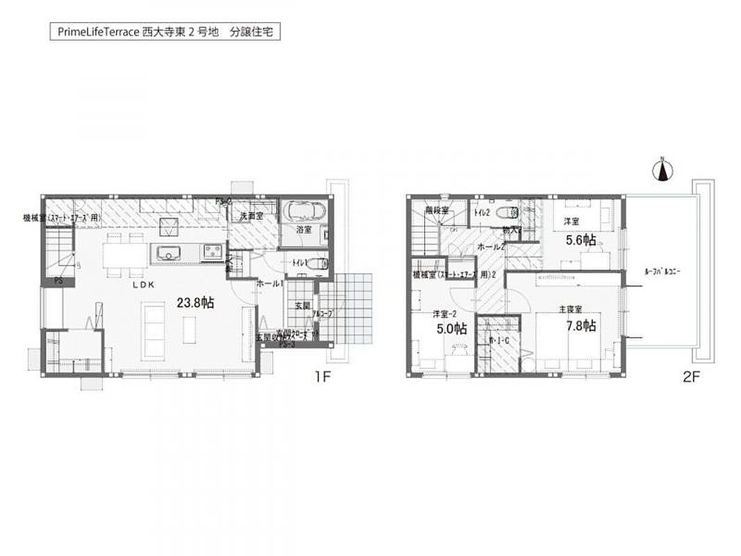
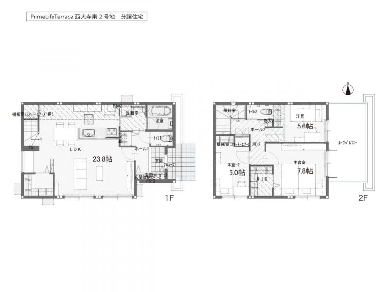
魅力1 家族がのびのび過ごせる23.8帖の広々LDK。全館空調システム付。即入居も可能!
外壁全面タイル貼りで重厚感+高級感ある佇まい
太陽光発電システム3.97kW搭載のオール電タイプの住宅です。
LDKは23.8帖の広々空間で、家族の様々なシーンに活躍するワークカウンタースペースやファミリークローゼットも完備!
全館空調システムも搭載されているので、家じゅう年じゅう快適な暮らしをご提案。
ご予約・お問合せで、お好きな日時にご見学が可能ですので、お気軽にご予約くださいませ。
魅力2 JR西大寺駅まで徒歩9分の好立地で通勤・通学・お出かけも快適
JR西大寺駅まで700mの徒歩圏内であらゆる生活シーンに便利です。
また、教育施設(幼稚園・小学校・中学校)も1.5km以内にあり、子育て世代のご家族様にもおすすめのエリアです。
魅力3 家事ラクな動線設計で毎日のドタバタな日々を快適に
キッチン~洗面~お風呂の水回りが一直線上に設計されており、家事動線の効率UPな間取りです。
また、毎朝の支度を少しでもスムーズにできるよう、1Fにファミリークロークを設置。
0037-618-89855
無料
内観・室内
0037-618-89855
無料
設備・仕様
0037-618-89855
無料
外観・分譲地
外観・分譲地のこだわりポイント
- 庭が広い
- 駐車場あり
0037-618-89855
無料
周辺環境・地図
周辺情報
※半径4kmを超えると、周辺情報のアイコンは表示されません。
- ※不動産会社が入力した情報を基に物件の位置を表示しています。
- ※詳しくは不動産会社までお問合せください。
- ※地図上に表示される各種アイコンなどの情報は、おおよその所在地を表すものであり、物件・施設などの地点を保証するものではありません。
- ※地図の表示領域が広域になると周辺のお店・施設は表示できなくなります。
- ※地図、航空写真情報および地形ならびに周辺のお店・施設は、必ずしも現況を表すものではありません。
- ※物件から周辺のお店・施設までの距離は、利用が想定される道路を通行した場合の距離です。なお、必ずしも最短距離を保証するものではありません。
0037-618-89855
無料
物件概要
| 所在地 | 岡山県岡山市東区西大寺東2丁目 | ||
|---|---|---|---|
| 交通 |
JR赤穂線「西大寺」駅 徒歩9分 両備バス「昭和被服総業前」バス停 徒歩9分 |
||
| 販売価格 | 4687万円 | 最多価格帯 | - |
| 建物面積 | 100.41m2 | 土地面積 | 180.81m2 |
| 間取り | 3LDK | 建物構造 | 2階建て 構造:軽量鉄骨 工法:ユニット工法 |
| 販売スケジュール | - | ||
| 販売戸数 / 総戸数 | 1戸 / 1戸 | ||
| 完成予定日 | 2026/03 | 引き渡し可能年月 | 相談 |
| 駐車場 | 2台 | 道路の幅員 | - |
| 用途地域 | 第1種住居地域 | 都市計画 | 市街化区域 |
| 地目 | 地目:宅地 | 国土法 | - |
| 土地の権利 | 所有権 | 借地権の種類・期間 | - |
| 主たる設備の概要 | 公営水道、公共下水、その他、水洗、IH、三口、有 | 建築確認番号 | 第ERI-25033351号(令和7年10月27日付) |
| 施工会社 | - | 機構融資 | - |
| 売主 | トヨタホーム岡山株式会社 | 取引態様 | トヨタホーム岡山株式会社(売主) |
| 備考 | - | ||
| 情報更新日 | 2026/05/28 | 次回更新予定日 | 2026/06/04 |
| 取引条件有効期限 | 2026/06/11 | ||
住宅性能・販売概要・権利のこだわりポイント
- 所有権
- 売主・代理
0037-618-89855
無料
取扱い不動産会社
トヨタホーム岡山株式会社の会社情報
お電話でのお問合せは「LIFULL HOME'S(ライフルホームズ)を見て」とお伝えください
トヨタホーム岡山株式会社
0037-618-89855
無料
- ※携帯電話はご利用いただけます
- ※光IP電話、及びIP電話をご利用のお客様はTEL:086-941-8822へご連絡ください
- ※携帯電話からお問合せいただいた方には、ショートメッセージ(SMS)またはLINE通知メッセージによるお問合せ内容に関する通知をお届けする場合があり、お客様の電話番号は株式会社LIFULLで一定期間保管されます
- ※株式会社LIFULLの個人情報の取扱い方針に同意のうえ、お電話ください
| 会社名 |
トヨタホーム岡山株式会社 |
|---|---|
| 免許番号 | 国土交通大臣 (2) 第 9718 号 |
| 所在地 | 岡山県岡山市北区久米161 |
| 所属団体 |
中国地区不動産公正取引協議会 |
この物件にお問合せする
実際に物件・周辺環境を見て検討したい!
近隣建物や接道の状況など資料で分からない部分も一目瞭然。 まずはWEBで事前予約、スムーズに見学しましょう
ご予約無しに直接ご来場された場合、担当者不在であったり、
他のお客様のご案内の都合上、お待たせしてしまうことがございます。
不動産会社に電話で相談したい!
トヨタホーム岡山株式会社
0037-618-89855
無料
電話でのお問合せは「LIFULL HOME'S(ライフルホームズ)を見て」とお伝えください
- ※携帯電話はご利用いただけます
- ※光IP電話、及びIP電話をご利用のお客様はTEL:086-941-8822へご連絡ください
- ※携帯電話からお問合せいただいた方には、ショートメッセージ(SMS)またはLINE通知メッセージによるお問合せ内容に関する通知をお届けする場合があり、お客様の電話番号は株式会社LIFULLで一定期間保管されます
- ※株式会社LIFULLの個人情報の取扱い方針に同意のうえ、お電話ください
LIFULL HOME'Sは物件鮮度No.1を目指していきます 物件情報に誤りがある場合はコチラからご連絡ください
- 【物件番号】
- 1705905-0000059
- ※完成後1年未満で未入居の物件を「新築」と表示しております。
- ※完成予想図やCG合成画像は、門塀・植栽・庭・外観等、実際とは多少異なる場合があります。






