新築一戸建て ポラスの分譲住宅 ビー・グレイス船橋実籾
この物件は未完成のため、掲載写真(外観、内観、設備等)には、施工例が含まれている場合があります。物件詳細については、掲載の不動産会社宛にお問合せください。
船橋市・「実籾」駅利用の戸建プロジェクト始動〈全4邸〉
◆京成本線「実籾」駅まで徒歩19分・自転車6分※実測
◆販売価格:3,990万円(税込)
◆敷地面積131.29m2×駐車場標準2台
◆2.7mのリビング天井高×2.4mのサッシ高
◆「エコワンX5」採用
◆食洗機・浴室乾燥機・電動シャッター・床暖房・宅配ボックス
◆「公園」まで徒歩1分・「マルエツ」まで徒歩5分。
◆「小学校」まで徒歩12分・「幼稚園」まで徒歩5分・「保育園」まで徒歩9分。徒歩圏に教育施設・生活施設が揃い、暮らしやすさを実感できる住環境
0037-618-65365
無料
魅力1 船橋市・「実籾」駅利用の戸建プロジェクト始動〈全4邸〉
◆京成本線「実籾」駅まで徒歩19分・自転車6分※実測
◆「実籾」駅利用で「東京」駅まで47分・「成田空港」駅まで40分
魅力2 快適な暮らしを支える充実の標準設備
床暖房、ハイブリッド給湯器、電動シャッター、宅配ボックスなど、快適な暮らしをサポートする設備を標準採用しています。 キッチンやバスルーム、洗面化粧台などの設備も、デザイン性と機能性に優れたものを採用。 ハイシーリング&ハイサッシ、適材適所の収納計画なども全邸に共通する仕様です。
魅力3 毎日のお買い物に便利な商業施設が揃っています。
マルエツ 船橋三山店/生鮮食品・総菜・日用品などを取り扱うスーパーマーケット。店内にはイートインスペースもあります。営業時間は9:00~22:00。駐車場は112台分あり、荷物が多い日も安心です。
東習志野ショッピングセンター(マルエツ・ヤマダデンキ・サンドラック他)/スーパー、ドラッグストア、家電量販店などが集約するショッピングエリア。広い駐車場があり、車でまとめ買いに便利です。スーパーの「マルエツ」は24時間営業です。
0037-618-65365
無料
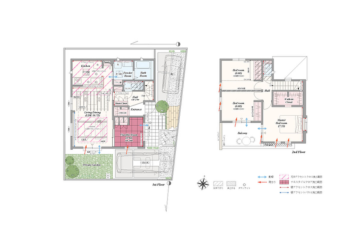
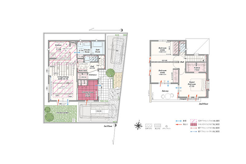
間取り図
0037-618-65365
無料
内観・室内
間取り・内観のこだわりポイント
- LDK15帖以上
- 4LDK以上
- 全居室6帖以上
- ワイドバルコニー
- 南面バルコニー
- 全室2面採光
- 全室フローリング
- 天井高2.5m以上
0037-618-65365
無料
設備・仕様
設備・仕様のこだわりポイント
- キッチン
-
- カウンターキッチン
- 食器洗い乾燥機
- 浄水器・活水器
- ガスコンロ
- 収納
-
- 床下収納
- ウォークインクローゼット
- シューズクローク
- パントリー
- 全居室収納
- その他設備
-
- 都市ガス
- シャワー付洗面化粧台
- 温水洗浄便座
- 浴室乾燥機
- 浴室1.6×1.8m以上
- 浴室暖房
- トイレ2ヶ所以上
- 床暖房
- 複層ガラス採用(二重サッシ・防犯サッシ等)
- スマートキー
- 省エネ給湯器
- 電動シャッター
- TVモニタ付インターホン
- 宅配ボックス
省エネ性能
-
※「省エネ性能ラベル」は特定の住戸の性能を示し、全ての住戸の性能を示していない場合があります。
0037-618-65365
無料
外観・分譲地
外観・分譲地のこだわりポイント
- 駐車場あり
- 地盤調査済
- 敷地延長・変形地
- 前面道路6m以上
0037-618-65365
無料
周辺環境・地図
周辺情報
※半径4kmを超えると、周辺情報のアイコンは表示されません。
- ※不動産会社が入力した情報を基に物件の位置を表示しています。
- ※詳しくは不動産会社までお問合せください。
- ※地図上に表示される各種アイコンなどの情報は、おおよその所在地を表すものであり、物件・施設などの地点を保証するものではありません。
- ※地図の表示領域が広域になると周辺のお店・施設は表示できなくなります。
- ※地図、航空写真情報および地形ならびに周辺のお店・施設は、必ずしも現況を表すものではありません。
- ※物件から周辺のお店・施設までの距離は、利用が想定される道路を通行した場合の距離です。なお、必ずしも最短距離を保証するものではありません。
-
【学校】
三山東小学校(現地より徒歩12分) (約900m)
学校教育目標は「心身ともに健やかで思いやりの心をもち、自ら学び...
-
【学校】
三山中学校(現地より徒歩14分) (約1100m)
「ねばり強く・心豊かに・たくましく」を学校教育目標に掲げ、日々...
-
【学校】
ホーリネス幼稚園(現地より徒歩5分) (約390m)
1970年に設立された幼稚園。キリスト教の精神を基として良き習...
-
【学校】
船橋市立三山保育園(現地より徒歩9分) (約720m)
「健康でよく遊べる子ども」「思いやりのある子ども」が保育目標に...
-
【買い物】
マルエツ 船橋三山店(現地より徒歩6分) (約440m)
生鮮食品・総菜・日用品などを取り扱うスーパーマーケット。店内に...
-
【買い物】
東習志野ショッピングセンター(マルエツ・ヤマダデンキ・サンド (約490m)
スーパー、ドラッグストア、家電量販店などが集約するショッピング...
周辺環境のこだわりポイント
- スーパー 800m以内
- 公園 400m以内
- 保育園・幼稚園 400m以内
0037-618-65365
無料
物件概要
| 所在地 | 千葉県船橋市習志野5丁目2404番3他 | ||
|---|---|---|---|
| 交通 |
京成本線「実籾」駅 徒歩19分 |
||
| 販売価格 | 3,990万円 | 最多価格帯 | - |
| 建物面積 | 96.88m2 | 土地面積 | 131.29m2 / 私道負担なし |
| 間取り | 3LDK+ステアリビング+土間収納+パントリー+ランドリーカウンター+ウォークインクローゼット | 建物構造 | 木造2階建(在来工法) |
| 販売スケジュール | - | ||
| 販売戸数 / 総戸数 | 1戸 / 4戸 | ||
| 完成予定日 | 2026年6月下旬予定 | 引き渡し可能年月 | 2026年8月31日 |
| 駐車場 | 2台 | 道路の幅員 | 7.3m公道 |
| 用途地域 | 第一種住居地域,第一種中高層住居専用地域 | 都市計画 | 市街化区域 |
| 地目 | 雑種・その他 原野(宅地渡し) | 国土法 | - |
| 土地の権利 | 所有権 | 借地権の種類・期間 | - |
| 主たる設備の概要 | 公営水道、東京電力・他、都市ガス、本下水、カースペース、外構 | 建築確認番号 | 第SJK-KX255645850号(2026年2月5日)2号棟 |
| 施工会社 | ポラテック(株) | 機構融資 | - |
| 売主 | 中央グリーン開発(株) [宅建業:国土交通大臣(5)第6871号] | 取引態様 | 売主 |
| モデルルーム情報 | 近隣モデルハウス案内可能 | ||
| 備考 |
※2号棟は抽選販売となります。2026年5月15日(金)12:00受付締切、12:30抽選。 ※入居予定は号棟により異なります。詳しくは販売員までお問い合わせください。 ※各施設までの徒歩所要時間(距離)は、「最も遠い号棟を起点」に計測しております。 ※毎週火・水曜日は弊社定休日となります。火・水曜日の見学予約はご対応いたしかねますのであらかじめご了承ください。 ※灯かりのいえなみ協定(R)がございます。詳しくは販売員までお問い合わせください。 ※建ペイ率・容積率に関しては道路幅員、接道状況により数値が異なる場合がございますのでご了承ください。 ※建物の一部が下がり壁、勾配天井、下がり天井になる場合がございます。詳細は設計図書でご確認ください。 [設備]公営水道/東京電力・他/都市ガス/本下水/カースペース/外構 |
||
| 情報更新日 | 2026/05/15 | 次回更新予定日 | 2026/05/18 |
| 取引条件有効期限 | 2026/05/17 | ||
住宅性能・販売概要・権利のこだわりポイント
- 所有権
- 瑕疵担保付き
- 仲介手数料不要
- 売主・代理
0037-618-65365
無料
取扱い不動産会社
ポラスグループ 中央グリーン開発株式会社の会社情報
お電話でのお問合せは「LIFULL HOME'S(ライフルホームズ)を見て」とお伝えください
中央グリーン開発(株) 千葉支店船橋事業所
0037-618-65365
無料
- ※携帯電話はご利用いただけます
- ※光IP電話、及びIP電話をご利用のお客様はTEL:0120-996-778へご連絡ください
- ※携帯電話からお問合せいただいた方には、ショートメッセージ(SMS)またはLINE通知メッセージによるお問合せ内容に関する通知をお届けする場合があり、お客様の電話番号は株式会社LIFULLで一定期間保管されます
- ※株式会社LIFULLの個人情報の取扱い方針に同意のうえ、お電話ください
| 会社名 |
ポラスグループ 中央グリーン開発株式会社 |
|---|---|
| 免許番号 | 国土交通大臣 (5) 第 6871 号 |
| 所在地 | 埼玉県越谷市南越谷1-2905-3 |
| 所属団体 |
(公社)首都圏不動産公正取引協議会 |
この物件にお問合せする
実際に物件・周辺環境を見て検討したい!
近隣建物や接道の状況など資料で分からない部分も一目瞭然。 まずはWEBで事前予約、スムーズに見学しましょう
ご予約無しに直接ご来場された場合、担当者不在であったり、
他のお客様のご案内の都合上、お待たせしてしまうことがございます。
不動産会社に電話で相談したい!
中央グリーン開発(株) 千葉支店船橋事業所
0037-618-65365
無料
電話でのお問合せは「LIFULL HOME'S(ライフルホームズ)を見て」とお伝えください
- ※携帯電話はご利用いただけます
- ※光IP電話、及びIP電話をご利用のお客様はTEL:0120-996-778へご連絡ください
- ※携帯電話からお問合せいただいた方には、ショートメッセージ(SMS)またはLINE通知メッセージによるお問合せ内容に関する通知をお届けする場合があり、お客様の電話番号は株式会社LIFULLで一定期間保管されます
- ※株式会社LIFULLの個人情報の取扱い方針に同意のうえ、お電話ください
LIFULL HOME'Sは物件鮮度No.1を目指していきます 物件情報に誤りがある場合はコチラからご連絡ください
- 【物件番号】
- 1700129-0000839
- ※完成後1年未満で未入居の物件を「新築」と表示しております。
- ※完成予想図やCG合成画像は、門塀・植栽・庭・外観等、実際とは多少異なる場合があります。
物件を再検索する
千葉県の人気エリアから新築一戸建てを探す














