新築一戸建て 【ダイワハウス】まちなかジーヴォ文京本駒込2丁目 (分譲住宅)
都営三田線「千石」駅へ徒歩6分、東京メトロ南北線「本駒込」駅へ徒歩7分とアクセス良好です。
0037-618-03122
無料
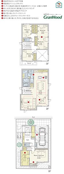
間取り図
0037-618-03122
無料
内観・室内
間取り・内観のこだわりポイント
- 4LDK以上
- 南面バルコニー
- 3階建て
0037-618-03122
無料
設備・仕様
設備・仕様のこだわりポイント
- キッチン
-
- IHコンロ
- カウンターキッチン
- 食器洗い乾燥機
- その他設備
-
- 都市ガス
- マイホーム発電システム
- スマートハウス
- シャワー付洗面化粧台
- 温水洗浄便座
- 浴室乾燥機
- 浴室1.6×1.8m以上
- 浴室暖房
- タンクレストイレ
- ガレージ
0037-618-03122
無料
外観・分譲地
外観・分譲地のこだわりポイント
- 駐車場あり
- 地盤調査済
- 整形地
- 平坦地
0037-618-03122
無料
周辺環境・地図
周辺情報
※半径4kmを超えると、周辺情報のアイコンは表示されません。
- ※不動産会社が入力した情報を基に物件の位置を表示しています。
- ※詳しくは不動産会社までお問合せください。
- ※地図上に表示される各種アイコンなどの情報は、おおよその所在地を表すものであり、物件・施設などの地点を保証するものではありません。
- ※地図の表示領域が広域になると周辺のお店・施設は表示できなくなります。
- ※地図、航空写真情報および地形ならびに周辺のお店・施設は、必ずしも現況を表すものではありません。
- ※物件から周辺のお店・施設までの距離は、利用が想定される道路を通行した場合の距離です。なお、必ずしも最短距離を保証するものではありません。
周辺環境のこだわりポイント
- スーパー 800m以内
- 小学校 800m以内
- 公園 400m以内
- 中学校 800m以内
- 複数路線
0037-618-03122
無料
物件概要
| 所在地 | 東京都文京区本駒込2-19-25 | ||
|---|---|---|---|
| 交通 |
都営三田線「千石」駅 徒歩6分 東京メトロ南北線「本駒込」駅 徒歩7分~8分 |
||
| 販売価格 | 37,000万円 | 最多価格帯 | - |
| 建物面積 | 192.74m2(1号地) | 土地面積 | 119.02m2(1号地) 私道負担なし |
| 間取り | 4LDK(1号地) | 建物構造 | 木造3階建(1戸) |
| 販売スケジュール | 先着順申込受付中 | ||
| 販売戸数 / 総戸数 | 1戸 / 1戸 | ||
| 完成予定日 | 令和7年12月完成済 1戸 | 引き渡し可能年月 | 即引渡可 1戸 |
| 駐車場 | 1台 | 道路の幅員 | 4m(アスファルト舗装) |
| 用途地域 | 第一種中高層住居専用地域 | 都市計画 | 市街化区域 |
| 地目 | - | 国土法 | 届出不要 |
| 土地の権利 | 所有権 | 借地権の種類・期間 | - |
| その他費用 | 軟水器使用料:入居後半年間無料(半年後解除可能)、継続の場合は使用料月額4,180円(税込)が必要です。 | ||
| 主たる設備の概要 | 電気:大和ハウス工業(他の小売電気事業者の選択も可能です)、ガス:都市ガス、水道:公営水道、下水:公共下水道 | 建築確認番号 | 第ERI-25011664号 |
| 施工会社 | - | 機構融資 | - |
| 売主 | 大和ハウス工業株式会社 [国土交通大臣(16)第245号 国土交通大臣許可(特-7)第5279号] | 取引態様 | 売主 |
| 備考 | - | ||
| 情報更新日 | 2026/05/20 | 次回更新予定日 | 随時 |
| 取引条件有効期限 | 2026/05/27 | ||
住宅性能・販売概要・権利のこだわりポイント
- 所有権
- 売主・代理
- 即入居可
0037-618-03122
無料
取扱い不動産会社
大和ハウス工業株式会社の会社情報
お電話でのお問合せは「LIFULL HOME'S(ライフルホームズ)を見て」とお伝えください
東京本店 住宅事業部
0037-618-03122
無料
- ※携帯電話はご利用いただけます
- ※光IP電話、及びIP電話をご利用のお客様はTEL:0120-562-900へご連絡ください
- ※携帯電話からお問合せいただいた方には、ショートメッセージ(SMS)またはLINE通知メッセージによるお問合せ内容に関する通知をお届けする場合があり、お客様の電話番号は株式会社LIFULLで一定期間保管されます
- ※株式会社LIFULLの個人情報の取扱い方針に同意のうえ、お電話ください
| 会社名 |
大和ハウス工業株式会社 |
|---|---|
| 免許番号 | 国土交通大臣 (16) 第 245 号 |
| 所在地 | 大阪府大阪市北区梅田3丁目3番5号 |
| 所属団体 |
(一社)不動産協会 |
この物件にお問合せする
実際に物件・周辺環境を見て検討したい!
近隣建物や接道の状況など資料で分からない部分も一目瞭然。 まずはWEBで事前予約、スムーズに見学しましょう
ご予約無しに直接ご来場された場合、担当者不在であったり、
他のお客様のご案内の都合上、お待たせしてしまうことがございます。
不動産会社に電話で相談したい!
東京本店 住宅事業部
0037-618-03122
無料
電話でのお問合せは「LIFULL HOME'S(ライフルホームズ)を見て」とお伝えください
- ※携帯電話はご利用いただけます
- ※光IP電話、及びIP電話をご利用のお客様はTEL:0120-562-900へご連絡ください
- ※携帯電話からお問合せいただいた方には、ショートメッセージ(SMS)またはLINE通知メッセージによるお問合せ内容に関する通知をお届けする場合があり、お客様の電話番号は株式会社LIFULLで一定期間保管されます
- ※株式会社LIFULLの個人情報の取扱い方針に同意のうえ、お電話ください
LIFULL HOME'Sは物件鮮度No.1を目指していきます 物件情報に誤りがある場合はコチラからご連絡ください
- 【物件番号】
- 1700013-0016294
- ※完成後1年未満で未入居の物件を「新築」と表示しております。
- ※完成予想図やCG合成画像は、門塀・植栽・庭・外観等、実際とは多少異なる場合があります。






