

青空が似合う、ミニマルモダンの家
施工事例データ
直線で構成された美しい外観。 白い壁に映る光と影が、時間とともに表情を変える。 シンプルだからこそ際立つ、洗練された佇まいの住まいです。
直線で構成された美しい外観。 白い壁に映る光と影が、時間とともに表情を変える。 シンプルだからこそ際立つ、洗練された佇まいの住まいです。
本体価格
坪単価
床面積
土地面積
間取り
工法
所在地
竣工年
家族構成
ペット
商品名
建築対応エリア
家づくりのヒントとは

- 家づくりのアイディア
- イメージふくらむ写真
- 工法や技術
- 間取り・プラン実例
内観・外観画像(10件)

木のぬくもりに包まれる、やさしいリビング
無垢材のアクセントウォールが印象的な、温もりあふれるリビング空間。 やわらかな木目と淡い色合いでまとめることで、心がほっと落ち着く雰囲気に仕上げました。 自然素材の質感を活かしながら、シンプルで飽きのこないデザインに。 家族が自然と集まり、ゆったりとした時間を過ごせる、やさしい住まいです。 光をやわらかく拡散する照明と、ナチュラルな家具との調和が、毎日の暮らしを少し豊かにしてくれます。

暮らしにフィットする、シンプル&機能美キッチン
白で統一した、清潔感あふれるフラットキッチン。 無駄を省いたデザインと、すっきりとした収納計画で、いつでも整った空間をキープできます。 横長の窓からやわらかな光を取り込み、手元を明るく快適に。 調理・配膳・片付けまでをスムーズにする動線設計で、日々の家事負担を軽減します。 機能性とデザイン性を両立した、“毎日立ちたくなる”キッチン空間です。

明るい光が差し込む、ナチュラルな木目の階段
白を基調とした壁面に、温かみのあるナチュラルな木素材を合わせた階段のデザインです。手すりのブラックがさりげないアクセントになり、空間を引き締めています。毎日の上り下りが楽しくなるような、開放感のあるインテリアです。

扉の向こうに隠す、計算された「ストック拠点」
普段は折戸でスッキリと隠しつつ、開ければ必要なものが一目で見渡せる機能的な階段下収納です。掃除機や背の高い脚立、トイレットペーパーのストックまで、生活動線に合わせた「使う場所のすぐ近く」に定位置を確保。扉があるからこそ、多少の生活感も気にせず効率重視で配置できるのが魅力です。

暮らしを整える、一輪のときめき
お気に入りの置物をひとつ置くだけで、いつもの風景が特別なものに。コンパクトなサイズのプリザーブドフラワーは、圧迫感を与えず、空間を上品にクラスアップしてくれます。季節を問わず咲き続ける花とともに、心地よい暮らしの始まりを。

日常を忘れる、洗練されたプライベート・スパ
石目調のアクセントウォールが落ち着きを演出する、シックなバスルーム。たっぷりとお湯を湛えた浴槽に、キャンドルの柔らかな光と白濁の入浴剤を添えて。自宅にいながら高級ホテルのスパにいるような、極上のリラックスタイムを叶えます。

「白×オレンジ」の爽やかレストルーム
元気をくれるオレンジの壁紙がアクセント。光が回り込む明るい設計で、おもてなしの空間としても最適な、センスの光るトイレです。

真っ白な光に包まれる、清々しい朝のプレリュード
余計なものを削ぎ落とした、ミニマルで美しいホワイトの洗面空間。窓から差し込む柔らかな光が、清潔感あふれるボウルをより一層白く際立たせます。一日が始まる場所だからこそ、どこまでもピュアに。心を整えてくれる清涼な空気が流れています。

日常をアップデートする。整理整頓から始まる心地よいリズム
機能美と余白が心地よい、理想の背面収納。厳選したアイテムをギャラリーのように並べた空間は、朝の身支度や家事の時間にゆとりと楽しさをもたらします。

「お気に入りを並べる」喜び。自分だけのミニマル・クローゼット
主寝室の一角に設けられた、開放感のある収納スペース。ハンガーの向きから小物の配置まで、ルールを持って整えられた空間は、毎日の服選びを特別なひとときに変えてくれます。木の温もりを感じるチェストが、機能的な空間に安らぎを添えています。
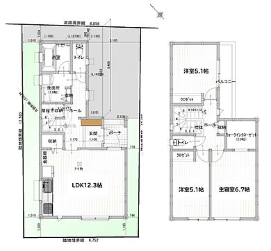
間取り図(2件)

図面から伝わるのは、暮らしの「使い勝手」への徹底したこだわりです。帰宅してすぐのホールに階段下収納があるため、掃除機や日用品をサッと取り出せ、LDKに物を持ち込まずに済みます。2階は主寝室に広々としたWIC、さらに各洋室にも独立したクローゼットを完備。1階は「共有の場」、2階は「個の充実」とはっきり分けることで、家族がそれぞれの時間も大切にしながらスッキリ暮らせる工夫が詰まっています。

24時間受付中!WEB予約・お問い合わせはこちら 万が一読み取れない場合はこちらにアクセスして下さい ↓ https://nichido-kensetsu.com/
家づくりのヒントとは

- 家づくりのアイディア
- イメージふくらむ写真
- 工法や技術
- 間取り・プラン実例
この会社の他の施工事例(18件)
この会社のカタログ

船橋市 カッコイイ平屋(nichidoのいえ)
「木と黒が織りなす、洗練された和モダンの住まい」
建てたいエリアを教えてください
選択していただくとお客様情報の入力に進みます。
※会社の建築対応エリアによって、選択できないエリアがあります。

我孫子市 賃貸併用の3階建て(nichidoのいえ)
スペースを有効活用した、賃貸併用住宅
建てたいエリアを教えてください
選択していただくとお客様情報の入力に進みます。
※会社の建築対応エリアによって、選択できないエリアがあります。

船橋市 モダン系(nichidoのいえ)
大きなヤシの木が印象的な2階リビング+プライベートデッキのあるおうち
建てたいエリアを教えてください
選択していただくとお客様情報の入力に進みます。
※会社の建築対応エリアによって、選択できないエリアがあります。
この会社の他の情報
- モデルハウス・住宅展示場(0件)
- カタログ(11件)
- 画像(247件)
- 評判(4件)
- 住宅イベント(0件)
- こだわり・特長(25件)
- 店舗・営業所・支店(1件)
- スタッフへのインタビュー(4件)
お問合せ
電話でお問合せ
音声案内に従い、
店舗番号1694を入力してください
※上記番号で通話できない場合は、0120-49-2366におかけ直しください
※住み替えを検討されているお客様以外からのお問合わせはお断りしております
メールでお問合せ
家づくりのヒントとは

- 家づくりのアイディア
- イメージふくらむ写真
- 工法や技術
- 間取り・プラン実例
共有する
建築対応エリア
| 千葉県 | 市川市、船橋市、松戸市、習志野市、八千代市、鎌ケ谷市、印西市、白井市 |
|---|
建てたいエリアを教えてください
選択していただくとお客様情報の入力に進みます。
※会社の建築対応エリアによって、選択できないエリアがあります。
オンライン相談とは
- 1
住宅メーカーへ問合せ
「この会社へお問合せ」ボタンを押して、フォーム上で「オンライン相談を希望する」旨をご記入し送信します。
- 2
住宅メーカーと日程を調整
住宅メーカーから連絡が来たらオンライン相談の日程を調整して、予約完了。
- 3
相談方法のご確認
メールやSMS等にてオンライン相談の利用方法が届きますので、ご確認ください。
- 4
指定場所にアクセス
当日、予約時刻になったらご指定のビデオ通話につなぎ、ご相談ください。
利用時の注意事項
- ビデオ通話については各住宅メーカー指定のものとなります。
- ビデオ通話利用時には通信が発生します。従量課金制通信サービスや通信料に上限があるネット回線・プランを利用する場合は、通信量に注意してください。
- 通信速度やアプリの設定によってはビデオ通話の画質が低下することがあります。安定した画質で利用するためにも、Wi-Fi環境下での利用を推奨します。
- ご利用のビデオ通話アプリによっては、対象のOSやブラウザに制限がある場合があります。詳しくはお問合せ先住宅メーカーにご確認ください。







