

船橋市 モダンでシンプルな佇まいの家
施工事例データ
シンプルで洗練された外観が印象的な、居住性の高い建物です
シンプルで洗練された外観が印象的な、居住性の高い建物です
本体価格
坪単価
床面積
土地面積
間取り
工法
所在地
竣工年
家族構成
ペット
商品名
建築対応エリア
家づくりのヒントとは

- 家づくりのアイディア
- イメージふくらむ写真
- 工法や技術
- 間取り・プラン実例
内観・外観画像(10件)

モダンで洗練されたデザインの浴室
壁面はグレーのタイル調を選択し、シックで洗練された雰囲気を醸し出しています。 対して浴槽は白色で、シンプルな形状をしています。 シャワーヘッドは大型のものが設置されており、快適な入浴体験を提供できそうですね。

モダンでシンプルなキッチンデザイン
木目調の下がり天井と壁が温かみのある雰囲気を醸し出しており、清潔感のある白色のキッチンキャビネットとカウンターが特徴的です。全体的にモダンでシンプルなデザインのキッチンとなっています。

清潔感のあるモダンなトイレ空間
壁面はベージュのシンプルな色合いで、大きな窓からは自然光が差し込み、明るく清潔感のある雰囲気を醸し出しています。 白色のトイレ本体は、モダンで洗練されたデザインが特徴的です。トイレ周りの設備も整っており、居住者の快適性を高める設計になっています。 全体的に、この新居のトイレ空間は清潔感と機能性を兼ね備えた、居心地の良い空間となっていると言えるでしょう。

機能的で清潔感のある洗面スペース
白基調の壁面と、木目調の床材が組み合わされており、清潔感と温かみのある雰囲気が感じられます。 洗面台や収納棚などの設備が適切に配置されており、機能的な空間設計になっています。洗面台には鏡付きの収納棚が設置されており、日常的な使用に便利な造りとなっています。 全体的に、この洗面スペースは清潔感と機能性を兼ね備えた、居心地の良い空間となっていると言えるでしょう。

明るく開放的な新築一戸建てのリビング
広々とした空間に白を基調とした内装が特徴的で、木目調の床材が温かみのある雰囲気を醸し出しています。 大きな窓からは自然光が差し込み、部屋全体が明るく開放的な印象を受けます。シンプルながらも機能的な設計で、洗練された雰囲気が感じられます。 リラックスできる居心地の良い空間となっており、家族や友人を招いてくつろぐのに最適な場所だと言えるでしょう。清潔感と落ち着きのある、魅力的なリビングルームです。

明るく開放的な新築一戸建てのリビング2
リビングの奥には階段が見えており、2階への動線が確保されています。全体的に清潔感と落ち着きのある、魅力的なリビングルームだと言えるでしょう。家族や友人を招いてゆったりとくつろぐのに最適な場所です。

明るく開放的な新築一戸建てのリビング3
全体的に洗練された雰囲気を感じさせる一方で、落ち着いた印象も受けます。家族や友人を招いてゆったりとくつろぐのに最適な、魅力的なリビングルームだと言えるでしょう。

白を基調とした明るい雰囲気の新築一軒家の階段
階段の手すりは黒い金具を採用する事により、シンプルながら良いアクセントになっております。大きな窓からは自然光が差し込み、明るく開放的な印象を与えています。 全体的に整然とした印象を受ける一方で、落ち着いた雰囲気も感じられます。機能的な設計と洗練されたデザインが融合した、魅力的な階段スペースだと言えるでしょう。

白を基調とした明るい雰囲気の新築一軒家の階段2
階段から上部からの雰囲気を味わって頂くために撮影した一枚です。 窓から差し込む自然光が、この空間を明るく照らし出し、まるで別次元の世界への入り口のようにも見えます。

白を基調とした明るい雰囲気の新築一軒家の階段3
階段を上から撮影しました。 下からの写真とは全く印象が違い、同じ家の階段とは思えないですね。 二つの顔をうまく活かしている感じですね。
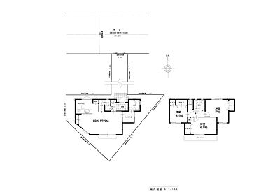
間取り図(2件)

ちょっと不思議な形の土地に上手にはまっている印象があります。 弊社ではどんなかたちの土地であっても最適な間取りを提供する事が出来る優秀な建築士がいますよ。 是非ご相談くださいね!

日動建設のホームページを閲覧できるQRコードです。 是非、日動建設を体感してくださいね!
家づくりのヒントとは

- 家づくりのアイディア
- イメージふくらむ写真
- 工法や技術
- 間取り・プラン実例
この会社の他の施工事例(18件)
この会社の他の情報
- モデルハウス・住宅展示場(0件)
- カタログ(0件)
- 画像(247件)
- 評判(4件)
- 住宅イベント(0件)
- こだわり・特長(24件)
- 店舗・営業所・支店(1件)
- スタッフへのインタビュー(4件)
お問合せ
電話でお問合せ
音声案内に従い、
店舗番号1694を入力してください
※上記番号で通話できない場合は、0120-49-2366におかけ直しください
※住み替えを検討されているお客様以外からのお問合わせはお断りしております
メールでお問合せ
家づくりのヒントとは

- 家づくりのアイディア
- イメージふくらむ写真
- 工法や技術
- 間取り・プラン実例
共有する
建築対応エリア
建てたいエリアを教えてください
選択していただくとお客様情報の入力に進みます。
※会社の建築対応エリアによって、選択できないエリアがあります。
オンライン相談とは
- 1
住宅メーカーへ問合せ
「この会社へお問合せ」ボタンを押して、フォーム上で「オンライン相談を希望する」旨をご記入し送信します。
- 2
住宅メーカーと日程を調整
住宅メーカーから連絡が来たらオンライン相談の日程を調整して、予約完了。
- 3
相談方法のご確認
メールやSMS等にてオンライン相談の利用方法が届きますので、ご確認ください。
- 4
指定場所にアクセス
当日、予約時刻になったらご指定のビデオ通話につなぎ、ご相談ください。
利用時の注意事項
- ビデオ通話については各住宅メーカー指定のものとなります。
- ビデオ通話利用時には通信が発生します。従量課金制通信サービスや通信料に上限があるネット回線・プランを利用する場合は、通信量に注意してください。
- 通信速度やアプリの設定によってはビデオ通話の画質が低下することがあります。安定した画質で利用するためにも、Wi-Fi環境下での利用を推奨します。
- ご利用のビデオ通話アプリによっては、対象のOSやブラウザに制限がある場合があります。詳しくはお問合せ先住宅メーカーにご確認ください。







