
【3階建/シアタールーム/スカイバルコニー】プレーンな外観にこだわりが詰まった家
施工事例データ
当住宅は珍しい3階建です。駐車場や庭を広く使えるように考えた結果、3階建てという選択に至りました。1Fに寝室などのプライベートルームを集中させることで、生活空間が外から見えないよう配慮。3階には隠し扉を設け、大人の隠れ家的なシアタールームをつくりました。スカイバルコニーでは自然豊かなロケーションを楽しめます。第2のリビングとして、空の下でくつろいだり趣味の時間を楽しんだりと使い方は無限大です。
当住宅は珍しい3階建です。駐車場や庭を広く使えるように考えた結果、3階建てという選択に至りました。1Fに寝室などのプライベートルームを集中させることで、生活空間が外から見えないよう配慮。3階には隠し扉を設け、大人の隠れ家的なシアタールームをつくりました。スカイバルコニーでは自然豊かなロケーションを楽しめます。第2のリビングとして、空の下でくつろいだり趣味の時間を楽しんだりと使い方は無限大です。
本体価格
坪単価
床面積
土地面積
間取り
工法
所在地
竣工年
家族構成
ペット
商品名
建築対応エリア
家づくりのヒントとは

- 家づくりのアイディア
- イメージふくらむ写真
- 工法や技術
- 間取り・プラン実例
内観・外観画像(9件)

2Fには大胆で見通しの良いリビングダイニングスペースを配置。FIX窓からはロケーションを楽しむことができる。開放的な空間づくりで、自然と人が集まる“溜まり場”を演出。白と木を基調にしたシンプルなデザインで、どんなインテリアにもマッチ。

2Fリビングのとなりは主寝室。アクセントとして、ピンク色の塗り壁を採用。ムラウォールと呼ばれる左官塗り材で、独特の存在感を放ちつつ、可愛らしさもしっかり演出。

1F中央部分にドンと構える鉄骨階段。2F、3Fへシームレスにつながり、抜群の開放感の吹抜けが最大の魅力。意匠性のこだわりとして、手すりだけでなくシルバーの格子を採用。

洗面室は清潔感を重視。アクセントタイルは水色とし、清潔感のある空間にマッチさせた。

トイレの壁は、当社熟練職人による漆喰アートで仕上げ。漆喰で描かれたウェーブ模様は、主張は控えめだがおしゃれな空間に一役買っている。

3Fに登って現れるのは、こじんまりとした空間と本棚。この本棚は実は開き扉になっており、中に入ると・・・。

本棚の扉をくぐると、14畳の広々シアタールーム。誰にも邪魔されずに一人でゆったりくつろぎながら映画を楽しんだり、多くの仲間で集まって上映会を開くのもいい。

3Fにはロケーション抜群なスカイバルコニー。子どもやペットの遊び場、空の下で楽しむホームパーティー、ガーデニング、天体観測・・・使い方は無限大。

まるで無地のTシャツのような外観デザイン。4連×4連の窓が特徴的である。1Fにプライベートルームを配置することで、普段の生活空間が外から見えない工夫をしている。
間取り図(3件)

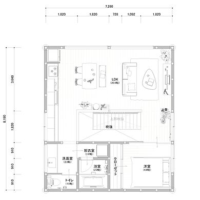
1階は広々とした玄関スペースを設け、どんなライフスタイルにも対応できるようにしました。寝室などのプライベートルームを集中させることで、生活空間が外から見えないよう配慮しています。テラスは、耐久性・意匠性、清掃のしやすさに優れるタイル仕上げ。広々と開放的な空間で、大人数でのBBQも楽しめます。

2階にはLDKと水廻りを配置しました。LDKを2階にすることで得られるメリットは様々ありますが、最も大きいのは周囲を気にせずに過ごせることです。通行する人や車を目にすることなく、生活音の出入りを最小限に抑えられるため、騒音のストレスを軽減できます。

3階には隠し扉を設け、大人の隠れ家的なシアタールームをつくりました。さらに、スカイバルコニーでは、自然豊かなロケーションを楽しめます。第2のリビングとして、空の下でくつろいだり、仲間と特別な時間を過ごしたり、ガーデニングや天体観測など趣味の時間を楽しんだりと、使い方は無限大です。
家づくりのヒントとは

- 家づくりのアイディア
- イメージふくらむ写真
- 工法や技術
- 間取り・プラン実例
この会社の他の施工事例(4件)


施工事例
【5LDK/ビルドインガレージ/家事動線/54坪】ホテルライクな高級感あふれる家
- 床面積
- 54.30坪(179.50㎡)
- 土地面積
- 66.40坪(219.50㎡)
- 竣工年
- 2021年
- 工法
- 木造軸組(在来)工法


施工事例
【間取図/4LDK/41坪/全館空調】水平ラインが美しい、デザインにこだわった家
- 床面積
- 41.00坪(135.59㎡)
- 土地面積
- 71.30坪(235.72㎡)
- 竣工年
- 2022年
- 工法
- 木造軸組(在来)工法
この会社のカタログ

【20代30代に人気】TOKIMORIHOUSE 家づくりデザイン&コンセプト
“時”を超えて住み継がれる家、こだわりの技法を“守”り
建てたいエリアを教えてください
選択していただくとお客様情報の入力に進みます。
※会社の建築対応エリアによって、選択できないエリアがあります。
この会社の他の情報
- カタログ(1件)
- 画像(53件)
- 住宅イベント(0件)
- 評判(0件)
- こだわり・特長(20件)
- 店舗・展示場・モデルハウス(1件)
- スタッフへのインタビュー(0件)
お問合せ
電話でお問合せ
音声案内に従い、
店舗番号8376を入力してください
※上記番号で通話できない場合は、0835-28-1367におかけ直しください
※住み替えを検討されているお客様以外からのお問合わせはお断りしております
メールでお問合せ
家づくりのヒントとは

- 家づくりのアイディア
- イメージふくらむ写真
- 工法や技術
- 間取り・プラン実例
共有する
他の「ローコスト住宅」の施工事例


施工事例
山陽小野田市 H様邸 平屋ならではの心地いいフラットな空間を実現した住宅
- 床面積
- 35.59坪(117.67㎡)
- 土地面積
- 81.48坪(269.36㎡)
- 竣工年
- 2021年
- 工法
- ツーバイフォー・ツーバイシックス工法






施工事例
大津市大平 T様邸 建物面積28坪でもここまで理想のマイホームに!
- 床面積
- 28.18坪(93.16㎡)
- 土地面積
- 39.41坪(130.27㎡)
- 竣工年
- 2024年
- 工法
- ツーバイフォー・ツーバイシックス工法




建築対応エリア
| 山口県 | 宇部市、山口市、萩市、防府市、下松市、光市、長門市、柳井市、美祢市、周南市、山陽小野田市、熊毛郡上関町、熊毛郡田布施町、熊毛郡平生町 |
|---|
建てたいエリアを教えてください
選択していただくとお客様情報の入力に進みます。
※会社の建築対応エリアによって、選択できないエリアがあります。
オンライン相談とは
- 1
住宅メーカーへ問合せ
「この会社へお問合せ」ボタンを押して、フォーム上で「オンライン相談を希望する」旨をご記入し送信します。
- 2
住宅メーカーと日程を調整
住宅メーカーから連絡が来たらオンライン相談の日程を調整して、予約完了。
- 3
相談方法のご確認
メールやSMS等にてオンライン相談の利用方法が届きますので、ご確認ください。
- 4
指定場所にアクセス
当日、予約時刻になったらご指定のビデオ通話につなぎ、ご相談ください。
利用時の注意事項
- ビデオ通話については各住宅メーカー指定のものとなります。
- ビデオ通話利用時には通信が発生します。従量課金制通信サービスや通信料に上限があるネット回線・プランを利用する場合は、通信量に注意してください。
- 通信速度やアプリの設定によってはビデオ通話の画質が低下することがあります。安定した画質で利用するためにも、Wi-Fi環境下での利用を推奨します。
- ご利用のビデオ通話アプリによっては、対象のOSやブラウザに制限がある場合があります。詳しくはお問合せ先住宅メーカーにご確認ください。


