LIFULL HOME'Sは物件鮮度No.1!※評価について
クリスタ京都 2階
11.8万円/管理費等9,000円
1日前 更新
画像一覧
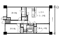
1/30間取り
間取図
2/30外観
外観・土地
3/30リビング/ダイニング
リビング
4/30リビング/ダイニング
リビング
5/30寝室
寝室
6/30キッチン
キッチン
7/30浴室
バス
8/30トイレ
トイレ
9/30洗面
洗面所
10/30収納
収納
11/30設備
セキュリティ
12/30設備
共用設備
13/30設備
共用設備
14/30設備
設備
15/30設備
設備
16/30設備
セキュリティ
17/30設備
設備
18/30玄関
玄関
19/30バルコニー
バルコニー
20/30エントランス
エントランス
21/30エントランス
ロビー
22/30駐車場
駐車場
23/30その他
その他
24/30その他
部屋画像_その他
25/30周辺
本間ゴルフ京都十条店 887m
26/30周辺
パケット十条店 881m
27/30周辺
ローソン油小路祥鳥橋店 576m
28/30周辺
ローソン大宮通上鳥羽店 523m
29/30周辺
セブンイレブン新千本祥鳥橋店 880m
30/30周辺
セブンイレブン京都上鳥羽鴨田店 952m
間取り
外観
リビング/ダイニング
リビング/ダイニング
寝室
キッチン
浴室
トイレ
洗面
収納
設備
設備
設備
設備
設備
設備
設備
玄関
バルコニー
エントランス
エントランス
駐車場
その他
その他
周辺
周辺
周辺
周辺
周辺
周辺
お問合せ先 :株式会社サイラス 二条店
引越し料金割引
引越し料金を特別価格にてご紹介
- 利用条件
- 株式会社サイラス 二条店で利用可
- 他特典との併用可
利用方法
来店時に本特典の画面をスマートフォンやタブレットでスタッフに提示、または画面印刷した用紙を提示ください。
有効期限 2026年02月28日まで
ネット無料も嬉しい設備!★ご家族でゆっくりくつろぎたい方におすすめ♪
物件のこだわり/設備・条件
新築(非該当)
2階以上の物件(該当)
南向き(該当)
駐車場あり(該当)
オートロック(該当)
エアコン(該当)
バス・トイレ別(該当)
追焚機能(該当)
フローリング(該当)
ペット相談(非該当)
入居条件
二人入居可キッチン/バス・トイレ
設備・サービス
オートロック、防犯カメラ、TVモニタ付インターホン、エアコン、ウォークインクローゼット、クローゼット、シューズボックス、BS対応、インターネット使用料無料、公営水道、都市ガス、下水、フローリング、バルコニー、室内洗濯機置場、24時間換気システム、南面バルコニー、エレベーター、宅配ボックス、駐車場あり、駐輪場ありその他
初期費用カード決済可、住まい探し特典あり備考
当店では京都府全域・滋賀県から大阪府まで幅広い地域の物件を取り扱っております。当店はJR・地下鉄二条駅にございます。阪急の駅も徒歩圏内にございます。是非お立ち寄り下さいませ!!なお、初期費用のご予算が心配な方はクレジット決済が可能ですので安心してお部屋探し頂けます初期費用のクレジット決済が可能です。ご利用の際はスタッフまでお申し付け下さいませ。お客様のご来店心よりお待ちしております。
物件周辺の生活情報
買い物
- コンビニ(576m)
- スーパー(881m)
その他施設
- 公園(597m)
- 銀行(589m)
- 本間ゴルフ京都十条店(887m)
交通
- 近鉄京都線 上鳥羽口駅 徒歩9分
- 普通(停車)
- 準急(通過)
- 急行(通過)
- 近鉄京都線 十条駅 徒歩13分
- 普通(停車)
- 準急(通過)
- 急行(通過)
※急行等の停車駅情報について
急行等の停車駅に関するデータは、随時更新をしておりますが、最新の内容であることを保証するものではありません。
最新かつ正確な情報につきましては、各鉄道会社のウェブサイトにてご確認ください
物件周辺の口コミ
- 京都府京都市南区吉祥院嶋川原田町に住む人の口コミ50代男性
平地が多く、移動がしやすい。河川に遊歩道があり散策に良い。道路が広く車も使いやすい。スーパーが近く、便利。
口コミを見る
この物件周辺に住む人の口コミ
口コミは、LIFULL HOME'Sが実際にこの物件の周辺に住む18歳~69歳の男女を対象に、WEBアンケート調査を実施しています。内容には回答者の主観的な表現が含まれる場合があるほか、事実と異なる場合もございます。ご了承ください。
- 京都府京都市南区吉祥院嶋川原田町に住む人の口コミ50代男性
- 平地が多く、移動がしやすい。河川に遊歩道があり散策に良い。道路が広く車も使いやすい。スーパーが近く、便利。
- 京都府京都市南区吉祥院前田町に住む人の口コミ30代女性
- 徒歩圏内に最寄駅がある。本数は少なくて不便だがバスもある。住宅街なので、比較的治安も良い
- 京都府京都市南区唐橋南琵琶町に住む人の口コミ50代女性
- 学校が近くにあって土日もクラブ活動をしている生徒の声が五月蠅く感じる時があり、静かではないため完全な満足は得られない
- 京都府京都市南区吉祥院西ノ内町に住む人の口コミ60代男性
- 通行量の多い道路が近くにあるが、排気ガスや騒音はない。大型ショッピングセンターがあるが、安いスーパーもあるので、選択肢がある
- 京都府京都市南区唐橋経田町に住む人の口コミ50代女性
- 家族層を見ていると楽しくに仲良くしてる感じがある。近くにAEONがありとても便利。また東寺があり、夕方まで誰でも入れて散歩するにも空気もとてもいい。生活してて快適に生活ができると思う。
- 京都府京都市南区吉祥院石原南町に住む人の口コミ30代女性
- 駅が遠いので満点ではありません。住み慣れたので「どちらかといえば」です。
- 京都府京都市南区吉祥院里ノ内町に住む人の口コミ60代女性
- 実家に戻って来ましたが、以前あった田や畑・一軒空き家ができると数個の建て売り住宅になり世代の流れが代わってきた。
- 京都府京都市南区唐橋南琵琶町に住む人の口コミ30代女性
- バス停が近くにあり、移動がしやすい環境にある。好みは別として、食品や日用品が買えるスーパーがあり、比較的遅くまで営業しているため便利が良い。街灯も一定の間隔で設置されており、夜が遅くても多少安心。
- 京都府京都市南区吉祥院船戸町に住む人の口コミ60代女性
- 近くにカラオケ店がない 近くのバス停は一時間に一本しかない 駅まで歩けばあるが
- 京都府京都市南区吉祥院砂ノ町に住む人の口コミ40代女性
- 人がゴミゴミしておらず、通勤時間もそれほど人が多くない。コンビニはとても多い。AEON、しまむら、100円均一などの店があり、繁華街に行かなくても、全て近くでは揃う。
物件概要
- 建物構造
- RC(鉄筋コンクリート)
- 駐車場
- 空有 13,200円(税込)
- 総戸数
- -
- 契約形態
- -
- 契約期間
- 2年間
- 更新料
- 新賃料の1ヶ月分
- その他費用
- 鍵交換費用:27,500円、室内清掃費用:66,000円、除菌:22,000円
- 保証会社
加入要
保証会社:クレディセゾン
保証会社利用料:初期費用は総賃料の50%
- 住宅保険
- 要
- 管理
- -
- LIFULL HOME'S
物件番号 - 0150238-0020877
- 自社管理番号
- 66649426-1
- 取引態様
- 一般媒介
- 会社名
- 株式会社サイラス 二条店
営業スタッフコメント

株式会社サイラス 二条店店長
山崎伸一
いつもフレッシュな気持ちでお客様に物件をご紹介させて頂きます!
業界経験15年
資格少額短期保険募集人、賃貸不動産経営管理士
- 物件情報
- 弊社の系列店舗が京都・大阪・兵庫の関西圏にわたり御座います。いろいろなご提案やご紹介は出来ますので是非ご相談くださいませ。
弊社の系列店舗が京都・大阪・兵庫の関西圏にわたり御座います。いろいろなご提案やご紹介は出来ますので是非ご相談くださいませ。
- 電話でお問合せ(通話無料)
お問合せ先 :株式会社サイラス 二条店
不動産会社情報
京都市内・京都府内・滋賀・大阪でお探しの際は是非お声をおかけ下さいませ。精一杯でお探しをさせて頂きます!!
- 店舗の特徴
- 賃貸管理業務
- 引越し業者紹介可
- 年中無休
- 社宅・寮物件取扱い
- オンライン相談可
- 保証人不要な物件あり
- 法人契約取扱い
- 19時以降も営業
- 駅から歩いて3分以内
電話でお問合せお客様の電話番号は不動産会社には通知されません
- 不動産会社に
つながります
お客様の電話番号は不動産会社に通知されません
- ※光IP電話、及びIP電話からはご利用になれません
- ※お電話によるお問合せは、店舗営業時間内にお願いします。つながらない場合は、お問合せフォームよりお問合せください
- ※不動産会社がお電話に出られなかった場合、お問合せいただいた後に不動産会社より折り返しのお電話がある場合がございます(お客様が非通知設定した場合は対象外です)
- ※株式会社LIFULLは電話会社が提供するサービスを介してお客様の発信者番号を受領後、折り返し専用の電話番号を発番してお問合せの不動産会社に通知します(お客様の発信者番号がお問合せの不動産会社に通知されることはございません)
- ※携帯電話からお問合せいただいた方に対し、株式会社LIFULLは電話会社が提供するメッセ―ジサービスを介してお客様の発信者番号を受領後、ショートメッセージ(SMS)またはLINE通知メッセージによるお問合せ内容に関する通知をお届けする場合があります
- ※お客様が通話中に不動産会社にお伝えになったお客様の個人情報及び、電話会社が発番する折り返し専用の電話番号は、お問合せ先不動産会社が資料送付・電子メール送信・電話連絡などの目的で保管する可能性があります。お問合せ先不動産会社が保管する個人情報の取扱いについては、各不動産会社に直接お問合せください
- ※株式会社LIFULLでは本サービスを円滑に運用するために、お客様の発信者番号をサービスご利用の控えとして一定期間保管いたします
- ※上記および株式会社LIFULLの個人情報の取扱い方針に同意のうえ、お電話ください
【LIFULL HOME'S物件番号】0150238-0020877【自社管理番号】66649426-1
オンライン対応
オンライン内見・オンライン相談・IT重説に対応している物件です

「オンライン内見」「オンライン相談」「IT重説」とは?
物件の内見や不動産会社スタッフとの相談、契約前の重要事項説明をオンライン(ビデオ通話)で行うことができるサービスです。
オンライン内見
ビデオ通話で現地(物件)にいる不動産会社スタッフと映像・音声を使ってリアルタイムで会話しながら内見ができます。
オンライン相談
「物件について聞きたいことがある」など不動産会社スタッフへの相談もビデオ通話で行うことができます。
IT重説
契約前の重要事項説明(重説)をビデオ通話で行うことができます。
利用時の注意事項
- ビデオ通話については各不動産会社指定のものとなります。
- ビデオ通話利用時には通信が発生します。従量課金制通信サービスや通信量に上限があるネット回線・プランを利用する場合は、通信量にご注意ください。
- 通信速度やアプリの設定によってはビデオ通話の画質が低下することがあります。安定した画質で利用するためにも、Wi-Fi環境下での利用を推奨します。
- ご利用のビデオ通話アプリによっては、対象のOSやブラウザに制限がある場合があります。詳しくはお問合せ先不動産会社にご確認ください。
初期費用・月額費用をあわせて確認!この物件に住んだときの費用めやす
めやすを見るこの物件に住んだときの費用めやす
- 初期費用
- 月額費用
- 追加費用※ご確認ください
追加で費用が
かかる場合があります
必ずご確認ください
初期費用めやす約0円
追加で費用がかかります(※)敷金
0
- 礼金
160,000
- 保証金
0
賃料+共益費・管理費の1ヶ月分として換算
賃料の1ヶ月分+税として換算。不動産会社によって金額が異なるため正確な金額は不動産会社にお問合せください
※追加費用もチェック!
これらの項目以外にも費用がかかる場合があります。正確な金額は不動産会社にお問合せください。
- 初期費用
- 鍵交換費:27,500円
- 室内清掃費:66,000円
- 火災保険費:不動産会社に要確認
- 月額費用
- 駐車場費:13,200円(税込)※契約任意
- その他
- 除菌:22000円
- 保証会社
- 初期費用は総賃料の50%
不動産会社より
ネット無料も嬉しい設備!★ご家族でゆっくりくつろぎたい方におすすめ♪
当店では京都府全域・滋賀県から大阪府まで幅広い地域の物件を取り扱っております。当店はJR・地下鉄二条駅にございます。阪急の駅も徒歩圏内にございます。是非お立ち寄り下さいませ!!なお、初期費用のご予算が心配な方はクレジット決済が可能ですので安心してお部屋探し頂けます初期費用のクレジット決済が可能です。ご利用の際はスタッフまでお申し付け下さいませ。お客様のご来店心よりお待ちしております。
- 保存する
- 共有する
- ※各種情報と現状に差異がある場合は、現状優先となります
- ※不動産会社が入力した情報を基に物件の位置を表示しています。詳しくは不動産会社までお問合せください
- ※不動産会社の方からの上記電話番号によるお問合せはお断りしております。こちら不動産会社詳細からお問合せください
- ※LIFULL HOME'Sは物件鮮度No.1を目指していきます。閲覧中の物件が「成約済である」「実際の物件情報と異なる点がある」などの場合、「掲載110番」からお問合せください
- ※QRコードは株式会社デンソーウェーブの登録商標です
したい暮らしのタグから探す
この物件を取扱う他の会社
LIFULL HOME'Sでは、主要項目が同一の物件をまとめて表示しています。所在地や営業時間、掲載画像等から不動産会社を選んでお問合せください。
株式会社エリッツ 七条京阪店
優良店認定
京都府京都市東山区本町6丁目1−5 藤本ビル1F
京阪本線 七条駅 徒歩2分
- 営業時間
- 10:00~19:00
- 定休日
- 水曜日(祝日を除く)、年末年始 ※部屋探しのお問い合わせは無休
株式会社エリッツ 西大路駅前店
優良店認定
京都府京都市南区唐橋西平垣町19−2
JR東海道・山陽本線 西大路駅 徒歩1分
- 営業時間
- 10:00~19:00
- 定休日
- 年中無休(年末年始を除く)
株式会社エリッツ 新田辺店
京都府京田辺市田辺中央1丁目3番地1 新田辺ステーションパーク南館
近鉄京都線 新田辺駅 徒歩2分
- 営業時間
- 10:00~19:00
- 定休日
- 火・水曜日(祝日を除く)、年末年始 ※部屋探しのお問い合わせは無休
株式会社エリッツ 椥辻店
優良店認定
京都府京都市山科区椥辻中在家町17 プラザ椥ノ辻1F
京都地下鉄東西線 椥辻駅 徒歩3分
- 営業時間
- 10:00~19:00
- 定休日
- 水曜日(祝日を除く)、年末年始 ※部屋探しのお問い合わせは無休
LIFULL HOME'S 地図・周辺情報
買い物
- ローソン 上鳥羽大宮通り店
- ドン・キホーテ 京都南インター店
- ディスカウントドラッグコスモス祥栄店
- ローソン 油小路祥鳥橋店
- パケット 十条店
グルメ
- 天下一品上鳥羽店
- 和食さと 上鳥羽店
- 無添くら寿司 京都南インター店
- マクドナルド 十条大宮店
- CoCo壱番屋 近鉄上鳥羽口店
育児・教育
- 村山保育園
- 京都市立上鳥羽小学校
- 京都市立洛南中学校
- 塔南保育園
- 京都市立九条塔南小学校
医療
- 医療法人財団医道会十条武田リハビリテーション病院
- 洛和会ヘルスケアシステム洛和会東寺南病院
- 医療法人五木田病院介護医療院
- 光仁病院
- 医療法人財団今井会第二足立病院
公共施設・郵便局
- 京都上鳥羽郵便局
- 京都市吉祥院図書館
- 京都府南警察署
- 京都十条郵便局
- 京都市南図書館
公園
- 東向公園
- 唐橋西寺公園
- 深草西浦南公園
- 鳥羽離宮跡公園
- 梅小路公園
利用可能な駅
- 徒歩10分以内
近鉄京都線
- 上鳥羽口駅徒歩9分
- すべての駅
近鉄京都線
- 十条駅徒歩13分
- 東寺駅徒歩21分
- 竹田駅徒歩25分
- 伏見駅3.5km
京都市営烏丸線
- くいな橋駅徒歩19分
- 十条駅徒歩19分
- 九条駅徒歩28分
京阪本線
- 鳥羽街道駅徒歩32分
- 龍谷大前深草駅徒歩32分
- 伏見稲荷駅徒歩33分
- 藤森駅3.2km
- 墨染駅4km
JR東海道・山陽本線
- 西大路駅徒歩33分
- 京都駅徒歩36分
JR山陰本線
- 梅小路京都西駅徒歩36分
JR奈良線
- 稲荷駅徒歩37分
- 東福寺駅3.3km
- 周辺情報は2023年07月21日時点のものになります。
- 周辺情報は、参考情報としてのみご利用ください(周辺情報は、株式会社LIFULLが地図情報の提供事業者から提供を受けた情報とLIFULL HOME'Sの物件情報に基づき、独自の方法で抽出し提供しているものです。周辺情報は、移転や閉鎖等により情報が最新ではない、または正しくない場合がありますが、地図情報の提供事業者から提供された情報をそのまま周辺情報として表示しているため、正確かつ最新の情報へ修正することができないことがあります。)
- 周辺情報は、株式会社LIFULLが掲載するものであり、不動産物件情報を掲載している不動産会社が掲載するものではありません
- 交通情報の一部については、株式会社LIFULLが掲載するものであり、不動産物件情報を掲載している不動産会社が掲載するものではない場合があります。交通情報に関する質問などは株式会社LIFULLにお問合せください




















