LIFULL HOME'Sは物件鮮度No.1!※評価について
クリスタ京都 8階/805
13万円/管理費等9,000円
2時間前 更新
画像一覧
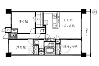
1/20間取り
間取り
2/20外観
完成イメージです。
3/20リビング/ダイニング
2LDKタイプ建築現場撮影。
4/20リビング/ダイニング
2LDKタイプ建築現場撮影。
5/20リビング/ダイニング
2LDKタイプ建築現場撮影。
6/20リビング/ダイニング
2LDKタイプ建築現場撮影。
7/20キッチン
2LDKタイプ建築現場撮影。
8/20キッチン
2LDKタイプ建築現場撮影。
9/20浴室
2LDKタイプ建築現場撮影。
10/20浴室
2LDKタイプ建築現場撮影。
11/20トイレ
2LDKタイプ建築現場撮影。
12/20洗面
2LDKタイプ建築現場撮影。
13/20洗面
2LDKタイプ建築現場撮影。
14/20設備
2LDKタイプ建築現場撮影。
15/20設備
2LDKタイプ建築現場撮影。
16/20玄関
2LDKタイプ建築現場撮影。
17/20周辺
ローソン上鳥羽大宮通
18/20周辺
ドンキホーテ
19/20周辺
コーナン
20/20周辺
上鳥羽口駅
間取り
外観
リビング/ダイニング
リビング/ダイニング
リビング/ダイニング
リビング/ダイニング
キッチン
キッチン
浴室
浴室
トイレ
洗面
洗面
設備
設備
玄関
周辺
周辺
周辺
周辺
お問合せ先 :株式会社ハウスメイトショップ 京都西院店
当店ではオンラインでの相談・申込・契約手続きも可能です☆
物件のこだわり/設備・条件
新築(非該当)
2階以上の物件(該当)
南向き(該当)
駐車場(非該当)
オートロック(該当)
エアコン(該当)
バス・トイレ別(該当)
追焚機能(該当)
フローリング(該当)
ペット相談(非該当)
入居条件
ペット不可、保証人要キッチン/バス・トイレ
設備・サービス
オートロック、防犯カメラ、TVモニタ付インターホン、エアコン、ウォークインクローゼット、クローゼット、シューズボックス、CATV、BS対応、インターネット対応、インターネット使用料無料、公営水道、都市ガス、下水、フローリング、バルコニー、室内洗濯機置場、南面バルコニー、エレベーター、宅配ボックス、駐輪場あり備考
めやす賃料145875円
物件周辺の生活情報
買い物
- コンビニ(184m)
- スーパー(824m)
その他施設
- 公園(551m)
- コンビニ(468m)
交通
- 近鉄京都線 上鳥羽口駅 徒歩10分
- 普通(停車)
- 準急(通過)
- 急行(通過)
- 近鉄京都線 十条駅 徒歩13分
- 普通(停車)
- 準急(通過)
- 急行(通過)
※急行等の停車駅情報について
急行等の停車駅に関するデータは、随時更新をしておりますが、最新の内容であることを保証するものではありません。
最新かつ正確な情報につきましては、各鉄道会社のウェブサイトにてご確認ください
物件周辺の口コミ
- 京都府京都市南区唐橋南琵琶町に住む人の口コミ30代女性
バス停が近くにあり、移動がしやすい環境にある。好みは別として、食品や日用品が買えるスーパーがあり、比較的遅くまで営業しているため便利が良い。街灯も一定の間隔で設置されており、夜が遅くても多少安心。
口コミを見る
この物件周辺に住む人の口コミ
口コミは、LIFULL HOME'Sが実際にこの物件の周辺に住む18歳~69歳の男女を対象に、WEBアンケート調査を実施しています。内容には回答者の主観的な表現が含まれる場合があるほか、事実と異なる場合もございます。ご了承ください。
- 京都府京都市南区唐橋南琵琶町に住む人の口コミ30代女性
- バス停が近くにあり、移動がしやすい環境にある。好みは別として、食品や日用品が買えるスーパーがあり、比較的遅くまで営業しているため便利が良い。街灯も一定の間隔で設置されており、夜が遅くても多少安心。
- 京都府京都市南区西九条豊田町に住む人の口コミ40代女性
- それなりの規模のイオンがあり、買い物がしやすいことが暮らしやすさにつながってる。
- 京都府京都市南区東九条南河辺町に住む人の口コミ40代女性
- 駅からも近いし、お店も充実している。公立学校もあり、保育園も近所にある。住みやすい
- 京都府京都市南区西九条御幸田町に住む人の口コミ40代男性
- 昔からすんでいるので、まわりが変わってもいないし、変わってもすぐわかる
- 京都府京都市南区吉祥院嶋樫山町に住む人の口コミ50代女性
- 隣近所の付き合いもほどほど。自転車や車を使える。買い物とかもある。河川敷も歩ける
- 京都府京都市南区吉祥院前田町に住む人の口コミ30代女性
- 徒歩圏内に最寄駅がある。本数は少なくて不便だがバスもある。住宅街なので、比較的治安も良い
- 京都府京都市南区吉祥院西浦町に住む人の口コミ40代女性
- 徒歩圏内にコンビニやスーパーがあり、車を出さなくても生活出来る。
- 京都府京都市南区唐橋経田町に住む人の口コミ40代女性
- 医療施設やスーパーが多数あるので便利。治安も良いので深夜にコンビニへ買い物に行ける。高齢者も多いが子育て世代も多い。子供が多いので活気があって良い。
- 京都府京都市伏見区竹田向代町に住む人の口コミ60代男性
- あまり自宅にいないのt、仕事では慣れているので、あまりわからない
- 京都府京都市南区吉祥院船戸町に住む人の口コミ60代女性
- 交通の便が良いが車も利用しやすく買い物も便利に出来る。子供や若い世代も増えつつあり、年を取っても暮らしやすそうに思います。
物件概要
- 建物構造
- RC(鉄筋コンクリート)
- 駐車場
- 空無 ※空き状況確認要
- 総戸数
- 53戸
- 契約形態
- -
- 契約期間
- 2年間
- 更新料
- 新賃料の1ヶ月分
- その他費用
- 仲介手数料:143,000円、鍵交換費用:27,500円、室内清掃費用:77,000円、消毒代:22,000円
- 保証会社
加入要
保証会社:日本セーフティー
保証会社利用料:クレディセゾン初回総賃料50%、月額保証料とし総賃料1%
- 住宅保険
- 要
- 管理
- -
- LIFULL HOME'S
物件番号 - 0005596-0060118
- 自社管理番号
- 609857-1
- 取引態様
- 仲介
- 会社名
- 株式会社ハウスメイトショップ 京都西院店
営業スタッフコメント

株式会社ハウスメイトショップ 京都西院店
河村聖也
生まれも育ちも京都です!!
業界経験2年
資格2級建築士、木造建築士
- 会社実績や特徴・サービス情報
- ハウスメイトショップ京都店の河村でございます。 ハウスメイトショップ京都店では、お客様にゆっくりとお部屋情報を見て頂けますよう、ゆとりを持った店舗になっております。お子様連れでも快適にお過ごしいただけますので、お気軽にご来店頂けましたら幸いでございます。 また、全国に直営店がございますので、遠方のお部屋探しもご相談頂けます。
ハウスメイトショップ京都店の河村でございます。 ハウスメイトショップ京都店では、お客様にゆっくりとお部屋情報を見て頂けますよう、ゆとりを持った店舗になっております。お子様連れでも快適にお過ごしいただけますので、お気軽にご来店頂けましたら幸いでございます。 また、全国に直営店がございますので、遠方のお部屋探しもご相談頂けます。
- 電話でお問合せ(通話無料)
お問合せ先 :株式会社ハウスメイトショップ 京都西院店
不動産会社情報
株式会社ハウスメイトショップ 京都西院店

京都府京都市右京区西院巽町2番地1、2番地 オヴェスト西院2 5F
阪急京都本線 西院駅 徒歩2分
- 営業時間
- 10:00~18:00
- 定休日
- 水曜日、GW、8/12〜8/15、年末年始
優良店認定
スタッフのマスク着用・消毒液設置・定期的な換気や除菌の実施・飛沫防止シートを設置し新型コロナウイルス感染防止対策を行っています。女性スタッフ中心の店舗なので女性のお客様も安心してご来店下さい♪
- 店舗の特徴
- 賃貸管理業務
- 24時間管理物件取扱い
- リフォーム対応
- オンライン相談可
- 保証人不要な物件あり
- 法人契約取扱い
- 女性スタッフ対応可
- 駅から歩いて3分以内
電話でお問合せお客様の電話番号は不動産会社には通知されません
- 不動産会社に
つながります
お客様の電話番号は不動産会社に通知されません
- ※光IP電話、及びIP電話からはご利用になれません
- ※お電話によるお問合せは、店舗営業時間内にお願いします。つながらない場合は、お問合せフォームよりお問合せください
- ※不動産会社がお電話に出られなかった場合、お問合せいただいた後に不動産会社より折り返しのお電話がある場合がございます(お客様が非通知設定した場合は対象外です)
- ※株式会社LIFULLは電話会社が提供するサービスを介してお客様の発信者番号を受領後、折り返し専用の電話番号を発番してお問合せの不動産会社に通知します(お客様の発信者番号がお問合せの不動産会社に通知されることはございません)
- ※携帯電話からお問合せいただいた方に対し、株式会社LIFULLは電話会社が提供するメッセ―ジサービスを介してお客様の発信者番号を受領後、ショートメッセージ(SMS)またはLINE通知メッセージによるお問合せ内容に関する通知をお届けする場合があります
- ※お客様が通話中に不動産会社にお伝えになったお客様の個人情報及び、電話会社が発番する折り返し専用の電話番号は、お問合せ先不動産会社が資料送付・電子メール送信・電話連絡などの目的で保管する可能性があります。お問合せ先不動産会社が保管する個人情報の取扱いについては、各不動産会社に直接お問合せください
- ※株式会社LIFULLでは本サービスを円滑に運用するために、お客様の発信者番号をサービスご利用の控えとして一定期間保管いたします
- ※上記および株式会社LIFULLの個人情報の取扱い方針に同意のうえ、お電話ください
【LIFULL HOME'S物件番号】0005596-0060118【自社管理番号】609857-1
初期費用・月額費用をあわせて確認!この物件に住んだときの費用めやす
めやすを見るこの物件に住んだときの費用めやす
- 初期費用
- 月額費用
- 追加費用※ご確認ください
追加で費用が
かかる場合があります
必ずご確認ください
※追加費用もチェック!
これらの項目以外にも費用がかかる場合があります。正確な金額は不動産会社にお問合せください。
- 初期費用
- 鍵交換費:27,500円
- 室内清掃費:77,000円
- 火災保険費:不動産会社に要確認
- その他
- 消毒代:22000円
- 保証会社
- クレディセゾン初回総賃料50%、月額保証料とし総賃料1%
不動産会社より
当店ではオンラインでの相談・申込・契約手続きも可能です☆
めやす賃料145875円
- 保存する
- 共有する
- ※各種情報と現状に差異がある場合は、現状優先となります
- ※不動産会社が入力した情報を基に物件の位置を表示しています。詳しくは不動産会社までお問合せください
- ※不動産会社の方からの上記電話番号によるお問合せはお断りしております。こちら不動産会社詳細からお問合せください
- ※LIFULL HOME'Sは物件鮮度No.1を目指していきます。閲覧中の物件が「成約済である」「実際の物件情報と異なる点がある」などの場合、「掲載110番」からお問合せください
- ※QRコードは株式会社デンソーウェーブの登録商標です
したい暮らしのタグから探す
LIFULL HOME'S 地図・周辺情報
買い物
- ローソン 上鳥羽大宮通り店
- ドン・キホーテ 京都南インター店
- ディスカウントドラッグコスモス祥栄店
- ローソン 油小路祥鳥橋店
- パケット 十条店
グルメ
- 和食さと 上鳥羽店
- 天下一品上鳥羽店
- マクドナルド 十条大宮店
- 無添くら寿司 京都南インター店
- CoCo壱番屋 南区上鳥羽店
育児・教育
- 村山保育園
- 京都市立上鳥羽小学校
- 京都市立洛南中学校
- 塔南保育園
- 京都市立九条塔南小学校
医療
- 医療法人財団医道会十条武田リハビリテーション病院
- 洛和会ヘルスケアシステム洛和会東寺南病院
- 医療法人五木田病院介護医療院
- 光仁病院
- 医療法人財団今井会第二足立病院
公共施設・郵便局
- 京都上鳥羽郵便局
- 京都市吉祥院図書館
- 京都府南警察署
- 京都十条郵便局
- 京都市南図書館
公園
- 東向公園
- 唐橋西寺公園
- 深草西浦南公園
- 梅小路公園
- 梅小路公園
利用可能な駅
- 徒歩10分以内
近鉄京都線
- 上鳥羽口駅徒歩10分
- すべての駅
近鉄京都線
- 十条駅徒歩13分
- 東寺駅徒歩21分
- 竹田駅徒歩25分
- 伏見駅3.5km
京都市営烏丸線
- くいな橋駅徒歩19分
- 十条駅徒歩19分
- 九条駅徒歩28分
京阪本線
- 鳥羽街道駅徒歩32分
- 龍谷大前深草駅徒歩32分
- 伏見稲荷駅徒歩33分
- 藤森駅3.2km
- 墨染駅4km
JR東海道・山陽本線
- 西大路駅徒歩33分
- 京都駅徒歩36分
JR山陰本線
- 梅小路京都西駅徒歩36分
JR奈良線
- 稲荷駅徒歩37分
- 東福寺駅3.3km
- 周辺情報は2023年07月21日時点のものになります。
- 周辺情報は、参考情報としてのみご利用ください(周辺情報は、株式会社LIFULLが地図情報の提供事業者から提供を受けた情報とLIFULL HOME'Sの物件情報に基づき、独自の方法で抽出し提供しているものです。周辺情報は、移転や閉鎖等により情報が最新ではない、または正しくない場合がありますが、地図情報の提供事業者から提供された情報をそのまま周辺情報として表示しているため、正確かつ最新の情報へ修正することができないことがあります。)
- 周辺情報は、株式会社LIFULLが掲載するものであり、不動産物件情報を掲載している不動産会社が掲載するものではありません
- 交通情報の一部については、株式会社LIFULLが掲載するものであり、不動産物件情報を掲載している不動産会社が掲載するものではない場合があります。交通情報に関する質問などは株式会社LIFULLにお問合せください








