LIFULL HOME'Sは物件鮮度No.1!※評価について
クリスタ京都 8階
13万円/管理費等9,000円
2時間前 更新
画像一覧
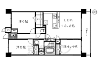
1/25間取り
2/25リビング/ダイニング
洋室
3/25室内
洋室
4/25寝室
洋室
5/25子供部屋
洋室
6/25キッチン
キッチン
7/25キッチン
キッチン
8/25キッチン
キッチン
9/25浴室
風呂
10/25浴室
風呂
11/25トイレ
トイレ
12/25洗面
洗面所
13/25収納
収納
14/25設備
下駄箱
15/25設備
洗濯機置場
16/25設備
下駄箱
17/25玄関
玄関
18/25バルコニー
ベランダ
19/25その他
廊下
20/25その他
眺望
21/25その他
エアコン
22/25その他
浴室乾燥機
23/25その他
給湯器リモコン
24/25その他
TVモニターフォン
25/25周辺
いそかわパケット 十条店まで800メートル
間取り
リビング/ダイニング
室内
寝室
子供部屋
キッチン
キッチン
キッチン
浴室
浴室
トイレ
洗面
収納
設備
設備
設備
玄関
バルコニー
その他
その他
その他
その他
その他
その他
周辺
お問合せ先 :株式会社エリッツ 新田辺店
住まい探し特典内容
電気・ガス・インターネットの手続き代行のご案内します。
- 利用条件
- 株式会社エリッツ 新田辺店で利用可
- 他特典との併用可
利用方法
来店時に本特典の画面をスマートフォンやタブレットでスタッフに提示、または画面印刷した用紙を提示ください。
有効期限 なし
上鳥羽に3LDKのお部屋に募集がかかりました。--パノラマ掲載--
物件のこだわり/設備・条件
新築(非該当)
2階以上の物件(該当)
南向き(該当)
駐車場(非該当)
オートロック(該当)
エアコン(該当)
バス・トイレ別(該当)
追焚機能(該当)
フローリング(該当)
ペット相談(非該当)
入居条件
二人入居可キッチン/バス・トイレ
設備・サービス
オートロック、防犯カメラ、TVモニタ付インターホン、エアコン、ウォークインクローゼット、クローゼット、シューズボックス、CATV、BS対応、インターネット対応、インターネット使用料無料、公営水道、都市ガス、下水、フローリング、バルコニー、室内洗濯機置場、南面バルコニー、エレベーター、宅配ボックス、駐輪場ありその他
家賃・初期費用カード決済可、住まい探し特典あり備考
近鉄京都線の上鳥羽口駅まで徒歩9分・京都地下鉄烏丸線の十条駅まで徒歩17分のマンションです。お部屋は南向きとなっております。カウンターキッチン、ウォークインクローゼット、浴室乾燥機有です。・インターネット無料 ハウスクリーニング77000円(退去時)
物件周辺の生活情報
買い物
- コンビニ(1,010m)
- スーパー(800m)
その他施設
- 総合病院(1,800m)
交通
- 近鉄京都線 上鳥羽口駅 徒歩9分
- 普通(停車)
- 準急(通過)
- 急行(通過)
- 京都市営烏丸線 十条駅 徒歩17分
- 普通(停車)
- 急行(停車)
※急行等の停車駅情報について
急行等の停車駅に関するデータは、随時更新をしておりますが、最新の内容であることを保証するものではありません。
最新かつ正確な情報につきましては、各鉄道会社のウェブサイトにてご確認ください
物件周辺の口コミ
- 京都府京都市南区西九条菅田町に住む人の口コミ60代女性
科もなく不可もなく便利欲普通に生活が出来るが観光客が多いので何処もかしこも混雑して行列が出来るのが当たり前なのは疲れる。
口コミを見る
この物件周辺に住む人の口コミ
口コミは、LIFULL HOME'Sが実際にこの物件の周辺に住む18歳~69歳の男女を対象に、WEBアンケート調査を実施しています。内容には回答者の主観的な表現が含まれる場合があるほか、事実と異なる場合もございます。ご了承ください。
- 京都府京都市南区西九条菅田町に住む人の口コミ60代女性
- 科もなく不可もなく便利欲普通に生活が出来るが観光客が多いので何処もかしこも混雑して行列が出来るのが当たり前なのは疲れる。
- 京都府京都市南区吉祥院嶋川原田町に住む人の口コミ60代男性
- 準工業地で、道幅が広く車でのストレスがない。川のそばで、散歩、景色を楽しめる。買い物も、大型スーパーが程近くにある。坂が少なく、歩いても負担が少ない。
- 京都府京都市南区唐橋経田町に住む人の口コミ30代男性
- 日常の買い物が便利。近所のイオンでたいていのことが足りる。病院も多い。
- 京都府京都市南区唐橋経田町に住む人の口コミ50代女性
- 家族層を見ていると楽しくに仲良くしてる感じがある。近くにAEONがありとても便利。また東寺があり、夕方まで誰でも入れて散歩するにも空気もとてもいい。生活してて快適に生活ができると思う。
- 京都府京都市南区上鳥羽苗代町に住む人の口コミ30代女性
- 駅が近くにあり、バス停も比較的近くにある。コンビニも徒歩圏内で3件あるから。
- 京都府京都市南区吉祥院石原南町に住む人の口コミ40代女性
- 近親者ではないが、幾たび顔を合わせていると声をかけることがある。
- 京都府京都市南区唐橋南琵琶町に住む人の口コミ50代女性
- 学校が近くにあって土日もクラブ活動をしている生徒の声が五月蠅く感じる時があり、静かではないため完全な満足は得られない
- 京都府京都市南区唐橋経田町に住む人の口コミ40代女性
- 医療施設やスーパーが多数あるので便利。治安も良いので深夜にコンビニへ買い物に行ける。高齢者も多いが子育て世代も多い。子供が多いので活気があって良い。
- 京都府京都市南区西九条東御幸田町に住む人の口コミ40代男性
- 自然がもっとたくさんあると嬉しいが、交通の便が良くてそれなりに住み心地は悪くない
- 京都府京都市南区吉祥院嶋川原田町に住む人の口コミ50代男性
- 平地が多く、移動がしやすい。河川に遊歩道があり散策に良い。道路が広く車も使いやすい。スーパーが近く、便利。
物件概要
- 建物構造
- RC(鉄筋コンクリート)
- 駐車場
- 近隣 7,700円(税込) 物件からの距離304m
- 総戸数
- 53戸
- 契約形態
- -
- 契約期間
- 2年間
- 更新料
- 新賃料の1ヶ月分
- その他費用
- 鍵交換費用:27,500円、抗菌施工代(初回):22,000円
- 保証会社
- -
- 住宅保険
- 要
- 管理
- -
- LIFULL HOME'S
物件番号 - 0138024-0091588
- 自社管理番号
- 81587-0805
- 取引態様
- 仲介
- 会社名
- 株式会社エリッツ 新田辺店
営業スタッフコメント

株式会社エリッツ 新田辺店
岸本
京田辺市、精華町、城陽市、宇治市のお部屋探しはお任せください!
業界経験2年
- 会社実績や特徴・サービス情報
- はじめまして。賃貸のエリッツ新田辺店の渡邉です。京田辺市を中心に、八幡市、精華町、木津川市や京都市内全域まで幅広く取り扱っております。お部屋探しの際はぜひ、「賃貸のエリッツ新田辺店」までお問い合わせください。全力でお客様のお部屋探しのサポートをさせていただきます。ご来店心よりお待ちしております。
はじめまして。賃貸のエリッツ新田辺店の渡邉です。京田辺市を中心に、八幡市、精華町、木津川市や京都市内全域まで幅広く取り扱っております。お部屋探しの際はぜひ、「賃貸のエリッツ新田辺店」までお問い合わせください。全力でお客様のお部屋探しのサポートをさせていただきます。ご来店心よりお待ちしております。
- 電話でお問合せ(通話無料)
お問合せ先 :株式会社エリッツ 新田辺店
不動産会社情報
株式会社エリッツ 新田辺店
京都府京田辺市田辺中央1丁目3番地1 新田辺ステーションパーク南館
近鉄京都線 新田辺駅 徒歩2分
- 営業時間
- 10:00~19:00
- 定休日
- 火・水曜日(祝日を除く)、年末年始 ※部屋探しのお問い合わせは無休
京田辺市(京田辺、新田辺、興戸、同志社前、三山木)でお部屋探しはお任せください!!同志社大学の学生さんの一人暮らし等、様々なニーズのお客様の希望にあったの賃貸物件を数多く取り扱っております。
- 店舗の特徴
- 賃貸管理業務
- 24時間管理物件取扱い
- リフォーム対応
- 引越し業者紹介可
- 系列店舗での対応可
- 社宅・寮物件取扱い
- オンライン相談可
- 保証人不要な物件あり
- 法人契約取扱い
- 駅から歩いて3分以内
電話でお問合せお客様の電話番号は不動産会社には通知されません
- 不動産会社に
つながります
お客様の電話番号は不動産会社に通知されません
- ※光IP電話、及びIP電話からはご利用になれません
- ※お電話によるお問合せは、店舗営業時間内にお願いします。つながらない場合は、お問合せフォームよりお問合せください
- ※不動産会社がお電話に出られなかった場合、お問合せいただいた後に不動産会社より折り返しのお電話がある場合がございます(お客様が非通知設定した場合は対象外です)
- ※株式会社LIFULLは電話会社が提供するサービスを介してお客様の発信者番号を受領後、折り返し専用の電話番号を発番してお問合せの不動産会社に通知します(お客様の発信者番号がお問合せの不動産会社に通知されることはございません)
- ※携帯電話からお問合せいただいた方に対し、株式会社LIFULLは電話会社が提供するメッセ―ジサービスを介してお客様の発信者番号を受領後、ショートメッセージ(SMS)またはLINE通知メッセージによるお問合せ内容に関する通知をお届けする場合があります
- ※お客様が通話中に不動産会社にお伝えになったお客様の個人情報及び、電話会社が発番する折り返し専用の電話番号は、お問合せ先不動産会社が資料送付・電子メール送信・電話連絡などの目的で保管する可能性があります。お問合せ先不動産会社が保管する個人情報の取扱いについては、各不動産会社に直接お問合せください
- ※株式会社LIFULLでは本サービスを円滑に運用するために、お客様の発信者番号をサービスご利用の控えとして一定期間保管いたします
- ※上記および株式会社LIFULLの個人情報の取扱い方針に同意のうえ、お電話ください
【LIFULL HOME'S物件番号】0138024-0091588【自社管理番号】81587-0805
オンライン対応
オンライン相談・IT重説に対応している物件です

「オンライン内見」「オンライン相談」「IT重説」とは?
物件の内見や不動産会社スタッフとの相談、契約前の重要事項説明をオンライン(ビデオ通話)で行うことができるサービスです。
オンライン内見
ビデオ通話で現地(物件)にいる不動産会社スタッフと映像・音声を使ってリアルタイムで会話しながら内見ができます。
オンライン相談
「物件について聞きたいことがある」など不動産会社スタッフへの相談もビデオ通話で行うことができます。
IT重説
契約前の重要事項説明(重説)をビデオ通話で行うことができます。
利用時の注意事項
- ビデオ通話については各不動産会社指定のものとなります。
- ビデオ通話利用時には通信が発生します。従量課金制通信サービスや通信量に上限があるネット回線・プランを利用する場合は、通信量にご注意ください。
- 通信速度やアプリの設定によってはビデオ通話の画質が低下することがあります。安定した画質で利用するためにも、Wi-Fi環境下での利用を推奨します。
- ご利用のビデオ通話アプリによっては、対象のOSやブラウザに制限がある場合があります。詳しくはお問合せ先不動産会社にご確認ください。
初期費用・月額費用をあわせて確認!この物件に住んだときの費用めやす
めやすを見るこの物件に住んだときの費用めやす
- 初期費用
- 月額費用
- 追加費用※ご確認ください
追加で費用が
かかる場合があります
必ずご確認ください
初期費用めやす約0円
追加で費用がかかります(※)敷金
0
- 礼金
200,000
賃料+共益費・管理費の1ヶ月分として換算
賃料の1ヶ月分+税として換算。不動産会社によって金額が異なるため正確な金額は不動産会社にお問合せください
※追加費用もチェック!
これらの項目以外にも費用がかかる場合があります。正確な金額は不動産会社にお問合せください。
- 初期費用
- 鍵交換費:27,500円
- 室内清掃費:不動産会社に要確認
- 火災保険費:不動産会社に要確認
- 月額費用
- 駐車場費:7,700円(税込)※近隣
- その他
- 抗菌施工代(初回):22000円
- 保証会社
- 不動産会社に要確認
不動産会社より
上鳥羽に3LDKのお部屋に募集がかかりました。--パノラマ掲載--
近鉄京都線の上鳥羽口駅まで徒歩9分・京都地下鉄烏丸線の十条駅まで徒歩17分のマンションです。お部屋は南向きとなっております。カウンターキッチン、ウォークインクローゼット、浴室乾燥機有です。・インターネット無料 ハウスクリーニング77000円(退去時)
- 保存する
- 共有する
- ※各種情報と現状に差異がある場合は、現状優先となります
- ※不動産会社が入力した情報を基に物件の位置を表示しています。詳しくは不動産会社までお問合せください
- ※不動産会社の方からの上記電話番号によるお問合せはお断りしております。こちら不動産会社詳細からお問合せください
- ※LIFULL HOME'Sは物件鮮度No.1を目指していきます。閲覧中の物件が「成約済である」「実際の物件情報と異なる点がある」などの場合、「掲載110番」からお問合せください
- ※QRコードは株式会社デンソーウェーブの登録商標です
この物件を取扱う他の会社
LIFULL HOME'Sでは、主要項目が同一の物件をまとめて表示しています。所在地や営業時間、掲載画像等から不動産会社を選んでお問合せください。
LIFULL HOME'S 地図・周辺情報
買い物
- ローソン 上鳥羽大宮通り店
- ドン・キホーテ 京都南インター店
- ディスカウントドラッグコスモス祥栄店
- ローソン 油小路祥鳥橋店
- パケット 十条店
グルメ
- 和食さと 上鳥羽店
- 天下一品上鳥羽店
- マクドナルド 十条大宮店
- 無添くら寿司 京都南インター店
- CoCo壱番屋 近鉄上鳥羽口店
育児・教育
- 村山保育園
- 京都市立上鳥羽小学校
- 京都市立洛南中学校
- 塔南保育園
- 京都市立九条塔南小学校
医療
- 医療法人財団医道会十条武田リハビリテーション病院
- 洛和会ヘルスケアシステム洛和会東寺南病院
- 医療法人五木田病院介護医療院
- 光仁病院
- 医療法人財団今井会第二足立病院
公共施設・郵便局
- 京都上鳥羽郵便局
- 京都市吉祥院図書館
- 京都府南警察署
- 京都十条郵便局
- 京都市南図書館
公園
- 東向公園
- 唐橋西寺公園
- 深草西浦南公園
- 梅小路公園
- 鳥羽離宮跡公園
利用可能な駅
- 徒歩10分以内
近鉄京都線
- 上鳥羽口駅徒歩9分
- すべての駅
近鉄京都線
- 十条駅徒歩13分
- 東寺駅徒歩21分
- 竹田駅徒歩25分
- 伏見駅3.5km
京都市営烏丸線
- 十条駅徒歩17分
- くいな橋駅徒歩19分
- 九条駅徒歩28分
京阪本線
- 鳥羽街道駅徒歩32分
- 龍谷大前深草駅徒歩32分
- 伏見稲荷駅徒歩33分
- 藤森駅3.2km
- 墨染駅4km
JR東海道・山陽本線
- 西大路駅徒歩33分
- 京都駅徒歩36分
JR山陰本線
- 梅小路京都西駅徒歩36分
JR奈良線
- 稲荷駅徒歩37分
- 東福寺駅3.3km
- 周辺情報は2023年07月21日時点のものになります。
- 周辺情報は、参考情報としてのみご利用ください(周辺情報は、株式会社LIFULLが地図情報の提供事業者から提供を受けた情報とLIFULL HOME'Sの物件情報に基づき、独自の方法で抽出し提供しているものです。周辺情報は、移転や閉鎖等により情報が最新ではない、または正しくない場合がありますが、地図情報の提供事業者から提供された情報をそのまま周辺情報として表示しているため、正確かつ最新の情報へ修正することができないことがあります。)
- 周辺情報は、株式会社LIFULLが掲載するものであり、不動産物件情報を掲載している不動産会社が掲載するものではありません
- 交通情報の一部については、株式会社LIFULLが掲載するものであり、不動産物件情報を掲載している不動産会社が掲載するものではない場合があります。交通情報に関する質問などは株式会社LIFULLにお問合せください














