LIFULL HOME'Sは物件鮮度No.1!※評価について
物件概要
- お問合せ状況
- 現在この物件はお問合せできません
- 交通
- 所在地
東京都世田谷区経堂4丁目18-9
地図を見る- 築年月
- 1983年9月(築43年)
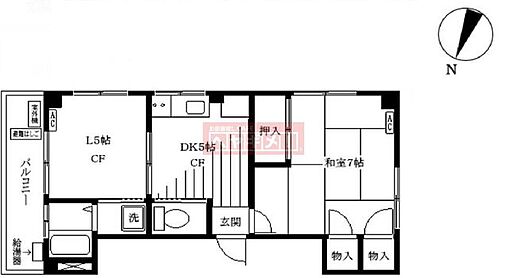
- 間取り
- 1K
- 主要採光面
- 南西
- 専有面積
- 20.62㎡
- 所在階/階数
- 2階/2階建
- 建物構造
- 木造
- 総戸数
- 6戸
物件のこだわり/設備・条件
新築(非該当)
2階以上の物件(該当)
南向き(非該当)
駐車場(非該当)
オートロック(非該当)
エアコン(該当)
バス・トイレ別(非該当)
追焚機能(該当)
フローリング(該当)
ペット相談(非該当)
キッチン/バス・トイレ
専用バス、専用トイレ、追焚機能、シャワー設備・サービス
エアコン、公営水道、都市ガス、下水、フローリング、バルコニー、洗濯機置場あり、照明器具付き
物件周辺の生活情報
買い物
- コンビニ(195m)
- スーパー(99m)
- ドラッグストア(163m)
その他施設
- 銀行(354m)
- 東京農業大学グリーンアカデミー(998m)
交通
- 小田急小田原線 千歳船橋駅 徒歩2分
- 普通(停車)
- 準急(停車)
- 通勤準急(通過)
- 急行(通過)
- 通勤急行(通過)
- 快速急行(通過)
- 小田急小田原線 経堂駅 徒歩15分
- 普通(停車)
- 準急(停車)
- 通勤準急(停車)
- 急行(停車)
- 通勤急行(通過)
- 快速急行(通過)
※急行等の停車駅情報について
急行等の停車駅に関するデータは、随時更新をしておりますが、最新の内容であることを保証するものではありません。
最新かつ正確な情報につきましては、各鉄道会社のウェブサイトにてご確認ください
LIFULL HOME'S 地図・周辺情報
買い物
- ファミリーマート 千歳船橋駅北店
- OdakyuOX 千歳船橋店
- ココカラファイン千歳船橋店
- セブンイレブン 小田急千歳船橋店
- まいばすけっと経堂4丁目店
グルメ
- 松のや千歳船橋店
- ドトールコーヒーショップ千歳船橋店
- 丸亀製麺千歳船橋店
- 松屋 千歳船橋店
- すき家 千歳船橋駅前店
育児・教育
- 祖師谷わかば保育園千歳船橋分園あおば
- 世田谷区立笹原小学校
- 世田谷区立桜丘中学校
- フラヌール保育園
- 世田谷区立桜丘小学校
医療
- 社会福祉法人東京有隣会有隣病院
- 社会福祉法人児玉新生会児玉経堂病院
- 医療法人社団井上外科記念会世田谷井上病院
- 公立学校共済組合関東中央病院
- 国立成育医療研究センター病院
公共施設・郵便局
- 千歳船橋駅前郵便局
- 世田谷区立桜丘図書館
- 成城警察署
- 世田谷桜丘二郵便局
- 世田谷区立経堂図書館
公園
- 南台公園
- 希望丘公園
- 日本中央競馬会馬事公苑
- つりがね池公園
- 蘆花恒春園
利用可能な駅
- 徒歩10分以内
小田急小田原線
- 千歳船橋駅徒歩2分
- すべての駅
小田急小田原線
- 経堂駅徒歩15分
- 祖師ヶ谷大蔵駅徒歩21分
- 豪徳寺駅徒歩30分
- 成城学園前駅徒歩35分
- 梅ヶ丘駅徒歩37分
東急世田谷線
- 宮の坂駅徒歩26分
- 山下駅徒歩28分
- 上町駅徒歩31分
- 松原駅徒歩33分
- 世田谷駅徒歩35分
- 松陰神社前駅3.2km
京王線
- 桜上水駅徒歩32分
- 上北沢駅徒歩35分
- 八幡山駅徒歩35分
- 下高井戸駅徒歩36分
- 芦花公園駅3.5km
東急田園都市線
- 用賀駅3.1km
- 桜新町駅3.3km
- 周辺情報は2023年07月21日時点のものになります。
- 周辺情報は、参考情報としてのみご利用ください(周辺情報は、株式会社LIFULLが地図情報の提供事業者から提供を受けた情報とLIFULL HOME'Sの物件情報に基づき、独自の方法で抽出し提供しているものです。周辺情報は、移転や閉鎖等により情報が最新ではない、または正しくない場合がありますが、地図情報の提供事業者から提供された情報をそのまま周辺情報として表示しているため、正確かつ最新の情報へ修正することができないことがあります。)
- 周辺情報は、株式会社LIFULLが掲載するものであり、不動産物件情報を掲載している不動産会社が掲載するものではありません
- 交通情報の一部については、株式会社LIFULLが掲載するものであり、不動産物件情報を掲載している不動産会社が掲載するものではない場合があります。交通情報に関する質問などは株式会社LIFULLにお問合せください










































