このページは物件の広告情報ではありません。
過去にLIFULL HOME'Sへ掲載された不動産情報と提携先の地図情報を元に生成した参考情報です。また、一般から投稿された情報など主観的な情報も含みます。
情報更新日: 2025/12/12
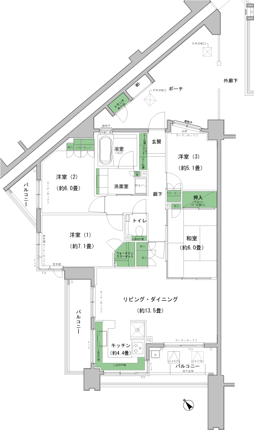
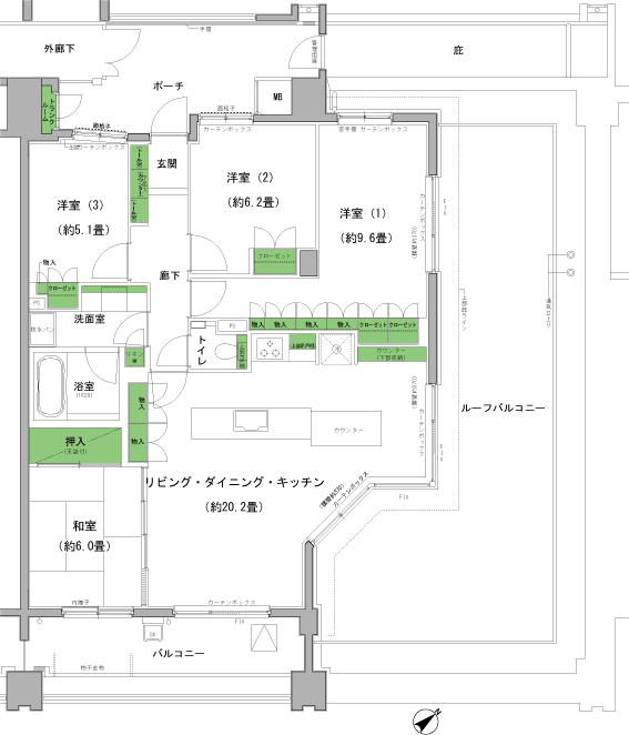
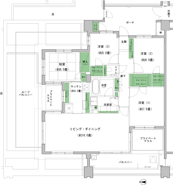
グランドオペラつつじヶ丘
| 所在地 | 東京都調布市柴崎2丁目以下未定 |
|---|
スポンサーリンク
グランドオペラつつじヶ丘の建物情報
物件概要
| 物件種別 | マンション |
|---|---|
| 築年月(築年数) | 2006年2月 (築20年) |
| 建物構造 | 鉄筋コンクリート造、地下2階、地上13階建て |
| 総戸数/総区画数 | 187戸 |
| 敷地全体面積 | 7082.08平米 |
| 土地権利 | 所有権 |
| 売主 | 有楽土地株式会社,株式会社 大京 |
| 販売会社 | 株式会社 大京 |
設備・条件
- 追い焚き
- システムキッチン
- オートロック
※最新の状態と異なる場合があります
売りたい不動産をお持ちの方へ
このエリアの所有不動産を査定する
売却査定手続きの流れ、費用相場や注意点など不動産売却について詳しく知りたい方はLIFULL HOME'S 不動産査定へ
グランドオペラつつじヶ丘周辺の物件情報
周辺の問合せ可能な物件
東京都調布市の問合せ可能な物件のうち、この物件の周辺にあるものから表示しています
賃貸
-
募集中
- 京王線 柴崎駅 徒歩5分
- 4.3万円
- 京王線 柴崎駅 徒歩5分
- 東京都調布市柴崎1丁目
- 18.0m² / ワンルーム
-
募集中
- 京王線 柴崎駅 徒歩5分
- 4.3万円
- 京王線 柴崎駅 徒歩5分
- 東京都調布市柴崎1丁目
- 14.0m² / ワンルーム
-
募集中
- 京王線 つつじヶ丘駅 徒歩16分
- 5.9万円
- 京王線 つつじヶ丘駅 徒歩16分
- 東京都調布市柴崎2丁目
- 25.0m² / 1DK
-
募集中
- コンフォーリア
- 3.8万円
- 京王線 つつじヶ丘駅 徒歩16分
- 東京都調布市柴崎2丁目17-5
- 17.0m² / 1K
-
募集中
- 京王線 柴崎駅 徒歩16分
- 4万円
- 京王線 柴崎駅 徒歩16分
- 東京都調布市柴崎2丁目42-14
- 22.2m² / 1K
-
募集中
- ピア柴崎
- 4.1万円
- 京王線 柴崎駅 徒歩6分
- 東京都調布市柴崎1丁目11-40
- 13.06m² / ワンルーム
-
募集中
- レトアハーモニー
- 9.5万円
- 京王線 柴崎駅 徒歩9分
- 東京都調布市柴崎1丁目56-2
- 34.96m² / 1LDK
-
募集中
- モンシャトー柴崎
- 5万円
- 京王線 柴崎駅 徒歩7分
- 東京都調布市柴崎1丁目11-31
- 19.83m² / ワンルーム
-
募集中
- 柴崎一丁目貸家
- 10万円
- 京王線 柴崎駅 徒歩6分
- 東京都調布市柴崎1丁目4-13
- 42.13m² / 3K
-
募集中
- アナベル
- 12.4万円
- 京王線 柴崎駅 徒歩12分
- 東京都調布市柴崎1丁目54-14
- 44.71m² / 1LDK
新築マンション
※完成後1年以上経過した未入居の物件が含まれている場合があります
-
売出し中
- 小田急線「狛江」駅徒歩20分(B棟エントランスより)/徒歩21分(D棟・E棟エントランスより)/徒歩22分(A棟・C棟・G棟エントランスより)/徒歩24分(F棟エントランスより) A棟より徒歩6分、C棟より徒歩5分、D棟・E棟・F棟より徒歩4分、G棟より徒歩3分の「シティテラス多摩川」(午後回り)バス停から「狛江駅北口」バス停まで約11分(平常時約11分) B棟より徒歩4分の「多摩川住宅南口」バス停から「狛江駅北口」バス停まで約8分(平常時約8分) A棟・C棟・E棟より徒歩4分、B棟より徒歩6分、D棟より徒歩5分、F棟より徒歩2分、G棟より徒歩3分の「シティテラス多摩川」(午前回り)バス停から「調布駅南口」バス停まで約21分(平常時約21分) A棟より徒歩6分、B棟・C棟より徒歩5分、D棟・E棟・F棟より徒歩4分、G棟より徒歩3分の「シティテラス多摩川」(午後回り)バス停から「調布駅南口」バス停まで約19分(日中時)
- 4,200万円~7,400万円
- 小田急線「狛江」駅徒歩20分(B棟エントランスより)/徒歩21分(D棟・E棟エントランスより)/徒歩22分(A棟・C棟・G棟エントランスより)/徒歩24分(F棟エントランスより) A棟より徒歩6分、C棟より徒歩5分、D棟・E棟・F棟より徒歩4分、G棟より徒歩3分の「シティテラス多摩川」(午後回り)バス停から「狛江駅北口」バス停まで約11分(平常時約11分) B棟より徒歩4分の「多摩川住宅南口」バス停から「狛江駅北口」バス停まで約8分(平常時約8分) A棟・C棟・E棟より徒歩4分、B棟より徒歩6分、D棟より徒歩5分、F棟より徒歩2分、G棟より徒歩3分の「シティテラス多摩川」(午前回り)バス停から「調布駅南口」バス停まで約21分(平常時約21分) A棟より徒歩6分、B棟・C棟より徒歩5分、D棟・E棟・F棟より徒歩4分、G棟より徒歩3分の「シティテラス多摩川」(午後回り)バス停から「調布駅南口」バス停まで約19分(日中時)
- 東京都調布市染地三丁目1-811、同番943(地番)
- 81.34m² / 1LD・K+2S~4LD・K
-
売出し中
- 京王線「調布」駅 徒歩5分
- 未定
- 京王線「調布」駅 徒歩5分
- 東京都調布市小島町二丁目42番地1外(地番)
- 73.77m² / 1LD・K~3LD・K
-
売出し中
- 京王線「調布」駅 徒歩4分
- 12,408万円
- 京王線「調布」駅 徒歩4分
- 東京都調布市小島町二丁目29番1他(地番)
- 76.93m² / 2LDK+S(納戸)
-
売出し中
- 京王相模原線「京王多摩川」駅 徒歩2分
- 未定
- 京王相模原線「京王多摩川」駅 徒歩2分
- 東京都調布市多摩川4丁目15番地4の一部外(東京都調布市多摩川4丁目 京王多摩川駅周辺地区土地区画整理事業施行地区内 街区番号2 符号1)
- 86.94m² / 1LDK~4LDK
中古マンション
一戸建て
注文住宅
※表示価格は延べ床面積約132m²の場合の建物価格の参考値です
-
資料請求受付中
- 2324万円〜
- ヤマト住建株式会社
- 【エネージュLCCM】脱炭素社会へ!住まいのすべての過程でCO2排出量を抑える住宅
-
資料請求受付中
- -
- 積水ハウス
- BRAND BOOK
-
資料請求受付中
- 3200万円〜
- ダイワハウス
- 【ダイワハウス】 xevoΣ<ジーヴォシグマ> ~天井高2m72cmの高さというゆとり空間~
-
資料請求受付中
- -
- へーベルハウス
- 【ヘーベルハウス】:ヘーベルハウス総合カタログ
-
資料請求受付中
- 3000万円〜
- セキスイハイム
- 【セキスイハイム|平屋】ザ・デザイナーズハイムD1
-
資料請求受付中
- 2000万円〜
- 一条工務店
- 【一条工務店】 建築実例集3冊セット(HOME’S限定)
-
資料請求受付中
- 3200万円〜
- 三井ホーム株式会社
- 三井ホームのご紹介
-
資料請求受付中
- 3000万円〜
- 株式会社スウェーデンハウス
- 【スウェーデンハウス】お客様満足度総合第1位の声「No.1 Sweden House News」
-
資料請求受付中
- 1868万円〜
- タマホーム株式会社
- 大安心の家シリーズ
-
資料請求受付中
- -
- アキュラホーム(AQ Group)
- 「超空間の家」
周辺の建物情報
物件の種類から探す
調布市で募集中の物件のみを検索できます
掲載情報に誤りや問題がある場合
LIFULL HOME'Sは「不動産会社」ではなく「情報掲載サイト」です
- ※管理会社の情報はLIFULL HOME'Sでは保持していないためお答えできません。お問合せはお控えください
- ※最新の募集状況は掲載中の不動産会社があれば、不動産会社へ直接お問合せください
掲載情報の訂正依頼 専用ダイヤル
0120-987-243
- 専用ダイヤル受付時間:10:00〜18:00
- ※土日・祝日、臨時休業日は除く
不動産データのご利用について
不動産事業におけるDX、サービスの改善、新規事業開発等をご検討中の方へ不動産データの活用をご提案します。LIFULL HOME'Sで集約した不動産情報や外部データは、不動産事業DX、不正決済防止、ローン審査、事業開発、研究等さまざまな事業でご活用いただいています。詳しくは以下よりご確認ください。
不動産アーカイブご利用アンケートにご協力ください
不動産アーカイブの掲載情報は、LIFULL HOME'S掲載の不動産情報および提携先の不動産情報を統計情報として集積したものであり、その存在や信憑性を保証するものではありません。