1. 不動産・住宅情報サイトLIFULL HOME'S
  2. マンション
  3. 新築マンション
  4. 関東
  5. 東京都
  6. 調布市
  7. 京王多摩川駅
  8. 京王多摩川ハモンズ
新築マンション 分譲予定

京王多摩川ハモンズ

  • 更新日:2026/03/31
  • 次回更新予定日:随時

物件の特徴

  • 予告広告 予告広告
  • 5,500万円台~14,300万円台(予定)
  • 所在地
    東京都調布市多摩川4丁目15番地4の一部外(東京都調布市多摩川4丁目 京王多摩川駅周辺地区土地区画整理事業施行地区内 街区番号2 符号1) 地図を見る
    • ※不動産会社が入力した情報を基に物件の位置を表示しています
    • ※詳しくは不動産会社までお問合せください

    閉じる

  • 交通
    京王相模原線「京王多摩川」駅 徒歩2分
    京王線「調布」駅 徒歩17分
    京王相模原線「調布」駅 徒歩17分
  • 引き渡し
    2027年11月下旬(予定)
  • ハイグレードマンション
  • 大規模マンション
  • 4LDK以上

販売概要

予告広告
この広告は予告広告を含みます。販売を開始するまでは、契約または予約(仮予約を含む)の申込および申込順位の確保には一切応じられませんのでご了承ください。価格または販売方法が未定の場合は、本広告にて確定情報をお知らせします。

ポイント

  • 京王多摩川駅前開発エリアに総戸数265戸の京王電鉄の分譲マンション、誕生
  • 京王電鉄による約3万平米の駅前開発。
  • スーパー、保育園、公園、飲食店、ラウンジほか充実の施設

お問合せ(無料)

モデルルーム見学する

モデルルーム
見学予約する
無料
資料請求する
京王多摩川ハモンズ 京王多摩川ハモンズ

詳しいパンフレットや図面集、リーフレット等がお手元に届きます。
質問・相談もできます


かんたん1分で
資料をもらう
無料

電話する

0037-618-05057 無料

QRコードを読み込むとすぐに電話できます。

お問合せ先
「京王多摩川ハモンズ」マンションギャラリー
登録する
LINEで更新情報を受取る(無料)
価格・間取りなどの更新情報がLIFULL HOME'S公式のLINEから届きます

QRコードを読み込むと登録画面が表示されます
プライバシーポリシー
に同意の上ご登録ください

コンセプト

約3万平米の、あたらしいまち 「itonami」が誕生します

  • 京王多摩川ハモンズ 朗らかな暮らし、いとなむ次代の街。

    朗らかな暮らし、いとなむ次代の街。
    本プロジェクトと合わせ、京王電鉄が”京王多摩川駅周辺地区土地区画整理事業”を実施。
    駅沿いの道路新設や外周部の道路拡幅により、人も車も安心できる歩行空間を整備。
    また、街区内にゆとりのある歩行者専用通路や提供公園を整備し、まちの住みやすさ・回遊性が向上する計画を進めています。

    朗らかな暮らし、いとなむ次代の街。
    京王相模原線「京王多摩川」駅前に誕生する、京王電鉄の新しい街『itonami』。
    約3万m2の敷地には、住宅棟の足元にスーパー、保育園などを整備するほか、
    敷地の中央を、ストリートとパス(小道)が縫うように通り抜け、
    その両側には広場や店舗、まちのハブとなる空間を連ねて設計。
    暮らし、商い、日々のいとなみが響きあう「住み継がれる、暮らし継がれる街」を目指して
    次代の街『itonami』が誕生します。
    ※掲載の完成予想CGは、計画段階の図面を基に描き起こしたもので、形状・色彩・外構・植栽等は実際とは異なります。形状の細部・設備機器・配管等は省略または簡略化の上、表現しております。今後、施工上の理由等により、計画に変更が生じる場合があります。樹木・植栽は、特定の季節やご入居時の状態を想定して描かれたものではありません。実際に植樹する樹形・枝ぶり・葉や色合い等が異なる場合があります。尚、竣工時には完成予想CG程度には成長しておりません。 もっと見る

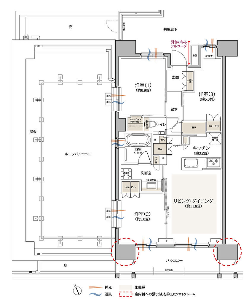
間取り

公開中:9

間取り表記例:
Rルーフバルコニー
TRトランクルーム
Sサービスルーム(納戸)
DEN書斎(納戸)
WTCウォークスルークロゼット(クローク)
N納戸
MCマルチクロゼット(クローク)
Wウォークインクロゼット(クローク)
SCシューズクロゼット(クローク)
WICウォークインクロゼット(クローク)
SICシューズインクロゼット(クローク)

LINEで更新情報を受け取る(無料)

価格・間取りなどの更新情報がLIFULL HOME'S公式のLINEから届きます
プライバシーポリシーに同意の上ご登録ください

QRコードを読み込むと登録画面が表示されます

周辺環境・アクセス

現地案内図

京王多摩川ハモンズ:案内図

所在地
東京都調布市多摩川4丁目15番地4の一部外(東京都調布市多摩川4丁目 京王多摩川駅周辺地区土地区画整理事業施行地区内 街区番号2 符号1)
お問合せ先
「京王多摩川ハモンズ」マンションギャラリー
0037-618-05057

交通アクセス図

京王多摩川ハモンズ:交通図

京王多摩川ハモンズ:交通図

※路線図・空港アクセス概念図および交通アクセス情報につきましては、「ジョルダン」と東京時刻表(交通新聞社)をもとに作成しています。※通勤時=目的駅に 8:30~9:30着 日中時=目的駅に 9:31~18:00着としています。※各路線の最短の所要時間を算出。(乗り換えに要する時間を加算)※2025年05月01日現在。※各路線で停車駅が同じ電車種別で比較しています。 ※距離表示については地図上の概算距離を算出したもので、徒歩1分=80mとして算出(端数切り上げ)しています。
※車の所要時間は、時速40kmでの走行を想定し算出しています。※車でのルート検索・計測はマップファンをもとに作成しています。
※掲載の内容・図版等は計画段階のものであり変更される場合があります。詳細は現地にて現況をご確認ください。

周辺スポット

  • 調布とうきゅう
    約1,120m(徒歩14分)

  • オオゼキ 調布店
    約1,330m(徒歩17分)

  • トリエ京王調布A館
    約1,340m(徒歩17分)

  • 西友調布店
    約1,410m(徒歩18分)

  • 双葉保育園
    約400m(徒歩5分)

  • レイモンド調布保育園
    約720m(徒歩9分)

  • イオンシネマシアタス調布
    約1,160m(徒歩15分)

  • 調布市民野球場
    約1,240m(徒歩16分)

  • 多摩川児童公園
    約430m(徒歩6分)

  • そば 田麦山
    約200m(徒歩3分)
  • 花円茶厨房
    約230m(徒歩3分)
  • RESSAC
    約380m(徒歩5分)
  • 多摩川小学校
    約470m(徒歩6分)
  • 第五中学校
    約1,440m(徒歩18分)
  • 大山歯科医院
    約170m(徒歩3分)
  • ふかざわクリニック
    約190m(徒歩3分)
  • 京王多摩川駅前交番
    約180m(徒歩3分)
  • 調布市役所
    約1,120m(徒歩14分)
  • 調布小島郵便局
    約230m(徒歩3分)
  • 京王テニスクラブ
    約420m(徒歩6分)
  • 多摩川緑地公園
    約1,240m(徒歩16分)

※環境写真は2025年8月・2023年2月に撮影したものです。

周辺地図

周辺情報

※半径4kmを超えると、周辺情報のアイコンは表示されません。

  • ※地図上に表示される各種アイコンなどの情報は、おおよその所在地を表すものであり、物件・施設などの地点を保証するものではありません
  • ※地図の表示領域が広域になると周辺のお店・施設は表示できなくなります
  • ※地図、航空写真情報および地形ならびに周辺のお店・施設は、必ずしも現況を表すものではありません
  • ※物件から周辺のお店・施設までの距離は、利用が想定される道路を通行した場合の距離です。なお、必ずしも最短距離を保証するものではありません

LINEで更新情報を受け取る(無料)

価格・間取りなどの更新情報がLIFULL HOME'S公式のLINEから届きます
プライバシーポリシーに同意の上ご登録ください

QRコードを読み込むと登録画面が表示されます

モデルルーム

モデルルーム情報

インフォメーション ■オンライン説明会開催
2026.02.10~03.01  オンライン説明会映像 限定ページで公開中
2026.02.14~    個別商談会(オンライン)開催(予定)
2026.03上旬~    事前案内会/モデルルームオープン(予定)
          ※エントリーいただいた方より優先的にご案内させていただきます。

■資料請求(エントリー)受付中
エントリー者様限定コンテンツ公開中
エントリー頂きました方には、新着情報の先行お届けや、
各種イベントへ優先ご案内をさせて頂きます。
所在地 -
営業時間 10:00~17:30
定休日 火・水・木曜(祝日は除く)
開催期間 -
お問合せ先

「京王多摩川ハモンズ」マンションギャラリー

電話:0037-618-05057【通話無料】

  • 携帯可 光IP電話、及びIP電話からはご利用いただけません
  • ※営業時間外は電話がつながらないことがございますのでご了承ください。
  • ※お客様の電話番号は不動産会社に通知されません
  • ※携帯電話はご利用いただけます
  • ※光IP電話、及びIP電話をご利用のお客様は以下へご連絡ください
    「京王多摩川ハモンズ」マンションギャラリー TEL:0120-999-787
  • ※携帯電話からお問合せいただいた方には、ショートメッセージ(SMS)またはLINE通知メッセージによるお問合せ内容に関する通知をお届けする場合があり、お客様の電話番号は株式会社LIFULLで一定期間保管されます
  • ※株式会社LIFULLの個人情報の取扱い方針に同意のうえ、お電話ください

お問合せ(無料)

モデルルーム見学する

モデルルーム
見学予約する
無料
資料請求する
京王多摩川ハモンズ 京王多摩川ハモンズ

詳しいパンフレットや図面集、リーフレット等がお手元に届きます。
質問・相談もできます


かんたん1分で
資料をもらう
無料

電話する

0037-618-05057無料

QRコードを読み込むとすぐに電話できます。

登録する

LINEで更新情報を受け取る(無料)

価格・間取りなどの更新情報がLIFULL HOME'S公式のLINEから届きます
プライバシーポリシーに同意の上ご登録ください

QRコードを読み込むと登録画面が表示されます

建物・部屋

建物・共用部

ストリートや広場に沿い、
心地よくつながる1階共用部。
家族友人との時間も、一人の時間も豊かにする、
テーブルラウンジやスタジオが
日々の暮らしをやさしく彩ります。

  • 京王多摩川ハモンズ 外観完成予想CG

    外観完成予想CG
    隣接する公園の緑に寄り添うように広がる、階段状のフォルム。郊外の風景を鮮やかに彩る洗練されたグリッドデザインが、現代的でありながら自然と美しく調和する、新しい暮らしのあり方を体現しています。
  • 京王多摩川ハモンズ 外構完成予想CG

    外構完成予想CG
    京王多摩川ハモンズと、賃貸棟の間に広がる屋外スペース。
    植栽に彩られたこの空間では、ゆるやかなカーブで貫く広い「ストリート」と、波のように交差しながら、視線を遊ばせて歩める「パス」の二つの通り道があります。
  • 京王多摩川ハモンズ エントランス外観完成予想CG

    エントランス外観完成予想CG
    住まう方を優しく迎え入れるエントランスは、ガラス越しにアークテラスの緑を望み、人と緑の気配が穏やかに漂う空間で、心地よい安らぎをもたらします。
  • 京王多摩川ハモンズ エントランス内観完成予想CG

    エントランス内観完成予想CG
    高い天井をさらに強調するように、バーティカルデザインの天然石を壁面に採用。空間の縦のラインを美しく演出します。
  • 京王多摩川ハモンズ テーブルラウンジ完成予想CG

    テーブルラウンジ完成予想CG
    大きなテーブルとキッチンがあり、友人・家族同士や趣味の集まりなどに利用できる開放感溢れる空間。自然素材を生かしたインテリアデザインと、屋外の緑や開放感が響きあう心地よい空間です。
  • 京王多摩川ハモンズ 京王多摩川ハモンズ敷地配置図

    京王多摩川ハモンズ敷地配置図
    4棟で構成された南向き中心の全265戸。敷地内にゆったりと配された4棟構成にすることで、南向きや角住戸も多い、風通しの良い心地よい住環境をつくりあげます。

※CG画像は全て完成予想CGです。完成予想CGは、計画段階の図面を基に描き起こしたもので、形状・色彩・外構・植栽等は実際とは異なります。形状の細部・設備機器・配管等は省略または簡略化の上、表現しております。今後、施工上の理由等により、計画に変更が生じる場合があります。樹木・植栽は、特定の季節やご入居時の状態を想定して描かれたものではありません。実際に植樹する樹形・枝ぶり・葉や色合い等が異なる場合があります。尚、竣工時には完成予想CG程度には成長しておりません。
※掲載の内容・図版等は計画段階のものであり変更される場合があります。詳細は現地にて現況をご確認ください。

LINEで更新情報を受け取る(無料)

価格・間取りなどの更新情報がLIFULL HOME'S公式のLINEから届きます
プライバシーポリシーに同意の上ご登録ください

QRコードを読み込むと登録画面が表示されます

設備・構造

  • 京王多摩川ハモンズ ディスポーザー

    ディスポーザー

    衛生的で快適な「ディスポーザー」※参考写真

  • 京王多摩川ハモンズ 食器洗い乾燥機

    食器洗い乾燥機

    時短と節水を叶える「食器洗い乾燥機」※参考写真

  • 京王多摩川ハモンズ フィオレストーン

    フィオレストーン

    質感あるカウンター「フィオレストーン」※参考写真

  • 京王多摩川ハモンズ ウルトラファインバブル

    ウルトラファインバブル

    洗浄効果がある「ウルトラファインバブル」※image photo

  • 京王多摩川ハモンズ 床暖房

    床暖房

    足先から心地よく温まる「床暖房」※参考写真

  • 京王多摩川ハモンズ Low-E複層ガラス

    Low-E複層ガラス

    特殊金属膜を用いたLow-E複層ガラスにより、日射・放射の熱移動を抑制。冬は室内の暖かさを、夏は涼しさを保ちます。※image photo

  • 京王多摩川ハモンズ EVコンセント

    EVコンセント

    電気自動車の充電用コンセントを設置。将来的なV2H連携にも配慮した配管・電源計画を検討します。※image photo

  • 京王多摩川ハモンズ ハンズフリーキー

    ハンズフリーキー

    荷物が多い時も快適な「ハンズフリーキー」※image illustration

  • 京王多摩川ハモンズ 東京都マンション環境性能表示

    東京都マンション環境性能表示

  • ZEH-M Oriented 「ZEH Oriented(ゼッチ・オリエンテッド)」を採用した当物件は、年間の一次エネルギー消費量を20%以上削減するマンションです。※「一次エネルギー」とは、採掘・採取・自然からそのまま得られるエネルギーで、石油・天然ガス・太陽光・風力・水力・地熱・木質バイオマスなどが該当します。
  • 節湯水栓(台所・洗面・浴室) 吐水の流量・温度を無理なく抑える機構で、毎日の給湯エネルギーと水使用量を低減します。
  • LED+人感・明るさセンサー照明 長寿命のLEDにセンサー制御を組み合わせ、共用廊下・駐車場等の無駄な点灯を抑制します。
  • 省エネ受変電設備(2026トップランナー) 受変電設備の要となる変圧器に、2026年から適用されるトップランナー基準に対応した高効率モデルを採用。環境負荷とランニングコストの双方に配慮した、持続可能な設備運用を行います。
  • 太陽光発電 屋上等に太陽光パネルを設置し、共用照明や設備機器の電力へ優先利用。電力使用量の平準化にも寄与します。
  • 断熱・機密性向上 窓まわりや配管まわりのすき間を気密材・シートで丁寧に封止。熱が伝わりやすい部分(熱橋)も対策し、漏気を抑えて室温のムラや結露を軽減します。

※掲載の内容・図版等は計画段階のものであり変更される場合があります。詳細は現地にて現況をご確認ください。

LINEで更新情報を受け取る(無料)

価格・間取りなどの更新情報がLIFULL HOME'S公式のLINEから届きます
プライバシーポリシーに同意の上ご登録ください

QRコードを読み込むと登録画面が表示されます

物件概要

販売概要

予告広告 予告広告

販売スケジュール 販売予定時期:2026年6月中旬
販売価格 5,500万円台~14,300万円台(予定) ローンシミュレーター
予定最多価格帯 9,400万円台(5戸)※100万円単位
販売戸数 未定
本販売期以降の総販売戸数 50戸
間取り 1LDK ~ 4LDK
専有面積 48.42㎡ ~ 86.93㎡
バルコニー面積 8.81㎡ ~ 29.25㎡
その他面積 ■ルーフバルコニー面積/32.70㎡ ~ 42.75㎡ ■サービスバルコニー面積/2.31㎡
管理費 月額:未定
修繕積立金 月額:未定
修繕積立基金 引渡時一括:未定
その他費用 ■管理準備金:引渡時一括:未定 ■インターネット利用料:月額:未定
販売概要備考 本広告を行い、取引を開始するまでは、契約または予約のお申込みは一切応じられません。またお申込み順位の確保に関する措置は講じられません。予めご了承ください。 販売戸数等は、本広告において明記いたします。掲載の専有面積、バルコニー面積等は第一期販売予定住戸(50戸)の内容に対応したものです。すべての販売住戸を一括で販売するか、または数期に分けて販売するか確定しておりません。
取引条件有効期限 -

※販売戸数は未定です。物件の取引内容及び取引条件は、本販売期以降の総販売戸数を基に表示しています。確定情報については本広告時に明示します

LINEで更新情報を受け取る(無料)

価格・間取りなどの更新情報がLIFULL HOME'S公式のLINEから届きます
プライバシーポリシーに同意の上ご登録ください

QRコードを読み込むと登録画面が表示されます

全体概要

所在地 東京都調布市多摩川4丁目15番地4の一部外(東京都調布市多摩川4丁目 京王多摩川駅周辺地区土地区画整理事業施行地区内 街区番号2 符号1)
交通
京王相模原線「京王多摩川」駅 徒歩2分
京王線「調布」駅 徒歩17分
京王相模原線「調布」駅 徒歩17分
総戸数 265戸
構造および階数 RC造 一部S造 地上12階建
駐車場 -
その他、共有施設等 ■駐車場:機械式:62台、平置き:25台(内、来客兼店舗用:2台、車いす利用者用:2台、荷捌き:1台)
■自転車置場:ラック式:470台、平置き:106台(内、店舗用24台)
■バイク置き場:10台
完成時期 2027年9月下旬(予定)
引き渡し可能年月 2027年11月下旬(予定)
分譲後の権利形態 専有部分は区分所有権、敷地・共用部分は専有面積割合による所有権の共有
管理形態 区分所有者全員により管理組合を結成し、管理会社に委託(予定)
管理員の勤務形態 通勤管理
敷地面積 6,434㎡
用途地域 近隣商業地域
建築確認番号 第2025確認建築CIAS00686号(令和7年8月20日)
売主 京王電鉄株式会社、株式会社リビタ(東京都知事(5)第84602号)
販売会社 丸紅都市開発株式会社(代理)、京王電鉄株式会社(代理)
施工会社 株式会社奥村組
管理会社 大和ライフネクスト株式会社
備考 バルコニー面積: 8.81㎡~29.25㎡
その他面積: ■ルーフバルコニー面積/32.70㎡~42.75㎡ ■サービスバルコニー面積/2.31㎡
建築確認番号: 第2025確認建築CIAS00686号(令和7年8月20日)
加盟団体: (公社)首都圏不動産公正取引協議会、(一社)不動産協会
※掲載の内容は計画段階のものであり変更される場合があります。詳細は現地にて現況をご確認ください。
情報更新日 2026/03/31
次回更新予定日 随時

LINEで更新情報を受け取る(無料)

価格・間取りなどの更新情報がLIFULL HOME'S公式のLINEから届きます
プライバシーポリシーに同意の上ご登録ください

QRコードを読み込むと登録画面が表示されます

会社・ブランド

情報提供元

京王電鉄株式会社

免許番号
[東京都知事(17)第1607号]
所在地
〒160-0022 東京都新宿区新宿3-1-24
加盟団体
(公社)首都圏不動産公正取引協議会、(一社)不動産協会

お問合せ(無料)

モデルルーム見学する

モデルルーム
見学予約する
無料
資料請求する
京王多摩川ハモンズ 京王多摩川ハモンズ

詳しいパンフレットや図面集、リーフレット等がお手元に届きます。
質問・相談もできます


かんたん1分で
資料をもらう
無料

電話する

0037-618-05057無料

QRコードを読み込むとすぐに電話できます。

お問合せ先

「京王多摩川ハモンズ」マンションギャラリー

電話:0037-618-05057【通話無料】

受付時間:10:00~17:30 定休日/火・水・木曜(祝日は除く)

  • ※お問合せの際は、「ライフルホームズを見て」とお伝えいただくとスムーズです
  • ※営業時間外は下記の「資料をもらう(無料)」よりお問合せください
【お電話の際の注意事項】
※お客様の電話番号は不動産会社に通知されません
※携帯電話はご利用いただけます
※光IP電話、及びIP電話をご利用のお客様は以下へご連絡ください
TEL:「京王多摩川ハモンズ」マンションギャラリー0120-999-787
※携帯電話からお問合せいただいた方には、ショートメッセージ(SMS)またはLINE通知メッセージによるお問合せ内容に関する通知をお届けする場合があり、お客様の電話番号は株式会社LIFULLで一定期間保管されます
登録する
お気に入り一覧を見る

LINEで更新情報を受け取る(無料)

価格・間取りなどの更新情報がLIFULL HOME'S公式のLINEから届きます
プライバシーポリシーに同意の上ご登録ください

QRコードを読み込むと登録画面が表示されます

シェアする

【物件番号】 1602151-0000001

  • ※完成予想図やCG合成画像は、門塀・植栽・庭・外観等、実際とは多少異なる場合があります。 また、掲載の図面は、多少変更になる場合があります
  • ※掲載の写真や動画には、一部オプション(有償)が含まれる場合があります。また、家具・調度品等は販売価格に含まれておりません
  • ※完成後1年未満で未入居の物件を「新築」と表示しております

その他の新築分譲マンションを探す

調布市の詳細町域から新築分譲マンションを探す

画像一覧
資料をもらう 無料
見学予約する 無料
公式ホームページの見学予約フォームに遷移します
  • 京王多摩川ハモンズ 外観

    現地周辺空撮 ※現地周辺の航空写真(2025年6月撮影)は、一部CG処理を施したもので実際とは多少異なる場合があります。光の表現は本プロジェクトの建物の高さを表すものではありません。

  • 京王多摩川ハモンズ その他

    サブエントランス外観完成予想CG

  • 京王多摩川ハモンズ その他

    アークテラス完成予想CG

  • 京王多摩川ハモンズ その他

    スタジオII・III完成予想CG

  • 京王多摩川ハモンズ その他

    セカンドホーム完成予想CG

  • 京王多摩川ハモンズ その他

    ラウンジ完成予想CG

  • 京王多摩川ハモンズ コンセプト

    本プロジェクトと合わせ、京王電鉄が”京王多摩川駅周辺地区土地区画整理事業”を実施。 駅沿いの道路新設や外周部の道路拡幅により、人も車も安心できる歩行空間を整備。 また、街区内にゆとりのある歩行者専用通路や提供公園を整備し、まちの住みやすさ・回遊性が向上する計画を進めています。 朗らかな暮らし、いとなむ次代の街。 京王相模原線「京王多摩川」駅前に誕生する、京王電鉄の新しい街『itonami』。 約3万m2の敷地には、住宅棟の足元にスーパー、保育園などを整備するほか、 敷地の中央を、ストリートとパス(小道)が縫うように通り抜け、 その両側には広場や店舗、まちのハブとなる空間を連ねて設計。 暮らし、商い、日々のいとなみが響きあう「住み継がれる、暮らし継がれる街」を目指して 次代の街『itonami』が誕生します。

  • 京王多摩川ハモンズ 共用部

    隣接する公園の緑に寄り添うように広がる、階段状のフォルム。郊外の風景を鮮やかに彩る洗練されたグリッドデザインが、現代的でありながら自然と美しく調和する、新しい暮らしのあり方を体現しています。

  • 京王多摩川ハモンズ 共用部

    京王多摩川ハモンズと、賃貸棟の間に広がる屋外スペース。 植栽に彩られたこの空間では、ゆるやかなカーブで貫く広い「ストリート」と、波のように交差しながら、視線を遊ばせて歩める「パス」の二つの通り道があります。

  • 京王多摩川ハモンズ 共用部

    住まう方を優しく迎え入れるエントランスは、ガラス越しにアークテラスの緑を望み、人と緑の気配が穏やかに漂う空間で、心地よい安らぎをもたらします。

  • 京王多摩川ハモンズ 共用部

    高い天井をさらに強調するように、バーティカルデザインの天然石を壁面に採用。空間の縦のラインを美しく演出します。

  • 京王多摩川ハモンズ 共用部

    大きなテーブルとキッチンがあり、友人・家族同士や趣味の集まりなどに利用できる開放感溢れる空間。自然素材を生かしたインテリアデザインと、屋外の緑や開放感が響きあう心地よい空間です。

  • 京王多摩川ハモンズ 共用部

    4棟で構成された南向き中心の全265戸。敷地内にゆったりと配された4棟構成にすることで、南向きや角住戸も多い、風通しの良い心地よい住環境をつくりあげます。

  • 京王多摩川ハモンズ 設備

    ディスポーザー

  • 京王多摩川ハモンズ 設備

    食器洗い乾燥機

  • 京王多摩川ハモンズ 設備

    フィオレストーン

  • 京王多摩川ハモンズ 設備

    ウルトラファインバブル

  • 京王多摩川ハモンズ 設備

    床暖房

  • 京王多摩川ハモンズ 設備

    Low-E複層ガラス

  • 京王多摩川ハモンズ 設備

    EVコンセント

  • 京王多摩川ハモンズ 設備

    ハンズフリーキー

  • 京王多摩川ハモンズ 設備

    東京都マンション環境性能表示

  • 周辺環境

    調布とうきゅう 約1,120m(徒歩14分)

  • 周辺環境

    オオゼキ 調布店 約1,330m(徒歩17分)

  • 周辺環境

    トリエ京王調布A館 約1,340m(徒歩17分)

  • 周辺環境

    西友調布店 約1,410m(徒歩18分)

  • 周辺環境

    双葉保育園 約400m(徒歩5分)

  • 周辺環境

    レイモンド調布保育園 約720m(徒歩9分)

  • 周辺環境

    イオンシネマシアタス調布 約1,160m(徒歩15分)

  • 周辺環境

    調布市民野球場 約1,240m(徒歩16分)

  • 周辺環境

    多摩川児童公園 約430m(徒歩6分)

  • 京王多摩川ハモンズ 現地案内図

  • 京王多摩川ハモンズ アクセス図

  • 京王多摩川ハモンズ アクセス図

  • 京王多摩川ハモンズ 外観

    現地周辺空撮 ※現地周辺の航空写真(2025年6月撮影)は、一部CG処理を施したもので実際とは多少異なる場合があります。光の表現は本プロジェクトの建物の高さを表すものではありません。

  • 京王多摩川ハモンズ その他

    サブエントランス外観完成予想CG

  • 京王多摩川ハモンズ その他

    アークテラス完成予想CG

  • 京王多摩川ハモンズ その他

    スタジオII・III完成予想CG

  • 京王多摩川ハモンズ その他

    セカンドホーム完成予想CG

  • 京王多摩川ハモンズ その他

    ラウンジ完成予想CG

  • 京王多摩川ハモンズ コンセプト

    本プロジェクトと合わせ、京王電鉄が”京王多摩川駅周辺地区土地区画整理事業”を実施。 駅沿いの道路新設や外周部の道路拡幅により、人も車も安心できる歩行空間を整備。 また、街区内にゆとりのある歩行者専用通路や提供公園を整備し、まちの住みやすさ・回遊性が向上する計画を進めています。 朗らかな暮らし、いとなむ次代の街。 京王相模原線「京王多摩川」駅前に誕生する、京王電鉄の新しい街『itonami』。 約3万m2の敷地には、住宅棟の足元にスーパー、保育園などを整備するほか、 敷地の中央を、ストリートとパス(小道)が縫うように通り抜け、 その両側には広場や店舗、まちのハブとなる空間を連ねて設計。 暮らし、商い、日々のいとなみが響きあう「住み継がれる、暮らし継がれる街」を目指して 次代の街『itonami』が誕生します。

  • 京王多摩川ハモンズ 共用部

    隣接する公園の緑に寄り添うように広がる、階段状のフォルム。郊外の風景を鮮やかに彩る洗練されたグリッドデザインが、現代的でありながら自然と美しく調和する、新しい暮らしのあり方を体現しています。

  • 京王多摩川ハモンズ 共用部

    京王多摩川ハモンズと、賃貸棟の間に広がる屋外スペース。 植栽に彩られたこの空間では、ゆるやかなカーブで貫く広い「ストリート」と、波のように交差しながら、視線を遊ばせて歩める「パス」の二つの通り道があります。

  • 京王多摩川ハモンズ 共用部

    住まう方を優しく迎え入れるエントランスは、ガラス越しにアークテラスの緑を望み、人と緑の気配が穏やかに漂う空間で、心地よい安らぎをもたらします。

  • 京王多摩川ハモンズ 共用部

    高い天井をさらに強調するように、バーティカルデザインの天然石を壁面に採用。空間の縦のラインを美しく演出します。

  • 京王多摩川ハモンズ 共用部

    大きなテーブルとキッチンがあり、友人・家族同士や趣味の集まりなどに利用できる開放感溢れる空間。自然素材を生かしたインテリアデザインと、屋外の緑や開放感が響きあう心地よい空間です。

  • 京王多摩川ハモンズ 共用部

    4棟で構成された南向き中心の全265戸。敷地内にゆったりと配された4棟構成にすることで、南向きや角住戸も多い、風通しの良い心地よい住環境をつくりあげます。

  • 京王多摩川ハモンズ 設備

    ディスポーザー

  • 京王多摩川ハモンズ 設備

    食器洗い乾燥機

  • 京王多摩川ハモンズ 設備

    フィオレストーン

  • 京王多摩川ハモンズ 設備

    ウルトラファインバブル

  • 京王多摩川ハモンズ 設備

    床暖房

  • 京王多摩川ハモンズ 設備

    Low-E複層ガラス

  • 京王多摩川ハモンズ 設備

    EVコンセント

  • 京王多摩川ハモンズ 設備

    ハンズフリーキー

  • 京王多摩川ハモンズ 設備

    東京都マンション環境性能表示

  • 周辺環境

    調布とうきゅう 約1,120m(徒歩14分)

  • 周辺環境

    オオゼキ 調布店 約1,330m(徒歩17分)

  • 周辺環境

    トリエ京王調布A館 約1,340m(徒歩17分)

  • 周辺環境

    西友調布店 約1,410m(徒歩18分)

  • 周辺環境

    双葉保育園 約400m(徒歩5分)

  • 周辺環境

    レイモンド調布保育園 約720m(徒歩9分)

  • 周辺環境

    イオンシネマシアタス調布 約1,160m(徒歩15分)

  • 周辺環境

    調布市民野球場 約1,240m(徒歩16分)

  • 周辺環境

    多摩川児童公園 約430m(徒歩6分)

  • 京王多摩川ハモンズ 現地案内図

  • 京王多摩川ハモンズ アクセス図

  • 京王多摩川ハモンズ アクセス図

間取り一覧
資料をもらう 無料
見学予約する 無料
公式ホームページの見学予約フォームに遷移します
  • 京王多摩川ハモンズ 間取り N5

    N5

    間取り
    2LDK+WIC+SIC
    専有面積
    51.46㎡
    バルコニー
    面積
    11.05㎡
    その他面積
    -
    所在階
    -
    向き
    -
    備考
    -
  • 京王多摩川ハモンズ 間取り W4

    W4

    間取り
    2LDK+WIC
    専有面積
    63.65㎡
    バルコニー
    面積
    8.91㎡
    その他面積
    -
    所在階
    -
    向き
    -
    備考
    -
  • 京王多摩川ハモンズ 間取り E2

    E2

    間取り
    3LDK+2WIC
    専有面積
    68.01㎡
    バルコニー
    面積
    10.92㎡
    その他面積
    -
    所在階
    -
    向き
    -
    備考
    -
  • 京王多摩川ハモンズ 間取り E3

    E3

    間取り
    3LDK+2WIC
    専有面積
    70.92㎡
    バルコニー
    面積
    11.28㎡
    その他面積
    -
    所在階
    -
    向き
    -
    備考
    -
  • 京王多摩川ハモンズ 間取り S2´

    S2´

    間取り
    3LDK
    専有面積
    71.60㎡
    バルコニー
    面積
    11.46㎡
    その他面積
    -
    所在階
    -
    向き
    -
    備考
    -
  • 京王多摩川ハモンズ 間取り W3r

    W3r

    間取り
    3LDK+N+WIC
    専有面積
    74.75㎡
    バルコニー
    面積
    11.33㎡
    その他面積
    ルーフバルコニー面積/42.75㎡
    所在階
    -
    向き
    -
    備考
    -
  • 京王多摩川ハモンズ 間取り E5

    E5

    間取り
    4LDK+WIC
    専有面積
    85.50㎡
    バルコニー
    面積
    29.25㎡
    その他面積
    ポーチ面積/8.68㎡
    所在階
    -
    向き
    -
    備考
    -
  • 京王多摩川ハモンズ 間取り N1

    N1

    間取り
    4LDK+WIC
    専有面積
    80.13㎡
    バルコニー
    面積
    -
    その他面積
    バルコニー面積/11.47㎡※2階、12.45㎡※3~12階
    サービスバルコニー面積/2.31㎡※3~12階
    所在階
    -
    向き
    -
    備考
    -
  • 京王多摩川ハモンズ 間取り S4

    S4

    間取り
    4LDK+WIC
    専有面積
    80.88㎡
    バルコニー
    面積
    12.68㎡
    その他面積
    -
    所在階
    -
    向き
    -
    備考
    -
  • 京王多摩川ハモンズ 間取り N5

    N5

    間取り
    2LDK+WIC+SIC
    専有面積
    51.46㎡
    バルコニー
    面積
    11.05㎡
    その他面積
    -
    所在階
    -
    向き
    -
    備考
    -
  • 京王多摩川ハモンズ 間取り W4

    W4

    間取り
    2LDK+WIC
    専有面積
    63.65㎡
    バルコニー
    面積
    8.91㎡
    その他面積
    -
    所在階
    -
    向き
    -
    備考
    -
  • 京王多摩川ハモンズ 間取り E2

    E2

    間取り
    3LDK+2WIC
    専有面積
    68.01㎡
    バルコニー
    面積
    10.92㎡
    その他面積
    -
    所在階
    -
    向き
    -
    備考
    -
  • 京王多摩川ハモンズ 間取り E3

    E3

    間取り
    3LDK+2WIC
    専有面積
    70.92㎡
    バルコニー
    面積
    11.28㎡
    その他面積
    -
    所在階
    -
    向き
    -
    備考
    -
  • 京王多摩川ハモンズ 間取り S2´

    S2´

    間取り
    3LDK
    専有面積
    71.60㎡
    バルコニー
    面積
    11.46㎡
    その他面積
    -
    所在階
    -
    向き
    -
    備考
    -
  • 京王多摩川ハモンズ 間取り W3r

    W3r

    間取り
    3LDK+N+WIC
    専有面積
    74.75㎡
    バルコニー
    面積
    11.33㎡
    その他面積
    ルーフバルコニー面積/42.75㎡
    所在階
    -
    向き
    -
    備考
    -
  • 京王多摩川ハモンズ 間取り E5

    E5

    間取り
    4LDK+WIC
    専有面積
    85.50㎡
    バルコニー
    面積
    29.25㎡
    その他面積
    ポーチ面積/8.68㎡
    所在階
    -
    向き
    -
    備考
    -
  • 京王多摩川ハモンズ 間取り N1

    N1

    間取り
    4LDK+WIC
    専有面積
    80.13㎡
    バルコニー
    面積
    -
    その他面積
    バルコニー面積/11.47㎡※2階、12.45㎡※3~12階
    サービスバルコニー面積/2.31㎡※3~12階
    所在階
    -
    向き
    -
    備考
    -
  • 京王多摩川ハモンズ 間取り S4

    S4

    間取り
    4LDK+WIC
    専有面積
    80.88㎡
    バルコニー
    面積
    12.68㎡
    その他面積
    -
    所在階
    -
    向き
    -
    備考
    -

オンライン相談とは

モデルルームや現地に行くことなく、自宅からビデオ通話で不動産会社スタッフと物件の相談をすることができます。
  1. 不動産会社へ問合せ

    「オンライン相談」ボタンまたは「見学予約」ボタンを押してフォーム内の「オンライン相談」を選択し送信します。

  2. 不動産会社と日程・接続方法を調整

    不動産会社から連絡が来たらオンライン相談の日時を調整して、予約完了。

  3. 相談方法がメールで届く

    メールにてオンライン相談の利用方法が届きますので、ご確認ください。

  4. 指定場所にアクセス

    当日、予約時刻になったら指定のビデオ通話につなぎ、ご相談ください。

利用時の注意事項
  • ビデオ通話については各不動産会社指定のものとなります。
  • ビデオ通話利用時には通信が発生します。従量課金制通信サービスや通信料に上限があるネット回線・プランを利用する場合は、通信量に注意してください。
  • 通信速度やアプリの設定によってはビデオ通話の画質が低下することがあります。安定した画質で利用するためにも、Wi-Fi環境下での利用を推奨します。
  • ご利用のビデオ通話アプリによっては、対象のOSやブラウザに制限がある場合があります。詳しくはお問合せ先不動産会社にご確認ください。

閉じる

条件を削除すると新着お知らせメールの
配信が停止されますがよろしいですか?