このページは物件の広告情報ではありません。
過去にLIFULL HOME'Sへ掲載された不動産情報と提携先の地図情報を元に生成した参考情報です。また、一般から投稿された情報など主観的な情報も含みます。
情報更新日: 2026/04/04
BELISTA溝の口
スポンサーリンク
BELISTA溝の口の建物情報
物件概要
| 物件種別 | マンション |
|---|---|
| 築年月(築年数) | 2009年2月 (築18年) |
| 建物構造 | 鉄筋コンクリート造地上7階建1棟 |
| 総戸数/総区画数 | 420戸 |
| 敷地全体面積 | 16,516.92m2 |
| 管理人 | 常駐 |
| 用途地域 | 工業 |
| 土地権利 | 所有権 |
| 売主 | 藤和不動産株式会社、株式会社長谷工コーポレーション |
| 販売会社 | 藤和不動産株式会社(売主・販売提携(代理)) |
設備・条件
- 追い焚き
- 浴室乾燥機
- システムキッチン
- ディスポーザー
- 床暖房
- ブロードバンド
- バリアフリー
- オートロック
- 防犯カメラ
- 管理人常駐
- ごみ出し24時間OK
- ペット用施設
- キッズルーム
- 駐車場完備
- コンシェルジュサービス
- 住宅性能評価書
- スーパー800m以内
- コンビニ400m以内
- 小学校800m以内
※最新の状態と異なる場合があります
売りたい不動産をお持ちの方へ
このエリアの所有不動産を査定する
売却査定手続きの流れ、費用相場や注意点など不動産売却について詳しく知りたい方はLIFULL HOME'S 不動産査定へ
BELISTA溝の口の周辺施設
-
買い物
日用品 -
- セブンイレブン 川崎末長店
- まいばすけっと川崎末長2丁目店
- ローソン 高津末長店
- セブンイレブン 川崎新作店
- 買い物
大型店 -
- ユニクロ 川崎市民プラザ通り店
- SUIT SELECT OIOI FAMILY MIZONOKUCHI
- ノクティプラザ2
- ノジマ マルイファミリー溝口店
- グルメ
-
- すき家 高津末長店
- ドトールコーヒーショップ溝の口KSP店
- 無添くら寿司 川崎溝の口店
- マクドナルド 溝の口イトーヨーカドー店
- 娯楽施設
-
- 徳盛舎ゴルフセンター
- FASTGYM24溝の口店
- 川崎市民プラザプール
- 文化施設
-
- ミツトヨ博物館
- 川崎市教育委員会文化財課地名資料室
- 役所
公共施設 -
- 神奈川県立川崎図書館
- かながわサイエンスパーク内郵便局
- 医療
-
- 医療法人社団輔仁会片倉病院
- 保育施設
-
- 保育園ゆいまあむ
- 末長保育園
- ちゃいれっく新作保育園
- 川崎たまがわ幼稚園
- 学校
-
- 川崎市立末長小学校
- 川崎市立東高津中学校
- 私立洗足学園音楽大学
- 私立洗足こども短期大学
※学区外の学校が含まれる場合があります。実際の学区は必ず各自治体へご確認ください。
BELISTA溝の口周辺の物件情報
周辺の問合せ可能な物件
神奈川県川崎市高津区の問合せ可能な物件のうち、この物件の周辺にあるものから表示しています
賃貸
-
募集中
- 第三慶友ビル
- 5.5万円
- JR南武線 武蔵溝ノ口駅 徒歩15分
- 神奈川県川崎市高津区末長3丁目14-1
- 17.01m² / ワンルーム
-
募集中
- 東急田園都市線 溝の口駅 徒歩12分
- 5.5万円
- 東急田園都市線 溝の口駅 徒歩12分
- 神奈川県川崎市高津区末長3丁目
- 17.01m² / ワンルーム
-
募集中
- 東急田園都市線 溝の口駅 徒歩12分
- 10.55万円
- 東急田園都市線 溝の口駅 徒歩12分
- 神奈川県川崎市高津区末長2丁目10-46
- 43.73m² / 2DK
-
募集中
- ウィスタリアマンション
- 10.45万円
- 東急田園都市線 溝の口駅 徒歩12分
- 神奈川県川崎市高津区末長2丁目10-46
- 43.73m² / 2DK
-
募集中
- 第2ウィスタリアマンション
- 9.05万円
- 東急田園都市線 溝の口駅 徒歩15分
- 神奈川県川崎市高津区末長2丁目10-47
- 33.54m² / 1DK
-
募集中
- 東急田園都市線 溝の口駅 徒歩12分
- 9.05万円
- 東急田園都市線 溝の口駅 徒歩12分
- 神奈川県川崎市高津区末長2丁目10-47
- 33.54m² / 1DK
-
募集中
- 東急田園都市線 溝の口駅 徒歩10分
- 14.5万円
- 東急田園都市線 溝の口駅 徒歩10分
- 神奈川県川崎市高津区末長2丁目
- 50.05m² / 2LDK
-
募集中
- Charme Suenaga
- 10.7万円
- 東急田園都市線 溝の口駅 バス4分 末長下車 徒歩1分
- 神奈川県川崎市高津区末長3丁目16-11
- 42.35m² / 1LDK
-
募集中
- プラーズ末長
- 6.1万円
- 東急田園都市線 溝の口駅 徒歩18分
- 神奈川県川崎市高津区末長2丁目14-9
- 24.0m² / ワンルーム
-
募集中
- 第三慶友ビル
- 5.5万円
- 東急田園都市線 溝の口駅 徒歩12分
- 神奈川県川崎市高津区末長3丁目14-1
- 17.01m² / ワンルーム
新築マンション
※完成後1年以上経過した未入居の物件が含まれている場合があります
中古マンション
-
売出し中
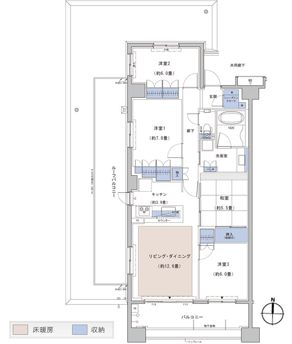
- BELISTA溝の口
- 7190万円
- JR南武線 武蔵溝ノ口駅 徒歩14分
- 神奈川県川崎市高津区末長3丁目2-7
- 76.65m² / 3LDK
-
売出し中
- メイフェアパークス溝の口E棟
- 6380万円
- 東急田園都市線 溝の口駅 徒歩13分
- 神奈川県川崎市高津区久本2丁目
- 73.63m² / 3LDK
-
売出し中
- メイフェアパークス溝の口C棟
- 7880万円
- 東急田園都市線 溝の口駅 徒歩16分
- 神奈川県川崎市高津区久本2丁目4-12
- 76.34m² / 3LDK
-
売出し中
- パークシティ溝の口
- 6980万円
- JR南武線 武蔵溝ノ口駅 徒歩6分
- 神奈川県川崎市高津区久本3丁目
- 84.51m² / 3LDK
-
売出し中
- エクセレントシティ武蔵新城アクトラージュ
- 5480万円
- JR南武線 武蔵新城駅 徒歩9分
- 神奈川県川崎市高津区末長3丁目28-2
- 70.07m² / 3LDK
-
売出し中
- 溝の口セントラルマンション
- 4480万円
- 東急田園都市線 溝の口駅 徒歩10分
- 神奈川県川崎市高津区久本3丁目4
- 64.8m² / 3LDK
一戸建て
-
売出し中
- 川崎市高津区千年 新築一戸建て
- 4980万円
- JR南武線 武蔵新城駅 徒歩22分
- 神奈川県川崎市高津区千年
- 103.5m² / 3LDK
-
売出し中
- 川崎市高津区千年 新築一戸建て
- 5180万円
- JR南武線 武蔵新城駅 徒歩22分
- 神奈川県川崎市高津区千年
- 116.55m² / 4LDK
-
売出し中
- 川崎市高津区千年 新築一戸建て
- 4780万円
- JR南武線 武蔵新城駅 徒歩22分
- 神奈川県川崎市高津区千年
- 103.5m² / 3LDK
-
売出し中
- 川崎市高津区千年 新築一戸建て
- 5080万円
- JR南武線 武蔵新城駅 徒歩22分
- 神奈川県川崎市高津区千年
- 118.41m² / 4LDK
-
売出し中
- 千年 新築一戸建て
- 4980万円
- JR南武線 武蔵新城駅 徒歩22分
- 神奈川県川崎市高津区千年1240
- 116.55m² / 4LDK
-
売出し中
- 千年 新築一戸建て
- 4780万円
- JR南武線 武蔵新城駅 徒歩22分
- 神奈川県川崎市高津区千年1240
- 103.5m² / 3LDK
-
売出し中
- 千年 新築一戸建て
- 4880万円
- JR南武線 武蔵新城駅 徒歩22分
- 神奈川県川崎市高津区千年1240
- 118.41m² / 4LDK
-
売出し中
- 坂戸3丁目 浴室TV付き等充実の仕様・設備搭載の2階建邸宅
- 5280万円
- JR南武線 武蔵新城駅 徒歩13分
- 神奈川県川崎市高津区坂戸3丁目
- 71.62m² / 2LDK
-
売出し中
- 高津区坂戸3丁目 新築一戸建て
- 5280万円
- JR南武線 武蔵新城駅 徒歩13分
- 神奈川県川崎市高津区坂戸3丁目
- 71.62m² / 3LDK
注文住宅
※表示価格は延べ床面積約132m²の場合の建物価格の参考値です
-
資料請求受付中
- 3000万円〜
- セキスイハイム
- 【セキスイハイム】総合カタログ(heimism)
-
資料請求受付中
- 2432万円〜
- ヤマト住建株式会社
- 【LEGANTIA】邸宅の頂点がここにある。受け継がれる価値、未来へ続く邸宅
-
資料請求受付中
- 3400万円〜
- へーベルハウス
- 【ヘーベルハウス】:ヘーベルハウス総合カタログ
-
資料請求受付中
- 2800万円〜
- ミサワホーム株式会社
- 【MISAWA】ミサワホーム代表カタログ3冊セット(HOME'S限定)
-
資料請求受付中
- -
- アキュラホーム(AQ Group)
- 「超空間の家」
-
資料請求受付中
- -
- 積水ハウス
- BRAND BOOK
-
資料請求受付中
- 2000万円〜
- 一条工務店
- 【一条工務店】 建築実例集3冊セット(HOME’S限定)
-
資料請求受付中
- 1868万円〜
- タマホーム株式会社
- 大安心の家シリーズ
エリア・駅で絞り込んで探す
神奈川県のBELISTA(ベリスタ)が含まれるマンション
物件の種類から探す
川崎市高津区で募集中の物件のみを検索できます
掲載情報に誤りや問題がある場合
LIFULL HOME'Sは「不動産会社」ではなく「情報掲載サイト」です
- ※管理会社の情報はLIFULL HOME'Sでは保持していないためお答えできません。お問合せはお控えください
- ※最新の募集状況は掲載中の不動産会社があれば、不動産会社へ直接お問合せください
掲載情報の訂正依頼 専用ダイヤル
0120-987-243
- 専用ダイヤル受付時間:10:00〜18:00
- ※土日・祝日、臨時休業日は除く
不動産データのご利用について
不動産事業におけるDX、サービスの改善、新規事業開発等をご検討中の方へ不動産データの活用をご提案します。LIFULL HOME'Sで集約した不動産情報や外部データは、不動産事業DX、不正決済防止、ローン審査、事業開発、研究等さまざまな事業でご活用いただいています。詳しくは以下よりご確認ください。
不動産アーカイブご利用アンケートにご協力ください
不動産アーカイブの掲載情報は、LIFULL HOME'S掲載の不動産情報および提携先の不動産情報を統計情報として集積したものであり、その存在や信憑性を保証するものではありません。