このページは物件の広告情報ではありません。
過去にLIFULL HOME'Sへ掲載された不動産情報と提携先の地図情報を元に生成した参考情報です。また、一般から投稿された情報など主観的な情報も含みます。
情報更新日: 2025/12/27
ロイヤルシーズン溝の口CASA ファイナルステージ
| 所在地 | 神奈川県川崎市高津区久本1丁目506番1他(地番) |
|---|---|
| 交通 |
|
スポンサーリンク
ロイヤルシーズン溝の口CASA ファイナルステージの建物情報
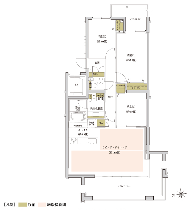
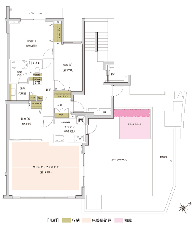
物件概要
| 物件種別 | マンション |
|---|---|
| 築年月(築年数) | 2013年8月 (築13年) |
| 建物構造 | 鉄筋コンクリート造、7階建(建築基準法上は地上5階、地下2階建) |
| 総戸数/総区画数 | 91戸 |
| 敷地全体面積 | 2,835.90m2 |
| 用途地域 | 第一種中高層住居専用 |
| 地目 | 畑(引渡しまでに宅地に変更予定です。) |
| 土地権利 | 所有権 |
| 建築確認番号 | 第11ABNT-02-0089号 |
| 施工会社 | 株式会社末長組 |
| 売主 | 株式会社末長組 |
| 販売会社 | 株式会社ライフコーディネーター(代理) |
設備・条件
- 追い焚き
- 浴室乾燥機
- システムキッチン
- 床暖房
- ブロードバンド
- オートロック
- 防犯カメラ
- スーパー800m以内
- コンビニ400m以内
※最新の状態と異なる場合があります
売りたい不動産をお持ちの方へ
このエリアの所有不動産を査定する
売却査定手続きの流れ、費用相場や注意点など不動産売却について詳しく知りたい方はLIFULL HOME'S 不動産査定へ
ロイヤルシーズン溝の口CASA ファイナルステージの周辺施設
-
買い物
日用品 -
- クリエイトエス・ディー溝の口駅前店
- ローソン LAWSON+toks溝の口南店
- セブンイレブン 溝の口店
- ニューデイズ 武蔵溝ノ口
- 買い物
大型店 -
- エトモ溝の口
- ノクティプラザ
- ハニーズ 溝の口ノクティ店
- タカキュー マルイファミリー溝口店
- グルメ
-
- モスバーガー 溝の口南口店
- 松屋 溝の口南口店
- デニーズ 溝ノ口駅前店
- デニーズ 溝ノ口駅前店
- 娯楽施設
-
- セントラルフィットネスクラブ溝ノ口
- タイトーステーション 溝の口店
- ムサシボウル
- 快活CLUBビジネス&リラックスルーム溝の口店
- 文化施設
-
- 川崎市教育委員会文化財課地名資料室
- ミツトヨ博物館
- 役所
公共施設 -
- 川崎下作延郵便局
- 川崎市高津区役所
- 溝ノ口ノクティビル内郵便局
- 溝ノ口中央通郵便局
- 医療
-
- 医療法人社団亮正会総合高津中央病院
- 帝京大学医学部附属溝口病院
- 保育施設
-
- わらべうた溝の口南口保育園
- チャイルドケアセンター青い鳥溝の口園
- アスク溝の口保育園
- みつばち保育園~Flower~
- 学校
-
- 私立洗足学園中学校
- 私立洗足学園高校
- 私立洗足学園小学校
- 私立洗足学園音楽大学
ロイヤルシーズン溝の口CASA ファイナルステージ周辺の物件情報
周辺の問合せ可能な物件
神奈川県川崎市高津区の問合せ可能な物件のうち、この物件の周辺にあるものから表示しています
賃貸
-
募集中
- ポルト・ソ−レ
- 10.6万円
- 東急田園都市線 溝の口駅 徒歩2分
- 神奈川県川崎市高津区下作延2丁目10番14号
- 27.91m² / 1K
-
募集中
- 東急大井町線 溝の口駅 徒歩6分
- 9.5万円
- 東急大井町線 溝の口駅 徒歩6分
- 神奈川県川崎市高津区溝口2丁目131-1
- 30.34m² / 1K
-
募集中
- レジデンス・ポーレノクティア
- 9.5万円
- 東急大井町線 溝の口駅 徒歩6分
- 神奈川県川崎市高津区溝口2丁目131-1
- 30.34m² / 1K
-
募集中
- プルームレジデンス溝の口
- 16.3万円
- 東急田園都市線 溝の口駅 徒歩7分
- 神奈川県川崎市高津区溝口2丁目537
- 49.03m² / 1LDK
-
募集中
- ハイツ青葉
- 6.2万円
- 東急田園都市線 溝の口駅 徒歩2分
- 神奈川県川崎市高津区溝口2丁目
- 21.0m² / 1K
-
募集中
- グローリオシェルト溝の口
- 11.3万円
- 東急田園都市線 溝の口駅 徒歩3分
- 神奈川県川崎市高津区溝口2丁目6-5
- 27.2m² / 1DK
-
募集中
- 東急田園都市線 溝の口駅 徒歩3分
- 11.3万円
- 東急田園都市線 溝の口駅 徒歩3分
- 神奈川県川崎市高津区溝口2丁目6-5
- 27.2m² / 1DK
-
募集中
- 東急田園都市線 溝の口駅 徒歩3分
- 8万円
- 東急田園都市線 溝の口駅 徒歩3分
- 神奈川県川崎市高津区溝口2丁目6-2
- 23.0m² / 1K
-
募集中
- ビエンタ溝の口
- 8.7万円
- 東急田園都市線 溝の口駅 徒歩2分
- 神奈川県川崎市高津区溝口2丁目6-16
- 22.11m² / 1K
-
募集中
- 東急田園都市線 溝の口駅 徒歩2分
- 9.4万円
- 東急田園都市線 溝の口駅 徒歩2分
- 神奈川県川崎市高津区溝口2丁目6-16
- 22.11m² / 1K
新築マンション
※完成後1年以上経過した未入居の物件が含まれている場合があります
-
売出し中
- JR南武線「武蔵新城」駅 徒歩20分
- 5,298万円~6,298万円
- JR南武線「武蔵新城」駅 徒歩20分
- 神奈川県川崎市高津区下野毛一丁目1070番2他(地番)
- 75.52m² / 3LDK
-
売出し中
- 東急田園都市線「溝の口」駅 徒歩7分
- 7600万円台・8300万円台
- 東急田園都市線「溝の口」駅 徒歩7分
- 神奈川県川崎市高津区下作延2丁目497-10他6筆(地番)
- 73.11m² / 3LDK
-
売出し中
- 東急田園都市線「高津」駅 徒歩4分
- 10,100万円台(2LDK+S)~12,600万円台(3LDK)
- 東急田園都市線「高津」駅 徒歩4分
- 神奈川県川崎市高津区二子一丁目173-3(地番)
- 80.22m² / 2LDK+S・3LDK
-
売出し中
- JR南武線「久地」駅 徒歩7分
- 3,800万円台~5,900万円台(予定)
- JR南武線「久地」駅 徒歩7分
- 神奈川県川崎市高津区下作延五丁目1593番5(地番)
- 75.6m² / 2LDK+S(納戸)~4LDK
中古マンション
-
売出し中
- ジェイパーク溝の口ヒルズ
- 6000万円
- 東急大井町線 溝の口駅 徒歩6分
- 神奈川県川崎市高津区下作延2丁目
- 79.2m² / 2SLDK
-
売出し中
- パークハイム溝の口
- 5380万円
- 東急田園都市線 溝の口駅 徒歩7分
- 神奈川県川崎市高津区久本1丁目13-1
- 65.19m² / 2LDK
-
売出し中
- バースシティ溝の口ティアラ
- 8480万円
- 東急田園都市線 溝の口駅 徒歩6分
- 神奈川県川崎市高津区久本1丁目
- 77.41m² / 3LDK
-
売出し中
- バースシティ溝の口コンフォート
- 8490万円
- 東急田園都市線 溝の口駅 徒歩7分
- 神奈川県川崎市高津区下作延2丁目24-5
- 117.25m² / 4LDK
-
売出し中
- ライオンズステーションプラザ溝の口
- 6580万円
- 東急田園都市線 溝の口駅 徒歩4分
- 神奈川県川崎市高津区溝口2丁目13-23
- 66.42m² / 2SLDK
-
売出し中
- バースヒル溝の口リベルテB
- 6750万円
- 東急田園都市線 溝の口駅 徒歩8分
- 神奈川県川崎市高津区末長1丁目1-14
- 68.39m² / 3LDK
-
売出し中
- 扶桑ハイツ溝の口
- 2680万円
- 東急田園都市線 溝の口駅 徒歩9分
- 神奈川県川崎市高津区久本1丁目
- 49.41m² / 1SLDK
-
売出し中
- プレシャスアパートメント溝の口ビィーク
- 2850万円
- JR南武線 武蔵溝ノ口駅 徒歩5分
- 神奈川県川崎市高津区溝口1丁目
- 29.25m² / ワンルーム
-
売出し中
- プラウド溝の口イースト
- 4680万円
- 東急田園都市線 溝の口駅 徒歩8分
- 神奈川県川崎市高津区久本3丁目
- 33.43m² / 1SLDK
一戸建て
-
売出し中
- JR南武線 武蔵溝ノ口駅 徒歩8分
- 980万円
- JR南武線 武蔵溝ノ口駅 徒歩8分
- 神奈川県川崎市高津区下作延2丁目
- 63.58m² / 3LDK
-
売出し中
- 高津区下作延2
- 6480万円
- 東急田園都市線 溝の口駅 徒歩7分
- 神奈川県川崎市高津区下作延2丁目
- 76.17m² / 3LDK
-
売出し中
- 下作延一丁目戸建
- 7380万円
- 東急田園都市線 溝の口駅 徒歩6分
- 神奈川県川崎市高津区下作延1丁目9-33
- 88.7m² / 4LDK
-
売出し中
- 久本二丁目売戸建
- 6980万円
- 東急田園都市線 溝の口駅 徒歩12分
- 神奈川県川崎市高津区久本2丁目
- 108.47m² / 4SLDK
-
売出し中
- JR南武線 津田山駅 徒歩8分
- 9280万円
- JR南武線 津田山駅 徒歩8分
- 神奈川県川崎市高津区下作延7丁目
- 103.17m² / 3LDK
-
売出し中
- JR南武線 津田山駅 徒歩8分
- 8780万円
- JR南武線 津田山駅 徒歩8分
- 神奈川県川崎市高津区下作延7丁目
- 103.38m² / 3LDK
-
売出し中
- 東急田園都市線「高津」駅 徒歩8分
- 8号棟:6,780万円
- 東急田園都市線「高津」駅 徒歩8分
- 神奈川県川崎市高津区溝口4-15
- 89.14m² / 1LDK+2S
-
売出し中
- 東急田園都市線「高津」駅 徒歩8分
- 13号棟:6,780万円 14号棟:7,380万円
- 東急田園都市線「高津」駅 徒歩8分
- 神奈川県川崎市高津区溝口4-15-25
- 98.84m² / 13号棟:1LDK+2S 14号棟:2LDK+S
-
売出し中
- 高津区上作延5
- 5280万円
- 東急田園都市線 梶が谷駅 徒歩12分
- 神奈川県川崎市高津区上作延5丁目
- 153.8m² / 4SLDK
-
売出し中
- 梶ケ谷3丁目 5居室と4か所のバルコニーのある3階建て邸宅
- 6799万円
- 東急田園都市線 梶が谷駅 徒歩10分
- 神奈川県川崎市高津区梶ケ谷3丁目
- 123.84m² / 3SLDK
注文住宅
※表示価格は延べ床面積約132m²の場合の建物価格の参考値です
エリア・駅で絞り込んで探す
賃貸
神奈川県のロイヤルシーズンが含まれるマンション
周辺の建物情報
物件の種類から探す
川崎市高津区で募集中の物件のみを検索できます
掲載情報に誤りや問題がある場合
LIFULL HOME'Sは「不動産会社」ではなく「情報掲載サイト」です
- ※管理会社の情報はLIFULL HOME'Sでは保持していないためお答えできません。お問合せはお控えください
- ※最新の募集状況は掲載中の不動産会社があれば、不動産会社へ直接お問合せください
掲載情報の訂正依頼 専用ダイヤル
0120-987-243
- 専用ダイヤル受付時間:10:00〜18:00
- ※土日・祝日、臨時休業日は除く
不動産データのご利用について
不動産事業におけるDX、サービスの改善、新規事業開発等をご検討中の方へ不動産データの活用をご提案します。LIFULL HOME'Sで集約した不動産情報や外部データは、不動産事業DX、不正決済防止、ローン審査、事業開発、研究等さまざまな事業でご活用いただいています。詳しくは以下よりご確認ください。
不動産アーカイブご利用アンケートにご協力ください
不動産アーカイブの掲載情報は、LIFULL HOME'S掲載の不動産情報および提携先の不動産情報を統計情報として集積したものであり、その存在や信憑性を保証するものではありません。