このページは物件の広告情報ではありません。
過去にLIFULL HOME'Sへ掲載された不動産情報と提携先の地図情報を元に生成した参考情報です。また、一般から投稿された情報など主観的な情報も含みます。
情報更新日: 2025/12/27
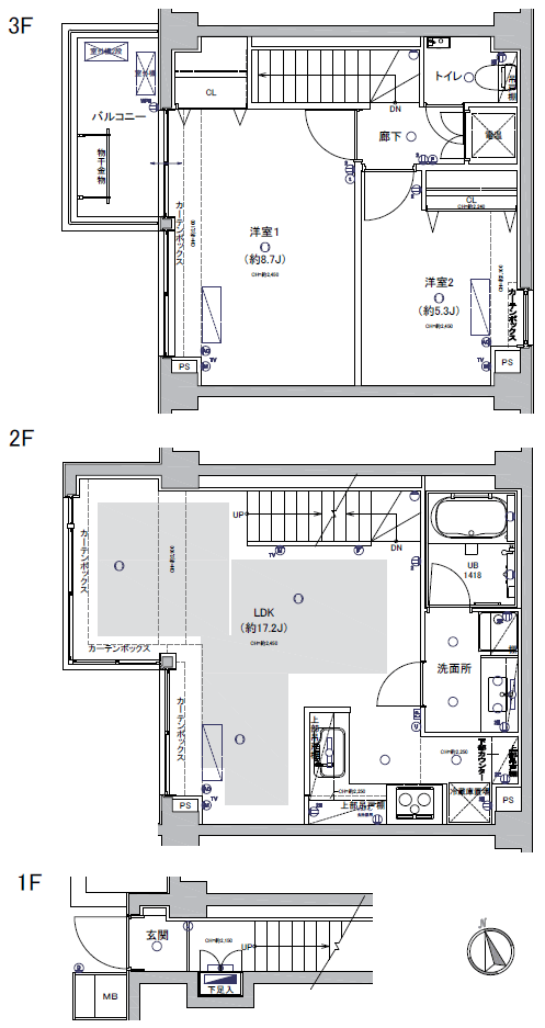
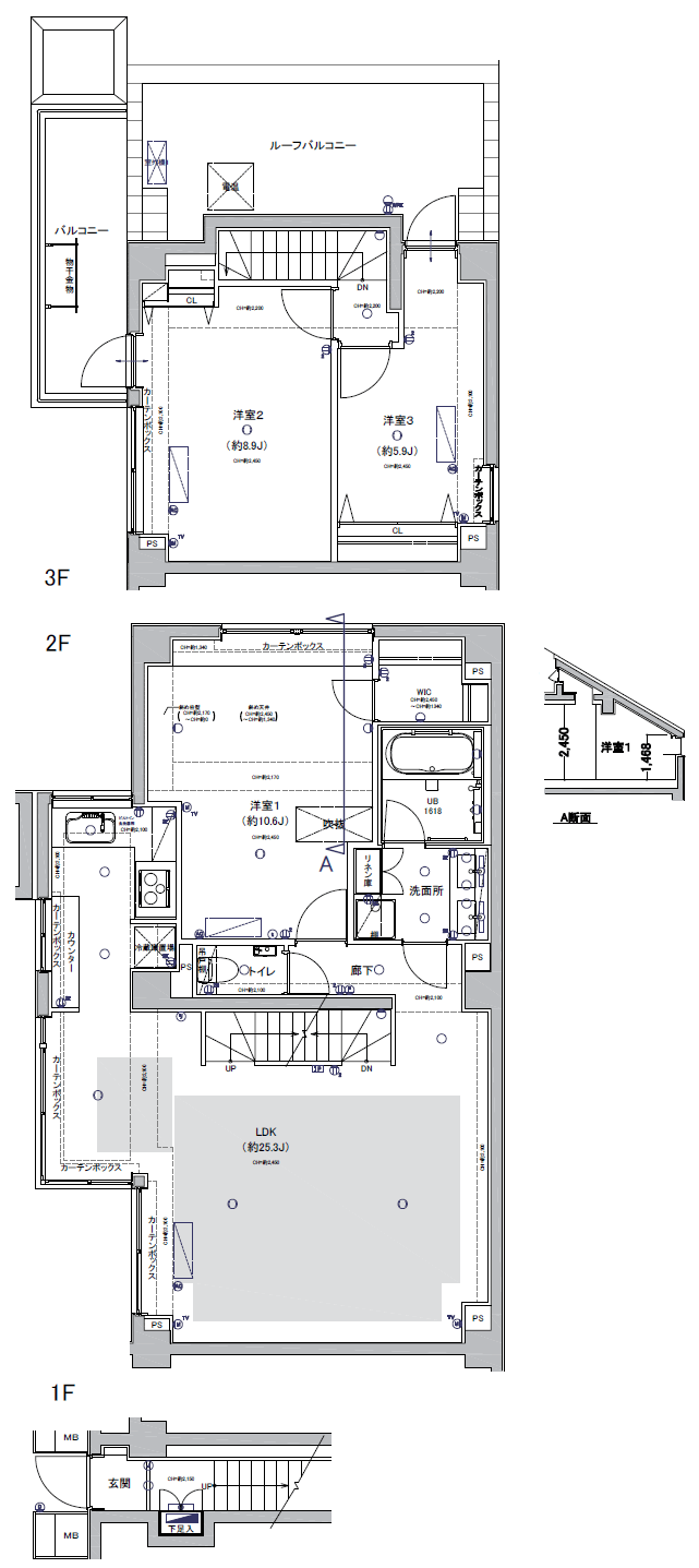
オープンレジデンス島津山 【 最終期 】
| 所在地 | 東京都品川区品川区東五反田3丁目191-481,471(地名・地番) |
|---|---|
| 交通 |
|
スポンサーリンク
オープンレジデンス島津山 【 最終期 】の建物情報
物件概要
| 物件種別 | マンション |
|---|---|
| 築年月(築年数) | 2011年8月 (築15年) |
| 建物構造 | 鉄筋コンクリート造 地上3階・地下1階 |
| 総戸数/総区画数 | 21戸 |
| 敷地全体面積 | 666.85m2(W棟)、149.19m2(E棟) |
| 用途地域 | 第一種低層住宅専用 |
| 地目 | 宅地 |
| 土地権利 | 所有権 |
| 施工会社 | 住協建設株式会社 |
| 売主 | 株式会社オープンハウス・ディベロップメント |
| 販売会社 | 株式会社オープンハウス(代理) |
設備・条件
- オール電化
- 追い焚き
- 浴室乾燥機
- IHコンロ
- システムキッチン
- 床暖房
- ブロードバンド
- オートロック
- 防犯カメラ
- 環境にやさしい
- スーパー800m以内
- コンビニ400m以内
- 小学校800m以内
※最新の状態と異なる場合があります
売りたい不動産をお持ちの方へ
オープンレジデンス島津山 【 最終期 】の周辺施設
-
買い物
日用品 -
- ファミリーマート 東五反田四丁目店
- ファミリーマート NTT関東病院前店
- ナチュラルローソン 高輪台駅前店
- ファミリーマート 東五反田郵便局東店
- 買い物
大型店 -
- ユニクロ アトレ五反田店
- 五反田東急スクエア
- SUIT SELECT GOTANDA
- 品川プリンスホテルアネックスタワー
- グルメ
-
- フレッシュネスバーガー 東五反田店
- いきなりステーキ五反田店
- 星乃珈琲店五反田店
- すき家 東五反田店
- 娯楽施設
-
- コナミスポーツクラブ五反田
- 自遊空間SELF五反田東口店
- ティップネス五反田店
- 高輪ゴルフセンター
- 文化施設
-
- 物流博物館
- O美術館
- 役所
公共施設 -
- 品川東五反田郵便局
- 高輪台郵便局
- 品川区立大崎図書館
- 高輪警察署
- 医療
-
- 医療法人社団有仁会阿部病院
- NTT東日本関東病院
- 独立行政法人地域医療機能推進機構東京高輪病院
- 公益財団法人河野臨床医学研究所附属品川リハビリテーション病院
- 保育施設
-
- 大空と大地のなーさりぃ東五反田園
- ほっぺるランド東五反田
- 太陽の子東五反田保育園
- ニチイキッズ白金台保育園
- 学校
-
- 私立清泉女子大学
- 私立東京医療保健大学五反田キャンパス
- 私立頌栄女子学院中学校
- 私立頌栄女子学院高校
オープンレジデンス島津山 【 最終期 】周辺の物件情報
周辺の問合せ可能な物件
東京都品川区の問合せ可能な物件のうち、この物件の周辺にあるものから表示しています
賃貸
-
募集中
- レジディア島津山
- 13.9万円
- JR山手線 五反田駅 徒歩7分
- 東京都品川区東五反田1丁目2-42
- 22.83m² / 1K
-
募集中
- JR山手線 五反田駅 徒歩7分
- 13.9万円
- JR山手線 五反田駅 徒歩7分
- 東京都品川区東五反田1丁目2-42
- 22.83m² / 1K
-
募集中
- 京急本線 品川駅 徒歩10分
- 14.6万円
- 京急本線 品川駅 徒歩10分
- 東京都品川区東五反田3丁目198-47
- 25.06m² / 1DK
-
募集中
- ヒルサイド島津山
- 13万円
- 都営浅草線 五反田駅 徒歩4分
- 東京都品川区東五反田1丁目2-13
- 27.4m² / 1K
-
募集中
- 品川グリーンテラス
- 150万円
- JR山手線 五反田駅 徒歩6分
- 東京都品川区東五反田3丁目16-55
- 270.2m² / 4LDK
-
募集中
- 都営浅草線 高輪台駅 徒歩3分
- 26万円
- 都営浅草線 高輪台駅 徒歩3分
- 東京都品川区東五反田3丁目
- 52.02m² / 2LDK
-
募集中
- ラ・デファンス高輪台
- 26万円
- 都営浅草線 高輪台駅 徒歩3分
- 東京都品川区東五反田3丁目6-19
- 52.02m² / 2LDK
-
募集中
- Sコート高輪
- 9万円
- 都営浅草線 高輪台駅 徒歩4分
- 東京都品川区東五反田3丁目1-14
- 20.81m² / 1K
-
募集中
- JR山手線 品川駅 徒歩14分
- 9万円
- JR山手線 品川駅 徒歩14分
- 東京都品川区東五反田3丁目
- 20.81m² / 1K
-
募集中
- JR山手線 五反田駅 徒歩6分
- 13万円
- JR山手線 五反田駅 徒歩6分
- 東京都品川区東五反田1丁目2-23
- 27.4m² / 1K
新築マンション
※完成後1年以上経過した未入居の物件が含まれている場合があります
-
売出し中
- 東急大井町線「戸越公園」駅 徒歩2分
- 未定
- 東急大井町線「戸越公園」駅 徒歩2分
- 東京都品川区戸越5丁目15-1(地名地番)
- 71.02m² / 1LDK・2LDK+S
-
売出し中
- JR京浜東北・根岸線「大井町」駅 徒歩7分
- 未定
- JR京浜東北・根岸線「大井町」駅 徒歩7分
- 東京都品川区南品川5丁目1517-38、39、85(地名地番)
- 70.39m² / 1LDK~3LDK
-
売出し中
- 東急目黒線「不動前」駅 徒歩5分
- 未定
- 東急目黒線「不動前」駅 徒歩5分
- 東京都品川区西五反田三丁目607番1(地番)、607番17(地番)
- 75.02m² / 2LDK~3LDK
-
売出し中
- JR京浜東北・根岸線「大井町」駅 徒歩13分
- 未定
- JR京浜東北・根岸線「大井町」駅 徒歩13分
- 東京都品川区大井6丁目3169番4(地名地番)
- 138.83m² / 1LDK+S~3LDK
-
売出し中
- 東京臨海高速鉄道りんかい線「天王洲アイル」駅 徒歩4分
- 一般販売住戸:未定
- 東京臨海高速鉄道りんかい線「天王洲アイル」駅 徒歩4分
- 東京都品川区東品川2丁目1ー2他
- 90.44m² / 一般販売住戸:1LDK~3LDK
-
売出し中
- 東急目黒線「不動前」駅 徒歩3分
- 未定
- 東急目黒線「不動前」駅 徒歩3分
- 東京都品川区西五反田四丁目646番1 他(地番)
- 84.45m² / 1LDK~3LDK+SR(納戸)
-
売出し中
- JR京浜東北・根岸線「大井町」駅 徒歩3分
- 11,488万円~13,788万円
- JR京浜東北・根岸線「大井町」駅 徒歩3分
- 東京都品川区東大井五丁目488番1 (地番)
- 55.96m² / 1LDK+SR(納戸)~2LDK
-
売出し中
- 東急目黒線「西小山」駅 徒歩7分
- 8,190万円(前払い賃料13,620,194円、税込建物68,279,806円)~13,490万円(前払い賃料15,092,257円、税込建物119,807,743円)
- 東急目黒線「西小山」駅 徒歩7分
- 東京都品川区荏原七丁目523-3(地番)
- 80.74m² / 2LDK~3LDK
-
売出し中
- JR山手線「大崎」駅 徒歩5分
- 未定
- JR山手線「大崎」駅 徒歩5分
- 東京都品川区東五反田二丁目701番(地番)
- 86.43m² / 2LDK~3LDK(予定)
-
売出し中
- 東急目黒線「武蔵小山」駅 徒歩10分
- 15,890万円(1戸)~15,990万円(1戸)
- 東急目黒線「武蔵小山」駅 徒歩10分
- 東京都品川区荏原二丁目223番6他(地番)
- 73.32m² / 3LDK ~3LDK
中古マンション
-
売出し中
- ロワプレイス島津山
- 1億4800万円
- 都営浅草線 高輪台駅 徒歩6分
- 東京都品川区東五反田3丁目10-10
- 72.8m² / 1LDK
-
売出し中
- 菱和パレス島津山206
- 1億2990万円
- JR山手線 五反田駅 徒歩11分
- 東京都品川区東五反田1丁目
- 83.34m² / 1SLDK
-
売出し中
- 朝日シティパリオ島津山
- 1億1499万円
- 都営浅草線 高輪台駅 徒歩4分
- 東京都品川区東五反田1丁目2-44
- 59.4m² / 2LDK
-
売出し中
- 島津山岩波ハイツ
- 2億4900万円
- 都営浅草線 高輪台駅 徒歩7分
- 東京都品川区東五反田3丁目16-8
- 150.33m² / 4LDK
-
売出し中
- オープンレジデンシア高輪台
- 1億5800万円
- 都営浅草線 高輪台駅 徒歩4分
- 東京都品川区東五反田4丁目
- 77.15m² / 2SLDK
-
売出し中
- シャトレー五反田
- 4799万円
- JR山手線 五反田駅 徒歩6分
- 東京都品川区東五反田4丁目10-9
- 41.53m² / 1LDK
-
売出し中
- 東建東五反田マンション
- 2580万円
- JR山手線 五反田駅 徒歩4分
- 東京都品川区東五反田1丁目9-7
- 24.7m² / ワンルーム
-
売出し中
- プラウドタワー高輪台
- 1億5980万円
- 都営浅草線 高輪台駅 徒歩2分
- 東京都品川区東五反田3丁目1-4
- 55.67m² / 2LDK
一戸建て
-
売出し中
- 品川区東五反田一丁目
- 1億1990万円
- 都営浅草線 高輪台駅 徒歩5分
- 東京都品川区東五反田1丁目
- 83.23m² / 3LDK
-
売出し中
- 北品川6丁目 中古戸建
- 1億9480万円
- JR山手線 五反田駅 徒歩11分
- 東京都品川区北品川6丁目
- 98.4m² / 4LDK
-
売出し中
- JR山手線「目黒」駅 徒歩9分
- 10780万円
- JR山手線「目黒」駅 徒歩9分
- 東京都品川区上大崎1丁目
- 63.17m² / 3LDK-
-
売出し中
- 上大崎の新築戸建て
- 1億780万円
- JR山手線 目黒駅 徒歩10分
- 東京都品川区上大崎1丁目
- 63.17m² / 3LDK
-
売出し中
- 大崎戸建て
- 6490万円
- JR山手線 大崎駅 徒歩8分
- 東京都品川区大崎4丁目9-10
- 40.77m² / 1SK
-
売出し中
- 品川区大崎4丁目 新築戸建
- 1億6980万円
- JR山手線 大崎駅 徒歩9分
- 東京都品川区大崎4丁目
- 122.1m² / 3LDK
-
売出し中
- 品川区大崎4丁目新築分譲住宅
- 1億6980万円
- JR山手線 大崎駅 徒歩10分
- 東京都品川区大崎4丁目
- 122.1m² / 2SLDK
-
売出し中
- 戸越1丁目 新築戸建
- 1億9980万円
- 都営浅草線 戸越駅 徒歩7分
- 東京都品川区戸越1丁目
- 157.31m² / 4SLDK
-
売出し中
- 品川区戸越1丁目 新築戸建 全1棟
- 1億9980万円
- 都営浅草線 戸越駅 徒歩7分
- 東京都品川区戸越1丁目
- 157.31m² / 3LDK
-
売出し中
- 品川区豊町1丁目 新築戸建
- 1億8380万円
- 都営浅草線 戸越駅 徒歩8分
- 東京都品川区豊町1丁目
- 170.15m² / 2LDK
注文住宅
※表示価格は延べ床面積約132m²の場合の建物価格の参考値です
エリア・駅で絞り込んで探す
賃貸
東京都のオープンレジデンスが含まれるマンション
物件の種類から探す
品川区で募集中の物件のみを検索できます
掲載情報に誤りや問題がある場合
LIFULL HOME'Sは「不動産会社」ではなく「情報掲載サイト」です
- ※管理会社の情報はLIFULL HOME'Sでは保持していないためお答えできません。お問合せはお控えください
- ※最新の募集状況は掲載中の不動産会社があれば、不動産会社へ直接お問合せください
掲載情報の訂正依頼 専用ダイヤル
0120-987-243
- 専用ダイヤル受付時間:10:00〜18:00
- ※土日・祝日、臨時休業日は除く
不動産データのご利用について
不動産事業におけるDX、サービスの改善、新規事業開発等をご検討中の方へ不動産データの活用をご提案します。LIFULL HOME'Sで集約した不動産情報や外部データは、不動産事業DX、不正決済防止、ローン審査、事業開発、研究等さまざまな事業でご活用いただいています。詳しくは以下よりご確認ください。
不動産アーカイブご利用アンケートにご協力ください
不動産アーカイブの掲載情報は、LIFULL HOME'S掲載の不動産情報および提携先の不動産情報を統計情報として集積したものであり、その存在や信憑性を保証するものではありません。