このページは物件の広告情報ではありません。
過去にLIFULL HOME'Sへ掲載された不動産情報と提携先の地図情報を元に生成した参考情報です。また、一般から投稿された情報など主観的な情報も含みます。
情報更新日: 2025/11/30
サンクレイドル調布多摩川
スポンサーリンク
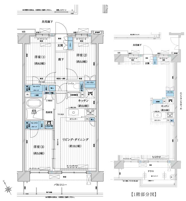
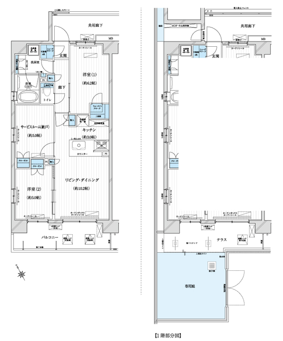
サンクレイドル調布多摩川の建物情報
物件概要
| 物件種別 | マンション |
|---|---|
| 築年月(築年数) | 2014年3月 (築12年) |
| 建物構造 | 鉄筋コンクリート造・地上8階建 |
| 総戸数/総区画数 | 30戸 |
| 敷地全体面積 | 869.00m2 |
| 用途地域 | 第一種低層住宅専用、商業 |
| 土地権利 | 所有権 |
| 建築確認番号 | 第ERI13019151号 |
| 施工会社 | 西野建設株式会社 |
| 売主 | 株式会社アーネストワン(売主・事業主)〒188-0003 東京都西東京市北原町3-2-22建設業:国土交通大臣許可(特-20)第23042号宅建業:国土交通大臣(3)第6157号(一社)全国住宅産業協会会員(公社)首都圏不動産公正取引協議会加盟(公社)東京都宅地建物取引業協会会員、三信住建株式会社(共同事業主)建設業:東京都知事(特-23)第127459号宅建業:東京都知事(2)第85626号(一社)全国住宅産業協会会員(公社)首都圏不動産公正取引協議会加盟 |
| 販売会社 | 株式会社プレディオ(代理)宅建業:宅地建物取引業 東京都知事(1)第90516号(公社)全日本不動産協会会員(公社)不動産保証協会会員(公社)首都圏不動産公正取引協議会加盟(公財)東日本不動産流通機構会員 〒105-0004 東京都港区新橋3-3-14田村町ビル7階 |
設備・条件
- 追い焚き
- 浴室乾燥機
- コンロ三口以上
- システムキッチン
- 食器洗い乾燥機
- 浄水器・活水器
- ウォークインクローゼット
- ブロードバンド
- バリアフリー
- オートロック
- 防犯カメラ
- セキュリティ充実
- エレベーター
- ペット用施設
- 宅配ボックス
- 南向き
- 子育てに優しい環境
- コンビニ400m以内
- 小学校800m以内
- 公園400m以内
※最新の状態と異なる場合があります
売りたい不動産をお持ちの方へ
このエリアの所有不動産を査定する
売却査定手続きの流れ、費用相場や注意点など不動産売却について詳しく知りたい方はLIFULL HOME'S 不動産査定へ
サンクレイドル調布多摩川の周辺施設
-
買い物
日用品 -
- ローソン 調布多摩川店
- ローソン 京王多摩川駅店
- ファミリーマート 京王多摩川駅前店
- ファミリーマート 京王多摩川店
- 買い物
大型店 -
- ファッションセンターしまむら 調布Tokyu店
- グルメ
-
- バーミヤン 調布駅南店
- モスバーガー 調布南口店
- すし銚子丸 調布店
- 天丼てんや 調布とうきゅう店
- 娯楽施設
-
- 京王テニスクラブ
- 多摩川児童公園内運動施設サッカー場
- 多摩川児童公園内運動施設ソフトボール場
- 京王閣競輪場
- 文化施設
-
- 調布市郷土博物館
- 役所
公共施設 -
- 調布小島郵便局
- 調布市役所前郵便局
- 調布市役所
- 調布市立中央図書館
- 保育施設
-
- みずべの保育園
- 双葉保育園
- グローバルキッズ調布園
- ヒューマンアカデミー調布多摩川保育園
- 学校
-
- 東京都立調布南高校
- 調布市立富士見台小学校
- 調布市立多摩川小学校
- 調布市立布田小学校
サンクレイドル調布多摩川周辺の物件情報
周辺の問合せ可能な物件
東京都調布市の問合せ可能な物件のうち、この物件の周辺にあるものから表示しています
賃貸
-
募集中
- メインステージ多摩川駅前
- 4.3万円
- 京王線 調布駅 徒歩18分
- 東京都調布市多摩川5丁目21-2
- 18.11m² / ワンルーム
-
募集中
- 京王線 調布駅 徒歩18分
- 4.3万円
- 京王線 調布駅 徒歩18分
- 東京都調布市多摩川5丁目21-2
- 18.11m² / ワンルーム
-
募集中
- 京王相模原線 京王多摩川駅 徒歩4分
- 12万円
- 京王相模原線 京王多摩川駅 徒歩4分
- 東京都調布市多摩川7丁目
- 63.13m² / 2LDK
-
募集中
- 京王相模原線 京王多摩川駅 徒歩3分
- 3.7万円
- 京王相模原線 京王多摩川駅 徒歩3分
- 東京都調布市多摩川7丁目
- 13.82m² / ワンルーム
-
募集中
- 多摩川ビレッヂ
- 5.4万円
- 京王相模原線 京王多摩川駅 徒歩3分
- 東京都調布市多摩川5丁目18-4
- 23.71m² / ワンルーム
-
募集中
- リズ京王多摩川
- 17.5万円
- 京王相模原線 京王多摩川駅 徒歩3分
- 東京都調布市多摩川5丁目30-3
- 84.95m² / 3LDK
-
募集中
- 京王線 調布駅 徒歩15分
- 17.5万円
- 京王線 調布駅 徒歩15分
- 東京都調布市多摩川5丁目30-3
- 84.95m² / 3LDK
-
募集中
- リバーハイム
- 4万円
- 京王相模原線 京王多摩川駅 徒歩6分
- 東京都調布市多摩川5丁目
- 17.01m² / 1K
-
募集中
- サニーハイム
- 4.5万円
- 京王相模原線 京王多摩川駅 徒歩5分
- 東京都調布市多摩川5丁目30-1
- 16.84m² / ワンルーム
-
募集中
- 京王相模原線 京王多摩川駅 徒歩5分
- 4.5万円
- 京王相模原線 京王多摩川駅 徒歩5分
- 東京都調布市多摩川5丁目30-1
- 16.84m² / ワンルーム
新築マンション
※完成後1年以上経過した未入居の物件が含まれている場合があります
-
売出し中
- 小田急線「狛江」駅徒歩20分(B棟エントランスより)/徒歩21分(D棟・E棟エントランスより)/徒歩22分(A棟・C棟・G棟エントランスより)/徒歩24分(F棟エントランスより) A棟より徒歩6分、C棟より徒歩5分、D棟・E棟・F棟より徒歩4分、G棟より徒歩3分の「シティテラス多摩川」(午後回り)バス停から「狛江駅北口」バス停まで約11分(平常時約11分) B棟より徒歩4分の「多摩川住宅南口」バス停から「狛江駅北口」バス停まで約8分(平常時約8分) A棟・C棟・E棟より徒歩4分、B棟より徒歩6分、D棟より徒歩5分、F棟より徒歩2分、G棟より徒歩3分の「シティテラス多摩川」(午前回り)バス停から「調布駅南口」バス停まで約21分(平常時約21分) A棟より徒歩6分、B棟・C棟より徒歩5分、D棟・E棟・F棟より徒歩4分、G棟より徒歩3分の「シティテラス多摩川」(午後回り)バス停から「調布駅南口」バス停まで約19分(日中時)
- 4,200万円~7,400万円
- 小田急線「狛江」駅徒歩20分(B棟エントランスより)/徒歩21分(D棟・E棟エントランスより)/徒歩22分(A棟・C棟・G棟エントランスより)/徒歩24分(F棟エントランスより) A棟より徒歩6分、C棟より徒歩5分、D棟・E棟・F棟より徒歩4分、G棟より徒歩3分の「シティテラス多摩川」(午後回り)バス停から「狛江駅北口」バス停まで約11分(平常時約11分) B棟より徒歩4分の「多摩川住宅南口」バス停から「狛江駅北口」バス停まで約8分(平常時約8分) A棟・C棟・E棟より徒歩4分、B棟より徒歩6分、D棟より徒歩5分、F棟より徒歩2分、G棟より徒歩3分の「シティテラス多摩川」(午前回り)バス停から「調布駅南口」バス停まで約21分(平常時約21分) A棟より徒歩6分、B棟・C棟より徒歩5分、D棟・E棟・F棟より徒歩4分、G棟より徒歩3分の「シティテラス多摩川」(午後回り)バス停から「調布駅南口」バス停まで約19分(日中時)
- 東京都調布市染地三丁目1-811、同番943(地番)
- 81.34m² / 1LD・K+2S~4LD・K
-
売出し中
- 京王線「調布」駅 徒歩5分
- 未定
- 京王線「調布」駅 徒歩5分
- 東京都調布市小島町二丁目42番地1外(地番)
- 73.77m² / 1LD・K~3LD・K
-
売出し中
- 京王線「調布」駅 徒歩4分
- 12,408万円
- 京王線「調布」駅 徒歩4分
- 東京都調布市小島町二丁目29番1他(地番)
- 76.93m² / 2LDK+S(納戸)
-
売出し中
- 京王相模原線「京王多摩川」駅 徒歩2分
- 未定
- 京王相模原線「京王多摩川」駅 徒歩2分
- 東京都調布市多摩川4丁目15番地4の一部外(東京都調布市多摩川4丁目 京王多摩川駅周辺地区土地区画整理事業施行地区内 街区番号2 符号1)
- 86.94m² / 1LDK~4LDK
中古マンション
-
売出し中
- ゼファー調布多摩川
- 4499万円
- 京王相模原線 京王多摩川駅 徒歩3分
- 東京都調布市多摩川5丁目
- 62.46m² / 3LDK
-
売出し中
- 京王相模原線 京王多摩川駅 徒歩3分
- 4499万円
- 京王相模原線 京王多摩川駅 徒歩3分
- 東京都調布市多摩川5丁目
- 62.46m² / 3LDK
-
売出し中
- 京王相模原線 京王多摩川駅 徒歩4分
- 1380万円
- 京王相模原線 京王多摩川駅 徒歩4分
- 東京都調布市多摩川7丁目
- 31.8m² / ワンルーム
-
売出し中
- 調布多摩川サニーコート
- 4680万円
- 京王相模原線 京王多摩川駅 徒歩1分
- 東京都調布市多摩川5丁目
- 61.75m² / 3LDK
-
売出し中
- サンクレイドル調布多摩川
- 4680万円
- 京王相模原線 京王多摩川駅 徒歩4分
- 東京都調布市多摩川5丁目
- 62.93m² / 3LDK
-
売出し中
- 京王多摩川コーポラス
- 1980万円
- 京王相模原線 京王多摩川駅 徒歩1分
- 東京都調布市多摩川5丁目4-1
- 66.33m² / 3LDK
-
売出し中
- 調布ハウスH棟
- 3480万円
- 京王相模原線 京王多摩川駅 徒歩11分
- 東京都調布市布田5丁目
- 88.65m² / 3LDK
一戸建て
-
売出し中
- 調布市多摩川4丁目 中古戸建
- 7580万円
- 京王相模原線 京王多摩川駅 徒歩3分
- 東京都調布市多摩川4丁目
- 91.91m² / 4LDK
-
売出し中
- 調布市多摩川4丁目 戸建
- 7580万円
- 京王相模原線 京王多摩川駅 徒歩3分
- 東京都調布市多摩川4丁目
- 91.91m² / 4LDK
-
売出し中
- 調布市布田5丁目新築戸建
- 6180万円
- 京王線 調布駅 徒歩11分
- 東京都調布市布田5丁目
- 68.72m² / 3LDK
-
売出し中
- 調布市多摩川7丁目 中古戸建
- 3980万円
- 京王相模原線 京王多摩川駅 徒歩10分
- 東京都調布市多摩川7丁目24-14
- 48.92m² / 2DK
-
売出し中
- 調布市小島町 中古戸建
- 8995万円
- 京王線 調布駅 徒歩11分
- 東京都調布市小島町3丁目
- 95.98m² / 4LDK
-
売出し中
- 調布市・多摩川3丁目
- 4280万円
- 京王相模原線 京王多摩川駅 徒歩8分
- 東京都調布市多摩川3丁目
- 56.71m² / 2LDK
-
売出し中
- 調布市染地1丁目戸建
- 4780万円
- 京王線 調布駅 徒歩16分
- 東京都調布市染地1丁目
- 88.5m² / 3LDK
-
売出し中
- 京王相模原線 京王多摩川駅 徒歩8分
- 4180万円
- 京王相模原線 京王多摩川駅 徒歩8分
- 東京都調布市多摩川3丁目
- 56.71m² / 2LDK
-
売出し中
- 調布市染地10期 1号棟
- 6599万円
- 京王相模原線 京王多摩川駅 徒歩13分
- 東京都調布市染地1丁目
- 94.4m² / 3LDK
-
売出し中
- 京王線 調布駅 徒歩12分
- 5950万円
- 京王線 調布駅 徒歩12分
- 東京都調布市布田6丁目
- 118.41m² / 5LDK
注文住宅
※表示価格は延べ床面積約132m²の場合の建物価格の参考値です
エリア・駅で絞り込んで探す
東京都のサンクレイドルが含まれるマンション
周辺の建物情報
物件の種類から探す
調布市で募集中の物件のみを検索できます
掲載情報に誤りや問題がある場合
LIFULL HOME'Sは「不動産会社」ではなく「情報掲載サイト」です
- ※管理会社の情報はLIFULL HOME'Sでは保持していないためお答えできません。お問合せはお控えください
- ※最新の募集状況は掲載中の不動産会社があれば、不動産会社へ直接お問合せください
掲載情報の訂正依頼 専用ダイヤル
0120-987-243
- 専用ダイヤル受付時間:10:00〜18:00
- ※土日・祝日、臨時休業日は除く
不動産データのご利用について
不動産事業におけるDX、サービスの改善、新規事業開発等をご検討中の方へ不動産データの活用をご提案します。LIFULL HOME'Sで集約した不動産情報や外部データは、不動産事業DX、不正決済防止、ローン審査、事業開発、研究等さまざまな事業でご活用いただいています。詳しくは以下よりご確認ください。
不動産アーカイブご利用アンケートにご協力ください
不動産アーカイブの掲載情報は、LIFULL HOME'S掲載の不動産情報および提携先の不動産情報を統計情報として集積したものであり、その存在や信憑性を保証するものではありません。