このページは物件の広告情報ではありません。
過去にLIFULL HOME'Sへ掲載された不動産情報と提携先の地図情報を元に生成した参考情報です。また、一般から投稿された情報など主観的な情報も含みます。
情報更新日: 2026/04/04
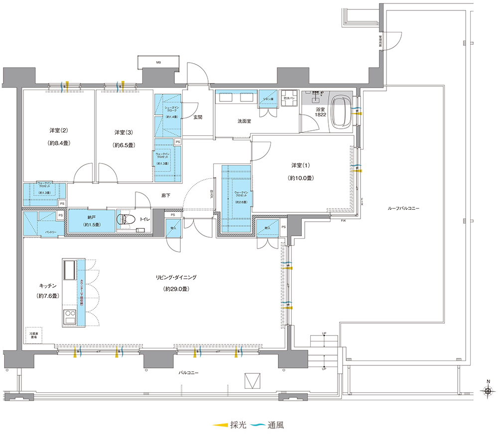
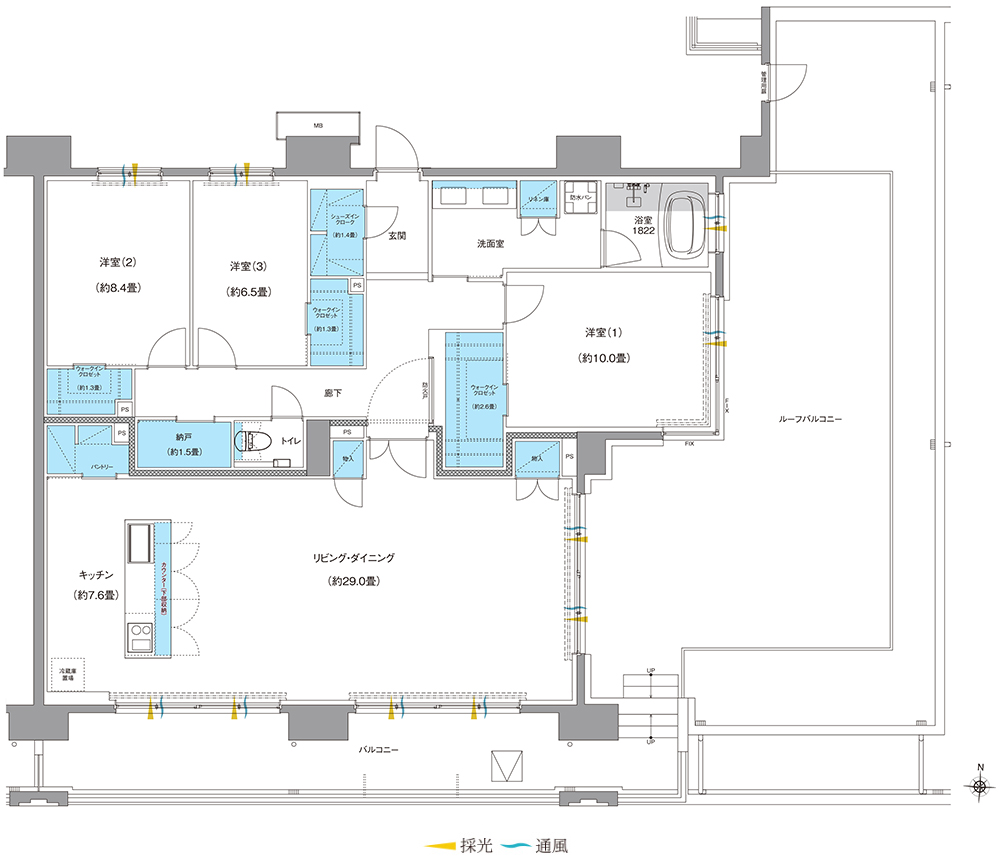
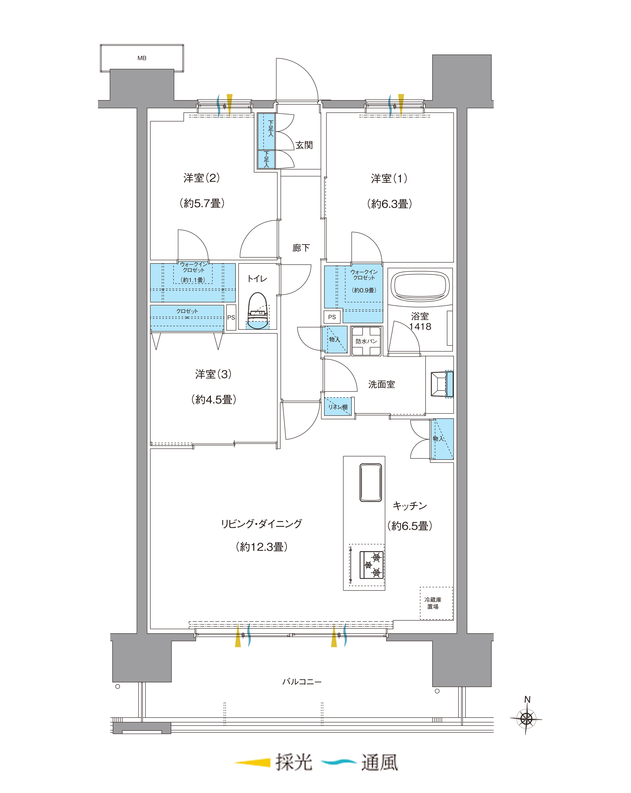
ブランシエラ南洲門前通り
| 所在地 | 鹿児島県鹿児島市春日町4-7、4-8、4-16(地番) |
|---|---|
| 交通 |
|
| 価格 | 3,748万円~5,788万円 |
| 最多価格帯 | 3,900万円台(4戸) |
| 管理費等 | 9,700円~14,400円(月額) |
| 修繕積立金 | 8,040円~11,980円(月額) |
スポンサーリンク
ブランシエラ南洲門前通りの建物情報
物件概要
| 物件種別 | マンション |
|---|---|
| 築年月(築年数) | 2027年1月 (完成予定) |
| 建物構造 | 鉄筋コンクリート造 地下1階地上14階建 |
| 販売個数(区画数) | 12戸 |
| 総戸数/総区画数 | 159戸 |
| 敷地全体面積 | 6,429.96m2 |
| 用途地域 | 第一種住居 |
| 土地権利 | 所有権 |
| 建築確認番号 | 第KJH24-03011-1号(2025年2月7日)、第KJH24-03011-2号(2025年8月27日) |
| 施工会社 | 吉原建設株式会社 |
| 売主 | 株式会社長谷工不動産、東京建物株式会社(国土交通大臣(17)第6 号) |
| 販売会社 | 株式会社長谷工アーベスト(代理) |
設備・条件
- 追い焚き
- システムキッチン
- 4LDK以上
- オートロック
※最新の状態と異なる場合があります
売りたい不動産をお持ちの方へ
このエリアの所有不動産を査定する
売却査定手続きの流れ、費用相場や注意点など不動産売却について詳しく知りたい方はLIFULL HOME'S 不動産査定へ
ブランシエラ南洲門前通りの周辺施設
-
買い物
日用品 -
- セブンイレブン 鹿児島池之上町店
- ミドリ薬品大竜店
- ドラッグストアモリ鹿児島駅前店
- タイヨー 清水店
- 買い物
大型店 -
- エディオン マルヤマ電化
- スーパーセンターニシムタ 北ふ頭店
- グルメ
-
- ジョリーパスタ 鹿児島ベイサイド店
- すき家 鹿児島ベイサイド店
- モスバーガー 鹿児島ベイサイド店
- ケンタッキーフライドチキン ベイサイド鹿児島店
- 娯楽施設
-
- 多賀山公園
- かんまちあ
- 南洲公園
- 祇園之洲公園
- 役所
公共施設 -
- 鹿児島春日郵便局
- 鹿児島大竜郵便局
- 鹿児島池之上郵便局
- 鹿児島小川郵便局
- 医療
-
- 清泉会伊集院病院
- 医療法人慈圭会八反丸リハビリテーション病院
- 医療法人健生会あんびる病院
- 公益社団法人昭和会上町いまきいれ病院
- 保育施設
-
- 認定こども園共立幼稚園
- 春日保育園
- 同胞保育園
- 清水保育園
- 学校
-
- 鹿児島市立大龍小学校
- 鹿児島市立清水小学校
- 鹿児島市立鹿児島玉龍中学校
- 鹿児島市立鹿児島玉龍高校
※学区外の学校が含まれる場合があります。実際の学区は必ず各自治体へご確認ください。
ブランシエラ南洲門前通り周辺の物件情報
周辺の問合せ可能な物件
鹿児島県鹿児島市の問合せ可能な物件のうち、この物件の周辺にあるものから表示しています
賃貸
-
募集中
- JR鹿児島本線 鹿児島駅 春日町下車 徒歩8分
- 7.5万円
- JR鹿児島本線 鹿児島駅 春日町下車 徒歩8分
- 鹿児島県鹿児島市春日町
- 47.79m² / 2LDK
-
募集中
- エクシード藤山
- 7.5万円
- JR日豊本線 鹿児島駅 徒歩7分
- 鹿児島県鹿児島市春日町
- 47.79m² / 2LDK
-
募集中
- 鹿児島市電2系統 桜島桟橋通駅 春日町下車 徒歩10分
- 3万円
- 鹿児島市電2系統 桜島桟橋通駅 春日町下車 徒歩10分
- 鹿児島県鹿児島市春日町
- 17.5m² / 1K
-
募集中
- EXCEL K・M
- 3.3万円
- JR日豊本線 鹿児島駅 徒歩11分
- 鹿児島県鹿児島市春日町5-21
- 20.47m² / ワンルーム
-
募集中
- NDL春日
- 3万円
- バス 鹿児島市営バス春日町下車 徒歩2分
- 鹿児島県鹿児島市春日町3番地1
- 17.5m² / 1K
-
募集中
- シャーメゾンプレミア鹿児島駅前
- 26.6万円
- JR鹿児島本線 鹿児島駅 徒歩6分
- 鹿児島県鹿児島市柳町11-22
- 105.93m² / 3SLDK
-
募集中
- JR鹿児島本線 鹿児島駅 徒歩6分
- 19.8万円
- JR鹿児島本線 鹿児島駅 徒歩6分
- 鹿児島県鹿児島市柳町
- 78.18m² / 2LDK
-
募集中
- 鹿児島市電2系統 鹿児島駅前駅 柳町 徒歩3分、 鹿児島本線 下車 徒歩8分
- 15.5万円
- 鹿児島市電2系統 鹿児島駅前駅 柳町 徒歩3分、 鹿児島本線 下車 徒歩8分
- 鹿児島県鹿児島市春日町
- 68.12m² / 2LDK
-
募集中
- シャーメゾン春日町
- 16.9万円
- バス 南国交通(鹿児島市)柳町下車 徒歩3分
- 鹿児島県鹿児島市春日町1番地4
- 76.86m² / 2LDK
-
募集中
- 第5心友館
- 4万円
- JR日豊本線 鹿児島駅 徒歩7分
- 鹿児島県鹿児島市柳町10-7
- 45.63m² / 2DK
新築マンション
※完成後1年以上経過した未入居の物件が含まれている場合があります
-
売出し中
- JR指宿枕崎線「南鹿児島」駅 徒歩11分 (約880m)
- 3,560万円~4,870万円
- JR指宿枕崎線「南鹿児島」駅 徒歩11分 (約880m)
- 鹿児島県鹿児島市新栄町185番370(地番)
- 74.54m² / 2LDK・3LDK
-
売出し中
- 鹿児島市電1系統「郡元」駅 徒歩3分 (約190m)
- 4,180万円~5,220万円
- 鹿児島市電1系統「郡元」駅 徒歩3分 (約190m)
- 鹿児島県鹿児島市鴨池1丁目56番10(地番)
- 78.89m² / 3LDK
-
売出し中
- JR鹿児島本線「鹿児島中央」駅 徒歩3分
- 3,970万円(1戸)~12,000万円(1戸)
- JR鹿児島本線「鹿児島中央」駅 徒歩3分
- 鹿児島県鹿児島市武1丁目8番1(地番)
- 97.96m² / 2LDK~4LDK
-
売出し中
- 鹿児島市電2系統「市立病院前」駅 徒歩2分
- 3,360万円~6,980万円
- 鹿児島市電2系統「市立病院前」駅 徒歩2分
- 鹿児島県鹿児島市上荒田町38番11、38番27(地番)
- 104.97m² / 3LDK~4LDK
-
売出し中
- 鹿児島市電1系統「高見馬場」駅 徒歩2分
- 3,480万円~5,770万円
- 鹿児島市電1系統「高見馬場」駅 徒歩2分
- 鹿児島県鹿児島市西千石町16番1
- 74.9m² / 2LDK、3LDK
-
売出し中
- JR指宿枕崎線「谷山」駅 徒歩2分
- 3,750万円(1戸)~5,480万円(1戸)
- JR指宿枕崎線「谷山」駅 徒歩2分
- 鹿児島県鹿児島市谷山中央1丁目4064番1外4筆
- 76.32m² / 2LDK、3LDK
-
売出し中
- JR鹿児島本線「鹿児島中央」駅 徒歩9分
- 4,500万円~5,450万円
- JR鹿児島本線「鹿児島中央」駅 徒歩9分
- 鹿児島県鹿児島市上之園町14番11(地番)
- 82.95m² / 2LDK・3LDK
-
売出し中
- 南国交通「中之平」バス停 徒歩1分
- 3,520万円~5,330万円
- 南国交通「中之平」バス停 徒歩1分
- 鹿児島県鹿児島市平之町12番19(地番)
- 82.65m² / 2LDK・3LDK
中古マンション
-
売出し中
- コープ野村柳町
- 1180万円
- 鹿児島市電2系統 鹿児島駅前駅 徒歩6分
- 鹿児島県鹿児島市柳町
- 63.29m² / 3LDK
-
売出し中
- ファーネスト大竜町
- 3180万円
- JR鹿児島本線 鹿児島中央駅 バス20分 上竜尾バス停下車 徒歩2分
- 鹿児島県鹿児島市大竜町
- 74.9m² / 3LDK
-
売出し中
- サンビュー大和
- 980万円
- JR鹿児島本線 鹿児島駅 徒歩3分
- 鹿児島県鹿児島市上本町
- 55.12m² / 3DK
-
売出し中
- トーカンキャステール鹿児島駅前
- 380万円
- 鹿児島市電2系統 鹿児島駅前駅 徒歩2分
- 鹿児島県鹿児島市上本町
- 20.57m² / 1K
-
売出し中
- ロイヤルメゾン祇園之洲
- 750万円
- JR鹿児島本線 鹿児島駅 徒歩18分
- 鹿児島県鹿児島市清水町
- 53.77m² / 3DK
-
売出し中
- 鹿児島市清水 パークハイツ多賀山
- 1650万円
- JR鹿児島本線 鹿児島駅 徒歩18分
- 鹿児島県鹿児島市清水町
- 72.01m² / 3LDK
-
売出し中
- エイルヴィラビューシティ多賀山
- 2200万円
- JR日豊本線 仙巌園駅 徒歩17分
- 鹿児島県鹿児島市清水町31-10
- 90.64m² / 4LDK
-
売出し中
- シーサイドパーク小川
- 1980万円
- 鹿児島市電1系統 桜島桟橋通駅 徒歩2分
- 鹿児島県鹿児島市小川町21-1
- 65.83m² / 3LDK
-
売出し中
- パークオーシャン桜島桟橋通り
- 2800万円
- 鹿児島市電2系統 水族館口駅 徒歩1分
- 鹿児島県鹿児島市小川町
- 76.42m² / 2LDK
-
売出し中
- Fステージ長田
- 2180万円
- 鹿児島市電1系統 水族館口駅 徒歩11分
- 鹿児島県鹿児島市長田町21-28
- 70.74m² / 3LDK
一戸建て
-
売出し中
- 柳町戸建
- 3500万円
- JR鹿児島本線 鹿児島駅 徒歩5分
- 鹿児島県鹿児島市柳町7-10-1
- 87.77m² / 2LDK
-
売出し中
- JR鹿児島本線 鹿児島駅 徒歩13分
- 680万円
- JR鹿児島本線 鹿児島駅 徒歩13分
- 鹿児島県鹿児島市池之上町
- 58.72m² / 4DK
-
売出し中
- JR鹿児島本線 鹿児島駅 徒歩14分
- 3580万円
- JR鹿児島本線 鹿児島駅 徒歩14分
- 鹿児島県鹿児島市池之上町
- 121.12m² / 4LDK
-
売出し中
- 上本町 中古戸建
- 3500万円
- 鹿児島市電2系統 鹿児島駅前駅 徒歩4分
- 鹿児島県鹿児島市上本町
- 96.5m² / 2LDK
-
売出し中
- 稲荷町 新築戸建
- 3780万円
- JR鹿児島本線 鹿児島駅 徒歩16分
- 鹿児島県鹿児島市稲荷町
- 103.28m² / 4LDK
-
売出し中
- 稲荷町 中古戸建
- 1800万円
- JR鹿児島本線 鹿児島駅 徒歩17分
- 鹿児島県鹿児島市稲荷町
- 109.85m² / 5LDK
-
売出し中
- 池之上町 中古戸建
- 2780万円
- JR日豊本線 鹿児島駅 徒歩23分
- 鹿児島県鹿児島市池之上町
- 128.15m² / 5LDK
-
売出し中
- 稲荷町 中古戸建
- 3500万円
- JR鹿児島本線 鹿児島駅 バス5分 稲荷町バス停下車 徒歩2分
- 鹿児島県鹿児島市稲荷町
- 182.38m² / 5SLDK
-
売出し中
- 稲荷町 中古戸建
- 3500万円
- JR鹿児島本線 鹿児島駅 徒歩16分
- 鹿児島県鹿児島市稲荷町
- 182.38m² / 4SLDK
-
売出し中
- 上竜尾町 中古戸建
- 1280万円
- 鹿交「常安団地南」下車 徒歩1分
- 鹿児島県鹿児島市上竜尾町
- 136.49m² / 3LDK
注文住宅
※表示価格は延べ床面積約132m²の場合の建物価格の参考値です
-
資料請求受付中
- 2000万円〜
- 一条工務店
- 【一条工務店】 建築実例集3冊セット(HOME’S限定)
-
資料請求受付中
- 3200万円〜
- 丸和建設株式会社
- 【2F、平屋】AirVert プラン集
-
資料請求受付中
- 2000万円〜
- 株式会社七呂建設
- ZEROENE±
-
資料請求受付中
- 1800万円〜
- 株式会社国分ハウジング
- 国分ハウジングハウスデザインカタログ
-
資料請求受付中
- 2800万円〜
- ミサワホーム株式会社
- 【MISAWA】ミサワホーム代表カタログ3冊セット(HOME'S限定)
-
資料請求受付中
- 1820万円〜
- デイジャストハウス霧島店
- パンフレット
-
資料請求受付中
- 1868万円〜
- タマホーム株式会社
- 大安心の家シリーズ
-
資料請求受付中
- 3200万円〜
- 大和ハウス
- 【大和ハウス】 xevoΣ<ジーヴォシグマ> ~天井高2m72cmの高さというゆとり空間~
-
資料請求受付中
- 3000万円〜
- セキスイハイム
- 【セキスイハイム】総合カタログ(heimism)
-
資料請求受付中
- -
- 積水ハウス
- BRAND BOOK
エリア・駅で絞り込んで探す
周辺の建物情報
物件の種類から探す
鹿児島市で募集中の物件のみを検索できます
掲載情報に誤りや問題がある場合
LIFULL HOME'Sは「不動産会社」ではなく「情報掲載サイト」です
- ※管理会社の情報はLIFULL HOME'Sでは保持していないためお答えできません。お問合せはお控えください
- ※最新の募集状況は掲載中の不動産会社があれば、不動産会社へ直接お問合せください
掲載情報の訂正依頼 専用ダイヤル
0120-987-243
- 専用ダイヤル受付時間:10:00〜18:00
- ※土日・祝日、臨時休業日は除く
不動産データのご利用について
不動産事業におけるDX、サービスの改善、新規事業開発等をご検討中の方へ不動産データの活用をご提案します。LIFULL HOME'Sで集約した不動産情報や外部データは、不動産事業DX、不正決済防止、ローン審査、事業開発、研究等さまざまな事業でご活用いただいています。詳しくは以下よりご確認ください。
不動産アーカイブご利用アンケートにご協力ください
不動産アーカイブの掲載情報は、LIFULL HOME'S掲載の不動産情報および提携先の不動産情報を統計情報として集積したものであり、その存在や信憑性を保証するものではありません。