このページは物件の広告情報ではありません。
過去にLIFULL HOME'Sへ掲載された不動産情報と提携先の地図情報を元に生成した参考情報です。また、一般から投稿された情報など主観的な情報も含みます。
情報更新日: 2026/04/02
ユニハイム小岩
スポンサーリンク
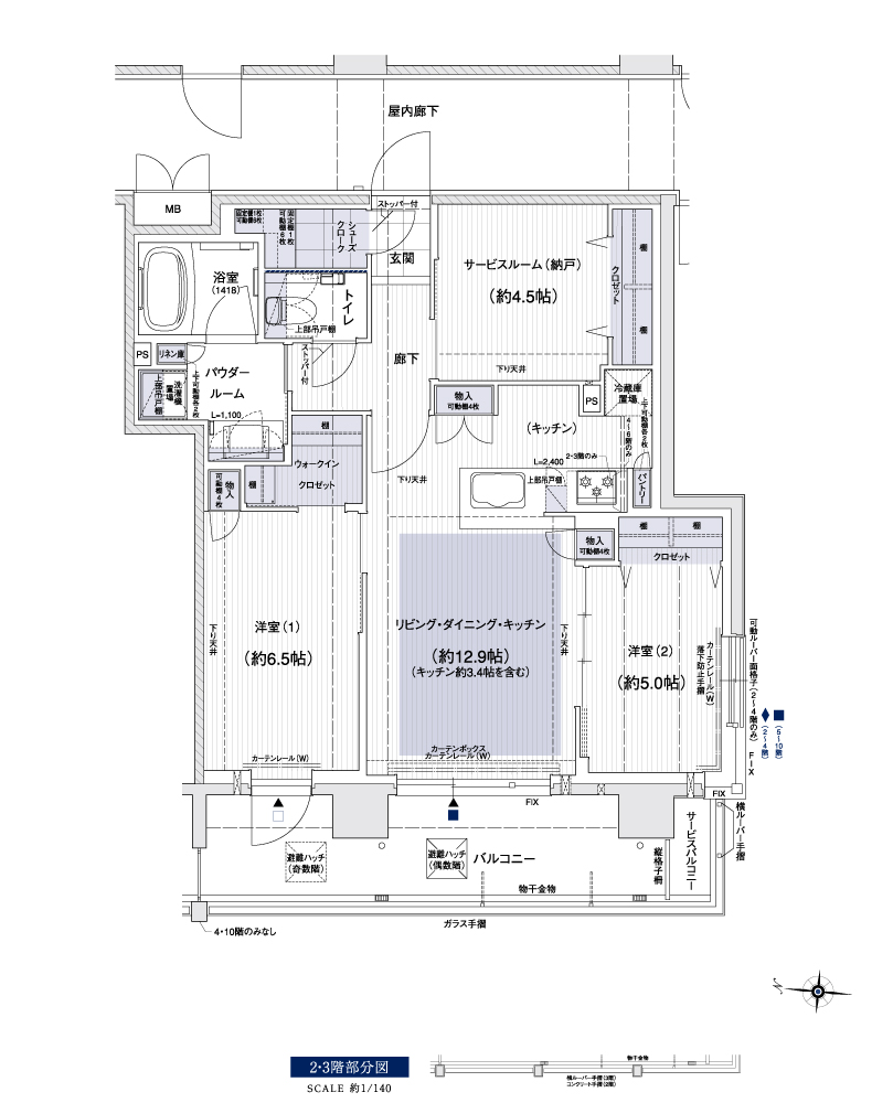
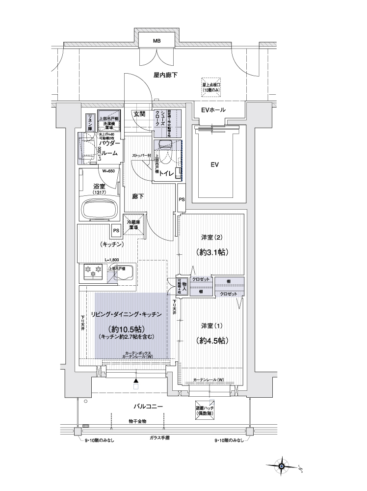
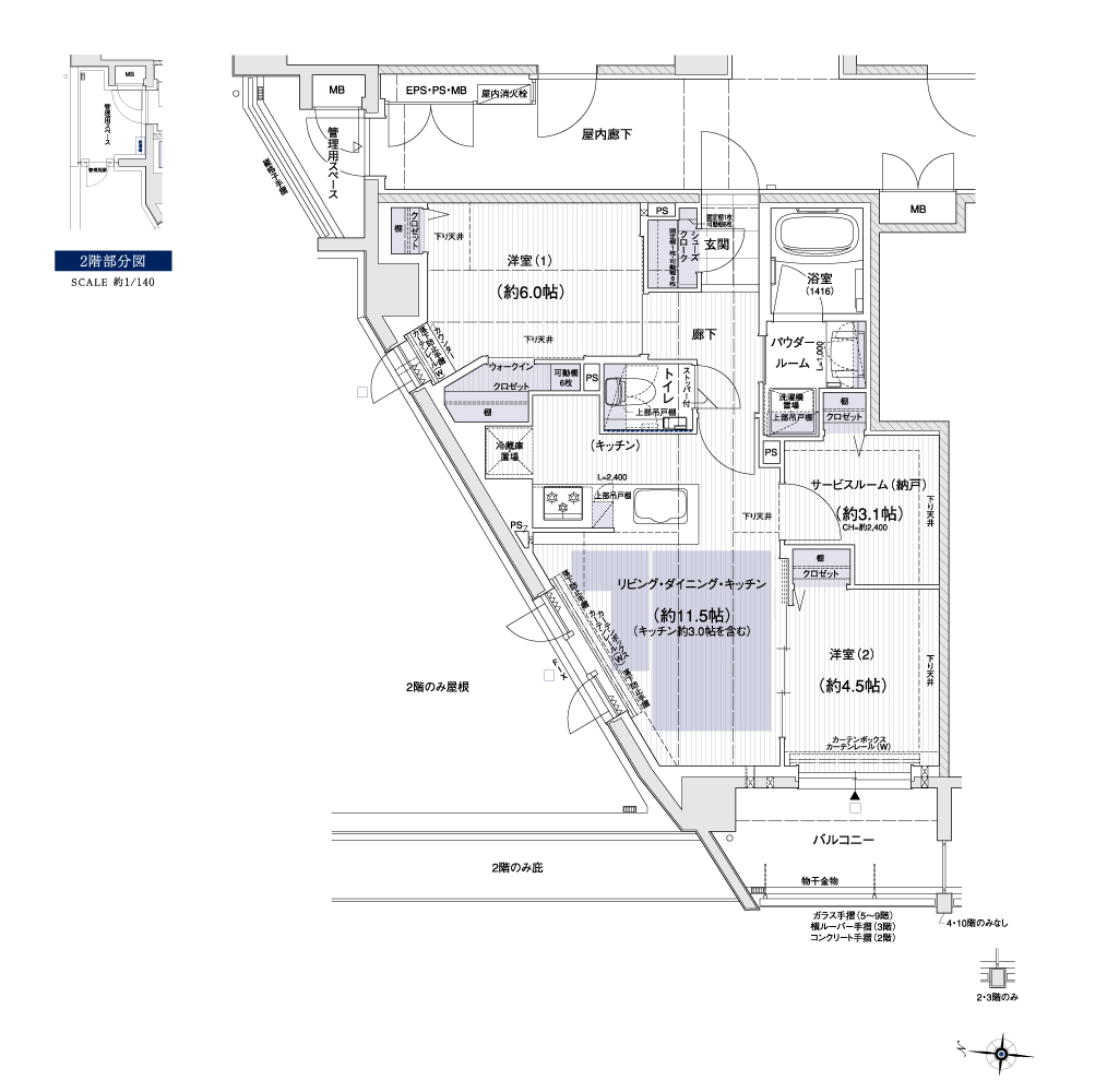
ユニハイム小岩の建物情報
物件概要
| 物件種別 | マンション |
|---|---|
| 築年月(築年数) | 2026年4月 (築1年) |
| 建物構造 | 鉄筋コンクリート造 地上10階建 |
| 総戸数/総区画数 | 45戸 |
| 敷地全体面積 | 781.41m2 |
| 管理人 | 日勤 |
| 用途地域 | 商業 |
| 土地権利 | 所有権 |
| 建築確認番号 | 第ERI-23044179号(2024年1月25日付) |
| 施工会社 | 大和ハウス工業株式会社 |
| 売主 | ヤマイチエステート株式会社 |
| 販売会社 | 株式会社デバインコーポレーション(代理) |
設備・条件
- 追い焚き
- システムキッチン
- オートロック
- 防犯カメラ
- セキュリティ充実
- エレベーター
- 宅配ボックス
- コンビニ400m以内
- 複数路線
※最新の状態と異なる場合があります
売りたい不動産をお持ちの方へ
このエリアの所有不動産を査定する
売却査定手続きの流れ、費用相場や注意点など不動産売却について詳しく知りたい方はLIFULL HOME'S 不動産査定へ
ユニハイム小岩の周辺施設
-
買い物
日用品 -
- スギ薬局南小岩店
- Seria南小岩店
- スーパーオオゼキ 南小岩店
- ウエルシア小岩駅南口店
- 買い物
大型店 -
- シャポー小岩
- 紳士服コナカ 南小岩店
- グルメ
-
- やよい軒 小岩店
- 珈琲館小岩南口店
- カフェコロラド小岩南口店
- 喜多方ラーメン坂内小岩店
- 娯楽施設
-
- FASTGYM24小岩店
- 快活CLUB小岩駅南口店
- ティップネス小岩店
- 役所
公共施設 -
- 南小岩フラワーロード郵便局
- 小岩駅前郵便局
- 小岩郵便局
- 西小岩一郵便局
- 医療
-
- 岩倉病院
- 岩井医療財団岩井整形外科内科病院
- 保育施設
-
- どんぐり保育園小岩
- キッズガーデン南小岩
- 飯塚保育園
- 西小岩おひさま保育園
- 学校
-
- 江戸川区立下小岩小学校
- 江戸川区立東小岩小学校
- 私立江戸川女子高校
- 私立江戸川女子中学校
※学区外の学校が含まれる場合があります。実際の学区は必ず各自治体へご確認ください。
ユニハイム小岩周辺の物件情報
周辺の問合せ可能な物件
東京都江戸川区の問合せ可能な物件のうち、この物件の周辺にあるものから表示しています
賃貸
-
募集中
- JR総武線 小岩駅 徒歩6分
- 9万円
- JR総武線 小岩駅 徒歩6分
- 東京都江戸川区南小岩7丁目
- 27.0m² / 1DK
-
募集中
- タカヨシコーポ
- 9万円
- JR総武線 小岩駅 徒歩6分
- 東京都江戸川区南小岩7丁目17-17
- 27.0m² / 1DK
-
募集中
- ふじさわビル
- 7.8万円
- JR総武線 小岩駅 徒歩7分
- 東京都江戸川区南小岩6丁目28-11
- 26.06m² / 1K
-
募集中
- ポルージュ小岩
- 7.3万円
- JR総武線 小岩駅 徒歩6分
- 東京都江戸川区南小岩6丁目27-9
- 17.97m² / ワンルーム
-
募集中
- プロシード小岩
- 22.4万円
- JR総武線 小岩駅 徒歩3分
- 東京都江戸川区南小岩7丁目18-6
- 61.73m² / 2LDK
-
募集中
- JR総武線 小岩駅 徒歩4分
- 16万円
- JR総武線 小岩駅 徒歩4分
- 東京都江戸川区南小岩7丁目
- 56.51m² / 2LDK
-
募集中
- シャローム南小岩
- 9万円
- JR総武線 小岩駅 徒歩4分
- 東京都江戸川区南小岩7丁目13-2
- 25.99m² / 1K
-
募集中
- 三光パレス
- 5万円
- JR総武線 小岩駅 徒歩7分
- 東京都江戸川区南小岩6丁目
- 16.2m² / ワンルーム
-
募集中
- キルフェボン
- 7.7万円
- JR総武線 小岩駅 徒歩5分
- 東京都江戸川区南小岩7丁目19-6
- 29.21m² / 1K
-
募集中
- Maison de Familia
- 24.4万円
- JR総武線 小岩駅 徒歩6分
- 東京都江戸川区南小岩6丁目
- 78.04m² / 3LDK
新築マンション
※完成後1年以上経過した未入居の物件が含まれている場合があります
-
売出し中
- 都営新宿線「篠崎」駅 徒歩9分
- 未定
- 都営新宿線「篠崎」駅 徒歩9分
- 東京都江戸川区篠崎町5丁目13番14(住居表示)
- 84.52m² / 2LDK+S~4LDK
-
売出し中
- JR総武線「平井」駅 徒歩8分
- 6,999万円~9,799万円
- JR総武線「平井」駅 徒歩8分
- 東京都江戸川区平井二丁目243番、244の一部、245番1、246番3、246番4(地番)
- 75.45m² / 1LDK+S~3LDK
-
売出し中
- 東京メトロ東西線「葛西」駅 徒歩4分
- 79,900,000円~105,800,000円
- 東京メトロ東西線「葛西」駅 徒歩4分
- 東京都江戸川区中葛西五丁目37番1
- 71.5m² / 2LDK+S(納戸)・3LDK
-
売出し中
- JR総武線「平井」駅 徒歩10分
- 9,000万円~12,000万円
- JR総武線「平井」駅 徒歩10分
- 東京都江戸川区平井六丁目2375(地番)(アクアレジデンス)、平井六丁目1745(地番)(ブリーズレジデンス)、平井六丁目1729-3(地番)(コンフォートレジデンス)
- 80.72m² / 2LD・K+S(納戸)~4LD・K
-
売出し中
- 東京メトロ東西線「西葛西」駅 徒歩13分
- 未定
- 東京メトロ東西線「西葛西」駅 徒歩13分
- 東京都江戸川区西葛西8丁目21番9(地番)
- 72.01m² / 3LDK
-
売出し中
- JR総武線「小岩」駅 徒歩3分
- 一般販売住戸:未定
- JR総武線「小岩」駅 徒歩3分
- 東京都江戸川区西小岩1丁目2170
- 85.29m² / 一般販売住戸:1LDK~3LDK
-
売出し中
- 都営新宿線「瑞江」駅 徒歩10分
- 未定
- 都営新宿線「瑞江」駅 徒歩10分
- 東京都江戸川区東瑞江2丁目29-2(地名地番)
- 83.5m² / 3LDK・4LDK
-
売出し中
- 都営新宿線「瑞江」駅 徒歩6分
- 未定
- 都営新宿線「瑞江」駅 徒歩6分
- 東京都江戸川区東瑞江一丁目143番2、143番5、143番15(地番)
- 77.82m² / 2LDK・3LDK
-
売出し中
- プラウドタワー小岩フロント
- 1億4000万円
- JR総武線 小岩駅 徒歩3分
- 東京都江戸川区南小岩6丁目
- 75.51m² / 3LDK
-
売出し中
- パークシティ小岩ザタワー
- 1億6880万円
- JR総武線 小岩駅 徒歩3分
- 東京都江戸川区西小岩1丁目
- 86.03m² / 3LDK
中古マンション
-
売出し中
- 南小岩ハイデンス
- 3890万円
- JR総武線 小岩駅 徒歩6分
- 東京都江戸川区南小岩6丁目5-10
- 67.2m² / 3LDK
-
売出し中
- クリオ南小岩
- 6980万円
- JR総武線 小岩駅 徒歩4分
- 東京都江戸川区南小岩8丁目18-13
- 63.43m² / 2LDK
-
売出し中
- 大捷・アニメティハイム
- 4280万円
- JR総武線 小岩駅 徒歩5分
- 東京都江戸川区西小岩3丁目
- 52.2m² / 3DK
-
売出し中
- ナイスアーバン東小岩
- 8980万円
- JR総武線 小岩駅 徒歩10分
- 東京都江戸川区東小岩5丁目11-15
- 94.8m² / 4LDK
-
売出し中
- フドウアーバニティ西小岩
- 3780万円
- JR総武線 小岩駅 徒歩7分
- 東京都江戸川区西小岩3丁目12-3
- 71.3m² / 3LDK
-
売出し中
- パンテオン小岩
- 6680万円
- JR総武線 小岩駅 徒歩6分
- 東京都江戸川区西小岩5丁目11-22
- 75.22m² / 2LDK
-
売出し中
- モアアペックス西小岩
- 1億900万円
- JR総武線 小岩駅 徒歩7分
- 東京都江戸川区西小岩3丁目
- 196.0m² / 4LDK
一戸建て
-
売出し中
- 江戸川区南小岩6丁目 中古戸建
- 2500万円
- JR総武線 小岩駅 徒歩6分
- 東京都江戸川区南小岩6丁目
- 57.43m² / 2LDK
-
売出し中
- JR総武線「小岩」駅 徒歩5分
- 8,298万円
- JR総武線「小岩」駅 徒歩5分
- 東京都江戸川区西小岩1丁目
- 98.6m² / 3SLDK
-
売出し中
- 江戸川区西小岩1丁目賃貸併用住宅
- 1億3000万円
- JR総武線 小岩駅 徒歩5分
- 東京都江戸川区西小岩1丁目17-3
- 140.92m² / 3LDK
-
売出し中
- 江戸川区南小岩4丁目 新築戸建て
- 6280万円
- JR総武線 小岩駅 徒歩14分
- 東京都江戸川区南小岩4丁目
- 104.76m² / 4LDK
-
売出し中
- 新築戸建 江戸川区東小岩6丁目
- 8999万円
- JR総武線 小岩駅 徒歩7分
- 東京都江戸川区東小岩6丁目
- 135.7m² / 4LDK
-
売出し中
- 興宮町新築戸建て
- 4380万円
- JR総武線 小岩駅 徒歩18分
- 東京都江戸川区興宮町17-5
- 80.15m² / 3SLDK
-
売出し中
- 外観シンプルでスタイリッシュ 内装デザイン性の高い住空間
- 9580万円
- JR総武線 小岩駅 徒歩8分
- 東京都江戸川区西小岩4丁目
- 140.67m² / 3SLDK
-
売出し中
- 江戸川区上一色2丁目 新築一戸建て
- 6280万円
- JR総武線 小岩駅 徒歩16分
- 東京都江戸川区上一色2丁目
- 107.38m² / 2SLDK
-
売出し中
- 南道路「東小岩Newhouse」
- 8999万円
- JR総武線 小岩駅 徒歩8分
- 東京都江戸川区東小岩6丁目
- 126.3m² / 3SLDK
-
売出し中
- 南道路「東小岩Newhouse」
- 7299万円
- JR総武線 小岩駅 徒歩12分
- 東京都江戸川区東小岩6丁目
- 99.3m² / 2SLDK
注文住宅
※表示価格は延べ床面積約132m²の場合の建物価格の参考値です
-
資料請求受付中
- 3400万円〜
- へーベルハウス
- 【ヘーベルハウス】:ヘーベルハウス総合カタログ
-
資料請求受付中
- 2600万円〜
- 株式会社アイ工務店 東京支店
- 【東京 展示場ご来場者歓迎!】憧れのスキップフロアが叶える大収納【アイ工務店】
-
資料請求受付中
- 1868万円〜
- タマホーム株式会社
- 大安心の家シリーズ
-
資料請求受付中
- -
- アキュラホーム(AQ Group)
- 「超空間の家」
-
資料請求受付中
- -
- 積水ハウス
- BRAND BOOK
-
資料請求受付中
- 3000万円〜
- セキスイハイム
- 【セキスイハイム】総合カタログ(heimism)
-
資料請求受付中
- 2000万円〜
- 一条工務店
- 【一条工務店】 建築実例集3冊セット(HOME’S限定)
エリア・駅で絞り込んで探す
物件の種類から探す
江戸川区で募集中の物件のみを検索できます
掲載情報に誤りや問題がある場合
LIFULL HOME'Sは「不動産会社」ではなく「情報掲載サイト」です
- ※管理会社の情報はLIFULL HOME'Sでは保持していないためお答えできません。お問合せはお控えください
- ※最新の募集状況は掲載中の不動産会社があれば、不動産会社へ直接お問合せください
掲載情報の訂正依頼 専用ダイヤル
0120-987-243
- 専用ダイヤル受付時間:10:00〜18:00
- ※土日・祝日、臨時休業日は除く
不動産データのご利用について
不動産事業におけるDX、サービスの改善、新規事業開発等をご検討中の方へ不動産データの活用をご提案します。LIFULL HOME'Sで集約した不動産情報や外部データは、不動産事業DX、不正決済防止、ローン審査、事業開発、研究等さまざまな事業でご活用いただいています。詳しくは以下よりご確認ください。
不動産アーカイブご利用アンケートにご協力ください
不動産アーカイブの掲載情報は、LIFULL HOME'S掲載の不動産情報および提携先の不動産情報を統計情報として集積したものであり、その存在や信憑性を保証するものではありません。