このページは物件の広告情報ではありません。
過去にLIFULL HOME'Sへ掲載された不動産情報と提携先の地図情報を元に生成した参考情報です。また、一般から投稿された情報など主観的な情報も含みます。
情報更新日: 2026/02/10
プレミストタワー千里丘
| 所在地 | 大阪府摂津市千里丘一丁目703番(地番) |
|---|---|
| 交通 |
|
| 価格 | 5,900万円台~26,900万円台 |
| 最多価格帯 | 6,700万円台・6,900万円台(各2戸) |
| 管理費等 | 18,800円~42,200円 |
| 修繕積立金 | 6,800円~15,200円 |
スポンサーリンク
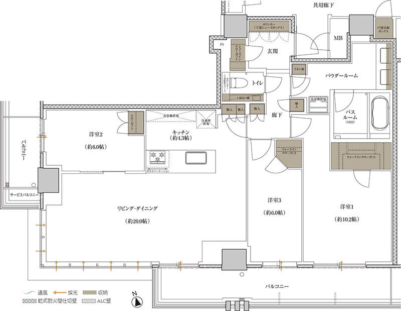
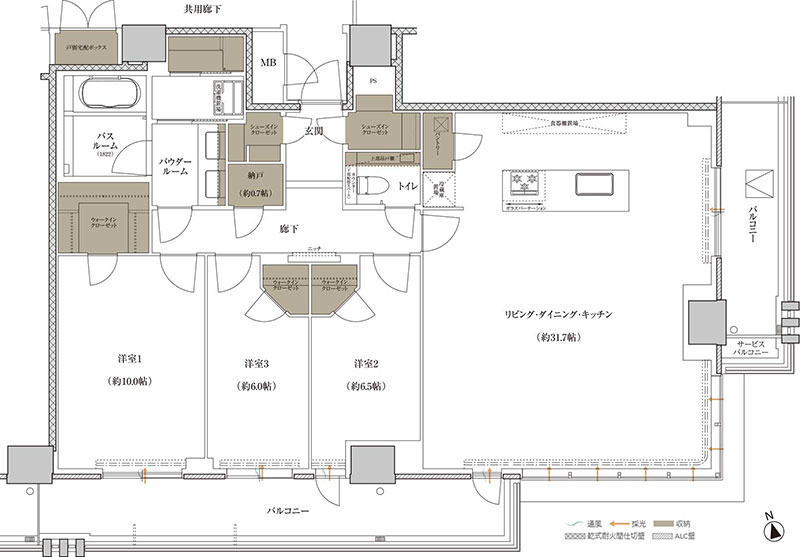
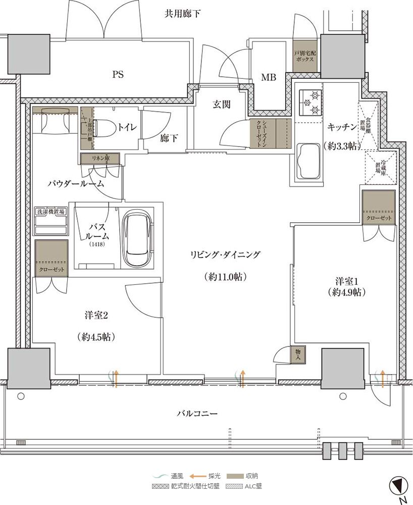
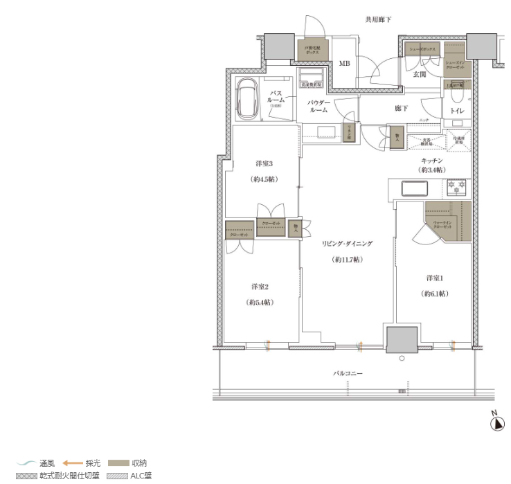
プレミストタワー千里丘の建物情報
物件概要
| 物件種別 | マンション |
|---|---|
| 築年月(築年数) | 2027年6月 (完成予定) |
| 建物構造 | RC造地上36階地下1階建(一部鉄骨造) |
| 販売個数(区画数) | 25戸 |
| 総戸数/総区画数 | 335戸 |
| 敷地全体面積 | 6,182.52m2 |
| 用途地域 | 商業 |
| 土地権利 | 所有権 |
| 国土法届出 | 届出不要 |
| 建築確認番号 | 第R05確認建築大阪府00044号(令和6年03月26日)/第R06確更建築大阪府00008号(令和7年01月21日)/第R07確更建築大阪府00010号(令和8年01月13日) |
| 施工会社 | 株式会社大林組 |
| 売主 | 大和ハウス工業株式会社 JR西日本不動産開発株式会社 株式会社フージャースコーポレーション 関電不動産開発株式会社 |
| 販売会社 | (売主・販売代理)大和ハウス工業株式会社 (売主)JR西日本不動産開発株式会社 (売主・販売代理)株式会社フージャースコーポレーション (売主)関電不動産開発株式会社 (販売代理・販売復代理)カンパニートラスト株式会社 (販売代理・販売復代理)株式会社アーク不動産 |
設備・条件
- 追い焚き
- 浴室乾燥機
- コンロ三口以上
- システムキッチン
- 食器洗い乾燥機
- ディスポーザー
- 浄水器・活水器
- 床暖房
- トランクルーム
- ウォークインクローゼット
- ブロードバンド
- シングル&DINKS向け
- 内廊下
- オートロック
- 防犯カメラ
- セキュリティ充実
- エレベーター
- ごみ出し24時間OK
- キッズルーム
- 宅配ボックス
- コンシェルジュサービス
- 住宅性能評価書
- 100m2以上
- スーパー800m以内
- コンビニ400m以内
- 小学校800m以内
※最新の状態と異なる場合があります
売りたい不動産をお持ちの方へ
このエリアの所有不動産を査定する
売却査定手続きの流れ、費用相場や注意点など不動産売却について詳しく知りたい方はLIFULL HOME'S 不動産査定へ
プレミストタワー千里丘の周辺施設
-
買い物
日用品 -
- セブンイレブン ハートインJR千里丘駅西口店
- セブンイレブン キヨスクJR千里丘駅改札口店
- ファミリーマート JR千里丘駅西口店
- ファミリーマート 千里丘北口店
- 買い物
大型店 -
- フォルテ摂津
- エディオン 千里丘駅前店
- ジョーシン 千里丘店
- グルメ
-
- ミスタードーナツ JR千里丘ショップ
- 焼肉酒家牛角千里丘店
- コメダ珈琲店千里丘駅東店
- ケンタッキーフライドチキン 千里丘店
- 娯楽施設
-
- 阪急レンタサイクル摂津
- 役所
公共施設 -
- 摂津千里丘郵便局
- 吹田市立千里丘図書館
- 吹田千里丘上郵便局
- 摂津香露園郵便局
- 医療
-
- 医療法人千里厚生会千里丘中央病院
- 医療法人徳洲会吹田徳洲会病院
- 保育施設
-
- 千里丘愛育園分園ひよこ園
- 認定こども園きりん愛育園分園うさぎ園
- 摂津市立子育て総合支援センター
- 勝久寺学園
- 学校
-
- 吹田市立山田第二小学校
- 摂津市立千里丘小学校
- 吹田市立南山田小学校
プレミストタワー千里丘周辺の物件情報
周辺の問合せ可能な物件
大阪府摂津市の問合せ可能な物件のうち、この物件の周辺にあるものから表示しています
賃貸
-
募集中
- シャーメゾン千里丘
- 9.5万円
- JR東海道・山陽本線 千里丘駅 徒歩5分
- 大阪府摂津市千里丘1丁目
- 47.43m² / 1LDK
-
募集中
- Lien Hills
- 9万円
- JR東海道・山陽本線 千里丘駅 徒歩5分
- 大阪府摂津市千里丘1丁目
- 40.17m² / 1LDK
-
募集中
- SERENiTE千里丘
- 6.4万円
- JR東海道・山陽本線 千里丘駅 徒歩1分
- 大阪府摂津市千里丘1丁目
- 23.45m² / 1K
-
募集中
- JR東海道・山陽本線 千里丘駅 徒歩1分
- 6.4万円
- JR東海道・山陽本線 千里丘駅 徒歩1分
- 大阪府摂津市千里丘1丁目6番15号
- 26.0m² / 1K
-
募集中
- OAZO千里丘
- 6.8万円
- JR東海道・山陽本線 千里丘駅 徒歩3分
- 大阪府摂津市千里丘1丁目4-9
- 26.82m² / 1K
-
募集中
- JR東海道・山陽本線 千里丘駅 徒歩3分
- 7.9万円
- JR東海道・山陽本線 千里丘駅 徒歩3分
- 大阪府摂津市千里丘1丁目
- 24.6m² / 1K
-
募集中
- S-RESIDENCE千里丘
- 7.9万円
- JR東海道・山陽本線 千里丘駅 徒歩3分
- 大阪府摂津市千里丘1丁目
- 24.6m² / 1K
-
募集中
- メルツハイム北村
- 6.3万円
- JR東海道・山陽本線 千里丘駅 徒歩3分
- 大阪府摂津市千里丘1丁目
- 35.67m² / 1DK
-
募集中
- JR東海道・山陽本線 千里丘駅 徒歩3分
- 6.7万円
- JR東海道・山陽本線 千里丘駅 徒歩3分
- 大阪府摂津市千里丘1丁目
- 35.67m² / 1DK
-
募集中
- JR東海道・山陽本線 千里丘駅 徒歩3分
- 7万円
- JR東海道・山陽本線 千里丘駅 徒歩3分
- 大阪府摂津市千里丘1丁目
- 40.0m² / 1LDK
中古マンション
-
売出し中
- 千里丘サニーハイツ
- 2280万円
- JR東海道・山陽本線 千里丘駅 徒歩3分
- 大阪府摂津市千里丘1丁目
- 64.18m² / 3LDK
-
売出し中
- 千里丘ビューハイツ
- 1580万円
- JR東海道・山陽本線 千里丘駅 徒歩11分
- 大阪府摂津市昭和園
- 60.5m² / 3LDK
-
売出し中
- ユニエス南千里丘
- 2250万円
- 阪急京都本線 摂津市駅 徒歩2分
- 大阪府摂津市南千里丘5
- 47.85m² / 1LDK
-
売出し中
- 野村ステイツ千里丘
- 2480万円
- JR東海道・山陽本線 岸辺駅 徒歩11分
- 大阪府摂津市千里丘東5丁目
- 61.36m² / 3LDK
-
売出し中
- エイジングコート千里丘
- 1400万円
- JR東海道・山陽本線 千里丘駅 徒歩15分
- 大阪府摂津市千里丘6丁目5
- 54.0m² / 2LDK
-
売出し中
- アドリーム千里丘
- 2880万円
- 大阪モノレール本線 摂津駅 徒歩7分
- 大阪府摂津市鶴野4丁目3
- 74.84m² / 3LDK
一戸建て
-
売出し中
- 摂津市千里丘東4丁目 一戸建て
- 3680万円
- 阪急京都本線 摂津市駅 徒歩7分
- 大阪府摂津市千里丘東4丁目20
- 92.32m² / 2LDK
-
売出し中
- 阪急京都本線「摂津市」駅 徒歩3分
- 3680万円
- 阪急京都本線「摂津市」駅 徒歩3分
- 大阪府摂津市千里丘東4丁目
- 92.32m² / 2LDK
-
売出し中
- リーブルガーデン摂津市千里丘東3期
- 3680万円
- 阪急京都本線 摂津市駅 徒歩3分
- 大阪府摂津市千里丘東4丁目20-29
- 92.32m² / 2LDK
-
売出し中
- 阪急京都本線「摂津市」駅 徒歩5分~6分
- 未定
- 阪急京都本線「摂津市」駅 徒歩5分~6分
- 大阪府摂津市庄屋二丁目295-7他
- 109.64m² / 4LDK(2号地、5号地)
-
売出し中
- 摂津市千里丘東5丁目 中古テラス
- 550万円
- 阪急京都本線 摂津市駅 徒歩10分
- 大阪府摂津市千里丘東5丁目
- 41.77m² / 3DK
-
売出し中
- 摂津市千里丘東5丁目 一戸建て
- 4998万円
- 阪急京都本線 摂津市駅 徒歩11分
- 大阪府摂津市千里丘東5丁目17
- 105.36m² / 4LDK
-
売出し中
- 阪急京都本線「摂津市」駅 徒歩9分
- 4998万円
- 阪急京都本線「摂津市」駅 徒歩9分
- 大阪府摂津市千里丘東5丁目
- 105.36m² / 4LDK
注文住宅
※表示価格は延べ床面積約132m²の場合の建物価格の参考値です
-
資料請求受付中
- 2432万円〜
- ヤマト住建株式会社
- 【LEGANTIA】邸宅の頂点がここにある。受け継がれる価値、未来へ続く邸宅
-
資料請求受付中
- 1868万円〜
- タマホーム株式会社
- 大安心の家シリーズ
-
資料請求受付中
- 3200万円〜
- 株式会社リブランド
- 【子どもの才能を引き出す家づくりとは?】リブランド コンセプトブック
-
資料請求受付中
- -
- 積水ハウス
- BRAND BOOK
-
資料請求受付中
- 3200万円〜
- 三井ホーム株式会社
- 三井ホームのご紹介
-
資料請求受付中
- 2800万円〜
- ミサワホーム株式会社
- 【MISAWA】ミサワホーム代表カタログ3冊セット(HOME'S限定)
-
資料請求受付中
- 3000万円〜
- 株式会社スウェーデンハウス
- 【スウェーデンハウス】お客様満足度総合第1位の声「No.1 Sweden House News」
-
資料請求受付中
- 2000万円〜
- 一条工務店
- 【一条工務店】 建築実例集3冊セット(HOME’S限定)
-
資料請求受付中
- 3000万円〜
- セキスイハイム
- 【セキスイハイム|平屋】ザ・デザイナーズハイムD1
エリア・駅で絞り込んで探す
大阪府のプレミストが含まれるマンション
物件の種類から探す
摂津市で募集中の物件のみを検索できます
掲載情報に誤りや問題がある場合
LIFULL HOME'Sは「不動産会社」ではなく「情報掲載サイト」です
- ※管理会社の情報はLIFULL HOME'Sでは保持していないためお答えできません。お問合せはお控えください
- ※最新の募集状況は掲載中の不動産会社があれば、不動産会社へ直接お問合せください
掲載情報の訂正依頼 専用ダイヤル
0120-987-243
- 専用ダイヤル受付時間:10:00〜18:00
- ※土日・祝日、臨時休業日は除く
不動産データのご利用について
不動産事業におけるDX、サービスの改善、新規事業開発等をご検討中の方へ不動産データの活用をご提案します。LIFULL HOME'Sで集約した不動産情報や外部データは、不動産事業DX、不正決済防止、ローン審査、事業開発、研究等さまざまな事業でご活用いただいています。詳しくは以下よりご確認ください。
不動産アーカイブご利用アンケートにご協力ください
不動産アーカイブの掲載情報は、LIFULL HOME'S掲載の不動産情報および提携先の不動産情報を統計情報として集積したものであり、その存在や信憑性を保証するものではありません。