このページは物件の広告情報ではありません。
過去にLIFULL HOME'Sへ掲載された不動産情報と提携先の地図情報を元に生成した参考情報です。また、一般から投稿された情報など主観的な情報も含みます。
情報更新日: 2025/11/26
Brillia City ふじみ野
スポンサーリンク
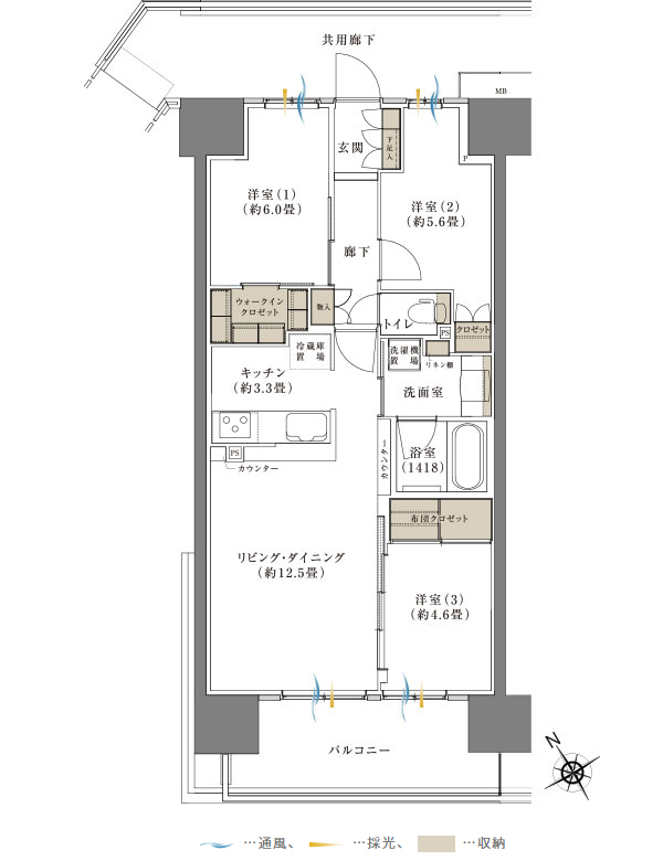
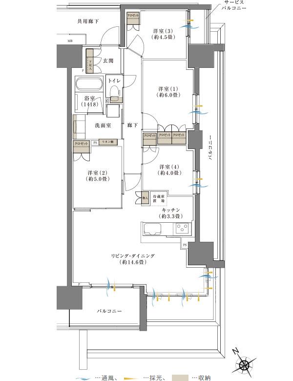
Brillia City ふじみ野の建物情報
物件概要
| 物件種別 | マンション |
|---|---|
| 築年月(築年数) | 2024年10月 (築2年) |
| 建物構造 | 鉄筋コンクリート造地上15階建て |
| 総戸数/総区画数 | 708戸 |
| 敷地全体面積 | 26,446.96m2 |
| 用途地域 | 第二種住居 |
| 地目 | 宅地 |
| 土地権利 | 所有権 |
| 建築確認番号 | 1街区:第UHEC建確R020411(2020年10月16日付)、2街区:第UHEC建確R020412 (2020年10月16日付) |
| 施工会社 | 株式会社長谷工コーポレーション |
| 売主 | 東京建物株式会社、近鉄不動産株式会社 首都圏事業本部、大和ハウス工業株式会社 マンション事業本部、株式会社長谷工不動産 |
| 販売会社 | 株式会社長谷工アーベスト(代理)、東京建物株式会社(代理) |
設備・条件
- 追い焚き
- 浴室乾燥機
- コンロ三口以上
- システムキッチン
- 食器洗い乾燥機
- 浄水器・活水器
- ウォークインクローゼット
- ブロードバンド
- 4LDK以上
- バリアフリー
- 複層ガラス採用(二重サッシ・防犯サッシ等)
- オートロック
- 防犯カメラ
- セキュリティ充実
- エレベーター
- ごみ出し24時間OK
- ペット用施設
- 宅配ボックス
- 住宅性能評価書
- 南向き
- 子育てに優しい環境
- スーパー800m以内
- コンビニ400m以内
- 小学校800m以内
- 公園400m以内
※最新の状態と異なる場合があります
売りたい不動産をお持ちの方へ
このエリアの所有不動産を査定する
売却査定手続きの流れ、費用相場や注意点など不動産売却について詳しく知りたい方はLIFULL HOME'S 不動産査定へ
Brillia City ふじみ野の周辺施設
-
買い物
日用品 -
- ヤオコー ふじみ野大原店
- サンドラッグふじみ野大原店
- ファミリーマート 大原店
- ドラッグセイムスふじみ野清見店
- 買い物
大型店 -
- コジマ×ビックカメラ イオンタウンふじみ野店
- マックハウス イオンタウンふじみ野店
- ココネ上福岡
- グルメ
-
- デニーズ 上福岡店
- ジョナサン 上福岡店
- スターバックスコーヒーふじみ野清見店
- サイゼリヤ イオンタウンふじみ野店
- 娯楽施設
-
- 福岡中央公園
- namcoイオンタウンふじみ野店
- 上福岡西友テニススクール
- 役所
公共施設 -
- ふじみ野市役所
- 上福岡郵便局(イオンタウンふじみ野内)
- 上福岡郵便局(ゆうゆう窓口)
- 上福岡北口郵便局
- 医療
-
- 医療法人社団草芳会三芳野第2病院
- 保育施設
-
- ふじみ野市立上野台保育所
- 香取第二幼稚園
- なかよし保育園
- 幼保連携型認定こども園星和幼稚園
- 学校
-
- ふじみ野市立上野台小学校
- 川越市立寺尾小学校
- 川越市立寺尾中学校
- ふじみ野市立福岡中学校
Brillia City ふじみ野周辺の物件情報
周辺の問合せ可能な物件
埼玉県ふじみ野市の問合せ可能な物件のうち、この物件の周辺にあるものから表示しています
賃貸
-
募集中
- 東武東上線 上福岡駅 徒歩14分
- 17.5万円
- 東武東上線 上福岡駅 徒歩14分
- 埼玉県ふじみ野市大原2丁目5-12 1
- 103.23m² / 2SLDK
-
募集中
- 東武東上線 上福岡駅 徒歩13分
- 15.8万円
- 東武東上線 上福岡駅 徒歩13分
- 埼玉県ふじみ野市大原2丁目
- 103.23m² / 2SLDK
-
募集中
- 東武東上線 上福岡駅 徒歩14分
- 18万円
- 東武東上線 上福岡駅 徒歩14分
- 埼玉県ふじみ野市大原2丁目5-12
- 103.23m² / 2SLDK
-
募集中
- ふじみ野市大原2丁目戸建
- 15.8万円
- 東武東上線 上福岡駅 徒歩13分
- 埼玉県ふじみ野市大原2丁目
- 103.23m² / 2SLDK
-
募集中
- セントラルふじみ野
- 5.8万円
- 東武東上線 上福岡駅 徒歩10分
- 埼玉県ふじみ野市大原1丁目
- 24.29m² / 1K
-
募集中
- マルスハイツ大原
- 6.5万円
- 東武東上線 上福岡駅 徒歩13分
- 埼玉県ふじみ野市大原2丁目4-24
- 34.19m² / 1LDK
-
募集中
- スター・ヴィヴレ
- 7.3万円
- 東武東上線 上福岡駅 徒歩11分
- 埼玉県ふじみ野市大原2丁目
- 56.03m² / 3DK
-
募集中
- 東武東上線 上福岡駅 徒歩13分
- 6.5万円
- 東武東上線 上福岡駅 徒歩13分
- 埼玉県ふじみ野市大原2丁目
- 34.19m² / 1LDK
-
募集中
- 東武東上線 上福岡駅 徒歩8分
- 3万円
- 東武東上線 上福岡駅 徒歩8分
- 埼玉県ふじみ野市大原2丁目3-17
- 20.0m² / ワンルーム
-
募集中
- フラットハイツ上福岡
- 3万円
- 東武東上線 上福岡駅 徒歩8分
- 埼玉県ふじみ野市大原2丁目3-17
- 10.5m² / ワンルーム
中古マンション
-
売出し中
- サンクレイドル上福岡
- 2780万円
- 東武東上線 上福岡駅 徒歩15分
- 埼玉県ふじみ野市福岡1丁目
- 75.04m² / 3SLDK
-
売出し中
- ライオンズマンション上福岡第3
- 2490万円
- 東武東上線 上福岡駅 徒歩16分
- 埼玉県ふじみ野市上福岡1丁目15-20
- 75.65m² / 3LDK
-
売出し中
- パークプレゾン上福岡
- 3700万円
- 東武東上線 上福岡駅 徒歩6分
- 埼玉県ふじみ野市上福岡1丁目
- 63.5m² / 3LDK
-
売出し中
- クレストコート上福岡
- 1790万円
- 東武東上線 上福岡駅 徒歩3分
- 埼玉県ふじみ野市上福岡1丁目
- 51.8m² / 2LDK
-
売出し中
- オハナふじみ野上野台ブロッサム 中古マンション
- 3980万円
- 東武東上線 上福岡駅 徒歩10分
- 埼玉県ふじみ野市上野台1丁目
- 72.26m² / 3LDK
-
売出し中
- コスモ上福岡プレステージ
- 3580万円
- 東武東上線 上福岡駅 徒歩4分
- 埼玉県ふじみ野市上福岡1丁目5-12
- 83.07m² / 3LDK
-
売出し中
- キャッスルマンション上福岡
- 450万円
- 東武東上線 上福岡駅 徒歩7分
- 埼玉県ふじみ野市福岡中央1丁目1-15
- 18.81m² / ワンルーム
-
売出し中
- 上福岡グロリアハイツ
- 1290万円
- 東武東上線 上福岡駅 徒歩4分
- 埼玉県ふじみ野市上福岡1丁目
- 46.0m² / 1LDK
-
売出し中
- ライオンズ上福岡ステーションレジデンス
- 3990万円
- 東武東上線 上福岡駅 徒歩2分
- 埼玉県ふじみ野市上福岡1丁目
- 70.78m² / 3LDK
-
売出し中
- フラワーキャッスル上福岡
- 2080万円
- 東武東上線 上福岡駅 徒歩5分
- 埼玉県ふじみ野市上福岡3丁目
- 53.56m² / 3DK
一戸建て
-
売出し中
- ふじみ野市大原全1棟 新築戸建
- 3690万円
- 東武東上線 上福岡駅 徒歩13分
- 埼玉県ふじみ野市大原2丁目
- 87.97m² / 4LDK
-
売出し中
- ふじみ野市大原全1棟 新築戸建
- 4480万円
- 東武東上線 上福岡駅 徒歩13分
- 埼玉県ふじみ野市大原2丁目
- 90.66m² / 2SLDK
-
売出し中
- ふじみ野市大原2丁目全2棟 B号棟
- 3740万円
- 東武東上線 上福岡駅 徒歩9分
- 埼玉県ふじみ野市大原2丁目
- 84.87m² / 3LDK
-
売出し中
- 中古/ふじみ野市大原2丁目
- 1230万円
- 東武東上線 上福岡駅 徒歩12分
- 埼玉県ふじみ野市大原2丁目
- 53.82m² / 1LDK
-
売出し中
- ふじみ野市元福岡第2期全1棟 新築戸建
- 3580万円
- 東武東上線 上福岡駅 徒歩15分
- 埼玉県ふじみ野市元福岡1丁目
- 98.95m² / 4LDK
-
売出し中
- ふじみ野市元福岡第2期
- 3680万円
- 東武東上線 上福岡駅 徒歩15分
- 埼玉県ふじみ野市元福岡1丁目
- 98.95m² / 4LDK
-
売出し中
- ふじみ野市北野2丁目 新築一戸建住宅 全2棟 (ふじみ野店)
- 3699万円
- 東武東上線 上福岡駅 徒歩10分
- 埼玉県ふじみ野市北野2丁目
- 102.68m² / 4LDK
-
売出し中
- 東武東上線「上福岡」駅 徒歩17分
- 5,980万円・6,980万円(各税込)
- 東武東上線「上福岡」駅 徒歩17分
- 埼玉県ふじみ野市清見二丁目5番22及び5番50
- 162.57m² / 3LDK+FC+SC
-
売出し中
- ふじみ野市元福岡1丁目 新築一戸建て 3期 2号棟
- 3899万円
- 東武東上線 上福岡駅 徒歩17分
- 埼玉県ふじみ野市元福岡1丁目
- 105.12m² / 4LDK
-
売出し中
- ふじみ野市元福岡1丁目 新築一戸建て 3期 1号棟
- 3799万円
- 東武東上線 上福岡駅 徒歩17分
- 埼玉県ふじみ野市元福岡1丁目
- 105.65m² / 4LDK
注文住宅
※表示価格は延べ床面積約132m²の場合の建物価格の参考値です
-
資料請求受付中
- 3000万円〜
- 株式会社スウェーデンハウス
- 【スウェーデンハウス】お客様満足度総合第1位の声「No.1 Sweden House News」
-
資料請求受付中
- -
- へーベルハウス
- 【ヘーベルハウス】:ヘーベルハウス総合カタログ
-
資料請求受付中
- 2324万円〜
- ヤマト住建株式会社
- 【エネージュLCCM】脱炭素社会へ!住まいのすべての過程でCO2排出量を抑える住宅
-
資料請求受付中
- 3000万円〜
- セキスイハイム
- 【セキスイハイム|平屋】ザ・デザイナーズハイムD1
-
資料請求受付中
- 1868万円〜
- タマホーム株式会社
- 大安心の家シリーズ
-
資料請求受付中
- 3040万円〜
- 川木建設株式会社
- 子どもがすくすく育つ家
-
資料請求受付中
- 2000万円〜
- 一条工務店
- 【一条工務店】 建築実例集3冊セット(HOME’S限定)
エリア・駅で絞り込んで探す
埼玉県のBrillia(ブリリア)が含まれるマンション
周辺の建物情報
物件の種類から探す
ふじみ野市で募集中の物件のみを検索できます
掲載情報に誤りや問題がある場合
LIFULL HOME'Sは「不動産会社」ではなく「情報掲載サイト」です
- ※管理会社の情報はLIFULL HOME'Sでは保持していないためお答えできません。お問合せはお控えください
- ※最新の募集状況は掲載中の不動産会社があれば、不動産会社へ直接お問合せください
掲載情報の訂正依頼 専用ダイヤル
0120-987-243
- 専用ダイヤル受付時間:10:00〜18:00
- ※土日・祝日、臨時休業日は除く
不動産データのご利用について
不動産事業におけるDX、サービスの改善、新規事業開発等をご検討中の方へ不動産データの活用をご提案します。LIFULL HOME'Sで集約した不動産情報や外部データは、不動産事業DX、不正決済防止、ローン審査、事業開発、研究等さまざまな事業でご活用いただいています。詳しくは以下よりご確認ください。
不動産アーカイブご利用アンケートにご協力ください
不動産アーカイブの掲載情報は、LIFULL HOME'S掲載の不動産情報および提携先の不動産情報を統計情報として集積したものであり、その存在や信憑性を保証するものではありません。