このページは物件の広告情報ではありません。
過去にLIFULL HOME'Sへ掲載された不動産情報と提携先の地図情報を元に生成した参考情報です。また、一般から投稿された情報など主観的な情報も含みます。
情報更新日: 2026/03/04
ブランズシティ調布
スポンサーリンク
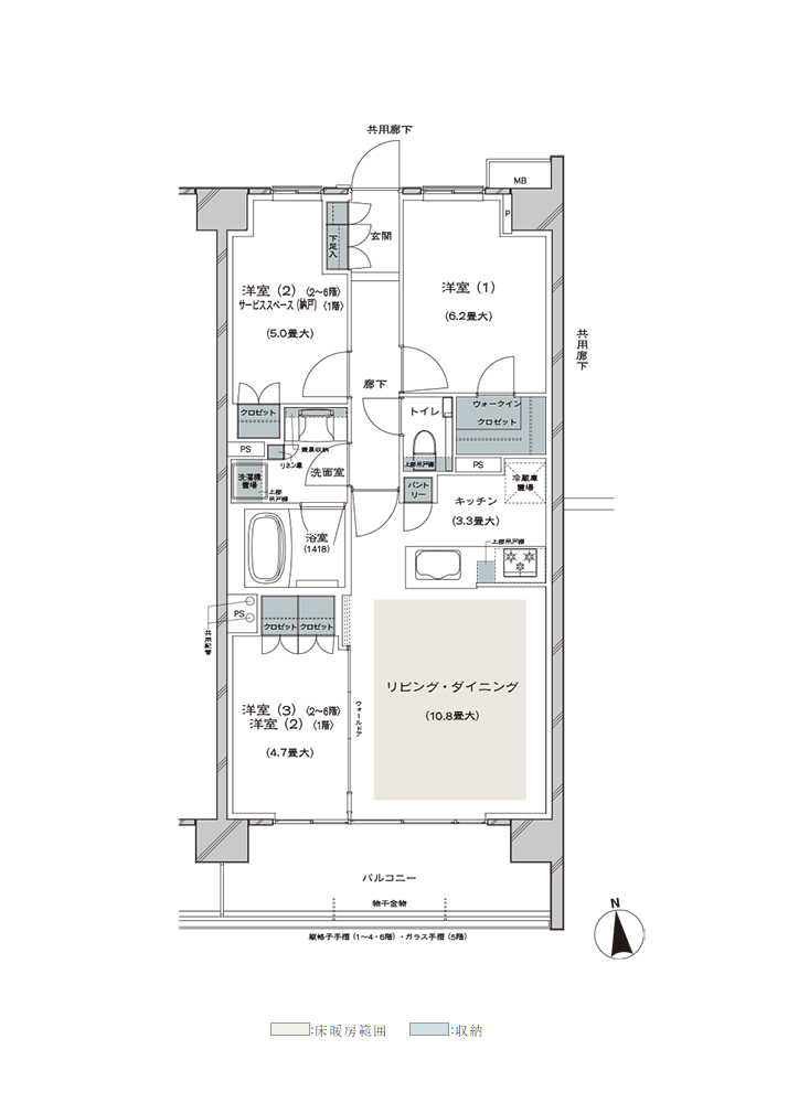
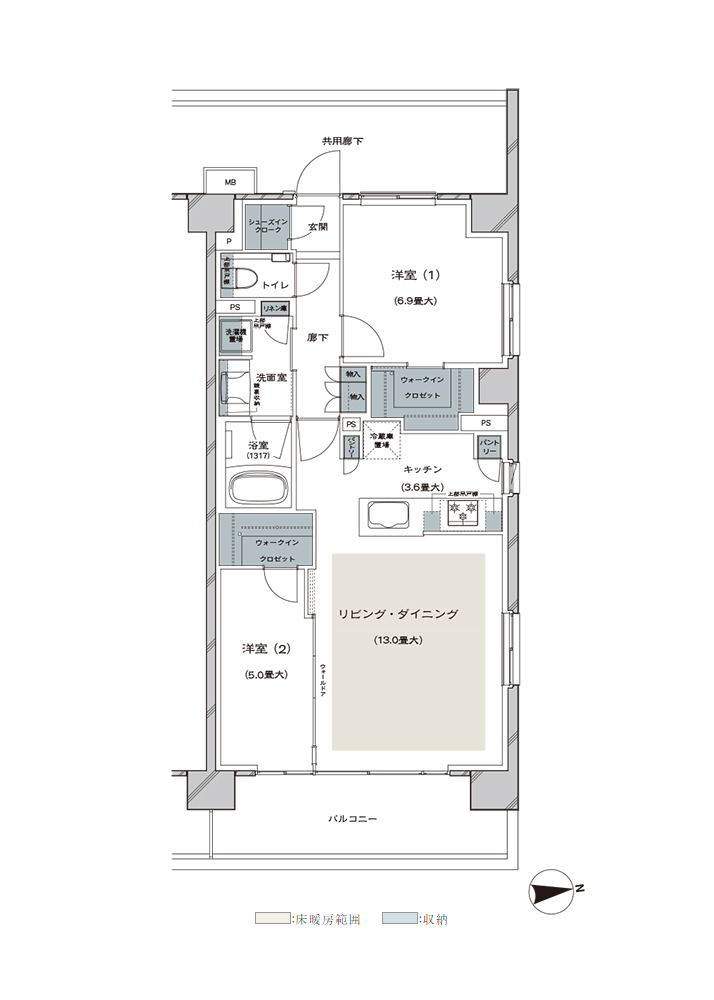
ブランズシティ調布の建物情報
物件概要
| 物件種別 | マンション |
|---|---|
| 築年月(築年数) | 2021年1月 (築6年) |
| 建物構造 | 鉄筋コンクリート造 地上8階 地下2階建 |
| 総戸数/総区画数 | 305戸 |
| 敷地全体面積 | 9,920.49平米 |
| 延べ床面積 | 4507.09平米 |
| 用途地域 | 準工業 |
| 土地権利 | 所有権 |
| 建築確認番号 | 第H30確認建築CIAS01901号(平成30年12月18日付),第2019確更建築CIAS00067号(令和1年6月14日付) |
| 施工会社 | 不二建設株式会社 |
| 売主 | 東急不動産株式会社(売主)・エヌ・ティ・ティ都市開発株式会社(売主)・近鉄不動産株式会社首都圏事業本部(売主) |
| 販売会社 | 東急リバブル株式会社(販売代理) |
設備・条件
- 追い焚き
- 浴室乾燥機
- コンロ三口以上
- システムキッチン
- ディスポーザー
- 浄水器・活水器
- 床暖房
- トランクルーム
- ウォークインクローゼット
- 4LDK以上
- 複層ガラス採用(二重サッシ・防犯サッシ等)
- オートロック
- セキュリティ充実
- エレベーター
- ごみ出し24時間OK
- キッズルーム
- 宅配ボックス
- コンシェルジュサービス
- デザイナーズ
- 即入居可
- 子育てに優しい環境
- スーパー800m以内
- コンビニ400m以内
- 小学校800m以内
- 総合病院800m以内
- 公園400m以内
- フィットネス施設(プール含む)800m以内
※最新の状態と異なる場合があります
売りたい不動産をお持ちの方へ
ブランズシティ調布の周辺施設
-
買い物
日用品 -
- サンドラッグ調布ヶ丘店
- ダイソーマルエツ調布店
- マルエツ 調布店
- セブンイレブン 調布ヶ丘1丁目店
- 買い物
大型店 -
- 調布パルコ
- ノジマ 調布パルコ店
- ライトオン トリエ京王調布店
- ハンズビートリエ京王調布店
- グルメ
-
- カフェコロラド調布店
- 焼肉酒家牛角調布店
- マクドナルド 20号調布店
- マクドナルド 調布北口店
- 娯楽施設
-
- 布多公園
- イオンシネマシアタス調布
- 快活CLUBビジネス&リラックスルーム調布南口店
- 快活CLUB調布国領店
- 役所
公共施設 -
- 調布駅前郵便局
- 調布八雲台郵便局
- 調布市立図書館富士見分館
- 調布市立中央図書館
- 医療
-
- 医療法人社団大坪会北多摩病院
- 医療法人社団飯野病院
- 医療法人社団東山会調布東山病院
- 保育施設
-
- 上布田保育園
- 調布ヶ丘ちとせ保育園
- 調布エンジェル保育園
- 下布田保育園
- 学校
-
- 私立桐朋学園大学音楽学部調布キャンパス
- 国立電気通信大学
- 調布市立第一小学校
- 調布市立八雲台小学校
※学区外の学校が含まれる場合があります。実際の学区は必ず各自治体へご確認ください。
ブランズシティ調布周辺の物件情報
周辺の問合せ可能な物件
東京都調布市の問合せ可能な物件のうち、この物件の周辺にあるものから表示しています
賃貸
-
募集中
- ブランズシティ調布
- 24.5万円
- 京王線 調布駅 徒歩7分
- 東京都調布市調布ケ丘1丁目18-93
- 69.54m² / 3LDK
-
募集中
- 京王線 調布駅 徒歩7分
- 24.5万円
- 京王線 調布駅 徒歩7分
- 東京都調布市調布ケ丘1丁目
- 69.54m² / 3LDK
-
募集中
- 川崎荘
- 10.5万円
- 京王線 調布駅 徒歩8分
- 東京都調布市調布ケ丘1丁目30-13
- 40.42m² / 1LDK
-
募集中
- 京王線 調布駅 徒歩8分
- 10.5万円
- 京王線 調布駅 徒歩8分
- 東京都調布市調布ケ丘1丁目30-13
- 40.42m² / 1LDK
-
募集中
- ドエル調布ヶ丘
- 6.2万円
- 京王線 調布駅 徒歩7分
- 東京都調布市調布ケ丘1丁目
- 26.18m² / 1K
-
募集中
- 清明ハイツ
- 5.7万円
- 京王線 調布駅 徒歩7分
- 東京都調布市調布ケ丘2丁目22-8
- 19.0m² / 1K
-
募集中
- 京王線 調布駅 徒歩5分
- 5.1万円
- 京王線 調布駅 徒歩5分
- 東京都調布市調布ケ丘1丁目
- 16.56m² / ワンルーム
-
募集中
- ラクレールリビエール
- 5.1万円
- 京王線 調布駅 徒歩6分
- 東京都調布市調布ケ丘1丁目33-7
- 16.56m² / ワンルーム
-
募集中
- 京王線 調布駅 徒歩14分
- 16.5万円
- 京王線 調布駅 徒歩14分
- 東京都調布市調布ケ丘1丁目18-76
- 75.7m² / 3LDK
-
募集中
- 豊栄アンバサダー調布
- 16.5万円
- 京王線 調布駅 徒歩14分
- 東京都調布市調布ケ丘1丁目18-76
- 75.7m² / 3LDK
新築マンション
※完成後1年以上経過した未入居の物件が含まれている場合があります
-
売出し中
- 京王相模原線「京王多摩川」駅 徒歩2分
- 未定
- 京王相模原線「京王多摩川」駅 徒歩2分
- 東京都調布市多摩川4丁目15番地4の一部外(東京都調布市多摩川4丁目 京王多摩川駅周辺地区土地区画整理事業施行地区内 街区番号2 符号1)
- 86.94m² / 1LDK~4LDK
-
売出し中
- 京王線「調布」駅 徒歩5分
- 未定
- 京王線「調布」駅 徒歩5分
- 東京都調布市小島町二丁目42番地1外(地番)
- 73.77m² / 1LD・K~3LD・K
-
売出し中
- 小田急線「狛江」駅徒歩20分(B棟エントランスより)/徒歩21分(D棟・E棟エントランスより)/徒歩22分(A棟・C棟・G棟エントランスより)/徒歩24分(F棟エントランスより) A棟より徒歩6分、C棟より徒歩5分、D棟・E棟・F棟より徒歩4分、G棟より徒歩3分の「シティテラス多摩川」(午後回り)バス停から「狛江駅北口」バス停まで約11分(平常時約11分) B棟より徒歩4分の「多摩川住宅南口」バス停から「狛江駅北口」バス停まで約8分(平常時約8分) A棟・C棟・E棟より徒歩4分、B棟より徒歩6分、D棟より徒歩5分、F棟より徒歩2分、G棟より徒歩3分の「シティテラス多摩川」(午前回り)バス停から「調布駅南口」バス停まで約21分(平常時約21分) A棟より徒歩6分、B棟・C棟より徒歩5分、D棟・E棟・F棟より徒歩4分、G棟より徒歩3分の「シティテラス多摩川」(午後回り)バス停から「調布駅南口」バス停まで約19分(日中時)
- 4,200万円~7,600万円
- 小田急線「狛江」駅徒歩20分(B棟エントランスより)/徒歩21分(D棟・E棟エントランスより)/徒歩22分(A棟・C棟・G棟エントランスより)/徒歩24分(F棟エントランスより) A棟より徒歩6分、C棟より徒歩5分、D棟・E棟・F棟より徒歩4分、G棟より徒歩3分の「シティテラス多摩川」(午後回り)バス停から「狛江駅北口」バス停まで約11分(平常時約11分) B棟より徒歩4分の「多摩川住宅南口」バス停から「狛江駅北口」バス停まで約8分(平常時約8分) A棟・C棟・E棟より徒歩4分、B棟より徒歩6分、D棟より徒歩5分、F棟より徒歩2分、G棟より徒歩3分の「シティテラス多摩川」(午前回り)バス停から「調布駅南口」バス停まで約21分(平常時約21分) A棟より徒歩6分、B棟・C棟より徒歩5分、D棟・E棟・F棟より徒歩4分、G棟より徒歩3分の「シティテラス多摩川」(午後回り)バス停から「調布駅南口」バス停まで約19分(日中時)
- 東京都調布市染地三丁目1-811、同番943(地番)
- 81.34m² / 2LD・K~4LD・K
中古マンション
-
売出し中
- 豊栄アンバサダー調布
- 4098万円
- 京王相模原線 調布駅 徒歩12分
- 東京都調布市調布ケ丘1丁目
- 57.14m² / 3LDK
-
売出し中
- 調布ヶ丘ハイツ
- 3780万円
- 京王線 調布駅 徒歩6分
- 東京都調布市布田2丁目
- 59.79m² / 2LDK
-
売出し中
- スィートハウスソフィア調布ヶ丘
- 6980万円
- 京王線 調布駅 徒歩15分
- 東京都調布市調布ケ丘3丁目
- 73.3m² / 3LDK
-
売出し中
- 調布が丘パーク・ホームズ
- 6380万円
- 京王線 調布駅 徒歩13分
- 東京都調布市調布ケ丘3丁目39
- 62.3m² / 2LDK
-
売出し中
- 調布ザ・ハウス
- 8280万円
- 京王線 調布駅 徒歩9分
- 東京都調布市調布ケ丘2丁目
- 68.75m² / 3LDK
-
売出し中
- コートプラザ調布
- 4680万円
- 京王線 調布駅 徒歩1分
- 東京都調布市布田1丁目
- 40.73m² / 1LDK
-
売出し中
- 調布ロイヤルハイツ
- 4498万円
- 京王線 調布駅 徒歩14分
- 東京都調布市富士見町3丁目
- 74.48m² / 3LDK
-
売出し中
- カメヤビル
- 1400万円
- 京王線 調布駅 徒歩4分
- 東京都調布市小島町1丁目
- 31.3m² / 1DK
一戸建て
-
売出し中
- 京王線 調布駅 徒歩3分
- 8900万円
- 京王線 調布駅 徒歩3分
- 東京都調布市布田1丁目
- 80.69m² / 3LDK
-
売出し中
- 京王線 布田駅 徒歩6分
- 6580万円
- 京王線 布田駅 徒歩6分
- 東京都調布市布田2丁目
- 92.96m² / 2SLDK
-
売出し中
- 調布市調布ヶ丘4丁目 新築分譲住宅
- 6380万円
- 京王線 調布駅 バス3分 富士見町三丁目下車 徒歩14分
- 東京都調布市調布ケ丘4丁目
- 80.35m² / 2SLDK
-
売出し中
- 調布市調布ケ丘4丁目 中古戸建
- 6180万円
- 京王線 調布駅 徒歩15分
- 東京都調布市調布ケ丘4丁目
- 76.95m² / 3LDK
-
売出し中
- 京王線「調布」駅 徒歩15分
- 4980万円
- 京王線「調布」駅 徒歩15分
- 東京都調布市富士見町2
- 77.25m² / 3LDK
-
売出し中
- 調布市八雲台1丁目 中古戸建
- 7980万円
- 京王線 国領駅 徒歩10分
- 東京都調布市八雲台1丁目
- 89.1m² / 2LDK
-
売出し中
- 調布小島町中古戸建て
- 1億6500万円
- 京王線 調布駅 徒歩5分
- 東京都調布市小島町2丁目
- 103.72m² / 4LDK
注文住宅
※表示価格は延べ床面積約132m²の場合の建物価格の参考値です
-
資料請求受付中
- 3000万円〜
- 株式会社スウェーデンハウス
- 【スウェーデンハウス】お客様満足度総合第1位の声「No.1 Sweden House News」
-
資料請求受付中
- -
- アキュラホーム(AQ Group)
- 「超空間の家」
-
資料請求受付中
- 2000万円〜
- 一条工務店
- 【一条工務店】 建築実例集3冊セット(HOME’S限定)
-
資料請求受付中
- 2800万円〜
- ミサワホーム株式会社
- 【MISAWA】ミサワホーム代表カタログ3冊セット(HOME'S限定)
-
資料請求受付中
- -
- 積水ハウス
- BRAND BOOK
-
資料請求受付中
- 3000万円〜
- セキスイハイム
- 【セキスイハイム|平屋】ザ・デザイナーズハイムD1
-
資料請求受付中
- 3200万円〜
- 三井ホーム株式会社
- 三井ホームのご紹介
-
資料請求受付中
- 1868万円〜
- タマホーム株式会社
- 大安心の家シリーズ
エリア・駅で絞り込んで探す
東京都のブランズが含まれるマンション
物件の種類から探す
調布市で募集中の物件のみを検索できます
掲載情報に誤りや問題がある場合
LIFULL HOME'Sは「不動産会社」ではなく「情報掲載サイト」です
- ※管理会社の情報はLIFULL HOME'Sでは保持していないためお答えできません。お問合せはお控えください
- ※最新の募集状況は掲載中の不動産会社があれば、不動産会社へ直接お問合せください
掲載情報の訂正依頼 専用ダイヤル
0120-987-243
- 専用ダイヤル受付時間:10:00〜18:00
- ※土日・祝日、臨時休業日は除く
不動産データのご利用について
不動産事業におけるDX、サービスの改善、新規事業開発等をご検討中の方へ不動産データの活用をご提案します。LIFULL HOME'Sで集約した不動産情報や外部データは、不動産事業DX、不正決済防止、ローン審査、事業開発、研究等さまざまな事業でご活用いただいています。詳しくは以下よりご確認ください。
不動産アーカイブご利用アンケートにご協力ください
不動産アーカイブの掲載情報は、LIFULL HOME'S掲載の不動産情報および提携先の不動産情報を統計情報として集積したものであり、その存在や信憑性を保証するものではありません。