このページは物件の広告情報ではありません。
過去にLIFULL HOME'Sへ掲載された不動産情報と提携先の地図情報を元に生成した参考情報です。また、一般から投稿された情報など主観的な情報も含みます。
情報更新日: 2025/11/22
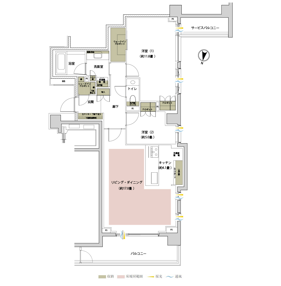
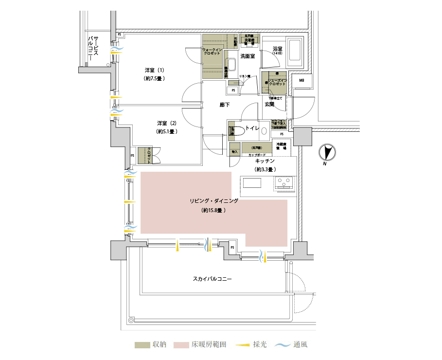
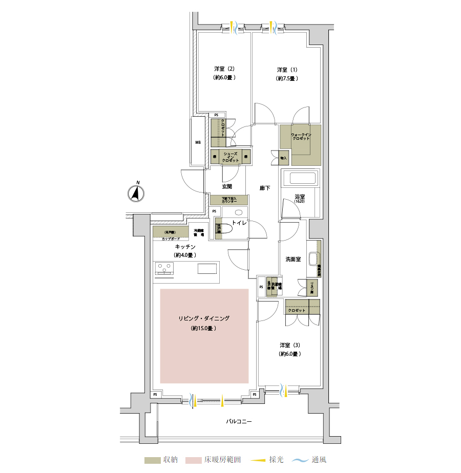
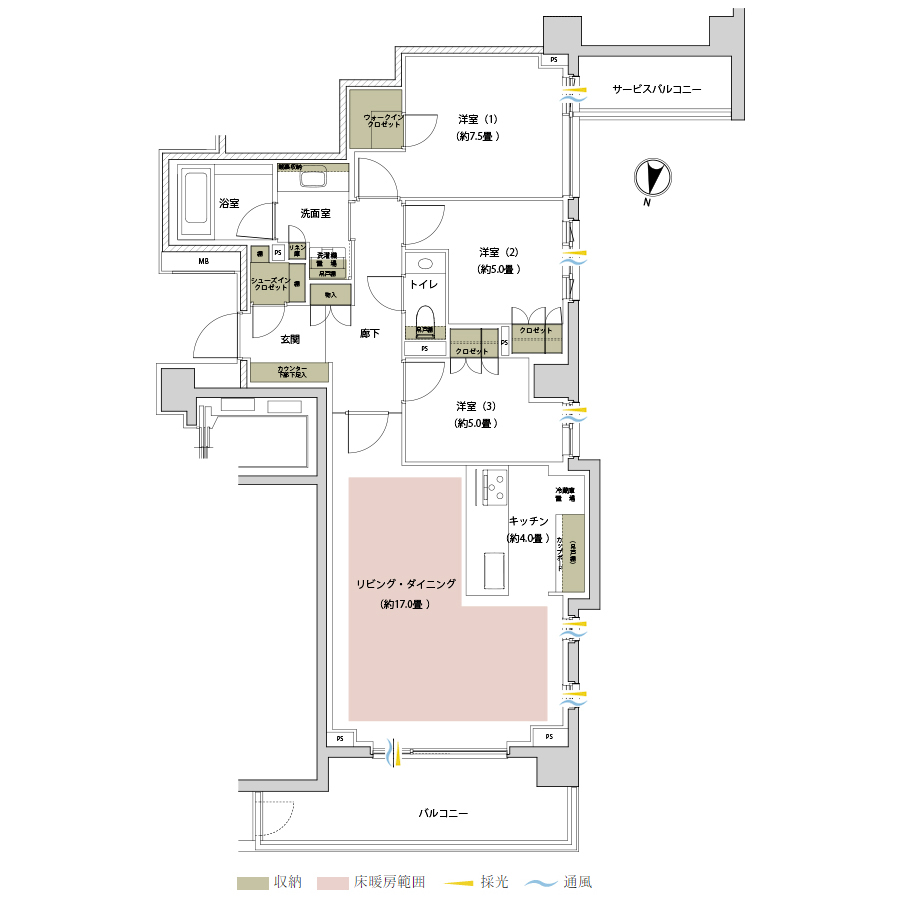
Brillia 高輪 REFIR
| 所在地 | 東京都港区高輪四丁目45番1、13、17、18(地番) |
|---|---|
| 交通 |
|
スポンサーリンク
Brillia 高輪 REFIRの建物情報
物件概要
| 物件種別 | マンション |
|---|---|
| 築年月(築年数) | 2020年1月 (築6年) |
| 建物構造 | 鉄筋コンクリート造地上5階建て地下1階 |
| 総戸数/総区画数 | 33戸 |
| 敷地全体面積 | 1,623.71m2(建築確認対象面積) |
| 用途地域 | 第一種中高層住居専用 |
| 地目 | 宅地 |
| 土地権利 | 所有権 |
| 建築確認番号 | 第UHEC建確29770号(2018年2月23日付)、第UHEC建確29770変1号(2018年5月21日付) |
| 施工会社 | 株式会社佐藤秀 |
| 売主 | 東京建物株式会社八重洲分室、安田不動産株式会社 |
| 販売会社 | 東京建物株式会社八重洲分室(代理) |
設備・条件
- 追い焚き
- システムキッチン
- オートロック
- 100m2以上
※最新の状態と異なる場合があります
売りたい不動産をお持ちの方へ
このエリアの所有不動産を査定する
売却査定手続きの流れ、費用相場や注意点など不動産売却について詳しく知りたい方はLIFULL HOME'S 不動産査定へ
Brillia 高輪 REFIRの周辺施設
-
買い物
日用品 -
- ツルハドラッグ五反田店
- セブンイレブン 東五反田二丁目店
- ファミリーマート サンズ高輪四丁目店
- ライフ 東五反田店
- 買い物
大型店 -
- 品川プリンスホテルアネックスタワー
- ウィング高輪WEST
- ユニクロ エキュート品川サウス店
- ユニクロ エキュート品川店
- グルメ
-
- すき家 東五反田店
- ロイヤルホスト 高輪店
- オーバカナル高輪店
- タリーズコーヒー大崎オーバルコート店
- 娯楽施設
-
- 高輪ゴルフセンター
- 品川プリンスホテル高輪テニスセンター
- マクセルアクアパーク品川
- 品川プリンスホテルボウリングセンター
- 文化施設
-
- 物流博物館
- O美術館
- 役所
公共施設 -
- 品川区立大崎図書館
- 品川東五反田郵便局
- 高輪台郵便局
- 品川御殿山郵便局
- 医療
-
- 公益財団法人河野臨床医学研究所附属品川リハビリテーション病院
- 独立行政法人地域医療機能推進機構東京高輪病院
- 大崎病院東京ハートセンター
- 医療法人社団有仁会阿部病院
- 保育施設
-
- 品川区立御殿山すこやか園五反田第二保育園
- キッズガーデン北品川
- 品川区立御殿山すこやか園御殿山幼稚園
- ほっぺるランド東五反田
- 学校
-
- 品川区立御殿山小学校
- 私立清泉女子大学
- 品川区立日野学園
- 私立頌栄女子学院中学校
Brillia 高輪 REFIR周辺の物件情報
周辺の問合せ可能な物件
東京都港区の問合せ可能な物件のうち、この物件の周辺にあるものから表示しています
賃貸
-
募集中
- JR山手線 品川駅 徒歩10分
- 80万円
- JR山手線 品川駅 徒歩10分
- 東京都港区高輪4丁目
- 88.45m² / 3LDK
-
募集中
- Brillia高輪REFIR
- 80万円
- JR山手線 品川駅 徒歩10分
- 東京都港区高輪4丁目
- 88.45m² / 3LDK
-
募集中
- ゲートヒル東京
- 19.2万円
- JR山手線 品川駅 徒歩9分
- 東京都港区高輪4丁目
- 37.58m² / ワンルーム
-
募集中
- JR山手線 品川駅 徒歩9分
- 16.7万円
- JR山手線 品川駅 徒歩9分
- 東京都港区高輪4丁目
- 31.32m² / ワンルーム
-
募集中
- オークウッドハウス
- 25万円
- JR山手線 品川駅 徒歩8分
- 東京都港区高輪4丁目5-4
- 51.94m² / 1LDK
-
募集中
- 京急本線 品川駅 徒歩10分
- 25万円
- 京急本線 品川駅 徒歩10分
- 東京都港区高輪4丁目5-4
- 51.94m² / 1LDK
-
募集中
- ガーデン高輪
- 180万円
- 都営浅草線 高輪台駅 徒歩8分
- 東京都港区高輪4丁目
- 249.96m² / 4SLDK
-
募集中
- 高輪アビタシオン
- 34万円
- JR山手線 品川駅 徒歩9分
- 東京都港区高輪4丁目6-15
- 75.14m² / 1SLDK
-
募集中
- 京急本線 品川駅 徒歩10分
- 13.2万円
- 京急本線 品川駅 徒歩10分
- 東京都港区高輪4丁目18-9
- 25.65m² / 1K
-
募集中
- ハーモニーレジデンス品川高輪
- 13.2万円
- JR山手線 品川駅 徒歩9分
- 東京都港区高輪4丁目18-9
- 25.65m² / 1K
新築マンション
※完成後1年以上経過した未入居の物件が含まれている場合があります
-
売出し中
- 東京メトロ銀座線「表参道」駅 徒歩12分
- 30,500万円~36,500万円
- 東京メトロ銀座線「表参道」駅 徒歩12分
- 東京都港区南青山七丁目162番地
- 80.06m² / 1LD・K+S~2LD・K
-
売出し中
- 東京メトロ日比谷線「神谷町」駅 徒歩2分
- 24,000万円~39,000万円
- 東京メトロ日比谷線「神谷町」駅 徒歩2分
- 東京都港区虎ノ門三丁目209-1他(地番)
- 75.13m² / 2LD・K
-
売出し中
- 東京メトロ南北線「麻布十番」駅 徒歩6分
- 未定
- 東京メトロ南北線「麻布十番」駅 徒歩6分
- 東京都港区南麻布二丁目4-51(地名地番)
- 60.17m² / 1LDK・2LDK
-
売出し中
- 都営三田線「三田」駅 徒歩5分 (A8出入口)
- 未定
- 都営三田線「三田」駅 徒歩5分 (A8出入口)
- 東京都港区芝5丁目2番93(地番)
- 118.87m² / 1LDK~3LDK
-
売出し中
- JR山手線「田町」駅 徒歩14分
- 未定
- JR山手線「田町」駅 徒歩14分
- 東京都港区海岸三丁目14番18(地番)
- 82.05m² / 1LDK~3LD・K
-
売出し中
- 東京メトロ南北線「白金高輪」駅 徒歩7分
- 未定
- 東京メトロ南北線「白金高輪」駅 徒歩7分
- 東京都港区三田五丁目11番3
- 62.08m² / 1K・1LDK・2LDK
-
売出し中
- 都営三田線「三田」駅 徒歩8分
- 未定
- 都営三田線「三田」駅 徒歩8分
- 東京都港区三田二丁目8番3(地番)
- 80.62m² / 2LDK~3LDK
-
売出し中
- JR山手線「田町」駅 徒歩10分
- 未定
- JR山手線「田町」駅 徒歩10分
- 東京都港区芝浦2丁目1番75(地番)
- 111.97m² / 1LD・K~3LD・K
-
売出し中
- 三田ガーデンヒルズ ウエストヒル
- 5億円
- 東京メトロ南北線 麻布十番駅 徒歩5分
- 東京都港区三田1丁目4-60
- 70.68m² / 2LDK
-
売出し中
- 三田ガーデンヒルズ イーストヒル棟
- 5億2800万円
- 東京メトロ南北線 麻布十番駅 徒歩6分
- 東京都港区三田1丁目
- 86.36m² / 3LDK
中古マンション
-
売出し中
- グランブルー高輪アドニス A棟 マンション
- 2億9800万円
- JR山手線 品川駅 徒歩15分
- 東京都港区高輪4丁目15-15
- 144.82m² / 3SLDK
-
売出し中
- ブリリア高輪レフィール
- 3億5800万円
- JR山手線 品川駅 徒歩10分
- 東京都港区高輪4丁目
- 89.53m² / 3LDK
-
売出し中
- ペアシティ・ルネッサンス
- 2億5500万円
- JR山手線 品川駅 徒歩6分
- 東京都港区高輪4丁目
- 109.68m² / 3SLDK
-
売出し中
- Brillia高輪TheHouse
- 3億9800万円
- JR山手線 品川駅 徒歩9分
- 東京都港区高輪4丁目
- 100.97m² / 3LDK
-
売出し中
- ドルフブルーメン
- 4億9800万円
- JR山手線 品川駅 徒歩6分
- 東京都港区高輪4丁目8-29
- 247.32m² / 5LDK
-
売出し中
- コープ高輪
- 1億4499万円
- JR山手線 品川駅 徒歩6分
- 東京都港区高輪4丁目6
- 80.28m² / 2LDK
-
売出し中
- 高輪マンション
- 1億4800万円
- JR山手線 品川駅 徒歩3分
- 東京都港区高輪4丁目8-11
- 98.56m² / 3LDK
-
売出し中
- ペアシティ・ルネッサンス
- 4億5000万円
- JR山手線 品川駅 徒歩6分
- 東京都港区高輪4丁目24
- 168.56m² / 3LDK
-
売出し中
- JR山手線 品川駅 徒歩6分
- 2億1800万円
- JR山手線 品川駅 徒歩6分
- 東京都港区港南2丁目
- 70.26m² / 2LDK
-
売出し中
- JR山手線 品川駅 徒歩6分
- 1億5980万円
- JR山手線 品川駅 徒歩6分
- 東京都港区港南2丁目
- 57.32m² / 1LDK
一戸建て
-
売出し中
- 港区白金6丁目 一戸建て
- 1億6980万円
- 東京メトロ南北線 白金台駅 徒歩10分
- 東京都港区白金6丁目12
- 123.62m² / 3LDK
-
売出し中
- 港区南麻布4丁目中古戸建
- 1億6750万円
- 東京メトロ日比谷線 広尾駅 徒歩8分
- 東京都港区南麻布4丁目
- 119.65m² / 3SLDK
-
売出し中
- 港区三田二丁目
- 7900万円
- 都営三田線 三田駅 徒歩8分
- 東京都港区三田2丁目
- 100.59m² / 2LDK
-
売出し中
- 東麻布2丁目 戸建
- 6億円
- 都営大江戸線 赤羽橋駅 徒歩4分
- 東京都港区東麻布2丁目31-3
- 148.32m² / 2LDK
-
売出し中
- 西麻布4丁目中古戸建
- 2億9500万円
- 東京メトロ日比谷線 広尾駅 徒歩7分
- 東京都港区西麻布4丁目
- 101.85m² / 3LDK
-
売出し中
- 港区麻布台三丁目 RC造戸建
- 6億5800万円
- 都営大江戸線 麻布十番駅 徒歩8分
- 東京都港区麻布台3丁目
- 209.94m² / 5LDK
-
売出し中
- 港区六本木7丁目中古戸建
- 8億2000万円
- 東京メトロ日比谷線 六本木駅 徒歩3分
- 東京都港区六本木7丁目
- 220.57m² / 5LDK
-
売出し中
- 西麻布二丁目 戸建
- 1億7990万円
- 東京メトロ半蔵門線 表参道駅 徒歩9分
- 東京都港区西麻布2丁目
- 76.8m² / 2SLDK
-
売出し中
- A HOUSE TOKYO
- 3億6000万円
- 東京メトロ千代田線 乃木坂駅 徒歩12分
- 東京都港区西麻布2丁目
- 136.35m² / 3SLDK
-
売出し中
- 港区西麻布二丁目戸建
- 1億7990万円
- 東京メトロ半蔵門線 表参道駅 徒歩9分
- 東京都港区西麻布2丁目
- 88.31m² / 2SLDK
注文住宅
※表示価格は延べ床面積約132m²の場合の建物価格の参考値です
エリア・駅で絞り込んで探す
賃貸
東京都のBrillia(ブリリア)が含まれるマンション
物件の種類から探す
港区で募集中の物件のみを検索できます
掲載情報に誤りや問題がある場合
LIFULL HOME'Sは「不動産会社」ではなく「情報掲載サイト」です
- ※管理会社の情報はLIFULL HOME'Sでは保持していないためお答えできません。お問合せはお控えください
- ※最新の募集状況は掲載中の不動産会社があれば、不動産会社へ直接お問合せください
掲載情報の訂正依頼 専用ダイヤル
0120-987-243
- 専用ダイヤル受付時間:10:00〜18:00
- ※土日・祝日、臨時休業日は除く
不動産データのご利用について
不動産事業におけるDX、サービスの改善、新規事業開発等をご検討中の方へ不動産データの活用をご提案します。LIFULL HOME'Sで集約した不動産情報や外部データは、不動産事業DX、不正決済防止、ローン審査、事業開発、研究等さまざまな事業でご活用いただいています。詳しくは以下よりご確認ください。
不動産アーカイブご利用アンケートにご協力ください
不動産アーカイブの掲載情報は、LIFULL HOME'S掲載の不動産情報および提携先の不動産情報を統計情報として集積したものであり、その存在や信憑性を保証するものではありません。